Content Navigation

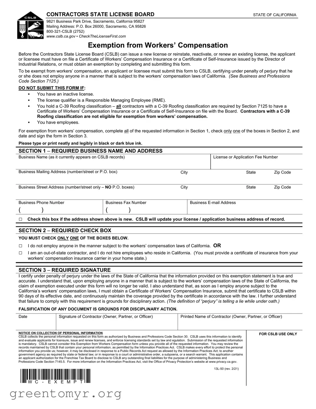
The 13L 50 form, utilized by the Contractors State License Board (CSLB) in California, serves as a crucial document for individuals seeking an exemption from workers' compensation requirements. This form is essential for applicants or licensees who do not employ anyone in a manner that falls under California's workers' compensation laws. To obtain an exemption, the individual must certify, under penalty of perjury, that they do not have any employees subject to these laws. The form includes several key sections, such as required business information, a checkbox to confirm eligibility for exemption, and a signature section for verification. It is important to note that certain contractors, particularly those holding a C-39 Roofing classification, are ineligible for this exemption and must maintain workers' compensation insurance. The form also outlines the consequences of providing false information and emphasizes the importance of compliance with the state’s regulations. Additionally, personal information collected on this form is subject to privacy regulations, ensuring that it is used appropriately for licensing and regulatory purposes.

13L 50 Example

CONTRACTORS STATE LICENSE BOARD

STATE OF CALIFORNIA

9821 Business Park Drive, Sacramento, California 95827

 

Mailing Address: P.O. Box 26000, Sacramento, CA 95826

 

800-321-CSLB (2752)

 

www.cslb.ca.gov ▪ CheckTheLicenseFirst.com

 

Exemption from Workers’ Compensation

Before the Contractors State License Board (CSLB) can issue a new license or reinstate, reactivate, or renew an existing license, the applicant or licensee must have on file a Certificate of Workers’ Compensation Insurance or a Certificate of Self-Insurance issued by the Director of Industrial Relations, or must obtain an exemption by completing and submitting this form.

To be exempt from workers’ compensation, an applicant or licensee must submit this form to CSLB, certifying under penalty of perjury that he or she does not employ anyone in a manner that is subject to the workers’ compensation laws of California. (See Business and Professions Code Section 7125.)

DO NOT SUBMIT THIS FORM IF:

You have an inactive license.

The license qualifier is a Responsible Managing Employee (RME).

You hold a C-39 Roofing classification – all contractors with a C-39 Roofing classification are required by Section 7125 to have a Certificate of Workers’ Compensation Insurance or a Certificate of Self-Insurance on file with the Board. Contractors with a C-39

Roofing classification are not eligible for exemption from workers’ compensation.

You have employees.

For exemption from workers’ compensation, complete all of the requested information in Section 1, check only one of the boxes in Section 2, and date and sign the form in Section 3.

Please type or print neatly and legibly in black or dark blue ink.

SECTION 1 REQUIRED BUSINESS NAME AND ADDRESS

Business Name (as it currently appears on CSLB records)

 

Business Mailing Address (number/street or P.O. box)

City

License or Application Fee Number

State

Zip Code

Business Street Address (number/street only – NO P.O. boxes)

City

State

Zip Code

 

 

 

 

 

 

Business Phone Number

Business Fax Number

 

 

Business E-mail Address

 

(

)

(

)

 

 

 

 

Check this box if the address shown above is new. CSLB will update your license / application business address of record.

SECTION 2 REQUIRED CHECK BOX

YOU MUST CHECK ONLY ONE OF THE BOXES BELOW.

I do not employ anyone in the manner subject to the workers’ compensation laws of California. OR

I am an out-of-state contractor, and I do not hire employees who reside in California. (You must provide a certificate of insurance from your workers’ compensation insurance carrier in your home state.)

SECTION 3 REQUIRED SIGNATURE

I certify under penalty of perjury under the laws of the State of California that the information provided on this exemption statement is true and accurate. I understand that, upon employing anyone in a manner that is subject to the workers’ compensation laws of the State of California, the claim of exemption executed under this form will no longer be valid. I also understand that, as soon as I employ anyone subject to the California’s workers’ compensation laws, I must obtain a Certificate of Workers’ Compensation Insurance, submit that certificate to CSLB within 90 days of its effective date, and continuously maintain the coverage provided by the certificate in accordance with the law. I further understand that failure to comply with this requirement is grounds for disciplinary action. (The definition of “perjury” is telling a lie while under oath.)

FALSIFICATION OF ANY DOCUMENT IS GROUNDS FOR DISCIPLINARY ACTION.

Date

Signature of Contractor (Owner, Partner, or Officer)

Printed Name of Contractor (Owner, Partner, or Officer)

NOTICE ON COLLECTION OF PERSONAL INFORMATION

CSLB collects the personal information requested on this form as authorized by Business and Professions Code Section 30. CSLB uses this information to identify and evaluate applicants for licensure, issue and renew licenses, and enforce licensing standards set by law and egulation. Submission of the requested information is mandatory. CSLB cannot consider this Exemption from Workers Compensation form unless you provide all of the requested information. You may review the records maintained by CSLB that contain your personal information, as permitted by the Information Practices Act. CSLB makes every effort to protect the personal information you provide us; however, it may be disclosed in response to a Public Records Act request as allowed by the Information Practices Act; to another government agency as required by state or federal law; or in response to a court or administrative order, a subpoena, or a search warrant. This application contains an applicant authorization for the Franchise Tax Board to disclose to CSLB any outstanding final liabilities for the purpose of administering Business and Professions Code Section 7145.5. For more information on the Information Practices Act, visit the Office of Privacy Protection’s website at www.privacy.ca.gov.

FOR CSLB USE ONLY

*WC-EXEMPT*

13L-50 (rev. 2/21)

File Breakdown

Fact Name Description
Purpose of Form The 13L 50 form is used to request an exemption from workers' compensation requirements for contractors in California.
Eligibility Criteria Applicants must certify that they do not employ anyone subject to California's workers' compensation laws or must be out-of-state contractors without California employees.
Important Sections Sections include required business information, a check box for employment status, and a signature section to certify the information provided is accurate.
Governing Law This form is governed by the Business and Professions Code Section 7125 of California law.
Consequences of Falsification Providing false information on this form can lead to disciplinary action by the Contractors State License Board (CSLB).

Guide to Using 13L 50

Once you have gathered all the necessary information, you are ready to fill out the 13L 50 form. This form is essential for certifying your exemption from workers' compensation in California. Be sure to complete each section carefully to avoid any delays in processing your application.

  1. Start with Section 1. Enter your Business Name as it appears on CSLB records.
  2. Fill in your Business Mailing Address, including the number/street or P.O. box, city, state, and zip code.
  3. Provide your Business Street Address (number/street only, no P.O. boxes), city, state, and zip code.
  4. Include your Business Phone Number, Business Fax Number, and Business E-mail Address.
  5. If your address has changed, check the box indicating that the address shown is new.
  6. Move to Section 2. You must check only one of the boxes provided:
    • I do not employ anyone in the manner subject to the workers’ compensation laws of California.
    • I am an out-of-state contractor, and I do not hire employees who reside in California.
  7. If you are an out-of-state contractor, remember to attach a certificate of insurance from your workers’ compensation insurance carrier in your home state.
  8. Proceed to Section 3. Read the certification statement carefully.
  9. Sign and date the form in the designated area.
  10. Print your name below your signature.

After completing the form, make sure to double-check all the information for accuracy. Once confirmed, submit the form to the Contractors State License Board (CSLB) for processing. Keep a copy for your records, as it may be needed in the future.

Get Answers on 13L 50

  1. What is the purpose of the 13L 50 form?

    The 13L 50 form is used to apply for an exemption from workers’ compensation insurance requirements in California. It is required for contractors who do not employ anyone in a manner subject to California's workers’ compensation laws. This form must be submitted to the Contractors State License Board (CSLB) before a new license can be issued or an existing license can be reinstated or renewed.

  2. Who needs to fill out the 13L 50 form?

    Contractors who do not have any employees and want to be exempt from workers’ compensation insurance must fill out this form. Additionally, out-of-state contractors who do not hire employees residing in California can also use this form. However, if you have an inactive license or if you hold a C-39 Roofing classification, you cannot use this exemption form.

  3. What information is required on the form?

    The form requires several pieces of information, including:

    • Your business name and mailing address
    • Your business phone number and email address
    • Your license or application fee number
    • Confirmation of whether your address has changed
    • A checkmark in one of the required boxes indicating your employment status
    • Your signature, printed name, and the date
  4. How do I submit the 13L 50 form?

    You can submit the form to the Contractors State License Board by mailing it to their office at 9821 Business Park Drive, Sacramento, California, 95827. Make sure to send it in a timely manner to avoid any delays in your licensing process.

  5. What happens if I employ someone after I submit the form?

    If you begin to employ anyone in a manner subject to California’s workers’ compensation laws after submitting the 13L 50 form, your exemption will no longer be valid. You will need to obtain a Certificate of Workers’ Compensation Insurance and submit it to CSLB within 90 days of its effective date.

  6. What are the consequences of falsifying information on the form?

    Providing false information on the 13L 50 form can lead to serious consequences. Falsification of any document may result in disciplinary action from the Contractors State License Board. This includes penalties for perjury, which is defined as lying under oath.

  7. Is my personal information protected when I submit this form?

    Yes, the Contractors State License Board takes measures to protect your personal information. However, be aware that it may be disclosed in certain situations, such as in response to a public records request or as required by law. You can review the records maintained by CSLB that contain your personal information, as permitted by the Information Practices Act.

Common mistakes

Filling out the 13L 50 form can be a straightforward process, but several common mistakes can hinder the application. One frequent error is failing to provide all required information in Section 1. This section demands specific details about the business name, address, and contact information. Omitting any of these elements can lead to delays or rejection of the application. It is essential to ensure that all fields are completed accurately and legibly.

Another common mistake involves the selection of checkboxes in Section 2. Applicants must check only one box to indicate their employment status concerning California's workers' compensation laws. Selecting more than one box or failing to check any box can invalidate the form. This section is crucial for establishing eligibility for exemption, and attention to detail is necessary to avoid complications.

Many applicants overlook the importance of signing and dating the form in Section 3. This signature certifies that the information provided is true and accurate under penalty of perjury. Without a signature, the application cannot be processed. Additionally, applicants should ensure that they print their names clearly to avoid any confusion regarding the identity of the signatory.

Finally, a significant mistake occurs when applicants fail to read the instructions thoroughly. The form includes specific guidelines on who is eligible for exemption. For instance, individuals with an inactive license or those classified under C-39 Roofing must not submit this form. Ignoring these stipulations can lead to unnecessary complications and delays in obtaining or renewing a license. Careful review of the entire form and its requirements is advisable to ensure compliance.

Documents used along the form

The 13L 50 form serves as a critical document for contractors seeking an exemption from workers' compensation in California. However, it is often accompanied by several other forms and documents that play essential roles in the licensing process. Understanding these documents can help streamline the application and compliance process for contractors.

  • Certificate of Workers’ Compensation Insurance: This document proves that a contractor has active workers' compensation insurance coverage. It is required for most contractors unless they qualify for an exemption.
  • Certificate of Self-Insurance: Contractors who choose to self-insure their workers' compensation must submit this certificate. It indicates that they have met specific financial requirements set by the state to cover potential claims.
  • Application for Contractor License: This form initiates the licensing process for new contractors. It includes essential information about the applicant and their business operations.
  • Business Entity Registration: If a contractor operates as a corporation or limited liability company (LLC), they must file this registration with the state. It establishes the legal structure of the business.
  • Statement of Experience: This document outlines the contractor's work history and qualifications. It helps demonstrate their expertise in the field and is often required for licensing.
  • Background Check Authorization: Contractors must consent to a background check as part of the licensing process. This document allows the state to verify the applicant's criminal history and ensure compliance with licensing standards.
  • Financial Statement: A financial statement may be required to assess the contractor's financial stability. This document provides insights into the contractor's ability to operate responsibly.
  • Proof of Bonding: Contractors may need to provide proof of a surety bond. This bond protects consumers against potential financial losses resulting from a contractor's failure to fulfill their obligations.

Each of these documents plays a vital role in ensuring that contractors meet the legal requirements to operate in California. By understanding and preparing these forms, contractors can navigate the licensing process more effectively and maintain compliance with state regulations.

Similar forms

The 13L 50 form serves a specific purpose related to workers' compensation exemption for contractors in California. However, it shares similarities with several other important documents in the realm of business and licensing. Below are six documents that are comparable to the 13L 50 form, along with an explanation of how they relate:

  • Certificate of Workers’ Compensation Insurance: This document provides proof that a contractor has the necessary workers' compensation coverage. Like the 13L 50 form, it is essential for compliance with California laws regarding employee protection.
  • Certificate of Self-Insurance: This certificate is issued to contractors who opt to self-insure their workers' compensation liabilities. Similar to the 13L 50 form, it serves as a declaration of an exemption from traditional insurance coverage.
  • Application for Contractor License: When applying for a contractor's license, applicants must provide various forms of documentation, including proof of workers' compensation coverage or an exemption. The 13L 50 form is part of this broader licensing process.
  • Notice of Exemption from Workers' Compensation: This document is filed by employers who qualify for exemption from workers' compensation insurance. Like the 13L 50 form, it asserts that the employer does not have employees subject to these laws.
  • Employer's Report of Occupational Injury or Illness: While this report is used to document workplace injuries, it relates to the 13L 50 form by emphasizing the importance of workers' compensation coverage for employers who do have employees.
  • Workers' Compensation Claim Form (DWC 1): This form is used by employees to file a claim for workers' compensation benefits. It highlights the significance of having workers' compensation coverage, which the 13L 50 form seeks to address for those seeking exemption.

Dos and Don'ts

When filling out the 13L 50 form, follow these guidelines to ensure a smooth process. Here’s what you should and shouldn’t do:

  • Do complete all required sections of the form accurately.
  • Do use black or dark blue ink to fill out the form.
  • Do check only one box in Section 2 to indicate your employment status.
  • Do sign and date the form in Section 3.
  • Do ensure your business name matches what is on CSLB records.
  • Don’t submit the form if you have an inactive license.
  • Don’t submit the form if you have employees or if you are a C-39 Roofing contractor.

By adhering to these guidelines, you can avoid common pitfalls and ensure your application is processed efficiently.

Misconceptions

Understanding the 13L 50 form can be challenging, and several misconceptions often arise. Here are seven common misunderstandings about this form:

  • Misconception 1: The 13L 50 form is only for new applicants.
  • This form is not limited to new applicants. It can also be used for existing licensees seeking to reinstate or renew their licenses.

  • Misconception 2: Anyone can use the form to exempt themselves from workers’ compensation.
  • Only those who do not employ anyone in a manner subject to California's workers’ compensation laws can claim exemption using this form.

  • Misconception 3: Completing the form guarantees an exemption.
  • Filling out the form does not automatically grant an exemption. The Contractors State License Board (CSLB) must review and approve the application.

  • Misconception 4: You can submit the form even if you have employees.
  • This is incorrect. If you have employees, you cannot submit the 13L 50 form for exemption.

  • Misconception 5: The form can be submitted without a signature.
  • A signature is essential. The form must be signed to certify the information provided is true and accurate.

  • Misconception 6: Out-of-state contractors do not need to provide any proof of insurance.
  • Out-of-state contractors must provide a certificate of insurance from their home state if they do not hire California residents.

  • Misconception 7: The personal information collected is not protected.
  • CSLB takes privacy seriously. While personal information is collected, it is protected and used in accordance with state laws.

Key takeaways

Here are key takeaways regarding the 13L 50 form, which is essential for obtaining an exemption from workers’ compensation in California:

  • Eligibility Requirements: Only applicants or licensees who do not employ anyone subject to California's workers' compensation laws can use this form.
  • Exemption Not Applicable: Do not submit this form if you have an inactive license, are a Responsible Managing Employee (RME), hold a C-39 Roofing classification, or have employees.
  • Accurate Information: Complete all requested information in Section 1 clearly and legibly, using black or dark blue ink.
  • Check One Box: In Section 2, you must check only one box to indicate your employment status regarding workers’ compensation.
  • Signature Requirement: Sign and date the form in Section 3, certifying that the information provided is true and accurate under penalty of perjury.
  • Immediate Action Required: If you begin employing anyone subject to California’s workers’ compensation laws, you must obtain a Certificate of Workers’ Compensation Insurance and submit it to CSLB within 90 days.
  • Personal Information Protection: CSLB collects personal information for licensing purposes and takes measures to protect it, though it may be disclosed under certain legal circumstances.