Content Navigation

The 4 Point Inspection form serves as an essential tool for assessing the condition of key systems in a property, specifically the roof, electrical, HVAC, and plumbing systems. This inspection is typically required for homeowners seeking insurance coverage, particularly in Florida. Each section of the form collects critical information about the property, including the age of the systems, any visible hazards, and the general condition of each component. For instance, the electrical section requires details about the main panel and any potential issues such as double taps or exposed wiring. The HVAC section looks into the operational status of heating and cooling systems, while the plumbing section checks for leaks and the condition of fixtures. The roof assessment includes details on materials used, age, and any signs of damage. Photographic documentation is also a necessary part of the inspection, ensuring that visual evidence supports the findings. A licensed Florida inspector must complete the form, providing a reliable overview that helps underwriters evaluate the property’s insurability.

4 Point Inspection Example

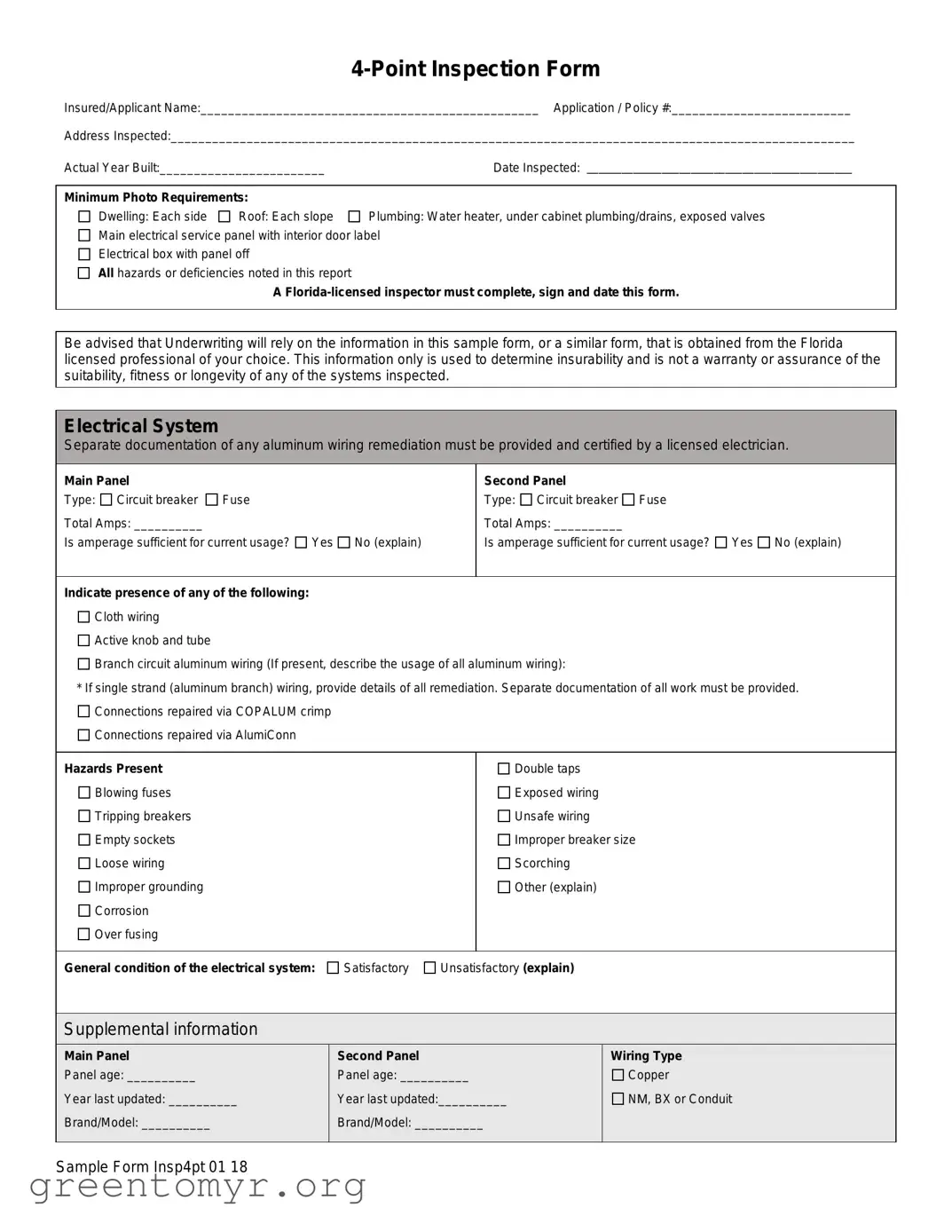
4-Point Inspection Form

Insured/Applicant Name:_________________________________________________ Application / Policy #:__________________________

Address Inspected:___________________________________________________________________________________________________

Actual Year Built:________________________

Date Inspected: ______________________________________________

 

 

Minimum Photo Requirements:

 

Dwelling: Each side

Roof: Each slope

Plumbing: Water heater, under cabinet plumbing/drains, exposed valves

Main electrical service panel with interior door label

Electrical box with panel off

All hazards or deficiencies noted in this report

A Florida-licensed inspector must complete, sign and date this form.

Be advised that Underwriting will rely on the information in this sample form, or a similar form, that is obtained from the Florida licensed professional of your choice. This information only is used to determine insurability and is not a warranty or assurance of the suitability, fitness or longevity of any of the systems inspected.

Electrical System

Separate documentation of any aluminum wiring remediation must be provided and certified by a licensed electrician.

Main Panel

 

 

Second Panel

 

Type:

Circuit breaker

Fuse

 

Type:

Circuit breaker Fuse

 

Total Amps: __________

 

 

Total Amps: __________

 

Is amperage sufficient for current usage?

Yes No (explain)

Is amperage sufficient for current usage?

Yes No (explain)

 

 

 

 

 

 

 

Indicate presence of any of the following:

Cloth wiring

Active knob and tube

Branch circuit aluminum wiring (If present, describe the usage of all aluminum wiring):

* If single strand (aluminum branch) wiring, provide details of all remediation. Separate documentation of all work must be provided.

Connections repaired via COPALUM crimp Connections repaired via AlumiConn

Hazards Present

 

 

Double taps

Blowing fuses

 

 

Exposed wiring

Tripping breakers

 

 

Unsafe wiring

Empty sockets

 

 

Improper breaker size

Loose wiring

 

 

Scorching

Improper grounding

 

 

Other (explain)

Corrosion

 

 

 

Over fusing

 

 

 

 

 

 

 

General condition of the electrical system:

Satisfactory

Unsatisfactory (explain)

Supplemental information

Main Panel

Second Panel

Wiring Type

Panel age: __________

Panel age: __________

Copper

Year last updated: __________

Year last updated:__________

NM, BX or Conduit

Brand/Model: __________

Brand/Model: __________

 

 

 

 

Sample Form Insp4pt 01 18

4-Point Inspection Form

HVAC System

Central AC:

Yes

No

Central heat:

Yes

No

If not central heat, indicate primary heat source and fuel type: _________________________________

Are the heating, ventilation and air conditioning systems in good working order?

Yes

No (explain)

Date of last HVAC servicing/inspection: ______________

 

 

 

 

 

 

 

 

 

 

 

 

Hazards Present

 

 

 

 

 

 

 

Wood-burning stove or central gas fireplace not professionally installed?

Yes

No

 

Space heater used as primary heat source?

Yes

No

 

 

 

Is the source portable?

Yes

No

 

 

 

 

 

Does the air handler/condensate line or drain pan show any signs of blockage or leakage, including water damage to the surrounding area?

Yes No

Supplemental Information

Age of system: _____________

Year last updated: _____________

(Please attach photo(s) of HVAC equipment, including dated manufacturer’s plate)

Plumbing System

Is there a temperature pressure relief valve on the water heater?

Yes

No

 

Is there any indication of an active leak?

Yes

No

 

 

 

Is there any indication of a prior leak?

Yes

No

 

 

 

Water heater location: _______________________________________________

 

 

 

 

General condition of the following plumbing fixtures and connections to appliances:

 

Satisfactory Unsatisfactory

N/A

 

Satisfactory Unsatisfactory

N/A

 

Dishwasher

 

 

 

Toilets

 

Refrigerator

 

 

 

Sinks

 

Washing machine

 

 

 

Sump pump

 

Water heater

 

 

 

Main shut off valve

 

Showers/Tubs

 

 

 

All other visible

 

 

 

 

 

 

 

If unsatisfactory, please provide comments/details (leaks, wet/soft spots, mold, corrosion, grout/caulk, etc.).

Supplemental Information

Age of Piping System:

 

Type of pipes (check all that apply)

 

_____

Original to home

 

Copper

 

 

 

 

 

_____

Completely re-piped

 

PVC/CPVC

 

 

 

 

 

_____

Partially re-piped

 

Galvanized

 

 

 

 

 

(Provide year and extent of renovation in the comments below)

 

PEX

 

 

 

 

 

 

 

 

Polybutylene

 

 

 

 

Other (specify)

 

 

 

 

 

 

Sample Form Insp4pt 01 18

4-Point Inspection Form

Roof (With photos of each roof slope, this section can take the place of the Roof Inspection Form.)

Predominant Roof

Covering material: __________

Roof age (years): __________

Remaining useful life (years): __________

Date of last roofing permit: __________

Date of last update: __________

If updated (check one):

Full replacement Partial replacement

%of replacement: __________

Overall condition:

Satisfactory

Unsatisfactory (explain below)

Any visible signs of damage / deterioration?

(check all that apply and explain below)

Cracking

Cupping/curling

Excessive granule loss

Exposed asphalt

Exposed felt

Missing/loose/cracked tabs or tiles

Soft spots in decking Visible hail damage

Any visible signs of leaks? Yes No

Attic/underside of decking Yes No

Interior ceilings Yes No

Secondary Roof

Covering material: __________

Roof age (years): __________

Remaining useful life (years): __________

Date of last roofing permit: __________

Date of last update: __________

If updated (check one):

Full replacement Partial replacement

%of replacement: __________

Overall condition:

Satisfactory

Unsatisfactory (explain below)

Any visible signs of damage / deterioration?

(check all that apply and explain below)

Cracking

Cupping/curling

Excessive granule loss

Exposed asphalt

Exposed felt

Missing/loose/cracked tabs or tiles

Soft spots in decking Visible hail damage

Any visible signs of leaks? Yes No

Attic/underside of decking Yes No

Interior ceilings Yes No

Additional Comments/Observations (use additional pages if needed):

All 4-Point Inspection Forms must be completed and signed by a verifiable Florida-licensed inspector. I certify that the above statements are true and correct.

Inspector Signature

 

Title

 

License Number

 

Date

 

 

 

 

 

 

 

Company Name

 

License Type

 

Work Phone

 

 

Sample Form Insp4pt 01 18

4-Point Inspection Form

Special Instructions: This sample 4-Point Inspection Form includes the minimum data needed for Underwriting to properly evaluate a property application. While this specific form is not required, any other inspection report submitted for consideration must include at least this level of detail to be acceptable.

Photo Requirements

Photos must accompany each 4-Point Inspection Form. The minimum photo requirements include:

Dwelling: Each side

Roof: Each slope

Plumbing: Water heater, under cabinet plumbing/drains, exposed valves

Open main electrical panel and interior door

Electrical box with the panel off

All hazards or deficiencies

Inspector Requirements

To be accepted, all inspection forms must be completed, signed and dated by a verifiable Florida-licensed professional. Examples include:

A general, residential, or building contractor

A building code inspector

A home inspector

Note: A trade-specific, licensed professional may sign off only on the inspection form section for their trade. (e.g., an electrician may sign off only on the electrical section of the form.)

Documenting the Condition of Each System

The Florida-licensed inspector is required to certify the condition of the roof, electrical, HVAC and plumbing systems. Acceptable Condition means that each system is working as intended and there are no visible hazards or deficiencies.

Additional Comments or Observations

This section of the 4-Point Inspection Form must be completed with full details/descriptions if any of the following are noted on the inspection:

Updates: Identify the types of updates, dates completed and by whom

Any visible hazards or deficiencies

Any system determined not to be in good working order

Note to All Agents

The writing agent must review each 4-Point Inspection Form before it is submitted with an application for coverage. It is the agent’s responsibility to ensure that all rules and requirements are met before the application is bound. Agents may not submit applications for properties with electrical, heating or plumbing systems not in good working order or with existing hazards/deficiencies.

Sample Form Insp4pt 01 18

File Breakdown

Fact Name Description
Purpose The 4-Point Inspection Form evaluates the condition of four key systems: roof, electrical, HVAC, and plumbing.
Inspector Requirement A licensed inspector in Florida must complete, sign, and date the form for it to be valid.
Photo Requirements Photos of each side of the dwelling, each slope of the roof, and key plumbing and electrical components are mandatory.
Governing Law Florida Statute 627.0629 outlines the requirements for property insurance inspections.
Insurability Assessment The information gathered from this form helps determine the insurability of the property but does not guarantee system fitness or longevity.

Guide to Using 4 Point Inspection

Completing the 4 Point Inspection form is essential for ensuring that all necessary information is accurately captured for underwriting purposes. Following these steps will help streamline the process and ensure that all critical areas are addressed.

  1. Begin by filling in the Insured/Applicant Name at the top of the form.
  2. Next, enter the Application/Policy #.
  3. Provide the Address Inspected in the designated space.
  4. Indicate the Actual Year Built of the property.
  5. Record the Date Inspected.
  6. Gather and attach the required photos for each section, ensuring you meet the minimum photo requirements listed.
  7. Complete the Electrical System section by indicating the type of main and second panels, total amps, and whether the amperage is sufficient for current usage.
  8. Document any hazards present in the electrical system and provide a general condition assessment.
  9. Fill out the HVAC System section, noting the status of central AC and heat, and any hazards present.
  10. Assess the Plumbing System by answering questions about leaks and the condition of plumbing fixtures.
  11. Complete the Roof section by documenting the roof covering material, age, and overall condition, along with any visible signs of damage or leaks.
  12. Use the Additional Comments/Observations section for any extra details, especially if hazards or deficiencies were noted.
  13. Finally, ensure that the form is signed and dated by a verifiable Florida-licensed inspector.

Once the form is completed, it should be reviewed for accuracy and submitted along with any required documentation. This ensures that all necessary information is available for underwriting to make informed decisions regarding insurability.

Get Answers on 4 Point Inspection

What is a 4-Point Inspection Form?

The 4-Point Inspection Form is a document used primarily in Florida to assess the condition of four key systems in a home: the roof, electrical system, HVAC (heating, ventilation, and air conditioning), and plumbing. This form is essential for insurance underwriting, as it helps determine a property's insurability.

Who needs to complete the 4-Point Inspection Form?

A licensed inspector in Florida must complete the 4-Point Inspection Form. This inspector can be a general contractor, a home inspector, or a building code inspector. It's important that the inspector is verified and licensed to ensure the accuracy of the information provided.

What are the minimum photo requirements for the inspection?

To accompany the 4-Point Inspection Form, specific photos are required. These include:

  • Each side of the dwelling
  • Each slope of the roof
  • Water heater and under-cabinet plumbing/drains
  • Main electrical panel with the interior door open
  • Electrical box with the panel off
  • Any noted hazards or deficiencies

What systems are evaluated in the inspection?

The inspection evaluates four main systems:

  1. Roof
  2. Electrical System
  3. HVAC System
  4. Plumbing System

Each system is assessed for its condition, any visible hazards, and overall functionality.

What happens if a system is found to be unsatisfactory?

If any system is deemed unsatisfactory, the inspector must provide detailed comments regarding the issues observed. This information is crucial for the underwriting process and may affect the insurability of the property.

Can a trade-specific professional complete the entire form?

No, a trade-specific professional can only sign off on the section relevant to their trade. For example, an electrician may only complete the electrical section of the form. The entire form must be completed by a Florida-licensed inspector who can certify the overall condition of all systems.

How does the 4-Point Inspection affect insurance applications?

The information provided in the 4-Point Inspection Form is critical for insurance underwriting. If any of the systems are not in good working order or if there are existing hazards, the application for coverage may be denied. Agents must ensure all requirements are met before submitting an application.

What should be included in the additional comments section?

The additional comments section should detail any updates made to the systems, visible hazards or deficiencies, and any systems that are not functioning properly. This section helps provide a comprehensive view of the property's condition.

Is the 4-Point Inspection Form a warranty for the systems inspected?

No, the 4-Point Inspection Form does not serve as a warranty or guarantee of the systems' suitability, fitness, or longevity. It is simply a tool used to assess the current condition of the systems for insurance purposes.

What should agents do before submitting the inspection form?

Agents must review the completed 4-Point Inspection Form to ensure all rules and requirements are met. They cannot submit applications for properties with systems that are not in good working order or with existing hazards or deficiencies.

Common mistakes

Completing the 4 Point Inspection form can be a straightforward process, but many individuals make common mistakes that can lead to complications down the line. One frequent error is failing to provide complete information in the Insured/Applicant Name and Application/Policy Number sections. Incomplete or incorrect details can delay the underwriting process and may even result in a denial of coverage.

Another mistake often made is neglecting to include the date inspected. This date is crucial, as it establishes the timeline for the inspection and the condition of the systems at that point. Without it, the report may lack credibility and may not align with underwriting standards.

People frequently overlook the minimum photo requirements. The form specifies that photos must be included for each side of the dwelling, each slope of the roof, and critical plumbing and electrical components. Failing to attach these photos can lead to a rejection of the form, as underwriters rely on visual evidence to assess the property's condition.

Additionally, many individuals do not adequately document the hazards present in the electrical system section. It's important to note any issues like double taps, exposed wiring, or improper grounding. If these hazards are not clearly identified, it may lead to misunderstandings regarding the safety and functionality of the systems.

Another common oversight is not providing sufficient detail in the explanations for the questions regarding system conditions. For instance, simply marking "unsatisfactory" without elaboration does not give the underwriter the context needed to understand the severity of the issues. Clear, detailed comments can make a significant difference in how the application is evaluated.

People also tend to mislabel or fail to specify the type of wiring in the electrical section. If aluminum wiring is present, it is essential to indicate its usage and any remediation that has been performed. Inaccuracies in this section can raise red flags and lead to further scrutiny.

Another mistake is neglecting to include the age of the systems. This information is vital for assessing the potential risks associated with the property. Without it, underwriters may be unable to accurately evaluate the insurability of the property.

Moreover, some individuals forget to check the boxes for the HVAC system's condition and its servicing history. This section is critical, as it impacts not only the comfort of the home but also its overall safety. Omitting this information can lead to unnecessary complications in the underwriting process.

Finally, individuals often fail to sign and date the form correctly. The inspector's signature is a verification of the information provided, and without it, the form may be deemed invalid. Ensuring that all required signatures are present is essential for a smooth application process.

Documents used along the form

When conducting a 4-Point Inspection, several additional forms and documents may be necessary to provide a comprehensive overview of the property's condition. Each of these documents serves a specific purpose and helps ensure that all relevant information is collected for insurance underwriting or property evaluation. Below is a list of commonly used forms and documents that accompany the 4-Point Inspection.

  • Home Inspection Report: This detailed report covers the overall condition of the home, including structural elements, safety features, and potential issues that may require attention. It often includes photographs and descriptions of findings.
  • Roof Inspection Form: This form specifically assesses the roof's condition, including materials, age, and any visible damage. It may be required separately to ensure compliance with insurance standards.
  • HVAC Inspection Report: This document focuses on the heating, ventilation, and air conditioning systems. It details the systems' operational status, maintenance history, and any potential hazards.
  • Plumbing Inspection Report: This report evaluates the plumbing system, including pipes, fixtures, and appliances. It documents any leaks, corrosion, or other issues that could affect the property's insurability.
  • Electrical Inspection Report: This form assesses the electrical system's safety and functionality. It includes information about wiring types, panel conditions, and any identified hazards or deficiencies.
  • Aluminum Wiring Remediation Documentation: If aluminum wiring is present, this document certifies that any necessary remediation has been completed by a licensed electrician, ensuring safety and compliance.
  • Permits and Licensing Documentation: This includes copies of relevant permits for any renovations or repairs made to the property. It verifies that work was done legally and up to code.
  • Insurance Application: This form provides basic information about the property and the applicant, including coverage requested and any previous claims history, which can influence underwriting decisions.
  • Disclosure Statements: These statements inform potential buyers or insurers about known issues with the property, such as past flooding or mold problems. Transparency is crucial in real estate transactions.
  • Photo Documentation: Accompanying photos are essential for visual verification of the property's condition. They should include images of the roof, electrical panel, plumbing fixtures, and any noted deficiencies.

Each of these documents plays a vital role in the overall assessment of a property. They provide critical insights that help ensure safety, compliance, and proper underwriting for insurance purposes. By gathering all necessary forms and documentation, property owners and inspectors can facilitate a smoother inspection process and enhance the accuracy of evaluations.

Similar forms

  • Home Inspection Report: Similar to the 4-Point Inspection Form, a home inspection report evaluates the overall condition of a property. It covers essential systems like plumbing, electrical, and HVAC, providing a comprehensive overview that helps buyers and insurers understand the property's condition.

  • Roof Inspection Report: This document focuses specifically on the roof's condition, much like the roof section of the 4-Point Inspection. It details the roofing materials, age, and any visible damage, helping to assess the roof's integrity and remaining lifespan.

  • Electrical Inspection Report: This report closely resembles the electrical section of the 4-Point Inspection Form. It provides a detailed evaluation of the electrical systems, identifying potential hazards and ensuring compliance with safety standards.

  • HVAC Inspection Report: Like the HVAC section in the 4-Point Inspection, this report assesses the heating, ventilation, and air conditioning systems. It determines their operational status and identifies any maintenance or repair needs, ensuring they function efficiently.

Dos and Don'ts

When filling out the 4 Point Inspection form, it is essential to follow certain guidelines to ensure accuracy and compliance. Here’s a list of things you should and shouldn’t do:

  • Do ensure all sections of the form are completed thoroughly. Each system—roof, electrical, HVAC, and plumbing—requires specific details.
  • Do include clear and detailed photos as specified in the photo requirements. Each side of the dwelling and all slopes of the roof must be documented.
  • Do have a Florida-licensed inspector sign and date the form. This is crucial for the form's validity.
  • Do provide explanations for any "No" answers. If any system is not in good working order, detail the issues clearly.
  • Do specify the age and type of systems. This information helps in assessing the property's condition.
  • Don't leave any sections blank. Incomplete forms may lead to delays or rejection of the application.
  • Don't submit the form without reviewing it for accuracy. Errors can result in complications with underwriting and coverage.

By adhering to these guidelines, you can help ensure that the inspection process goes smoothly and that all necessary information is provided for underwriting review.

Misconceptions

Misconceptions about the 4 Point Inspection form can lead to confusion and misinterpretation of its purpose and requirements. Here are nine common misconceptions, along with clarifications to better understand the form.

  • 1. The 4 Point Inspection is a warranty for the home. Many believe that passing the inspection guarantees the home is free from defects. In reality, the inspection assesses current conditions but does not guarantee future performance.
  • 2. Any inspector can complete the form. It is a common misunderstanding that any inspector can fill out the 4 Point Inspection form. Only a Florida-licensed inspector is authorized to complete, sign, and date this form.
  • 3. The inspection is only about the roof. Some individuals think the inspection focuses solely on the roof. However, it evaluates four key systems: electrical, plumbing, HVAC, and the roof itself.
  • 4. Photos are optional. Many assume that photos are not necessary. In fact, the form requires specific photos to support the findings, including images of each side of the dwelling and various system components.
  • 5. The form is only for older homes. There is a belief that only older homes need a 4 Point Inspection. However, any property, regardless of age, may require this inspection for insurance purposes.
  • 6. The inspection is a thorough assessment of all home systems. Some think the 4 Point Inspection provides a comprehensive evaluation of all home systems. Instead, it focuses on the four specified systems and does not cover every aspect of home maintenance.
  • 7. The inspection can be done by a general contractor. Many believe that any general contractor can perform this inspection. While they can conduct inspections, only those with the proper licensing in Florida can complete the 4 Point Inspection form.
  • 8. The results are only for the insurance company. Some assume the findings are solely for the insurer's benefit. In reality, homeowners can also use the information to understand the condition of their home and prioritize repairs.
  • 9. The inspection is unnecessary if renovations have been made. There is a misconception that recent renovations eliminate the need for a 4 Point Inspection. Even newly renovated homes may require this inspection to ensure all systems meet current standards.

Understanding these misconceptions can help homeowners and agents navigate the requirements of the 4 Point Inspection more effectively. Clarity about its purpose and limitations is crucial for making informed decisions regarding home insurance and maintenance.

Key takeaways

When filling out and using the 4 Point Inspection form, it is essential to understand its purpose and requirements. Here are some key takeaways:

  • The form must be completed by a Florida-licensed inspector, who will sign and date it.
  • Ensure that all minimum photo requirements are met, including photos of the dwelling, roof, plumbing, and electrical systems.
  • Document the condition of the roof, electrical, HVAC, and plumbing systems clearly, indicating any visible hazards or deficiencies.
  • Agents must review the completed form before submission to ensure compliance with all rules and requirements.
  • Any updates or repairs made to systems should be noted in detail, including dates and the individuals responsible for the work.
  • It is important to provide separate documentation for any remediation of aluminum wiring, certified by a licensed electrician.
  • Inadequate systems or existing hazards must be addressed before an application for coverage can be submitted.
  • All inspection forms must include sufficient detail to be accepted, as this information is crucial for determining insurability.