Content Navigation

The C-105.2 form, also known as the Certificate of New York State Workers' Compensation Insurance Coverage, serves a crucial role in the realm of business operations in New York. This form is primarily used to provide proof that a business has secured the necessary workers' compensation insurance as mandated by New York State law. It contains essential information, such as the legal name and address of the insured business, the business's telephone number, and the employer registration number. Additionally, the form includes details about the insurance carrier, including the policy number and effective dates. It is important to note that the C-105.2 form certifies that the insurance coverage is in effect and that the insurance carrier is obligated to notify relevant parties in the event of policy cancellation. This notification ensures that both the business and any entities relying on this coverage are kept informed. Furthermore, the form emphasizes that it does not alter or extend the coverage provided by the insurance policy itself, nor does it confer any additional rights beyond what is specified in the policy. For businesses operating in industries with hazardous employment, presenting this certificate is often a prerequisite for obtaining necessary permits or entering contracts. Understanding the significance of the C-105.2 form can help business owners navigate compliance with workers' compensation requirements effectively.

C 105 2 Example

CERTIFICATE OF

NYS WORKERS' COMPENSATION INSURANCE COVERAGE

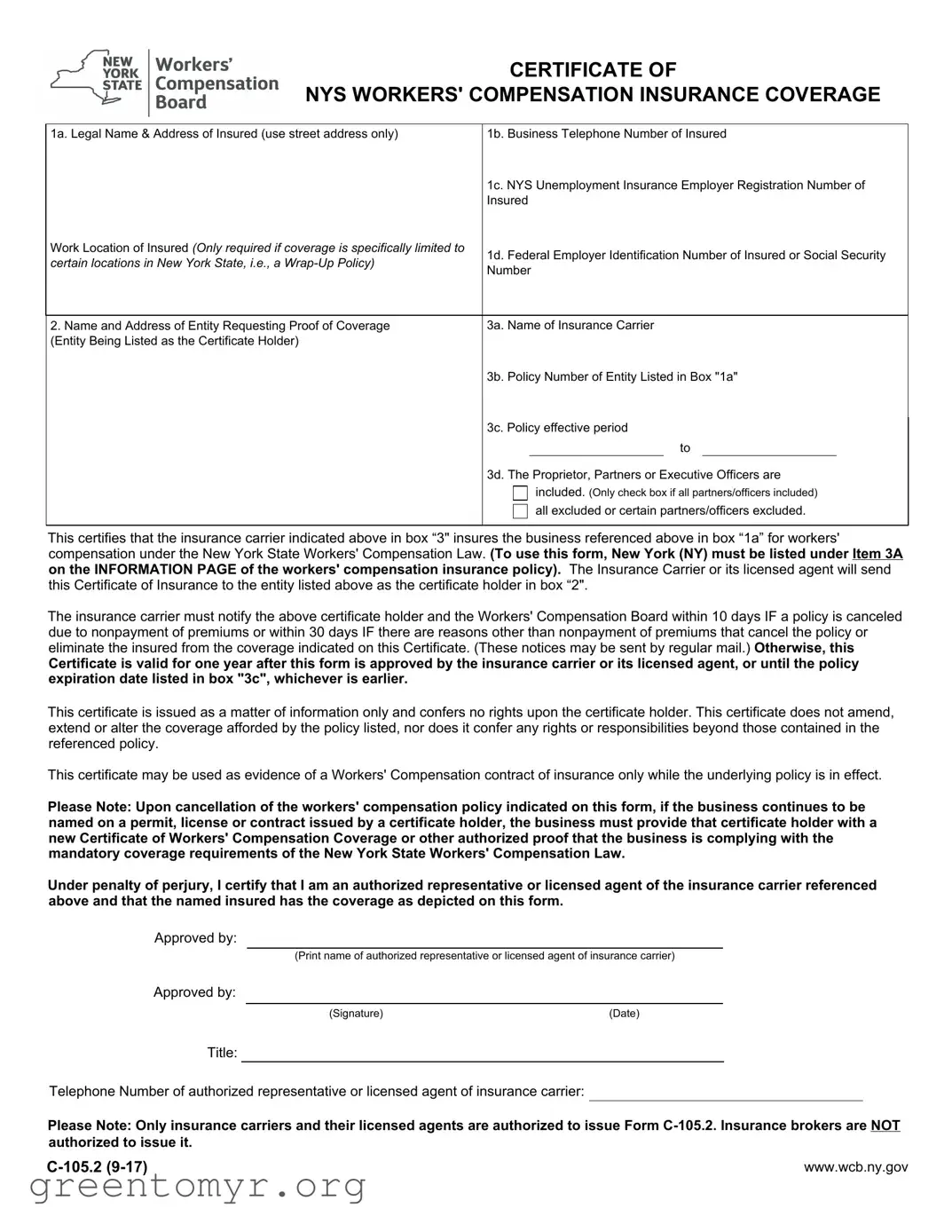
1a. Legal Name & Address of Insured (use street address only)

1b.

Business Telephone Number of Insured

 

1c. NYS Unemployment Insurance Employer Registration Number of

 

Insured

Work Location of Insured (Only required if coverage is specifically limited to

1d.

Federal Employer Identification Number of Insured or Social Security

certain locations in New York State, i.e., a Wrap-Up Policy)

Number

 

 

 

 

 

 

 

 

2. Name and Address of Entity Requesting Proof of Coverage

3a.

Name of Insurance Carrier

(Entity Being Listed as the Certificate Holder)

 

 

 

 

 

 

 

3b.

Policy Number of Entity Listed in Box "1a"

 

 

 

 

 

3c. Policy effective period

 

 

 

 

to

 

 

 

3d. The Proprietor, Partners or Executive Officers are

 

 

 

included. (Only check box if all partners/officers included)

 

 

 

all excluded or certain partners/officers excluded.

 

 

 

 

 

 

 

This certifies that the insurance carrier indicated above in box “3" insures the business referenced above in box “1a” for workers' compensation under the New York State Workers' Compensation Law. (To use this form, New York (NY) must be listed under Item 3A on the INFORMATION PAGE of the workers' compensation insurance policy). The Insurance Carrier or its licensed agent will send this Certificate of Insurance to the entity listed above as the certificate holder in box “2".

The insurance carrier must notify the above certificate holder and the Workers' Compensation Board within 10 days IF a policy is canceled due to nonpayment of premiums or within 30 days IF there are reasons other than nonpayment of premiums that cancel the policy or eliminate the insured from the coverage indicated on this Certificate. (These notices may be sent by regular mail.) Otherwise, this

Certificate is valid for one year after this form is approved by the insurance carrier or its licensed agent, or until the policy expiration date listed in box "3c", whichever is earlier.

This certificate is issued as a matter of information only and confers no rights upon the certificate holder. This certificate does not amend, extend or alter the coverage afforded by the policy listed, nor does it confer any rights or responsibilities beyond those contained in the referenced policy.

This certificate may be used as evidence of a Workers' Compensation contract of insurance only while the underlying policy is in effect.

Please Note: Upon cancellation of the workers' compensation policy indicated on this form, if the business continues to be named on a permit, license or contract issued by a certificate holder, the business must provide that certificate holder with a new Certificate of Workers' Compensation Coverage or other authorized proof that the business is complying with the mandatory coverage requirements of the New York State Workers' Compensation Law.

Under penalty of perjury, I certify that I am an authorized representative or licensed agent of the insurance carrier referenced above and that the named insured has the coverage as depicted on this form.

Approved by:

(Print name of authorized representative or licensed agent of insurance carrier)

Approved by:

(Signature)

(Date)

Title:

Telephone Number of authorized representative or licensed agent of insurance carrier:

Please Note: Only insurance carriers and their licensed agents are authorized to issue Form C-105.2. Insurance brokers are NOT authorized to issue it.

C-105.2 (9-17)

www.wcb.ny.gov

Workers' Compensation Law

Section 57. Restriction on issue of permits and the entering into contracts unless compensation is secured.

1.The head of a state or municipal department, board, commission or office authorized or required by law to issue any permit for or in connection with any work involving the employment of employees in a hazardous employment defined by this chapter, and notwithstanding any general or special statute requiring or authorizing the issue of such permits, shall not issue such permit unless proof duly subscribed by an insurance carrier is produced in a form satisfactory to the chair, that compensation for all employees has been secured as provided by this chapter. Nothing herein, however, shall be construed as creating any liability on the part of such state or municipal department, board, commission or office to pay any compensation to any such employee if so employed.

2.The head of a state or municipal department, board, commission or office authorized or required by law to enter into any contract for or in connection with any work involving the employment of employees in a hazardous employment defined by this chapter, notwithstanding any general or special statute requiring or authorizing any such contract, shall not enter into any such contract unless proof duly subscribed by an insurance carrier is produced in a form satisfactory to the chair, that compensation for all employees has been secured as provided by this chapter.

C-105.2 (9-17) REVERSE

File Breakdown

Fact Name Details
Purpose The C-105.2 form serves as a Certificate of New York State Workers' Compensation Insurance Coverage.
Insured Information It requires the legal name, address, and contact information of the insured business.
Insurance Carrier The form must include the name and policy number of the insurance carrier providing coverage.
Coverage Duration The policy effective period must be specified, indicating when coverage starts and ends.
Notification Requirement The insurance carrier must notify the certificate holder and the Workers' Compensation Board of policy cancellations within specific timeframes.
Validity This certificate is valid for one year or until the policy expiration date, whichever comes first.
Authorized Issuer Only licensed agents or insurance carriers can issue the C-105.2 form; brokers are not authorized.
Governing Law The form is governed by New York Workers' Compensation Law, specifically Section 57.

Guide to Using C 105 2

Filling out the C 105 2 form is an essential step in ensuring that your business complies with New York State's workers' compensation insurance requirements. This form serves as proof of coverage and is necessary for various permits and contracts. To complete it accurately, follow these detailed steps.

  1. In the first section, provide the legal name and address of the insured. Ensure that you only use the street address.
  2. Next, enter the business telephone number of the insured.
  3. Fill in the NYS Unemployment Insurance Employer Registration Number of the insured.
  4. If applicable, include the work location of the insured, particularly if the coverage is limited to specific locations in New York State.
  5. Provide the Federal Employer Identification Number or the Social Security Number of the insured.
  6. In the second section, write the name and address of the entity requesting proof of coverage.
  7. For the third section, enter the name of the insurance carrier that will be listed as the certificate holder.
  8. Next, provide the policy number associated with the entity listed in Box 1a.
  9. Indicate the policy effective period by filling in the start and end dates.
  10. Check the box if the proprietor, partners, or executive officers are included in the coverage. Only check if all partners or officers are included.
  11. Finally, ensure that an authorized representative or licensed agent of the insurance carrier prints their name, signs, and dates the form. Include their telephone number as well.

After completing these steps, the insurance carrier or its licensed agent will send the certificate to the entity listed as the certificate holder. It is important to keep this document safe, as it serves as proof of your compliance with the workers' compensation insurance law in New York State.

Get Answers on C 105 2

What is the C 105 2 form?

The C 105 2 form is a Certificate of New York State Workers' Compensation Insurance Coverage. It serves as proof that a business has the required workers' compensation insurance as mandated by New York State law.

Who needs to complete the C 105 2 form?

This form must be completed by insurance carriers or their licensed agents. It is not for use by insurance brokers. The insured business must also provide information such as its legal name, address, and other identifying details.

What information is required on the C 105 2 form?

The form requires several pieces of information, including:

  1. Legal name and address of the insured
  2. Business telephone number
  3. NYS Unemployment Insurance Employer Registration Number
  4. Federal Employer Identification Number or Social Security Number
  5. Name and address of the entity requesting proof of coverage
  6. Name of the insurance carrier
  7. Policy number and effective period
  8. Details regarding the inclusion or exclusion of proprietors, partners, or executive officers

How long is the C 105 2 form valid?

The certificate is valid for one year after it is approved by the insurance carrier or its licensed agent. It can also be valid until the policy expiration date, whichever comes first.

What happens if the insurance policy is canceled?

If the insurance policy is canceled, the insurance carrier must notify the certificate holder and the Workers' Compensation Board within specific time frames. They must notify within 10 days for nonpayment of premiums and within 30 days for other reasons.

Can the C 105 2 form be used as proof of insurance?

Yes, the C 105 2 form can be used as evidence of a workers' compensation contract of insurance while the underlying policy is active. However, it does not confer any rights beyond what is stated in the referenced policy.

Who receives the C 105 2 form?

The insurance carrier or its licensed agent sends the completed certificate to the entity listed as the certificate holder. This is the entity that requested proof of coverage.

What if the business continues to be named on a permit after policy cancellation?

If the business remains listed on a permit, license, or contract after the policy is canceled, it must provide a new Certificate of Workers' Compensation Coverage or other proof of compliance with coverage requirements.

Is there a penalty for not providing the C 105 2 form?

Yes, there are restrictions on issuing permits or entering contracts without proof of workers' compensation coverage. State or municipal departments cannot issue permits or contracts unless they receive satisfactory proof from an insurance carrier.

Who is authorized to issue the C 105 2 form?

Only insurance carriers and their licensed agents are authorized to issue the C 105 2 form. Insurance brokers do not have the authority to issue this certificate.

Common mistakes

Filling out the C 105 2 form can be a straightforward process, but many people make common mistakes that can lead to complications. One frequent error is not providing the legal name and address of the insured. It’s essential to use the correct street address, as any discrepancies can delay processing.

Another mistake involves the business telephone number of the insured. Omitting this information or entering an incorrect number can hinder communication between the insurance carrier and the certificate holder.

Many individuals also forget to include the NYS Unemployment Insurance Employer Registration Number. This number is vital for proper identification and ensures that the form is processed correctly.

In addition, some people mistakenly leave out the Federal Employer Identification Number or Social Security Number. This information is crucial for verifying the identity of the insured and must be accurate.

Another common error is failing to specify the work location of the insured when coverage is limited to certain locations. If this detail is necessary for the policy, it should not be overlooked.

When filling out the section for the insurance carrier, individuals sometimes misidentify the carrier or provide incomplete information. This can create confusion and delays in obtaining proof of coverage.

People often neglect to include the policy number of the entity listed. This number is critical for referencing the specific policy that provides coverage.

It is also important to accurately indicate the policy effective period. Failing to do so can lead to misunderstandings about the coverage duration.

Some individuals mistakenly check the box regarding the inclusion of partners or executive officers without ensuring that all necessary parties are indeed included. This can lead to complications if a claim arises.

Finally, many forget to have the form signed and dated by an authorized representative or licensed agent of the insurance carrier. Without a signature, the form may not be considered valid.

Documents used along the form

The C 105 2 form is an essential document in the realm of workers' compensation insurance in New York State. It serves as proof that a business has secured the necessary coverage for its employees. However, several other forms and documents often accompany this certificate, providing further clarity and compliance in various situations. Below is a brief overview of these related documents.

  • C-105.1: This is a similar certificate that provides proof of coverage for workers' compensation insurance. It is typically used for specific contractors or subcontractors who need to demonstrate their insurance status to clients or regulatory bodies.
  • C-105.3: This form is issued for businesses that have opted for a self-insured workers' compensation program. It certifies that the business has sufficient funds to cover potential claims without relying on traditional insurance.
  • DB-120: The Disability Benefits Law (DBL) certificate is required for businesses to show that they have secured disability benefits for their employees. This document is essential for compliance with state regulations regarding employee welfare.
  • DB-155: This is a similar document to the DB-120 but is specifically for self-insured employers. It serves as proof that the business has adequate resources to cover disability benefits for its employees.
  • WCB Form 1: This form is used to report workplace injuries or illnesses to the Workers' Compensation Board. It is crucial for initiating the claims process and ensuring that employees receive the benefits they are entitled to.
  • WCB Form 2: This document is often filed by employers to report any changes in the status of their workers' compensation insurance coverage. It helps keep the Workers' Compensation Board informed about the employer's compliance with insurance requirements.

Understanding these forms and their purposes is vital for businesses operating in New York State. Proper documentation not only ensures compliance with the law but also protects both employers and employees in the event of workplace incidents. Being proactive in securing and maintaining the necessary forms fosters a safer and more responsible work environment.

Similar forms

  • Certificate of Insurance (COI): Similar to the C 105 2 form, a Certificate of Insurance provides proof of coverage for various types of insurance, including general liability and auto insurance. It includes essential details such as the insured party's name, the insurance carrier, and the policy effective dates.
  • Form W-9: This form is used to provide taxpayer identification information to businesses or individuals who will be paying for services. Like the C 105 2, it ensures compliance with legal and tax requirements.
  • Proof of Coverage (POC): This document serves a similar purpose as the C 105 2 form by verifying that a business has the necessary insurance coverage. It is often required by clients or regulatory bodies.
  • Certificate of Good Standing: This certificate verifies that a business is legally registered and compliant with state regulations. It parallels the C 105 2 form in its role of confirming a business's legitimacy.
  • OSHA Compliance Certificate: This document demonstrates that a business adheres to safety regulations set by the Occupational Safety and Health Administration. Like the C 105 2, it is often required for contracts involving hazardous work.
  • Business License: A business license is a governmental authorization to operate. It is similar to the C 105 2 form in that it signifies compliance with local laws and regulations.
  • Surety Bond: This is a three-party agreement that guarantees the performance of a contractor. It is akin to the C 105 2 form in that it provides assurance to clients regarding a business's compliance and reliability.
  • Commercial Lease Agreement: This document outlines the terms of leasing commercial property. It may require proof of insurance, similar to the requirements associated with the C 105 2 form.
  • Subcontractor Agreement: This agreement defines the terms between a contractor and a subcontractor. Proof of insurance is often a prerequisite, echoing the compliance focus of the C 105 2 form.
  • Certificate of Liability Insurance: This certificate specifically verifies liability coverage for businesses. It parallels the C 105 2 form in its function of confirming that necessary insurance is in place.

Dos and Don'ts

When filling out the C 105 2 form, there are important guidelines to follow. Here’s a list of things you should and shouldn’t do:

  • Do use the legal name and street address of the insured in section 1a.
  • Do provide a valid business telephone number in section 1b.
  • Do include the NYS Unemployment Insurance Employer Registration Number if applicable.
  • Do check the box in section 3d only if all partners or officers are included.
  • Don't leave any required fields blank; this can delay the processing of your form.
  • Don't use a P.O. Box for the address; a street address is mandatory.
  • Don't submit the form without the authorized representative's signature and date.

Misconceptions

Understanding the C 105 2 form is essential for businesses in New York State. However, several misconceptions can lead to confusion. Here is a list of common misunderstandings about this form:

  • The C 105 2 form is a proof of insurance policy. This form is not an insurance policy itself; it serves as a certificate that verifies coverage under a specific workers' compensation policy.
  • Any entity can issue the C 105 2 form. Only licensed insurance carriers and their authorized agents can issue this form. Insurance brokers are not permitted to do so.
  • The certificate is valid indefinitely. The C 105 2 form is only valid for one year after approval or until the policy expiration date, whichever comes first.
  • This form guarantees coverage for all employees. The form does not automatically cover all employees; it depends on the specific details outlined in the policy.
  • Once issued, the C 105 2 form cannot be revoked. The insurance carrier must notify the certificate holder within a specific time frame if the policy is canceled or if coverage changes.
  • The C 105 2 form can be used as proof of coverage after policy cancellation. Once the policy is canceled, the form is no longer valid as proof of coverage.
  • All businesses need this form regardless of their operations. Only businesses with employees in hazardous employment as defined by New York law require this form.
  • The information on the C 105 2 form is not important. The details provided, such as the policy number and effective dates, are crucial for verifying coverage.
  • The C 105 2 form can be altered by the certificate holder. Any changes to the form must be made by the insurance carrier; the certificate holder cannot modify it.
  • The form is only necessary for state contracts. The C 105 2 form may be required for various permits and contracts, not just those issued by the state.

Being aware of these misconceptions can help ensure that businesses remain compliant with New York State Workers' Compensation Law and avoid potential issues related to coverage verification.

Key takeaways

When filling out and using the C 105 2 form, there are several important points to keep in mind:

  • Accurate Information: Ensure that all details, such as the legal name and address of the insured, are correct. This helps avoid potential issues with coverage verification.
  • Insurance Carrier Details: Provide the name and policy number of the insurance carrier. This information is crucial for the certificate holder to confirm coverage.
  • Notification Requirements: The insurance carrier must inform the certificate holder and the Workers' Compensation Board if the policy is canceled. This notification must occur within specific time frames depending on the reason for cancellation.
  • Validity Period: The certificate is valid for one year after approval or until the policy expiration date, whichever comes first. Keep track of these dates to ensure continuous coverage.
  • Authorized Issuers: Only licensed agents or insurance carriers can issue the C 105 2 form. Insurance brokers do not have this authority.
  • Compliance with Coverage Requirements: If the workers' compensation policy is canceled, the business must provide a new certificate or proof of compliance to any certificate holder if it remains named on a permit or contract.

By following these guidelines, businesses can effectively manage their workers' compensation insurance documentation and ensure compliance with New York State laws.