Content Navigation

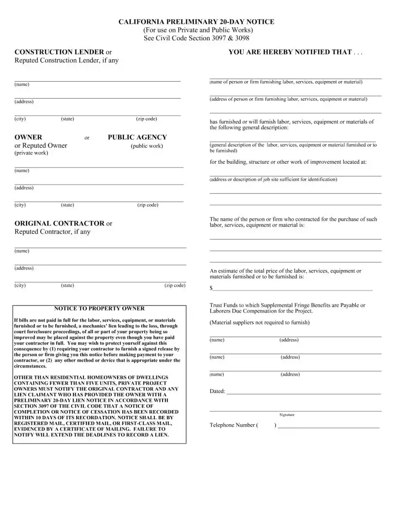
The California Preliminary 20-Day Notice form serves as a crucial document in the construction industry, particularly for those involved in private and public works. This notice is designed to inform property owners about the potential risks associated with unpaid labor, services, equipment, or materials provided for a construction project. It is essential for contractors, subcontractors, and suppliers to issue this notice to protect their rights and interests. The form includes key information such as the names and addresses of the construction lender, owner, and original contractor, as well as a detailed description of the work being performed. Additionally, it outlines the financial obligations related to the project and warns property owners that failure to pay could result in a mechanics' lien against their property, even if they have settled their accounts with the contractor. This notice also emphasizes the importance of communication between property owners and contractors, particularly regarding the recording of notices of completion or cessation. By understanding the implications of this form, all parties involved can take proactive measures to safeguard their investments and ensure compliance with California's construction laws.

California Preliminary 20 Day Notice Example

File Breakdown

Fact Name Description
Purpose The California Preliminary 20-Day Notice informs property owners and contractors about labor, services, equipment, or materials provided on a project.
Governing Laws This form is governed by California Civil Code Sections 3097 and 3098.
Deadline for Notice The notice must be sent within 20 days of the first labor or material provided to preserve lien rights.
Who Should Use It It is used by contractors, subcontractors, and suppliers involved in both private and public works projects.
Mechanics' Lien Warning Failure to pay may result in a mechanics' lien, risking property loss despite full payment to the contractor.
Notification Requirement Private project owners must notify the original contractor and lien claimants of a recorded Notice of Completion or Cessation within 10 days.
Mailing Methods Notifications can be sent via registered mail, certified mail, or first-class mail, confirmed by a certificate of mailing.
Content of the Notice The notice must include details like the description of work, parties involved, and the job site address.
Signature Requirement The notice must be signed by the person serving it, affirming the truth of the information provided.
Estimate of Costs The form includes a section for estimating the total price of the labor, services, or materials provided.

Guide to Using California Preliminary 20 Day Notice

Completing the California Preliminary 20-Day Notice form is essential for those involved in construction projects. This notice serves as a formal communication to property owners and other parties about the work being done and the potential for a mechanics' lien if payments are not made. Follow the steps below to accurately fill out the form.

  1. Identify the Construction Lender: Fill in the name and address of the construction lender or "Reputed Construction Lender" if applicable.
  2. Provide Owner Information: Enter the name and address of the property owner or "Reputed Owner" for private work.
  3. Public Agency Details: If applicable, include the name of the public agency associated with the project.
  4. Labor and Services Description: Write a general description of the labor, services, equipment, or materials provided or to be provided.
  5. Job Site Location: Specify the address or description of the job site sufficient for identification, including city, state, and zip code.
  6. Original Contractor Information: Fill in the name and address of the original contractor or "Reputed Contractor" if applicable.
  7. Contractor’s Purchaser Details: Provide the name and address of the person or firm who contracted for the labor, services, equipment, or materials.
  8. Estimate Total Price: Enter the estimated total price for the labor, services, equipment, or materials furnished or to be furnished.
  9. Trust Funds Information: If applicable, list the name of trust funds to which supplemental fringe benefits are payable or laborers due compensation for the project.
  10. Date and Signature: Sign and date the form, including your telephone number.
  11. Proof of Service Affidavit: Indicate how you served the notice, either by personal delivery or by registered/certified mail. Fill in the necessary details for each party served.

After completing the form, it is crucial to serve it to the relevant parties, ensuring they receive notice of the work being performed. This step is vital to protect your rights and interests in the project.

Get Answers on California Preliminary 20 Day Notice

What is the purpose of the California Preliminary 20-Day Notice?

The California Preliminary 20-Day Notice serves as a warning to property owners that a contractor, subcontractor, or supplier has provided or will provide labor, services, equipment, or materials for a construction project. It informs the owner that if payments are not made, a mechanics' lien could be placed against the property, even if the owner has paid the contractor in full.

Who is required to send a Preliminary 20-Day Notice?

Any contractor, subcontractor, laborer, or supplier who is providing materials or services for a construction project is required to send this notice. This includes both private and public works projects. It is particularly important for those who are not in direct contract with the property owner, as it helps to secure their right to payment.

When should the Preliminary 20-Day Notice be sent?

The notice should be sent within 20 days of the first day that labor, services, equipment, or materials are provided. Sending it promptly is crucial, as failing to do so may limit the ability to file a lien later on.

What information must be included in the notice?

The notice must contain several key pieces of information, including:

  • The name and address of the property owner.
  • The name and address of the contractor.
  • A description of the labor, services, equipment, or materials provided.
  • The location of the project.
  • The estimated total price for the work performed or to be performed.

What happens if a property owner does not receive the notice?

If a property owner does not receive the Preliminary 20-Day Notice, they may be unaware of potential claims against their property. This could lead to financial liability if a lien is filed later. It is in the owner’s best interest to ensure they receive this notice to protect themselves against unexpected claims.

How can property owners protect themselves after receiving a notice?

Property owners can take several steps to protect themselves, including:

  1. Requiring the contractor to provide a signed release from any subcontractors or suppliers before making payments.
  2. Keeping detailed records of all payments made to contractors and subcontractors.
  3. Consulting with a legal professional for advice on how to manage potential liens.

What is the consequence of failing to send a notice?

If a contractor or supplier fails to send the Preliminary 20-Day Notice within the required time frame, they may lose their right to file a mechanics' lien. This means they could miss out on recovering payment for their work, even if they have provided valuable services or materials.

How does the notice relate to mechanics' liens?

The Preliminary 20-Day Notice is a critical step in the mechanics' lien process. It establishes the right of the contractor or supplier to file a lien if they do not receive payment. By sending this notice, they are formally notifying the property owner of their involvement in the project and their potential claim to payment.

Can the notice be sent electronically?

Currently, the Preliminary 20-Day Notice must be sent in writing, either by personal delivery or through registered or certified mail. Electronic notices are not recognized as valid under California law, so it is important to follow the proper procedures to ensure the notice is legally effective.

Common mistakes

Filling out the California Preliminary 20-Day Notice form can be a straightforward process, but many individuals make common mistakes that can lead to complications down the line. One frequent error is failing to provide complete and accurate information about the parties involved. This includes the names and addresses of the construction lender, owner, and contractor. When this information is incomplete or incorrect, it can create confusion and may hinder the enforcement of rights under the law.

Another mistake often made is neglecting to describe the labor, services, equipment, or materials in sufficient detail. The description should be clear and specific, allowing anyone reading the notice to understand exactly what work has been performed or will be performed. A vague or overly broad description can lead to disputes and may weaken the effectiveness of the notice.

People sometimes overlook the importance of including the correct job site address. The address provided must be sufficient for identification of the property in question. If the address is incorrect or insufficient, it could result in the notice being deemed invalid. This could prevent individuals from securing their rights to payment and protection under the mechanics' lien laws.

Additionally, many individuals fail to notify the original contractor and any lien claimant of a recorded Notice of Completion or Notice of Cessation within the required timeframe. This notification must be made within ten days of recordation and should be sent via registered, certified, or first-class mail. Not adhering to this requirement can extend deadlines for recording a lien, potentially jeopardizing the ability to enforce payment rights.

Lastly, individuals often forget to sign the form or provide their contact information. A signature is a critical component of the notice, as it verifies that the information provided is accurate and complete. Without a signature, the notice may not be considered valid, leaving the individual without the protections intended by the law. Ensuring that all parts of the form are properly completed can help safeguard rights and streamline the process.

Documents used along the form

The California Preliminary 20 Day Notice form is a crucial document in construction projects, ensuring that all parties involved are informed about the potential for a mechanics' lien. In addition to this form, several other documents are commonly used in conjunction with it to facilitate communication and protect the rights of those involved in the construction process. Below is a list of related forms and documents.

  • Mechanics' Lien: This document is filed by a contractor or supplier when payment for labor or materials is not received. It creates a legal claim against the property, allowing the claimant to seek payment through foreclosure if necessary.
  • Notice of Completion: This form is filed by the property owner to officially declare that the construction project has been completed. It can help limit the time frame for lien claims.
  • Notice of Cessation: This document is filed when a construction project is halted for a period of time. It serves to notify parties involved that work has stopped, which can also impact lien rights.
  • Release of Lien: After payment has been made, this document is provided by the lien claimant to formally release their claim against the property, ensuring that the property is free of any encumbrances.
  • Contractor's Affidavit: This affidavit is often required by lenders or property owners to verify that all subcontractors and suppliers have been paid, reducing the risk of future liens.
  • Subcontractor's Agreement: This document outlines the terms between a general contractor and a subcontractor, detailing the scope of work, payment terms, and responsibilities.
  • Change Order: This form is used to document any changes to the original construction contract, including alterations in the scope of work, budget, or timeline.
  • Payment Application: This document is submitted by contractors to request payment for work completed, often detailing the progress and costs associated with the project.
  • Bid Proposal: This document is submitted by contractors to outline their offer for a construction project, including costs, timelines, and scope of work.
  • Certificate of Insurance: This document provides proof of insurance coverage for contractors, protecting both the contractor and the property owner from potential liabilities.

Each of these documents plays a significant role in the construction process, helping to clarify responsibilities, protect rights, and facilitate communication among all parties involved. Understanding their purposes can aid in navigating the complexities of construction projects in California.

Similar forms

  • California Notice of Completion: This document serves to officially declare that a construction project has been completed. Similar to the Preliminary 20-Day Notice, it informs parties involved in the project, including contractors and subcontractors, about the project's status and can affect lien rights.
  • California Notice of Cessation: This notice is filed when a construction project has stopped for a specified period. Like the Preliminary 20-Day Notice, it informs parties of changes in the project timeline, which can impact their rights to file a mechanics' lien.
  • Mechanics' Lien: A mechanics' lien is a legal claim against a property for unpaid work or materials provided. It is similar to the Preliminary 20-Day Notice in that both documents aim to protect the rights of contractors and suppliers by notifying property owners of potential claims.
  • Preliminary Notice in Other States: Many states have their own versions of preliminary notices, which serve a similar purpose of notifying property owners about potential liens. These documents share common elements, such as the requirement to inform property owners of unpaid work or materials.
  • Contractor's Release of Lien Rights: This document is used by contractors to waive their right to file a lien against a property once they have been paid. It is similar to the Preliminary 20-Day Notice in that it addresses the financial relationship between contractors and property owners.
  • Subcontractor's Notice of Intent to Lien: This notice is sent by subcontractors to inform property owners of their intent to file a lien if payment is not received. Like the Preliminary 20-Day Notice, it serves as a warning to property owners about the potential for a lien.
  • Notice of Non-Payment: This document is issued when a contractor or supplier has not received payment for services rendered. It is similar to the Preliminary 20-Day Notice as it alerts property owners to financial disputes that may lead to liens.
  • Construction Contract: A construction contract outlines the terms and conditions between parties involved in a construction project. While it serves a different purpose, it shares similarities with the Preliminary 20-Day Notice in that it establishes the rights and responsibilities of those involved in the project.

Dos and Don'ts

When filling out the California Preliminary 20 Day Notice form, it is essential to approach the task with care. This document serves a critical purpose in construction and property management, ensuring that all parties involved are informed about labor, services, equipment, or materials being provided. Below are five important do's and don'ts to consider.

  • Do ensure that all names and addresses are accurate. Incorrect information can lead to complications.
  • Do provide a clear and detailed description of the labor, services, equipment, or materials. Clarity helps prevent misunderstandings.
  • Do keep a copy of the completed notice for your records. Documentation is vital for any future disputes.
  • Do send the notice promptly. Timeliness is crucial in protecting your rights under the law.
  • Do consult with a legal professional if you have questions about the process. Seeking guidance can help you avoid mistakes.
  • Don't neglect to notify the original contractor and any lien claimant within the required time frame. Failure to do so can extend lien deadlines.
  • Don't use vague language in your description. Specificity is necessary to ensure that all parties understand the scope of work.
  • Don't forget to sign and date the form. An unsigned notice may not be considered valid.
  • Don't assume that verbal communication is sufficient. Always provide written notice to protect your interests.
  • Don't overlook the importance of proof of service. Documenting how and when you delivered the notice is crucial.

By following these guidelines, you can help ensure that your Preliminary 20 Day Notice is completed correctly and serves its intended purpose. Being diligent and informed will protect your rights and interests in the construction process.

Misconceptions

  • Misconception 1: The Preliminary 20-Day Notice is only for residential projects.
  • This form applies to both private and public works, not just residential projects. It is essential for any construction work that involves labor, services, or materials.

  • Misconception 2: Subcontractors do not need to send this notice.
  • Subcontractors are often required to send the Preliminary 20-Day Notice to protect their right to file a mechanics' lien. It serves as a warning to property owners about potential claims.

  • Misconception 3: Sending the notice guarantees payment.
  • While the notice provides legal protection, it does not guarantee that payment will be received. It simply establishes a claim to the property in case of non-payment.

  • Misconception 4: Property owners are automatically protected from liens if they pay their contractors.
  • Property owners can still face liens even if they have paid their contractors in full. The notice informs them of this risk and suggests ways to mitigate it.

  • Misconception 5: The notice must be sent before any work begins.
  • The notice should ideally be sent within 20 days of starting work or delivering materials. However, it can still be sent afterward to protect rights.

  • Misconception 6: There is no penalty for failing to send the notice.
  • Failure to send the notice can result in losing the right to file a lien, which can have serious financial consequences for contractors and subcontractors.

  • Misconception 7: Only the original contractor needs to be notified.
  • All parties involved, including subcontractors and suppliers, should be notified. This ensures everyone is aware of their rights and obligations.

  • Misconception 8: The notice is a complicated legal document.
  • The Preliminary 20-Day Notice is straightforward and designed for easy completion. It requires basic information about the project and the parties involved.

  • Misconception 9: Sending the notice is optional.
  • For those involved in construction, sending the notice is a crucial step to protect their rights. It is not merely a formality but a necessary action in the construction process.

Key takeaways

When filling out and using the California Preliminary 20 Day Notice form, it is essential to keep the following key takeaways in mind:

  • Purpose of the Notice: This form serves to inform property owners and other parties that labor, services, equipment, or materials have been or will be provided for a construction project. It helps protect the rights of those supplying these resources.
  • Timeliness: The notice must be sent within 20 days of providing labor or materials. Sending it promptly ensures that the rights to file a mechanics' lien are preserved.
  • Notification Requirements: If you are a private project owner, you must notify the original contractor and any lien claimant who has provided a Preliminary 20-Day Notice if a Notice of Completion or Notice of Cessation is recorded. This notification must occur within 10 days and can be done through registered, certified, or first-class mail.
  • Consequences of Non-Payment: Property owners should be aware that failure to pay for services or materials can lead to a mechanics' lien against their property, even if they have paid their contractor in full. It is advisable to require proof of payment from contractors before making any payments.