Content Navigation

The Chicago Title Waiver Format form serves as a crucial instrument in the construction and real estate industries, particularly in the state of Illinois. This document is designed to protect property owners from potential liens that could arise from unpaid labor or materials supplied during a construction project. At its core, the form facilitates a waiver of lien, wherein the undersigned contractor acknowledges receipt of payment and relinquishes any claims against the property for work completed up to a specified date. Key components of the form include the identification of the parties involved, the description of the premises, and the total amount of the contract, including any extras such as change orders. Additionally, the contractor must provide an affidavit, affirming the accuracy of the information presented and declaring that no other claims or contracts exist that could jeopardize the validity of the waivers. This process not only ensures transparency between contractors and property owners but also fosters trust and clarity in financial transactions related to construction projects. Understanding the nuances of this form is essential for anyone engaged in the construction industry or property management, as it plays a vital role in safeguarding the interests of all parties involved.

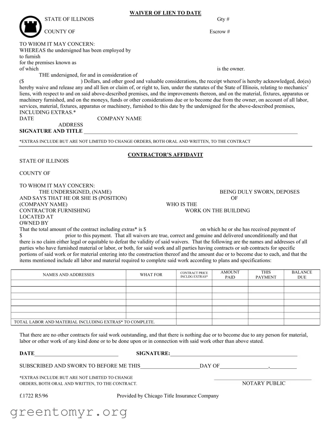
Chicago Title Waiver Format Example

COMPANY NAME

WAIVER OF LIEN TO DATE

 

S STATE OF ILLINOIS

Gty #

COUNTY OF

Escrow #

TO WHOM IT MAY CONCERN:

 

WHEREAS the undersigned has been employed by

 

to furnish

 

for the premises known as

 

of which

is the owner.

THE undersigned, for and in consideration of

($) Dollars, and other good and valuable considerations, the receipt whereof is hereby acknowledged, do(es) hereby waive and release any and all lien or claim of, or right to, lien, under the statutes of the State of Illinois, relating to mechanics’ liens, with respect to and on said above-described premises, and the improvements thereon, and on the material, fixtures, apparatus or machinery furnished, and on the moneys, funds or other considerations due or to become due from the owner, on account of all labor, services, material, fixtures, apparatus or machinery, furnished to this date by the undersigned for the above-described premises,

INCLUDING EXTRAS.* DATE

ADDRESS

SIGNATURE AND TITLE _______________________________________________________________________________

*EXTRAS INCLUDE BUT ARE NOT LIMITED TO CHANGE ORDERS, BOTH ORAL AND WRITTEN, TO THE CONTRACT

CONTRACTOR’S AFFIDAVIT

STATE OF ILLINOIS

COUNTY OF

 

TO WHOM IT MAY CONCERN:

 

THE UNDERSIGNED, (NAME)

BEING DULY SWORN, DEPOSES

AND SAYS THAT HE OR SHE IS (POSITION)

OF

(COMPANY NAME)

WHO IS THE

CONTRACTOR FURNISHING

WORK ON THE BUILDING

LOCATED AT

 

OWNED BY

 

That the total amount of the contract including extras* is $

on which he or she has received payment of

$prior to this payment. That all waivers are true, correct and genuine and delivered unconditionally and that there is no claim either legal or equitable to defeat the validity of said waivers. That the following are the names and addresses of all parties who have furnished material or labor, or both, for said work and all parties having contracts or sub contracts for specific portions of said work or for material entering into the construction thereof and the amount due or to become due to each, and that the items mentioned include all labor and material required to complete said work according to plans and specifications:

NAMES AND ADDRESSES

WHAT FOR

CONTRACT PRICE INCLDG EXTRAS*

AMOUNT

PAID

THIS

PAYMENT

BALANCE

DUE

TOTAL LABOR AND MATERIAL INCLUDING EXTRAS* TO COMPLETE.

That there are no other contracts for said work outstanding, and that there is nothing due or to become due to any person for material, labor or other work of any kind done or to be done upon or in connection with said work other than above stated.

DATE_______________________________

SIGNATURE:_______________________________________________

SUBSCRIBED AND SWORN TO BEFORE ME THIS______________________DAY OF__________________,__________

*EXTRAS INCLUDE BUT ARE NOT LIMITED TO CHANGE

 

_____________________________________________

ORDERS, BOTH ORAL AND WRITTEN, TO THE CONTRACT.

NOTARY PUBLIC

f.1722 R5/96

Provided by Chicago Title Insurance Company

File Breakdown

Fact Name Details
Governing Law The Chicago Title Waiver Format form is governed by the statutes of the State of Illinois, specifically relating to mechanics’ liens.
Purpose of the Form This form serves to waive and release any lien or claim against the property for labor, materials, or services provided by the undersigned.
Inclusion of Extras The form includes provisions for extras, which encompass change orders, both oral and written, related to the contract.
Affidavit Requirement The form requires the contractor to provide an affidavit confirming the accuracy of the payment details and the absence of other outstanding contracts for the work.

Guide to Using Chicago Title Waiver Format

Filling out the Chicago Title Waiver Format form requires careful attention to detail. This form serves an important purpose in documenting the waiver of lien rights. Follow these steps to ensure the form is completed accurately.

  1. Obtain the form: Ensure you have the most recent version of the Chicago Title Waiver Format form.
  2. Company Name: Fill in the name of the company providing the waiver at the top of the form.
  3. Date: Enter the date of the waiver in the designated space.
  4. State and County: Indicate the state of Illinois and the relevant county.
  5. Escrow Number: Enter the escrow number associated with the transaction.
  6. To Whom It May Concern: Address the form appropriately, usually to the party requesting the waiver.
  7. Owner Information: Provide the name of the owner of the premises and the address of the property.
  8. Consideration Amount: Specify the dollar amount being acknowledged for the waiver.
  9. Signature and Title: The undersigned must sign and include their title in the designated area.
  10. Contractor’s Affidavit Section: Complete this section with the name, position, and company name of the contractor.
  11. Contract Details: Fill in the total amount of the contract, including any extras, and the amount received prior to this payment.
  12. List of Parties: Provide names and addresses of all parties who have furnished labor or materials, along with amounts due or to become due.
  13. Date and Signature: Include the date, sign the affidavit, and have it notarized.

Once the form is completed, it should be reviewed for accuracy. After confirming all information is correct, submit it to the appropriate parties as required. This will help ensure that the waiver is effective and recognized legally.

Get Answers on Chicago Title Waiver Format

What is the purpose of the Chicago Title Waiver Format form?

The Chicago Title Waiver Format form is used to waive any lien rights that a contractor or supplier may have on a property. By signing this document, the undersigned acknowledges receipt of payment and relinquishes any claims to a lien under Illinois mechanics' lien statutes. This helps protect property owners from potential legal claims related to unpaid work or materials.

Who needs to sign the Chicago Title Waiver Format form?

The form must be signed by the contractor or supplier who has provided labor, materials, or services for a specific project. This includes all parties involved in the construction or improvement of the property. It ensures that all contributors acknowledge their payment status and waive any future claims against the property.

What information is required to complete the form?

To complete the form, the following information is necessary:

  1. Company name of the contractor or supplier.
  2. Property address where the work was performed.
  3. Total contract amount, including extras.
  4. Amount received prior to this payment.
  5. Names and addresses of all parties who have provided labor or materials.
  6. Details of the contract price, amounts paid, and balances due.

This information ensures clarity and transparency regarding payments and obligations.

What are "extras" in the context of this form?

“Extras” refer to additional work or materials that were not originally included in the contract. This can include change orders that are either oral or written. It is essential to account for these extras in the total contract amount to avoid any disputes regarding payment.

Is notarization required for the form?

Yes, notarization is required for the Chicago Title Waiver Format form. The signature of the individual completing the form must be witnessed by a notary public. This adds a layer of authenticity and legal validity to the document, ensuring that all statements made are verified.

How does this form protect property owners?

This form protects property owners by ensuring that all contractors and suppliers waive their lien rights upon receipt of payment. By obtaining signed waivers, property owners can avoid potential legal claims that could arise from unpaid labor or materials. It provides peace of mind and reduces the risk of future disputes.

What happens if the form is not completed properly?

If the Chicago Title Waiver Format form is not completed correctly, it may lead to disputes over payments or claims against the property. Inaccurate information or missing signatures can invalidate the waiver, leaving the property owner vulnerable to potential lien claims. It is crucial to ensure all sections are filled out accurately and that notarization is obtained.

Common mistakes

Filling out the Chicago Title Waiver Format form can be straightforward, but there are common mistakes that individuals often make. One significant error is neglecting to include the company name at the top of the form. This detail is essential for identifying the party providing the waiver. Omitting it can lead to confusion regarding the source of the waiver.

Another frequent mistake is failing to specify the date correctly. The date should reflect when the waiver is executed. An incorrect date can create complications in determining the timeline of rights and obligations under Illinois law.

Individuals sometimes forget to fill in the owner's name and the description of the premises. Without this information, the waiver lacks clarity and may not be enforceable. It is crucial to provide accurate details to avoid potential disputes.

Additionally, people often overlook the consideration amount in the waiver. This figure should reflect the monetary value exchanged for the waiver. Leaving this blank or entering an incorrect amount can invalidate the waiver.

Another common error is not signing the form or failing to include the title of the person signing. The signature is a declaration of authority and intent, and without it, the waiver may not be legally binding.

Some individuals also forget to provide the contractor's affidavit section. This part is critical for verifying that all necessary information regarding payments and contracts is disclosed. Missing this can lead to misunderstandings about the financial status of the project.

People may also neglect to list all parties who have provided labor or materials. This omission can create liability issues later on, as it may appear that other claims could be valid despite the waiver.

Another mistake is failing to acknowledge extras in the contract. Extras include change orders that may affect the total contract price. Not accounting for these can lead to disputes over what work was agreed upon and paid for.

In some cases, individuals misinterpret the requirement to state whether there are any outstanding contracts. Not explicitly declaring that there are no other contracts can raise questions about the completeness of the waiver.

Finally, individuals may overlook the need for a notary public signature. This step is often required to ensure that the document is executed properly and adds an additional layer of verification. Failing to have the document notarized can render it less credible.

Documents used along the form

The Chicago Title Waiver Format form is essential for ensuring that all parties involved in a construction project are clear about their rights and obligations regarding liens. However, it is often accompanied by several other important documents. Each of these documents plays a crucial role in the overall process and helps protect the interests of all parties involved.

  • Contractor’s Affidavit: This document confirms that the contractor has received payment for work performed and lists all parties who have provided labor or materials. It verifies that there are no outstanding claims against the project.
  • Notice of Intent to Lien: This is a formal notice sent to the property owner to inform them that a lien may be filed if payment is not received. It serves as a warning and can motivate timely payment.
  • Mechanics Lien Claim: Should payment disputes arise, this document allows contractors or suppliers to claim a lien against the property. It secures their right to payment by encumbering the property until the debt is settled.
  • Release of Lien: After payment is made, this document releases the lien claim against the property. It is crucial for clearing the title and ensuring that the property can be sold or refinanced without encumbrances.
  • Change Order: This document outlines any changes to the original contract, including adjustments in price or scope of work. It must be agreed upon by all parties to ensure clarity and avoid disputes.
  • Final Waiver of Lien: This is the last waiver that confirms all payments have been received and releases any further claims against the property. It is essential for closing out a project and protecting the owner from future claims.

Understanding these documents and their purposes is vital for anyone involved in construction projects. Proper use of these forms helps prevent disputes and ensures that all parties are protected under the law.

Similar forms

The Chicago Title Waiver Format form is a crucial document in real estate transactions, particularly in Illinois. It serves to release any claims or liens that a contractor or subcontractor may have on a property. Several other documents serve similar purposes in various contexts. Below are ten documents that share similarities with the Chicago Title Waiver Format form:

  • Mechanics Lien Waiver: This document is used by contractors to waive their right to file a mechanics lien against a property after receiving payment. Like the Chicago Title Waiver, it protects property owners from future claims.
  • Partial Lien Waiver: Similar to the full waiver, this document allows a contractor to waive their lien rights for a specific portion of the project. It ensures that the property owner is protected for the amount already paid while still allowing for future claims on unpaid balances.
  • Final Lien Waiver: This document is issued at the end of a project, confirming that all payments have been made and that the contractor relinquishes any further lien rights. It serves as a final assurance to property owners.
  • Subcontractor Waiver: Subcontractors use this form to waive their lien rights against the property owner, similar to how the Chicago Title Waiver functions for general contractors. This helps ensure that property owners are not liable for unpaid subcontractor claims.
  • General Release Form: This document releases one party from any future claims or liabilities related to a specific agreement. Like the Chicago Title Waiver, it aims to protect the interests of the party receiving the release.
  • Affidavit of Payment: This affidavit serves to confirm that all parties involved in a construction project have been paid. It is often used in conjunction with waivers to ensure that no claims will arise from unpaid parties.
  • Construction Contract: While not a waiver, a construction contract outlines the terms of the agreement between the owner and contractor. It often includes clauses that reference lien waivers to clarify payment expectations.
  • Notice of Intent to Lien: This document notifies property owners of a contractor's intent to file a lien if payment is not made. While it serves a different function, it is often part of the same process that the Chicago Title Waiver addresses.
  • Escrow Agreement: This document involves a neutral third party holding funds during a transaction. It often includes provisions for lien waivers to ensure that funds are released only when all parties are satisfied.
  • Certificate of Payment: This certificate confirms that a contractor has been paid for their work. It functions similarly to the waivers by providing assurance to property owners that no further claims will arise from the paid work.

Each of these documents plays a vital role in protecting the rights of property owners and contractors alike, ensuring that all parties are clear about their obligations and rights regarding payments and claims.

Dos and Don'ts

When filling out the Chicago Title Waiver Format form, it is essential to be thorough and accurate. Here’s a list of things you should and shouldn't do:

  • Do double-check all names and addresses for accuracy.
  • Do clearly state the total contract amount, including any extras.
  • Do ensure that all signatures are legible and properly dated.
  • Do include a complete list of all parties involved in the project.
  • Don't leave any sections blank; fill in all required information.
  • Don't forget to have the form notarized to validate the signatures.

Misconceptions

There are several misconceptions surrounding the Chicago Title Waiver Format form. Understanding these can help clarify its purpose and use.

  • The form is only for contractors. While the form is primarily used by contractors, it can also be utilized by subcontractors and suppliers who have provided labor or materials for a project.
  • Filing the waiver eliminates all claims. The waiver specifically pertains to mechanics' liens. It does not eliminate other types of claims or legal rights that may exist outside the scope of the waiver.
  • It is unnecessary if payment has been received. Even if payment has been received, the waiver serves to formally release any potential lien rights and protect the property owner from future claims.
  • The waiver must be notarized to be valid. While notarization adds an extra layer of authenticity, the essential validity of the waiver does not solely depend on notarization. It must be properly executed and delivered.
  • All parties must sign the waiver. Only the party issuing the waiver is required to sign. However, it is advisable for all parties involved to be aware of the waiver to prevent misunderstandings.
  • The waiver is a one-time document. The waiver is specific to the date and amount stated. If additional work or changes occur, a new waiver may be required to cover those extras.

Key takeaways

Here are some key takeaways about filling out and using the Chicago Title Waiver Format form:

  • The form is used to waive any lien rights under Illinois law for work performed on a property.
  • Ensure you include the correct company name and address at the top of the form.
  • Clearly state the amount of money being received for the work, as this is crucial for the waiver.
  • List all labor and materials provided, including any extras, to ensure full transparency.
  • Make sure to sign and date the form, as this confirms your agreement to the waiver.
  • Include the names and addresses of all parties involved in the work to avoid any disputes later.
  • It is important to have the form notarized to validate the document legally.
  • Keep a copy of the completed waiver for your records, as it may be needed for future reference.