Content Navigation

The Worldwide ERC® Broker’s Market Analysis and Strategy Report serves as an essential tool for real estate brokers aiming to assess the condition, competition, and marketability of a property. This comprehensive form guides brokers in estimating the Most Likely Sales Price (MLSP) based on an analysis of the property’s current state and its potential within the market. It is important to note that this report is not a home inspection or an appraisal; rather, it is a comparative market analysis that does not adhere to the Uniform Standards of Professional Appraisal Practice. The form requires preparers to be mindful of any state-specific disclosure requirements, ensuring that all necessary information is included. Brokers must follow procedural guidelines for contacting homeowners, inspecting properties, and submitting reports, as outlined by the requesting company. The analysis focuses on various factors, including property improvements, ownership type, and neighborhood characteristics, while also addressing any issues that may impact the property’s insurability and marketability. By providing a detailed overview of both the subject property and comparable listings, this form equips brokers with the insights needed to navigate the complexities of the real estate market effectively.

Erc Broker Market Analysis Example

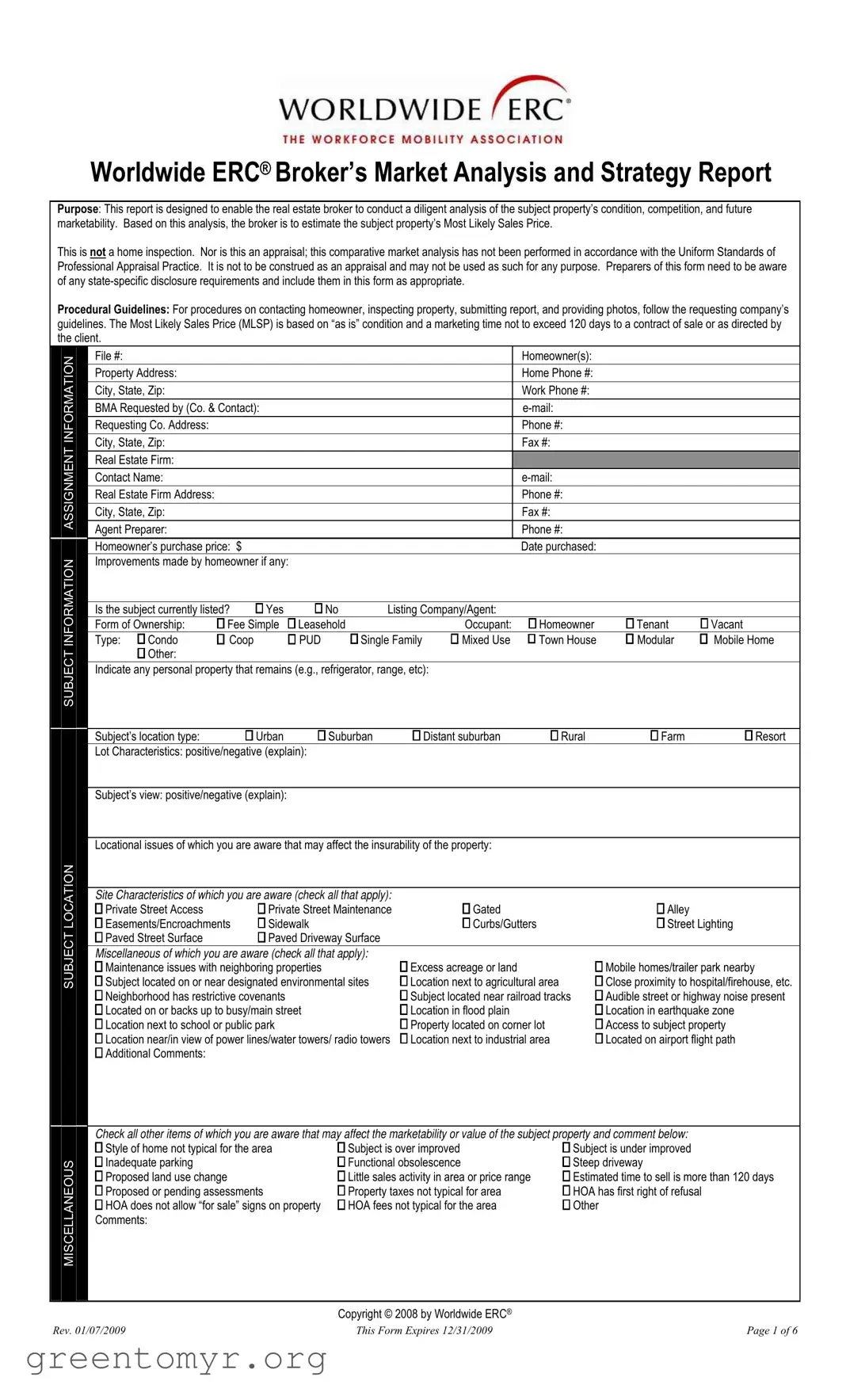
Worldwide ERC® Broker’s Market Analysis and Strategy Report

Purpose: This report is designed to enable the real estate broker to conduct a diligent analysis of the subject property’s condition, competition, and future marketability. Based on this analysis, the broker is to estimate the subject property’s Most Likely Sales Price.

This is not a home inspection. Nor is this an appraisal; this comparative market analysis has not been performed in accordance with the Uniform Standards of Professional Appraisal Practice. It is not to be construed as an appraisal and may not be used as such for any purpose. Preparers of this form need to be aware of any state-specific disclosure requirements and include them in this form as appropriate.

Procedural Guidelines: For procedures on contacting homeowner, inspecting property, submitting report, and providing photos, follow the requesting company’s guidelines. The Most Likely Sales Price (MLSP) is based on “as is” condition and a marketing time not to exceed 120 days to a contract of sale or as directed by the client.

 

INFORMATION

 

File #:

 

 

 

 

 

 

 

Homeowner(s):

 

 

 

 

Property Address:

 

 

 

 

 

 

 

Home Phone #:

 

 

 

 

City, State, Zip:

 

 

 

 

 

 

 

Work Phone #:

 

 

 

 

 

 

 

 

 

 

 

 

 

 

 

BMA Requested by (Co. & Contact):

 

 

 

 

 

e-mail:

 

 

 

 

Requesting Co. Address:

 

 

 

 

 

 

 

Phone #:

 

 

 

 

City, State, Zip:

 

 

 

 

 

 

 

Fax #:

 

 

 

ASSIGNMENT

 

 

 

 

 

 

 

 

 

 

 

 

 

 

 

 

 

 

 

 

 

 

 

 

 

Real Estate Firm:

 

 

 

 

 

 

 

 

 

 

 

 

Contact Name:

 

 

 

 

 

 

 

e-mail:

 

 

 

 

Real Estate Firm Address:

 

 

 

 

 

 

 

Phone #:

 

 

 

 

 

 

 

 

 

 

 

 

 

 

 

 

 

City, State, Zip:

 

 

 

 

 

 

 

Fax #:

 

 

 

 

Agent Preparer:

 

 

 

 

 

 

 

Phone #:

 

 

 

 

 

 

 

 

 

 

 

 

 

 

 

 

 

 

 

Homeowner’s purchase price: $

 

 

 

 

 

 

Date purchased:

 

 

 

INFORMATION

 

 

Improvements made by homeowner if any:

 

 

 

 

 

 

 

 

 

 

 

 

 

 

 

 

 

 

 

 

 

 

Is the subject currently listed?

□ Yes

□ No

 

Listing Company/Agent:

 

 

 

 

 

 

 

Form of Ownership:

□ Fee Simple

□ Leasehold

 

 

Occupant:

 

□ Homeowner

□ Tenant

□ Vacant

 

 

 

Type: □ Condo

Coop

PUD

Single Family

Mixed Use

 

Town House

Modular

Mobile Home

 

SUBJECT

 

 

□ Other:

 

 

 

 

 

 

 

 

 

 

 

 

 

Indicate any personal property that remains (e.g., refrigerator, range, etc):

 

 

 

 

 

 

 

 

 

 

 

 

 

 

 

 

 

 

 

 

 

 

 

 

 

 

 

 

 

 

 

 

 

 

 

 

Subject’s location type:

 

Urban

Suburban

Distant suburban

 

Rural

Farm

Resort

 

 

 

 

Lot Characteristics: positive/negative (explain):

 

 

 

 

 

 

 

 

 

 

 

 

 

 

 

 

 

 

 

 

 

 

 

 

Subject’s view: positive/negative (explain):

 

 

 

 

 

 

 

 

Locational issues OF WHICH you are aware that may affect the insurability of the property:

LOCATION

Site Characteristics of which you are aware (check all that apply):

 

 

Private Street Access

Private Street Maintenance

Gated

Alley

Easements/Encroachments

Sidewalk

Curbs/Gutters

Street Lighting

SUBJECT

Paved Street Surface

Paved Driveway Surface

 

 

Miscellaneous of which you are aware (check all that apply):

 

 

Maintenance issues with neighboring properties

Excess acreage or land

Mobile homes/trailer park nearby

Subject located on or near designated environmental sites

Location next to agricultural area

Close proximity to hospital/firehouse, etc.

 

Neighborhood has restrictive covenants

Subject located near railroad tracks

Audible street or highway noise present

 

Located on or backs up to busy/main street

Location in flood plain

Location in earthquake zone

 

Location next to school or public park

Property located on corner lot

Access to subject property

 

Location near/in view of power lines/water towers/ radio towers

Location next to industrial area

Located on airport flight path

 

Additional Comments:

 

 

 

Check all other items of which you are aware that may affect the marketability or value of the subject property and comment below:

 

Style of home not typical for the area

Subject is over improved

Subject is under improved

MISCELLANEOUS

Inadequate parking

Functional obsolescence

Steep driveway

Proposed land use change

Little sales activity in area or price range

Estimated time to sell is more than 120 days

Proposed or pending assessments

Property taxes not typical for area

HOA has first right of refusal

HOA does not allow “for sale” signs on property

HOA fees not typical for the area

Other

Comments:

 

 

 

 

 

Copyright © 2008 by Worldwide ERC®

Rev. 01/07/2009

This Form Expires 12/31/2009

Page 1 of 6

SUBJECT CONDITION

INSPECTIONS/DISCLOSURES

Property Condition

For all the following of which you are aware or observe in viewing the property, check the appropriate box(es) and describe:

Décor of home is personalized or dated:

Incomplete construction:

Evidence of past or present water damage:

Cracks or stains on walls, floors, or ceilings:

Oil tank (abandoned):

Oil tank (in use):

Underground storage tank (abandoned):

Underground storage tank (in use):

Synthetic stucco:

Suspected structural problems:

Evidence of odor:

Evidence of pet damage:

Evidence of deferred maintenance: Additional Comments:

Recommended Repairs and Improvements

 

 

Interior Items

 

 

R&I Estimates

□ Paint

Estimated cost per item: $

Comment:

□ Flooring

Estimated cost per item: $

Comment:

□ Wall paper removal

Estimated cost per item: $

Comment:

□ Appliances

Estimated cost per item: $

Comment:

□ Cabinets

Estimated cost per item: $

Comment:

□ Light fixtures

Estimated cost per item: $

Comment:

□ Countertops

Estimated cost per item: $

Comment:

□ Bathroom fixtures

Estimated cost per item: $

Comment:

□ Other:

Estimated cost per item: $

Comment:

□ Other:

Estimated cost per item: $

Comment:

□ Other:

Estimated cost per item: $

Comment:

Total Estimated Cost for Interior Repairs

$

 

 

 

 

Exterior Items

 

 

R&I Estimates

□ Landscaping

Estimated cost per item: $

Comment:

□ Paint

Estimated cost per item: $

Comment:

□ Driveway/walkway

Estimated cost per item: $

Comment:

□ Porch/deck

Estimated cost per item: $

Comment:

□ Pool

Estimated cost per item: $

Comment:

□ Spa

Estimated cost per item :$

Comment:

□ Gutters

Estimated cost per item: $

Comment:

□ Siding

Estimated cost per item: $

Comment:

□ Trim

Estimated cost per item: $

Comment:

□ Roof

Estimated cost per item: $

Comment:

□ Detached structures

Estimated cost per item: $

Comment:

□ Debris removal

Estimated cost per item: $

Comment:

□ Windows and screens

Estimated cost per item: $

Comment:

□ Other:

Estimated cost per item: $

Comment:

□ Other:

Estimated cost per item: $

Comment:

□ Other:

Estimated cost per item: $

Comment:

Total Estimated Cost for Exterior RepairS

$

 

List all required, customary and additionally recommended inspections (e.g., municipal, certificate of occupancy, environmental, etc.): Required:

Customary:

Additionally recommended for the subject property:

Subject property issues OF WHICH you are aware that may affect insurability of the subject property:

List all required disclosures:

Copyright © 2008 by Worldwide ERC®

Rev. 01/07/2009

This Form Expires 12/31/2009

Page 2 of 6

 

 

Identify the most probable means of financing for the subject:

FHA

VA

Cash

Conventional mortgage—conforming or jumbo

 

 

Other:

 

 

 

 

 

 

 

 

 

 

 

 

 

 

 

 

 

 

 

 

 

 

 

 

 

 

 

Describe the terms of the financing type identified above:

 

 

 

 

 

 

 

 

 

 

 

 

 

 

 

 

 

 

 

 

 

 

 

 

 

 

 

 

 

 

 

 

 

 

 

 

 

 

 

 

Identify and describe any financing concessions that may be necessary to secure the sale of the subject property.

 

 

 

 

 

 

 

 

 

 

 

Points:

 

 

 

 

 

 

 

 

 

 

 

 

 

 

 

 

 

 

 

 

 

 

 

 

 

 

 

 

 

 

 

 

 

 

 

 

 

 

 

 

 

 

 

 

 

 

 

 

 

 

 

 

 

 

 

 

 

Closing Costs:

 

 

 

 

 

 

 

 

 

 

 

 

 

 

 

 

 

 

 

 

 

 

 

 

 

 

 

 

 

 

 

 

 

 

 

 

 

 

 

 

 

 

 

 

 

 

 

 

 

 

 

 

 

 

 

 

 

Other:

 

 

 

 

 

 

 

 

 

 

 

 

 

 

 

 

 

 

 

 

 

 

 

 

 

FINANCING

 

 

 

 

 

 

 

 

 

 

 

 

 

 

 

 

 

 

 

 

 

 

Do you anticipate any issues that may affect the ability to secure financing for the subject property (e.g., condition, zoning, environmental, HOA, etc.)?

 

Yes No

If yes, comment:

 

 

 

 

 

 

 

 

 

 

 

 

 

 

 

 

 

 

 

 

 

 

 

 

 

 

 

 

 

 

 

 

 

 

 

 

 

 

 

 

 

 

 

 

 

 

 

 

 

 

 

 

 

 

 

 

 

 

 

 

 

 

 

 

 

 

 

 

 

 

 

If the subject property is a common interest development (e.g., condo, townhouse, PUD), what is the ratio of owners to investors?

 

N/A

 

 

 

 

 

 

Owners:

%

Investors:

%

(total MUST equal 100%)

 

 

 

 

 

 

 

 

 

 

 

 

 

 

 

 

 

 

 

 

 

 

 

 

 

 

 

 

 

 

 

 

 

 

 

 

 

 

 

 

 

 

 

HOA Fees: $

 

 

 

 

How often are they paid?

 

Monthly

Quarterly

 

Semi-annually

Annually

 

 

 

 

 

 

 

 

 

 

 

 

 

 

 

 

 

 

 

 

 

 

 

 

 

 

 

 

 

 

 

 

Items included in HOA Fees: Trash Pick-up

 

 

 

 

Landscaping

Snow Removal

Exterior Building Maintenance

 

 

 

 

 

 

 

 

Security/Concierge Services

Insurance

Taxes

 

Amenities

 

 

 

 

 

 

 

 

 

 

 

 

 

 

Common Area Maintenance

WATER

 

 

SEWER

 

 

 

 

 

 

 

 

 

 

 

 

 

 

 

 

 

 

Other:

 

 

 

 

 

 

 

 

 

 

 

 

 

 

 

 

 

 

 

 

Are you aware of any special assessments covered by the HOA?

Yes

No

 

 

 

 

 

 

 

 

 

 

 

If yes, indicate the amount of assessment: $

 

 

 

 

 

 

 

 

 

 

 

 

 

 

 

 

 

 

 

 

Describe what the special assessment covers:

 

 

 

 

 

 

 

 

 

 

 

 

 

 

 

 

 

 

 

 

 

 

 

 

 

 

 

 

 

 

 

 

 

 

 

 

 

 

 

 

 

 

Subject Neighborhood (For purposes of this report, the subject neighborhood is defined by the preparer of this form. Identify what you regard as the

 

 

subject neighborhood and then use statistics that you have gathered which reflect that market area. Note: the neighborhood might be a MLS area, a

 

 

particular section of a town, a specific subdivision, or an entire community. This is described as the “micro area.”)

 

 

 

 

 

 

 

 

 

 

 

Subject neighborhood is defined as:

 

 

 

 

 

 

 

 

 

 

 

 

 

 

 

 

 

 

 

 

 

 

 

 

 

 

 

 

 

 

 

 

 

 

 

 

 

 

 

 

 

 

 

 

 

 

 

 

Price Range: $

 

 

 

 

 

 

to $

 

 

 

 

 

 

 

Property Values are: Increasing

% in past

 

months

 

 

 

 

 

 

 

 

 

 

 

 

 

 

 

 

 

 

 

 

Stable

 

 

 

 

 

 

 

 

 

Average Days-on-Market (list to contract)

 

 

 

days

 

 

 

 

 

 

 

 

 

 

 

 

 

 

 

 

 

Decreasing

 

 

 

 

 

 

 

 

 

 

 

 

 

 

 

 

 

(# of days)

 

 

 

 

 

% in past

months

 

 

 

 

 

 

 

 

 

 

 

 

 

 

 

 

 

 

 

 

 

 

 

 

 

 

 

 

 

 

 

 

Calculate the months supply of inventory (Absorption Rate):

 

 

 

Type of competing listings

 

 

 

 

 

 

 

 

 

 

 

 

 

 

 

 

 

 

 

 

 

 

 

 

 

 

 

 

 

 

 

 

 

 

 

 

 

 

 

 

 

 

 

 

 

 

 

 

 

 

 

 

 

 

 

 

 

 

 

 

 

 

 

 

 

 

 

 

 

 

 

 

 

 

 

 

 

 

 

 

 

 

 

 

 

 

New Homes

 

 

 

 

 

 

%

 

 

 

 

 

 

 

 

 

 

 

 

 

 

 

 

 

 

 

 

Resale

 

 

 

 

 

 

%

 

 

 

Number of active listings ÷

Avg. number of sales per month

=

Number of months needed

 

 

 

 

 

 

 

 

 

 

 

 

REO/Foreclosure

 

 

 

 

 

%

 

 

 

 

 

 

 

 

 

 

for the last 6 months

 

 

 

 

to sell existing inventory

 

 

 

 

 

 

 

 

 

 

 

 

 

 

 

 

 

 

 

Corporate

 

 

 

 

 

 

%

 

 

 

 

 

 

 

 

 

 

 

 

 

 

 

 

 

 

 

 

 

 

 

 

 

 

 

 

 

 

 

 

 

 

 

 

 

 

 

 

 

 

 

 

 

 

Total (MUST equal 100%)

 

 

 

 

 

100%

 

 

 

Describe all marketing concessions/incentives being offered to buyers and/or brokers on competing properties:

 

 

 

 

 

 

 

 

 

 

 

 

 

 

 

 

 

 

 

 

 

 

 

 

 

 

 

 

 

 

 

 

CONDITIONS

 

Recommend any marketing concessions/incentives that should be offered for the subject:

 

 

 

 

 

 

 

 

 

 

 

 

 

 

 

 

 

 

 

 

 

 

 

 

 

 

 

 

 

 

 

 

 

 

 

 

 

 

 

MARKET

 

Describe major corporation(s) in this neighborhood that are moving into, out of, or planning layoffs:

 

 

 

 

 

 

 

 

 

 

 

 

 

 

 

 

 

 

 

 

 

 

 

 

 

 

 

 

 

 

 

 

 

 

 

 

 

 

 

 

 

 

 

 

 

 

 

 

 

 

 

 

 

 

 

 

 

 

 

 

 

 

Describe current economic conditions (positive or negative) that may have an Effect on the marketability of the property:

 

 

 

 

 

 

 

 

 

 

 

 

 

 

 

 

 

 

 

 

 

 

 

 

 

 

 

 

Broader Market Area (For purposes of this report, the broader market area is defined as that area beyond the subject neighborhood in which buyers will

 

 

look for comparable properties. This is described as the “macro area.” In some instances, the broader market area will be the same as the subject’s

 

 

neighborhood. If this is the case, indicate it below.)

What do you consider the “broader market area” to be for this property?

 

 

 

 

 

 

Are there any specific issues in the broader market area which are not reflected in the specific neighborhood that might affect the sale of the subject property? Consider types of competing homes (e.g., new construction, REO’s); incentives or concessions that are occurring; economic conditions; a dramatically different price range than the subject; days on market; etc.

Copyright © 2008 by Worldwide ERC®

Rev. 01/07/2009

This Form Expire 12/31/2009

Page 3 of 6

File Breakdown

Fact Name Details
Purpose This form helps real estate brokers analyze a property's condition, competition, and marketability.
Not an Appraisal The report is not an appraisal and should not be used as one.
Most Likely Sales Price The estimate is based on the property's "as is" condition and a marketing time of up to 120 days.
State-Specific Requirements Preparers must be aware of and include any state-specific disclosure requirements.
Inspections The form includes sections for property condition inspections and recommended repairs.
Financing Options It identifies potential financing options like FHA, VA, or conventional loans.
Neighborhood Analysis It requires a description of the subject neighborhood and its market conditions.
Comparative Sales The form includes a section for comparing the subject property with similar recent sales.
Expiration Date This form expires on December 31, 2009, and should be used before that date.

Guide to Using Erc Broker Market Analysis

Completing the ERC Broker Market Analysis form requires careful attention to detail and accurate information about the subject property. This process involves gathering data about the property itself, its condition, and the surrounding market. Follow the steps outlined below to ensure a thorough and complete submission.

  1. Begin by entering the File #, Homeowner(s), and Property Address at the top of the form.
  2. Fill in the Home Phone #, Work Phone #, and e-mail for the homeowner.
  3. Provide the BMA Requested by details, including the requesting company name and contact information.
  4. In the ASSIGNMENT section, input the Real Estate Firm name, Contact Name, and their contact details.
  5. Document the Homeowner’s purchase price and the Date purchased.
  6. Note any Improvements made by homeowner and indicate if the subject property is currently listed.
  7. Specify the Form of Ownership and the Occupant type.
  8. Describe the Subject’s location type and any personal property that remains with the sale.
  9. Assess the Lot Characteristics and Subject’s view, providing positive or negative explanations as necessary.
  10. Identify any Locational issues that may affect the property’s insurability.
  11. Check all applicable Site Characteristics and Miscellaneous
  12. In the SUBJECT CONDITION INSPECTIONS/DISCLOSURES section, check the appropriate boxes for property conditions and provide comments.
  13. Estimate the Total Estimated Cost for Interior Repairs and Total Estimated Cost for Exterior Repairs.
  14. List all required inspections and disclosures.
  15. Identify the most probable means of financing and describe any financing concessions that may be necessary.
  16. Discuss any anticipated issues that may affect financing.
  17. Provide details about the Subject Neighborhood and Broader Market Area, including property values and market conditions.
  18. List Competing Listings and Comparable Sales, filling in all relevant details for each property.
  19. Finally, review all entries for accuracy and completeness before submitting the form.

Get Answers on Erc Broker Market Analysis

What is the purpose of the ERC Broker Market Analysis form?

The ERC Broker Market Analysis form is designed to assist real estate brokers in conducting a thorough analysis of a property's condition, competition, and future marketability. This report aims to help brokers estimate the Most Likely Sales Price (MLSP) of the subject property. It is important to note that this document is not a home inspection or an appraisal. Instead, it serves as a comparative market analysis and should not be used for appraisal purposes.

What information is required to complete the form?

To accurately complete the ERC Broker Market Analysis form, several key pieces of information are needed, including:

  1. Property details such as address, homeowner contact information, and current listing status.
  2. Information about the real estate firm and agent preparing the report.
  3. Details on any improvements made to the property and its current condition.
  4. Neighborhood characteristics, including market trends and comparable listings.

Additionally, the form requires insights into financing options, potential market issues, and any local regulations that may affect the property's insurability.

How is the Most Likely Sales Price (MLSP) determined?

The Most Likely Sales Price (MLSP) is estimated based on the property's "as is" condition and a projected marketing time not exceeding 120 days. Brokers analyze various factors, including the property's condition, location, and current market conditions. They also consider comparable sales in the area to provide a well-rounded estimate. It is essential for brokers to remain aware of any state-specific disclosure requirements while preparing this estimate.

What are the procedural guidelines for using this form?

When utilizing the ERC Broker Market Analysis form, brokers should adhere to the following procedural guidelines:

  • Contact the homeowner to gather necessary information and arrange for property inspection.
  • Inspect the property thoroughly, noting any significant issues or improvements.
  • Submit the completed report along with any required photographs to the requesting company.
  • Ensure compliance with any state-specific disclosure requirements by including them in the report as needed.

Following these guidelines helps ensure a comprehensive and accurate analysis, ultimately benefiting both the broker and the homeowner.

Common mistakes

Filling out the ERC Broker Market Analysis form can be a detailed process, and mistakes can lead to inaccurate assessments. One common error is incomplete information. Failing to provide all requested details, such as the homeowner's contact information or specifics about the property, can hinder the analysis. Each section of the form serves a purpose, and missing data may result in an incomplete picture of the property’s marketability.

Another frequent mistake involves misunderstanding property condition. When brokers check boxes related to property issues, they must be accurate in their assessments. For instance, if there is evidence of water damage or structural problems, these must be noted clearly. Overlooking or misreporting such conditions can mislead potential buyers and affect the estimated sales price.

Additionally, neglecting to include local market conditions is a significant oversight. The analysis requires an understanding of the broader market area and current economic conditions. Not reflecting the true state of the local market can skew the Most Likely Sales Price and misinform clients about their property's competitiveness.

Another common error is failing to provide comparable listings. The form emphasizes the importance of selecting suitable comparable sales within the last six months. Inaccurate or irrelevant comparisons can misrepresent the property's value and affect the overall analysis. It is crucial to choose properties that closely match the subject property in terms of size, condition, and location.

Lastly, overlooking state-specific disclosure requirements can lead to compliance issues. Each state has unique regulations regarding real estate transactions. Brokers must ensure that they are aware of these requirements and incorporate them into the analysis. Neglecting to do so may not only affect the report's validity but could also lead to legal complications.

Documents used along the form

When dealing with the ERC Broker Market Analysis form, several other documents can complement your analysis and provide a more comprehensive view of the property and its market. Each of these documents serves a unique purpose, helping to clarify various aspects of the property, its condition, and the surrounding market. Here’s a brief overview of these essential forms.

  • Property Condition Disclosure Statement: This document outlines any known issues with the property, such as structural problems or environmental hazards. It provides potential buyers with crucial information about the condition of the home.
  • Comparative Market Analysis (CMA): A CMA compares the subject property to similar properties that have recently sold in the area. This report helps determine a competitive listing price based on current market trends.
  • Home Inspection Report: Conducted by a certified inspector, this report details the physical condition of the property, highlighting any repairs that may be needed. It goes beyond the scope of the Broker Market Analysis.
  • Appraisal Report: An appraisal provides an unbiased estimate of the property's value, typically required by lenders. It considers various factors, including location, condition, and recent sales of comparable properties.
  • Title Report: This document reveals any liens or claims against the property, ensuring that the seller has the legal right to sell the property. It’s crucial for buyers to understand any encumbrances that may affect their ownership.
  • Neighborhood Profile: This report offers insights into the demographics, schools, amenities, and crime rates of the neighborhood. It helps buyers assess whether the area meets their lifestyle needs.
  • Marketing Plan: A marketing plan outlines strategies for selling the property, including advertising, open houses, and targeted outreach. It helps ensure that the property reaches the right audience.
  • Financing Options Document: This document outlines various financing options available to buyers, including conventional loans, FHA, and VA loans. It helps buyers understand their financing choices and what may be best for their situation.

By utilizing these documents in conjunction with the ERC Broker Market Analysis form, you can create a well-rounded view of the property and its marketability. This comprehensive approach not only aids in accurate pricing but also builds trust with potential buyers by providing transparency and thoroughness in the analysis.

Similar forms

  • Comparative Market Analysis (CMA): Like the ERC Broker Market Analysis form, a CMA evaluates the value of a property by comparing it to similar properties that have recently sold. Both documents aim to estimate a property's market value based on current market conditions and comparable sales.
  • Property Condition Report: This report assesses the physical state of a property, identifying issues that may affect its value. Similar to the ERC form, it highlights necessary repairs and improvements, providing a comprehensive overview of the property's condition.
  • Appraisal Report: While an appraisal is a formal assessment of a property's value conducted by a licensed appraiser, it shares similarities with the ERC form in that both documents analyze market conditions and property characteristics to determine value. However, the ERC form is not an official appraisal.
  • Listing Agreement: This document outlines the terms under which a property will be marketed and sold. Like the ERC Broker Market Analysis, it includes details about the property and its marketability, helping sellers understand how their property will be positioned in the market.

Dos and Don'ts

  • Do ensure all information is accurate and complete before submission.
  • Do follow the requesting company's guidelines for contacting homeowners and inspecting properties.
  • Do clearly document any property issues that may affect its marketability.
  • Do provide estimated costs for recommended repairs and improvements.
  • Don't include personal opinions or subjective assessments in the analysis.
  • Don't ignore state-specific disclosure requirements; they must be included as appropriate.
  • Don't use this form as a substitute for a home inspection or appraisal.
  • Don't submit incomplete forms; ensure all sections are filled out thoroughly.

Misconceptions

  • Misconception 1: The ERC Broker Market Analysis form is an appraisal.

    Many people mistakenly believe that this form serves as an official appraisal of a property. However, it is essential to understand that this document is a comparative market analysis (CMA) and not a formal appraisal. The purpose of the form is to provide an estimated Most Likely Sales Price based on market conditions and property characteristics, rather than an official valuation.

  • Misconception 2: The form includes a home inspection.

    Some individuals think that the ERC Broker Market Analysis form entails a comprehensive home inspection. In reality, it does not involve inspecting every aspect of the property like a home inspector would. Instead, it focuses on assessing the property’s condition and marketability based on observable factors, without delving into the detailed structural evaluations typically conducted during a home inspection.

  • Misconception 3: The Most Likely Sales Price is guaranteed.

    Another common misunderstanding is that the Most Likely Sales Price (MLSP) provided in the analysis is a guaranteed selling price. In fact, the MLSP is merely an estimate based on current market conditions and comparable properties. Factors such as changes in the market, buyer interest, and property condition can all influence the final sale price.

  • Misconception 4: The form is uniform across all states.

    Many assume that the ERC Broker Market Analysis form is the same in every state. However, state-specific disclosure requirements can vary significantly. It is crucial for brokers to be aware of these differences and to include any necessary disclosures that pertain to their specific state when completing the form.

Key takeaways

Key Takeaways for Filling Out the ERC Broker Market Analysis Form

  • The form serves to analyze the condition and marketability of a property, helping to estimate its Most Likely Sales Price (MLSP).
  • It is essential to note that this document is not an appraisal and should not be used as such.
  • All preparers must comply with state-specific disclosure requirements and ensure that these are included in the report.
  • Follow the requesting company’s guidelines for contacting homeowners, inspecting properties, and submitting reports.
  • Consider both the subject property and competing listings when assessing market conditions and potential sales strategies.