Content Navigation

The Illinois Final Waiver of Lien form serves as a crucial document in the realm of construction and property transactions, ensuring that all parties involved have a clear understanding of their financial obligations and rights. This form is primarily utilized by contractors and subcontractors to formally relinquish their right to file a lien against a property once they have received payment for their services. It includes essential details such as the names of the parties involved, the specific work performed, and the total amount of the contract, including any extras or change orders that may have been agreed upon. By signing this waiver, the contractor acknowledges that they have received payment and confirms that no further claims will be made against the property in question. Additionally, the form requires a sworn affidavit from the contractor, affirming the accuracy of the information provided and declaring that all parties owed money for labor or materials have been accounted for. This dual structure not only protects property owners from potential lien claims but also provides contractors with a clear pathway to secure their payments while maintaining transparency in their dealings.

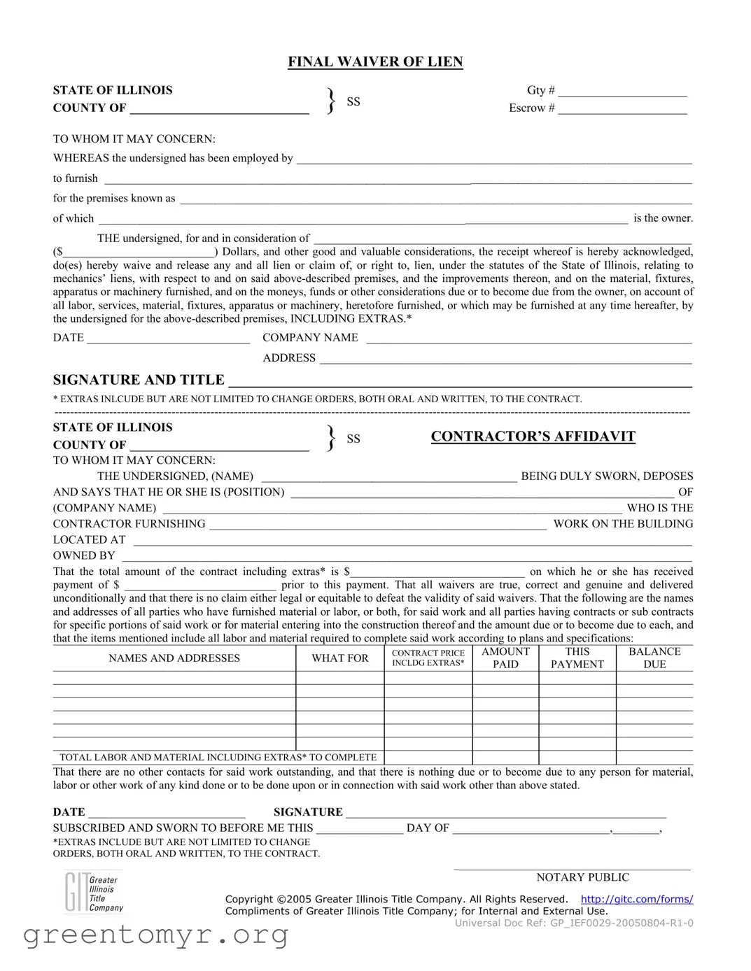
Illinois Final Waiver Of Lien Example

FINAL WAIVER OF LIEN

STATE OF ILLINOIS

} SS

Gty # _____________________

COUNTY OF _____________________________

Escrow # _____________________

TO WHOM IT MAY CONCERN:

WHEREAS the undersigned has been employed by ____________________________________________________________________

to furnish _____________________________________________________________________________________________________

for the premises known as ________________________________________________________________________________________

of which ___________________________________________________________________________________________ is the owner.

THE undersigned, for and in consideration of _________________________________________________________________

($__________________________) Dollars, and other good and valuable considerations, the receipt whereof is hereby acknowledged,

do(es) hereby waive and release any and all lien or claim of, or right to, lien, under the statutes of the State of Illinois, relating to mechanics’ liens, with respect to and on said above-described premises, and the improvements thereon, and on the material, fixtures, apparatus or machinery furnished, and on the moneys, funds or other considerations due or to become due from the owner, on account of all labor, services, material, fixtures, apparatus or machinery, heretofore furnished, or which may be furnished at any time hereafter, by the undersigned for the above-described premises, INCLUDING EXTRAS.*

DATE ____________________________ COMPANY NAME ________________________________________________________

ADDRESS ________________________________________________________________

SIGNATURE AND TITLE _______________________________________________________________

* EXTRAS INLCUDE BUT ARE NOT LIMITED TO CHANGE ORDERS, BOTH ORAL AND WRITTEN, TO THE CONTRACT.

-------------------------------------------------------------------------------------------------------------------------------------------------------------------

STATE OF ILLINOIS

} SS

CONTRACTOR’S AFFIDAVIT

COUNTY OF _____________________________

TO WHOM IT MAY CONCERN:

 

 

THE UNDERSIGNED, (NAME) ____________________________________________ BEING DULY SWORN, DEPOSES

AND SAYS THAT HE OR SHE IS (POSITION) __________________________________________________________________ OF

(COMPANY NAME) _______________________________________________________________________________ WHO IS THE

CONTRACTOR FURNISHING __________________________________________________________ WORK ON THE BUILDING

LOCATED AT ________________________________________________________________________________________________

OWNED BY __________________________________________________________________________________________________

That the total amount of the contract including extras* is $______________________________ on which he or she has received

payment of $ __________________________ prior to this payment. That all waivers are true, correct and genuine and delivered

unconditionally and that there is no claim either legal or equitable to defeat the validity of said waivers. That the following are the names and addresses of all parties who have furnished material or labor, or both, for said work and all parties having contracts or sub contracts for specific portions of said work or for material entering into the construction thereof and the amount due or to become due to each, and that the items mentioned include all labor and material required to complete said work according to plans and specifications:

NAMES AND ADDRESSES

WHAT FOR

CONTRACT PRICE INCLDG EXTRAS*

AMOUNT

PAID

THIS

PAYMENT

BALANCE

DUE

TOTAL LABOR AND MATERIAL INCLUDING EXTRAS* TO COMPLETE

That there are no other contacts for said work outstanding, and that there is nothing due or to become due to any person for material, labor or other work of any kind done or to be done upon or in connection with said work other than above stated.

DATE ___________________________ SIGNATURE _______________________________________________________

SUBSCRIBED AND SWORN TO BEFORE ME THIS _______________ DAY OF ___________________________,________,

*EXTRAS INCLUDE BUT ARE NOT LIMITED TO CHANGE

ORDERS, BOTH ORAL AND WRITTEN, TO THE CONTRACT.

________________________________________________

NOTARY PUBLIC

Copyright ©2005 Greater Illinois Title Company. All Rights Reserved. http://gitc.com/forms/

Compliments of Greater Illinois Title Company; for Internal and External Use.

Universal Doc Ref: GP_IEF0029-20050804-R1-0

File Breakdown

Fact Name Description
Purpose The Illinois Final Waiver of Lien form is used to formally release any lien rights a contractor or subcontractor may have against a property after receiving payment for their services or materials.
Governing Law This form is governed by the mechanics' lien statutes of the State of Illinois, which outline the rights and responsibilities related to lien claims in construction projects.
Consideration In order to execute the waiver, the undersigned must acknowledge receipt of payment, which can be a specific dollar amount or other valuable consideration.
Extras Included The waiver covers not only the original contract amount but also includes any extras, such as change orders, whether they are written or oral.

Guide to Using Illinois Final Waiver Of Lien

Once you have gathered the necessary information, you can begin filling out the Illinois Final Waiver of Lien form. This form is essential for confirming that all payments have been made for work performed, and it serves to release any claims against the property. Following the steps below will help ensure that the form is completed accurately.

  1. Start by entering the date at the top of the form in the designated space.
  2. Fill in the company name of the contractor or individual who performed the work.
  3. Provide the address of the contractor or individual in the appropriate field.
  4. In the section labeled "TO WHOM IT MAY CONCERN," write the name of the party that employed you to furnish the work.
  5. Detail the work that was performed in the space provided, describing the materials or services supplied.
  6. Enter the address of the property where the work was completed.
  7. Identify the owner of the property in the specified area.
  8. In the section regarding payment, write the total amount received for the work performed, including any extras, and specify the dollar amount in the blank space.
  9. Sign the form and include your title below your signature.
  10. Complete the Contractor’s Affidavit section by providing your name, position, and the company name.
  11. Fill in the details of the work performed, including the address of the property and the owner's name.
  12. State the total contract amount, the amount received prior to this payment, and ensure all waivers are accurate and genuine.
  13. List the names and addresses of all parties involved in the work, along with the contract price, amount paid, and balance due for each.
  14. Confirm that there are no outstanding contracts for the work and sign the affidavit.
  15. Finally, have the affidavit notarized by a notary public, who will sign and date the form.

After completing the form, review it for accuracy and completeness before submitting it to the appropriate parties. Ensure that all necessary signatures and notary acknowledgments are present to avoid any potential issues in the future.

Get Answers on Illinois Final Waiver Of Lien

What is the purpose of the Illinois Final Waiver of Lien form?

The Illinois Final Waiver of Lien form serves a crucial function in construction and contracting. It is used to release any claims or liens that a contractor, subcontractor, or supplier may have against a property once they have been paid for their work. By signing this document, the undersigned acknowledges receipt of payment and waives any future claims related to the work performed or materials supplied for the specified project. This ensures that the property owner can have peace of mind, knowing that they are free from any future financial claims related to the work completed.

Who needs to sign the Final Waiver of Lien form?

Typically, the form needs to be signed by the contractor or subcontractor who has provided services or materials for the construction project. In some cases, suppliers of materials may also be required to sign. The individual signing must be in a position to legally bind the company, such as an owner or a designated officer. It is important that the person signing has the authority to confirm that all payments have been made and that no further claims will be pursued regarding the work performed.

What information is required on the Final Waiver of Lien form?

To complete the Illinois Final Waiver of Lien form, several key pieces of information must be provided:

  1. The name of the contractor or subcontractor providing the services.
  2. A description of the work or materials supplied.
  3. The address of the property where the work was performed.
  4. The total amount of the contract, including any extras, and the amount already paid.
  5. The date of the waiver and the signature of the authorized representative.

This information is essential to ensure that the waiver is valid and that all parties involved are aware of the terms and conditions related to the payment and the release of liens.

What happens if the Final Waiver of Lien form is not signed?

If the Final Waiver of Lien form is not signed, the property owner may still be liable for future claims related to the work performed. This could lead to potential legal disputes or financial liabilities if contractors or subcontractors assert their right to a lien on the property. Without this waiver, it is difficult for the owner to prove that they have fulfilled their payment obligations. Therefore, obtaining and properly executing this form is a vital step in protecting the interests of all parties involved in a construction project.

Common mistakes

Filling out the Illinois Final Waiver of Lien form requires careful attention to detail. One common mistake is failing to provide complete information about the contractor or company. Ensure that the name of the company and the contractor’s position are clearly stated. Omitting this information can lead to confusion and potentially invalidate the waiver.

Another frequent error is neglecting to specify the amount received prior to signing the waiver. The form asks for the total contract amount and the payment received. If these figures are not accurately filled in, it may raise questions about the legitimacy of the waiver. Always double-check these amounts to avoid complications.

People often overlook the importance of listing all parties involved in the project. This includes anyone who has provided materials or labor. Failing to include all relevant names and addresses can create legal issues down the line. It is crucial to be thorough and ensure that no party is omitted from the documentation.

Additionally, individuals sometimes forget to sign and date the form. A signature is essential for the waiver to be considered valid. Without it, the waiver cannot be enforced, leaving the contractor vulnerable to potential liens. Make sure to sign and date the document before submitting it.

Another mistake is misunderstanding what constitutes "extras." The form specifies that extras include change orders, both oral and written. If these are not clearly identified, it could lead to disputes over what is covered under the waiver. Clarify any extras to avoid ambiguity.

Lastly, individuals may fail to have the waiver notarized. The notary's role is to verify the identity of the signer and the authenticity of the document. Without notarization, the waiver may not hold up in court. Always ensure that a notary public witnesses the signing of the waiver to protect against future claims.

Documents used along the form

The Illinois Final Waiver of Lien form is a crucial document in the construction industry, providing assurance that a contractor or supplier has received payment and waives their right to file a lien against the property. However, this form often accompanies several other documents that help clarify the financial and legal relationships between parties involved in a construction project. Below is a list of these important forms and documents.

  • Contractor's Affidavit: This document is completed by the contractor, affirming they have received payment and detailing any outstanding claims for labor or materials. It serves to confirm that all waivers provided are valid and that no additional claims exist.
  • Conditional Waiver of Lien: This waiver is used when payment is expected but not yet received. It ensures that the contractor or supplier agrees to waive their lien rights only upon actual receipt of payment.
  • Unconditional Waiver of Lien: Unlike the conditional version, this waiver is executed when payment has already been received. It releases all lien rights without any conditions, providing peace of mind to the property owner.
  • Change Order: This document outlines any modifications to the original contract, including changes in scope, price adjustments, or timelines. It is essential for documenting agreed-upon alterations during the project.
  • Notice of Intent to Lien: Before filing a lien, this notice informs the property owner of the contractor's intention to do so if payment is not made. It serves as a warning and encourages resolution before legal action is taken.
  • Final Invoice: This document details the total amount due for services rendered, including any changes or extras. It is the final request for payment and is often required before a waiver can be executed.
  • Subcontractor's Waiver of Lien: Similar to the contractor's waiver, this form is used by subcontractors to release their lien rights upon receiving payment. It ensures that all parties involved are protected from potential claims.
  • Payment Application: This form is submitted by contractors to request payment for work completed. It typically includes details of work performed and may require supporting documentation to justify the request.
  • Project Completion Certificate: This document certifies that the construction project has been completed according to the agreed-upon terms. It may be required for final payment and to release lien rights.

In summary, these forms and documents work together to create a clear and transparent financial framework for construction projects in Illinois. They protect the rights of all parties involved and help ensure that payments are made timely and accurately, minimizing the risk of disputes and legal issues.

Similar forms

The Illinois Final Waiver of Lien form serves a specific purpose in the context of construction and property law. Several other documents share similarities with this waiver. Below are four such documents, each explained in terms of its relation to the Final Waiver of Lien.

  • Partial Waiver of Lien: Like the Final Waiver, this document allows a contractor or subcontractor to waive their right to file a lien. However, the Partial Waiver only covers the amount that has been paid up to a certain point, while the Final Waiver releases all claims for the entire project once full payment is received.
  • Mechanics' Lien: This document is the opposite of a waiver. A Mechanics' Lien is filed by contractors or suppliers to secure payment for services rendered or materials provided. It establishes a legal claim against the property until the debt is settled, contrasting with the waiver that relinquishes such claims.
  • Contractor’s Affidavit: This document is often used alongside the Final Waiver. The Contractor's Affidavit confirms that the contractor has received payment and that all waivers are genuine. It provides assurance to property owners that there are no outstanding claims against the property, similar to the assurance provided by the Final Waiver.
  • Final Payment Application: This document requests the final payment from the property owner. It often includes a statement indicating that all work has been completed and that the contractor is entitled to full payment. Like the Final Waiver, it signifies the end of the contractor's claims on the project, though it primarily focuses on payment rather than the relinquishment of lien rights.

Dos and Don'ts

When filling out the Illinois Final Waiver of Lien form, it is essential to follow certain guidelines to ensure accuracy and compliance. Below are nine things you should and shouldn't do.

  • Do fill in all required fields completely, including the names and addresses of all parties involved.
  • Do ensure that the amount being waived is clearly stated in both words and numbers.
  • Do include any extras, such as change orders, to avoid future disputes.
  • Do have the form notarized to verify authenticity.
  • Do keep a copy of the completed form for your records.
  • Don't leave any fields blank; incomplete forms may be rejected.
  • Don't forget to sign the document; an unsigned waiver is not valid.
  • Don't use abbreviations or unclear language; clarity is crucial.
  • Don't submit the form without double-checking for errors or omissions.

Misconceptions

Misconceptions about the Illinois Final Waiver of Lien form can lead to confusion among contractors, subcontractors, and property owners. Understanding these misconceptions is crucial for ensuring that all parties are on the same page. Here are nine common misconceptions:

  • It is a guarantee of payment. Many believe that signing the waiver guarantees they will receive payment. In reality, it simply releases the right to file a lien for work completed.
  • It applies to all types of contracts. Some think the waiver is applicable to every contract. However, it specifically relates to mechanics’ liens in Illinois.
  • All waivers are the same. There is a misconception that all lien waivers are identical. In fact, the Illinois Final Waiver of Lien has specific requirements and wording that must be followed.
  • Signing it means you cannot pursue payment. Many fear that signing the waiver means they cannot pursue payment. This is not true; it only affects the right to file a lien.
  • It covers future work automatically. Some believe that the waiver covers any future work or materials. However, the waiver must explicitly state any extras or future work to be covered.
  • It must be notarized to be valid. There is a common belief that notarization is required for the waiver to be valid. While notarization adds credibility, it is not always necessary for the waiver's validity.
  • It can be revoked easily. Some think they can easily revoke the waiver after signing. In reality, revoking a waiver can be complex and may require legal action.
  • It protects the owner from all claims. Many assume that signing the waiver protects the property owner from all claims. However, it only addresses claims related to the specific work and materials mentioned.
  • It is only for contractors. Some believe that only general contractors can use the waiver. In fact, subcontractors and suppliers can also utilize this form to protect their rights.

Understanding these misconceptions helps all parties navigate the complexities of construction contracts and lien rights in Illinois.

Key takeaways

Filling out and using the Illinois Final Waiver of Lien form is an important step in ensuring that all parties involved in a construction project are protected. Here are some key takeaways to consider:

  • Understand the Purpose: The form serves as a legal document that waives any claim of lien against a property once payment has been received. This protects the property owner from potential claims by contractors or subcontractors.
  • Complete All Sections: It is crucial to fill out every section of the form accurately. This includes the names of the parties involved, the amount paid, and a detailed description of the work or materials provided.
  • Include Extras: Be sure to note any extras, such as change orders, that may be included in the contract. This ensures that all work done is accounted for and prevents future disputes.
  • Obtain Necessary Signatures: Both the contractor and a notary public must sign the form. This adds a layer of authenticity and ensures that the document is legally binding.

By following these guidelines, you can effectively utilize the Illinois Final Waiver of Lien form to protect your rights and interests in construction projects.