Content Navigation

The Job Briefing form serves as a critical tool in ensuring workplace safety and preparedness before any project begins. This comprehensive document encompasses essential job information, including the date, job number, and supervisor details, providing a clear framework for the tasks at hand. It emphasizes the importance of emergency procedures, prompting teams to outline necessary contacts and evacuation points, thus prioritizing safety in unexpected situations. Additionally, the form addresses various job tasks, categorizing them based on weight and complexity, which is vital for planning and risk assessment. It also identifies potential jobsite exposures, ranging from physical hazards to health risks, ensuring that all team members are aware of their surroundings. Hazard control measures are meticulously outlined, detailing personal protective equipment (PPE) and safety systems that must be in place before work commences. Furthermore, specific sections are dedicated to civil work and fall protection, highlighting the need for compliance with safety regulations. Finally, the form requires signatures from all affected personnel, reinforcing accountability and commitment to safety protocols. By utilizing the Job Briefing form, teams can work collaboratively to mitigate risks and foster a culture of safety on-site.

Job Briefing Example

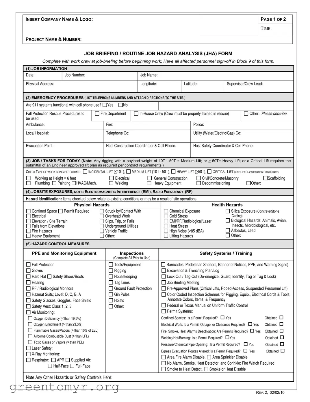
INSERT COMPANY NAME & LOGO:

PROJECT NAME & NUMBER:

PAGE 1 OF 2

TIME:

JOB BRIEFING / ROUTINE JOB HAZARD ANALYSIS (JHA) FORM

Complete with work crew at job-briefing before beginning work; Have all affected personnel sign-off in Block 9 of this form.

(1) JOB INFORMATION

Date:

Job Number:

Job Name:

 

 

 

Physical Address:

 

Longitude:

 

 

 

Latitude:

Supervisor/Crew Lead:

(2)EMERGENCY PROCEDURES (LIST TELEPHONE NUMBERS AND ATTACH DIRECTIONS TO THE SITE.)

Are 911 systems functional with cell phone use?

Yes

No

 

 

 

 

 

 

 

 

 

 

 

Fall Protection Rescue Procedures to

Fire Department

In-House Crew (Crew must be properly trained in rescue)

 

Other: PLEASE DESCRIBE.

be used:

 

 

 

 

 

 

 

Ambulance:

 

Fire:

 

 

Police:

 

 

 

 

 

 

 

Local Hospital:

 

Telephone Co:

 

Utility (Water/Electric/Gas) Co:

 

Evacuation Point:

Host Construction Coordinator & Cell Phone:

Host Safety Coordinator & Cell Phone:

(3)JOB / TASKS FOR TODAY (Note: Any rigging with a payload weight of 10T - 50T = Medium Lift; or > 50T= Heavy Lift; or a Critical Lift requires the submittal of an Engineer approved lift plan as required per contract requirements.)

CHECK TYPE OF WORK BEING PERFORMED:

INCIDENTAL LIFT (<10T),

MEDIUM LIFT (10T - 50T),

HEAVY LIFT (>50T),

CRITICAL LIFT (SEE LIFT CLASSIFICATION FLOW CHART)

Working at Height > 6 feet

Plumbing Painting HVAC/Mech.

Electrical Welding

General Construction Heavy Equipment

Civil/Concrete/Masonry Decommissioning

Scaffolding

Other:

(4) JOBSITE EXPOSURES, NOTE: ELECTROMAGNETIC INTERFERENCE (EMI), RADIO FREQUENCY (RF)

HAZARD IDENTIFICATION: Items checked below relate to existing conditions or may be a result of site operations

 

 

Physical Hazards

 

Health Hazards

 

 

 

 

 

 

 

 

Confined Space

Permit Required

Struck by/Contact With

Chemical Exposure

Silica Exposure (Concrete/Stone

 

Electrical

 

Overhead Work

Cold Stress

Cutting)

 

Elevation / Site Terrain

Slips, Trip, or Falls

EMI/RF/Radiological/Laser

Biological Hazards: Animals, Avian,

 

Falls from Elevations

Underground Utilities

Heat Stress

Insects, Microbiological, etc.

 

Fire Hazards

 

Vehicle Traffic

High Noise (>85 dBA)

Asbestos, Lead

 

Heavy Equipment

 

Other:

Lifting Hazards

Other:

 

 

 

 

 

 

 

(5) HAZARD CONTROL MEASURES

 

 

 

 

 

 

 

 

 

 

 

PPE and Monitoring Equipment

Inspections

Safety Systems / Training

 

 

 

 

 

(Complete All Prior to Use)

 

 

 

 

 

Fall Protection

 

Tools/Equipment

Barricades, Pedestrian Shelters, Banner of Notices, PPE, and Warning Signs)

Gloves

 

 

Rigging

Excavation & Trenching Plan/Log

 

 

 

Hard Hat

Safety Shoes/Boots

Housekeeping

Lock-Out / Tag-Out (De-energize, Guard, Identify, Tag or Tag & Lock)

 

Hearing

 

 

Tag Lines

Job Briefing Meeting

 

 

 

 

RF / Radiological Monitors

Ground Fault Protection

Pre-Approved Plans (Critical Lifts, Roped-Access, Suspended Personnel Lift)

Hazmat Suits; Level: D, C, B, A

Gin Poles

Color Coded Inspection Schemes for Rigging, Equip., Electrical Cords & Tools;

Safety Glasses, Goggles, Face Shield

Hoists

Annotate Colors, Items, & Frequency.

 

 

 

 

 

 

 

 

Safety Vest: Class 1, 2, 3

Other:

Federal or Texas Manual on Uniform Traffic Control

 

 

 

 

 

 

 

Air Monitoring:

 

 

Permit Systems:

 

 

 

 

 

 

 

 

 

 

 

Oxygen Deficiency (< than 19.5%)

 

Confined Spaces: Is a Permit Required? Yes

 

Obtained

Oxygen Enrichment (> than 23.5%)

 

Electrical Work: Is a Permit, Outage, or Clearance Required? Yes

Obtained

Flammable Gases/Vapors (> than 10% of LEL)

 

Fire, Smoke, Heat Alarms Deactivation: Are Permits Required? Yes

Obtained

Airborne Combustible Dust (> than LFL)

 

Welding/Hot/Burning: Is a Permit Required? Yes

 

Obtained

 

 

 

 

 

Toxic Gases or Vapors (> than PEL)

 

Pressure/Chemical Pipe Opening: Is a Permit Required?

Yes

Obtained

Laser Safety:

 

 

 

 

 

 

Egress Evacuation Routes Altered: Is a Permit Required?

Yes

Obtained

X-Ray Monitoring:

 

 

 

 

Area Fire Alarm Disable,

Area Sprinkler Disable

 

 

Respirator:

APR

Supplied Air:

 

 

 

 

No Alarm, Smoke, Heat Detector and Sprinkle; Fire Watch Required

 

 

Half-Face

Full-Face

 

 

 

 

Smoke to Heat Detect,

Smoke or Heat Disable

 

 

 

 

 

 

 

 

 

 

 

 

 

 

 

 

 

Note Any Other Hazards or Safety Controls Here:

REV: 2, 02/02/10

INSERT COMPANY NAME & LOGO:

PROJECT NAME & NUMBER:

PAGE 2 OF 2

TIME:

JOB BRIEFING / ROUTINE JOB HAZARD ANALYSIS (JHA) FORM

(6)COMPLETE FOR CIVIL WORK (PLEASE NOTE: ENGINEER APPROVED TRENCHING PLAN REQUIRED FOR TRENCHES > 5’)

NOT APPLICABLE

NOTE: Notify and confirm proper procedures, mitigation and/or protective steps taken with your company’s designated Safety Representative & Site Manager before

entering: any trench or any general excavation that is greater than 5’ deep; or any Confined Space.

1. Describe type and depth of excavations

Type A Soil/Rock

Type B Soil/Rock

Type C Soil/Rock:

Dig-Tess / One Call

2. Cave-in / Engulfment control measures to be used if excavation will be greater than 5 feet and personnel are entering the trench.

Shoring

Trench

Shield/Box

Ladder in Trench > 5 Feet & Every 25’ Sump Pump LOTO:

3.Describe elevation/site terrain/environmental concerns or hazards:

4.Describe hazards with site/vehicle access (High Traffic, Heavy Haul, Boom Cranes, and Storage of Materials/HazMat:

5.Describe the type of electrical or gas concerns or hazards (e.g. Electrical/Gas/Fiber Optic Lines):

Sloping

Benching

(7) FALL PROTECTION & USING SUSPENDED PERSONNEL PLATFORM (Complete for Working at Heights and Roped-Access)

NOT APPLICABLE

Type of Elevated Work & Height:

 

 

Type of Tower or Building:

 

 

 

Describe the fall protection system to be used when working aloft.

Lifeline

Personal Fall Arrest

Safety Monitor

Qualified Climber

Safety Net

Ladder Safety Device

Roped Access (Requires Roped Access JHA):

 

 

 

 

 

Fall protection to be used.

Full Body Harness

One Lanyard

Two Lanyards (100%)

Rope Grab

Cable Grab

Retractable Lifeline

Ascenders/Descenders

Anchorage Points, Belay, & Straps:

 

 

 

 

 

 

Ropes

Has each employee inspected his or her fall protection equipment?

 

Yes

No

 

 

 

Hoisting Equipment to be used: < 20’ Encroachment of Power Lines,

Yes

No; If yes, ID Voltage _______KV; De-energize/Test/Ground Lines

Yes

Suspended Personnel Platform/basket

Forklift Platform

Crane/Boom/Aerial Truck

Scissor/Snorkel Lift

Gin Pole

Roped Access

Suspended Personnel Platform Checklist and/or Critical Lift Plan Completed?

Yes

No

 

 

 

 

 

 

 

 

 

 

 

No

 

(8) REVIEWS AND SIGNATURES

 

 

 

 

 

 

 

 

 

 

 

 

 

 

 

 

 

 

 

GC Superintendent /Foreman

 

 

Lower-tier Subcontractor Supervisor

 

 

 

 

 

 

 

 

 

 

Name

Signature/Date

 

Name

Signature/Date

 

 

 

 

 

 

 

 

 

 

 

 

 

 

 

 

 

 

 

 

 

 

(9)PROJECT PERSONNEL ACKNOWLEDGEMENT (ALL AFFECTED PERSONNEL SIGN AFTER JOB BRIEFING)

Name:

Company:

CPR / First Aid

Name:

Company:

 

Yes

 

Yes

 

Yes

Yes

Yes

Yes

Yes

Yes

Yes

Yes

Yes

Yes

REV: 2, 02/02/10

File Breakdown

Fact Name Details
Purpose The Job Briefing form is used to communicate safety information and job tasks to work crews before starting a project.
Required Signatures All affected personnel must sign Block 9 to acknowledge understanding of the job briefing.
Emergency Procedures Emergency contact numbers and site directions must be listed and reviewed during the briefing.
Job Information Key details such as date, job number, job name, and supervisor must be filled out on the form.
Hazard Identification Physical and health hazards must be identified, including risks like slips, trips, and falls.
Control Measures Hazard control measures, including PPE and safety systems, must be outlined to ensure worker safety.
Trenching Requirements For civil work, an engineer-approved trenching plan is required for excavations deeper than 5 feet.
Fall Protection Specific fall protection measures must be described for any work being performed at heights.
Review and Signatures Supervisors and subcontractors must review and sign the form to confirm understanding and compliance.
Governing Law State-specific forms may be governed by OSHA regulations and local safety laws.

Guide to Using Job Briefing

To complete the Job Briefing form, gather your work crew and ensure everyone is present. This form must be filled out before starting any work. Each affected personnel must sign off in Block 9 after the briefing. Follow these steps carefully to ensure all necessary information is captured accurately.

  1. Insert Company Name & Logo: At the top of the form, write the company name and attach the logo.
  2. Project Name & Number: Fill in the project name and number below the company information.
  3. Date: Enter the date of the job briefing.
  4. Job Number: Write the specific job number for reference.
  5. Job Name: Specify the name of the job being performed.
  6. Physical Address: Provide the physical address where the work will take place.
  7. Longitude & Latitude: Fill in the longitude and latitude coordinates of the job site.
  8. Supervisor/Crew Lead: Name the supervisor or crew lead overseeing the job.
  9. Emergency Procedures: List emergency contact numbers and attach directions to the site.
  10. Job/Tasks for Today: Check the type of work being performed and provide details about the tasks.
  11. Jobsite Exposures: Identify potential hazards related to the job site and check relevant boxes.
  12. Hazard Control Measures: List the personal protective equipment (PPE) and safety systems in place.
  13. Civil Work (if applicable): Complete this section if civil work is being performed, including excavation details.
  14. Fall Protection: Describe the fall protection system to be used when working at heights.
  15. Reviews and Signatures: Obtain signatures from the General Contractor Superintendent and lower-tier subcontractor supervisor.
  16. Project Personnel Acknowledgement: Have all affected personnel sign in Block 9 after the job briefing.

Get Answers on Job Briefing

What is the purpose of the Job Briefing form?

The Job Briefing form is designed to ensure that all personnel involved in a job are aware of the tasks to be performed, potential hazards, and emergency procedures. It serves as a record of the briefing and helps facilitate communication among team members before work begins.

Who is required to sign the Job Briefing form?

All affected personnel who will be involved in the job must sign the Job Briefing form in Block 9. This includes workers, supervisors, and any other individuals who may be impacted by the tasks being performed.

What information is collected in the Job Briefing form?

The form collects several key pieces of information, including:

  • Date and job number
  • Job name and physical address
  • Supervisor or crew lead's name
  • Emergency procedures and contact numbers
  • Details about the specific tasks being performed
  • Identified hazards and control measures

What should be included in the emergency procedures section?

The emergency procedures section should include:

  • Functional 911 systems and any alternative emergency numbers
  • Contact information for local emergency services, such as ambulance, fire department, and police
  • Evacuation points and procedures
  • Names and contact numbers for the host construction coordinator and safety coordinator

What types of work are identified in the Job Briefing form?

The form allows for the identification of various types of work, including:

  • Incidental lifts
  • Medium and heavy lifts
  • Working at heights
  • Electrical, plumbing, and HVAC tasks
  • General construction and decommissioning

How are hazards assessed in the Job Briefing form?

Hazards are assessed by checking relevant boxes that identify physical and health hazards present at the job site. This includes potential risks such as:

  • Confined spaces
  • Chemical exposure
  • Electrical hazards
  • Heat stress and cold stress
  • Vehicle traffic and high noise levels

What is required for working at heights according to the Job Briefing form?

For tasks involving working at heights, the form requires a description of the fall protection system to be used. This includes:

  • Full body harnesses and lanyards
  • Safety nets and lifelines
  • Inspection of fall protection equipment by each employee
  • Any necessary permits for elevated work

What should be done if a trench is deeper than 5 feet?

If a trench exceeds 5 feet in depth, an engineer-approved trenching plan is required. The form prompts for details about:

  • Type of soil and depth of excavation
  • Cave-in control measures
  • Environmental concerns and hazards
  • Access issues related to site vehicles

Common mistakes

Filling out the Job Briefing form is a critical step in ensuring workplace safety and compliance. However, many individuals make common mistakes that can lead to incomplete or inaccurate submissions. Understanding these pitfalls can help improve the quality of the information provided.

One frequent mistake is neglecting to include the company name and logo at the top of the form. This omission can create confusion regarding the ownership of the document and the responsibilities tied to the job. Clear identification is essential for accountability and record-keeping.

Another common error involves the date and job number sections. Failing to fill these out or entering incorrect information can complicate tracking and referencing the job in the future. Accurate documentation is vital for maintaining a reliable history of job activities and safety measures.

Individuals often overlook the section on emergency procedures. This part of the form requires specific telephone numbers and directions to the site. In emergencies, having this information readily available can save valuable time and potentially lives. Skipping this section can lead to severe consequences in urgent situations.

Inadequate detail in the job/tasks for today section is another mistake. When individuals check off types of work being performed without providing sufficient context, it can lead to misunderstandings about the risks involved. Each task should be clearly defined to ensure that all team members understand their responsibilities and the associated hazards.

Moreover, failing to identify jobsite exposures is a significant oversight. This section requires an assessment of potential hazards present at the worksite. Neglecting to check relevant boxes can lead to unpreparedness for risks that could endanger workers. A thorough evaluation of site conditions is crucial for effective safety planning.

Lastly, many individuals forget to have all affected personnel sign off in Block 9 after the job briefing. This step is essential for confirming that everyone is aware of the hazards and safety measures discussed. Without these signatures, it may be challenging to prove that proper safety protocols were communicated, potentially leading to liability issues.

Documents used along the form

When working on a project, various forms and documents complement the Job Briefing form. Each of these documents plays a crucial role in ensuring safety and compliance throughout the job. Here’s a brief overview of some commonly used forms.

  • Routine Job Hazard Analysis (JHA): This document identifies potential hazards associated with specific tasks. It helps teams recognize risks before starting work, allowing them to implement safety measures accordingly.
  • Emergency Response Plan: This plan outlines procedures for responding to emergencies. It includes contact information for emergency services and details on evacuation routes, ensuring that everyone knows how to act in a crisis.
  • Permit to Work: This form is essential for high-risk activities. It ensures that all necessary safety checks and approvals are completed before work begins, reducing the likelihood of accidents.
  • Personal Protective Equipment (PPE) Assessment: This document evaluates the types of PPE required for specific tasks. It ensures that workers are adequately protected against identified hazards.
  • Site Safety Inspection Checklist: This checklist helps identify safety issues on the job site. Regular inspections can prevent accidents by ensuring that safety protocols are being followed.
  • Training Records: These records document the safety training that employees have completed. They are important for compliance and ensure that all workers are prepared for the tasks they will perform.

Utilizing these documents alongside the Job Briefing form helps create a safer work environment. Each form contributes to a comprehensive safety strategy, promoting awareness and preparedness among all personnel involved in the project.

Similar forms

The Job Briefing form shares similarities with several other documents commonly used in workplace safety and project management. Here are six documents that are comparable, along with their key similarities:

  • Job Hazard Analysis (JHA): Like the Job Briefing form, the JHA identifies potential hazards associated with specific tasks and outlines control measures to mitigate risks before work begins.
  • Safety Data Sheet (SDS): An SDS provides detailed information about hazardous substances used in the workplace. Both documents emphasize the importance of understanding risks and implementing safety precautions.
  • Pre-Job Safety Meeting Agenda: This document serves as a guide for discussing safety protocols and hazards before starting a job. Similar to the Job Briefing form, it ensures all crew members are informed and prepared.
  • Emergency Action Plan (EAP): An EAP outlines procedures for responding to emergencies. Both the EAP and Job Briefing form prioritize safety and preparedness for unexpected situations.
  • Permit to Work (PTW): The PTW system is designed to ensure that all safety measures are in place before specific high-risk work begins. Like the Job Briefing form, it requires acknowledgment and sign-off from all involved personnel.
  • Daily Safety Inspection Checklist: This checklist is used to identify safety concerns on-site. Both documents focus on proactive measures to prevent accidents and ensure a safe working environment.

Dos and Don'ts

When filling out the Job Briefing form, it is essential to follow specific guidelines to ensure accuracy and compliance. Below is a list of things you should and shouldn't do during this process.

  • Do ensure all sections of the form are completed accurately.
  • Do have all affected personnel sign off in Block 9 after the job briefing.
  • Do include emergency contact numbers and site directions.
  • Do check the type of work being performed and select the appropriate classification.
  • Don't leave any sections blank; incomplete forms can lead to safety oversights.
  • Don't forget to describe all potential jobsite exposures, including physical and health hazards.
  • Don't neglect to review the fall protection measures if working at heights.
  • Don't assume that verbal agreements are sufficient; all details must be documented in the form.

Adhering to these guidelines will promote a safer work environment and ensure compliance with safety regulations. Take these steps seriously to protect yourself and your team.

Misconceptions

Misconceptions about the Job Briefing form can lead to confusion and potential safety risks. Here are six common misunderstandings:

  • It's just a formality. Many believe the Job Briefing form is merely a box to check off before starting work. In reality, it is a critical tool for ensuring safety and compliance on the job site.
  • Only supervisors need to fill it out. Some think that only supervisors are responsible for completing the form. However, all crew members should participate in the briefing to ensure everyone is aware of the hazards and safety measures.
  • It's unnecessary for small jobs. A common belief is that smaller tasks do not require a Job Briefing. Regardless of the job size, every task carries risks that must be assessed and communicated to the team.
  • Signing means you agree with everything. Some individuals assume that signing the form indicates complete agreement with all details. Signing simply acknowledges that the individual has been informed about the job and its hazards.
  • Once completed, it’s done for the day. Many think that once the Job Briefing form is signed, there’s no need to revisit it. In fact, it should be a living document, updated as conditions change throughout the workday.
  • Emergency procedures are optional. Some may believe that emergency procedures listed on the form are optional. These procedures are essential and must be followed to ensure everyone knows how to respond in case of an emergency.

Key takeaways

Filling out the Job Briefing form is essential for ensuring safety and clarity before starting any work. Here are key takeaways to keep in mind:

  • Complete with the crew: Always fill out the form with the entire work crew present. This ensures everyone understands the job and potential hazards.
  • Sign-off required: All affected personnel must sign in Block 9. This step confirms that everyone is aware of the job details and safety measures.
  • Emergency procedures: Clearly list emergency contact numbers and procedures. Make sure all crew members know how to respond in case of an emergency.
  • Identify hazards: Take time to check for all potential job site hazards. This includes physical and health risks, as well as environmental concerns.
  • Review and acknowledge: Ensure that all personnel review the form and acknowledge their understanding. This is crucial for compliance and safety.

By following these guidelines, you contribute to a safer and more efficient work environment. Take this process seriously; it can save lives.