Content Navigation

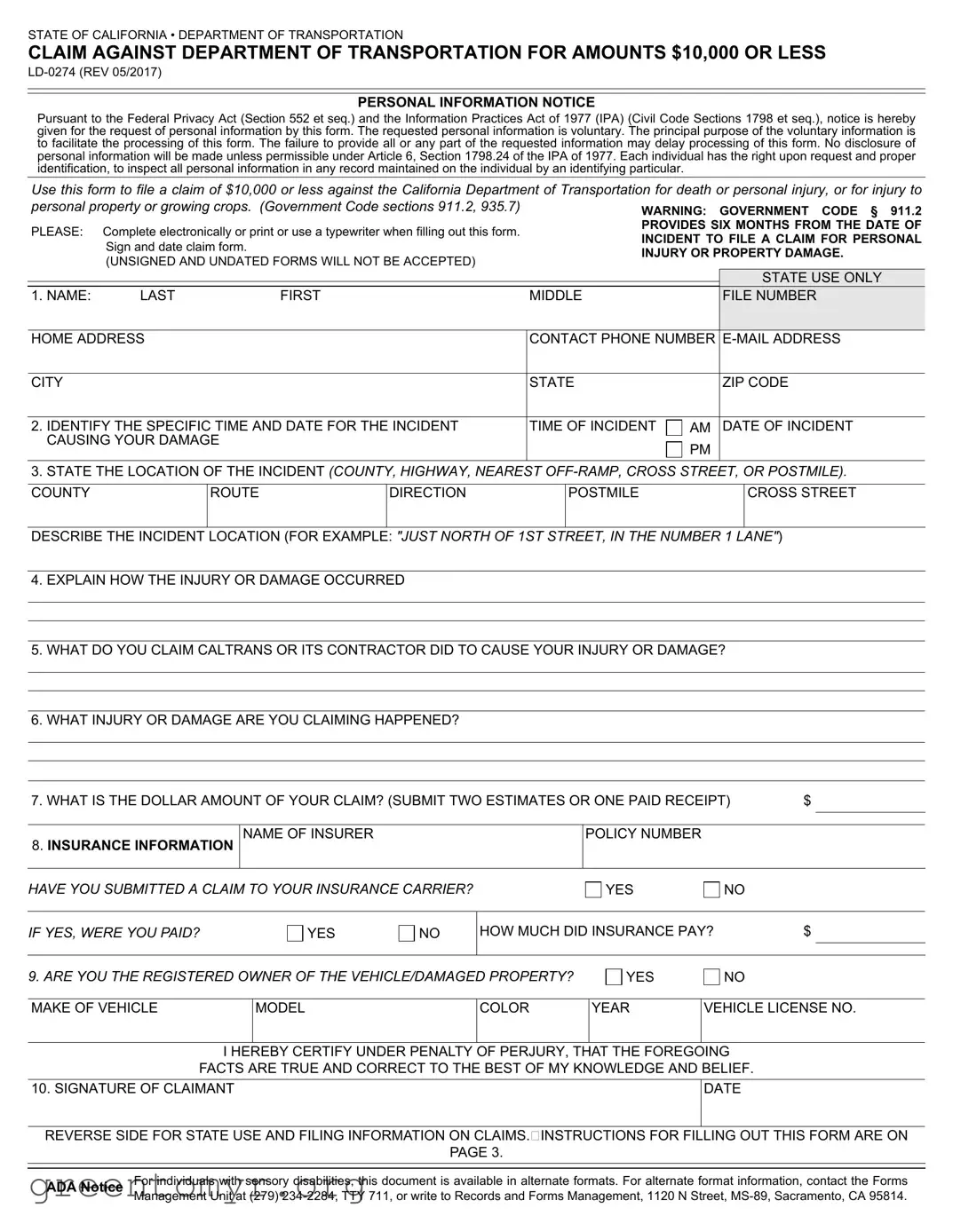
The LD 0274 form is a crucial document for individuals seeking to file a claim against the California Department of Transportation for amounts of $10,000 or less. This form is specifically designed for claims related to personal injuries, property damage, or damage to growing crops. It outlines the necessary personal information that must be provided, including the claimant's name, contact details, and a description of the incident. Timeliness is essential; claimants must file their claims within six months of the incident date to avoid denial. The form requires specific details about the incident, such as the time, date, and location, along with a clear explanation of how the injury or damage occurred. Claimants must also specify the actions taken by Caltrans or its contractors that led to the injury or damage and provide a dollar amount for their claim, supported by estimates or receipts. Proper completion of the form is vital, as any missing information could delay processing or result in rejection. Understanding these key aspects will help ensure that your claim is submitted correctly and efficiently.

Ld 0274 Example

STATE OF CALIFORNIA • DEPARTMENT OF TRANSPORTATION

CLAIM AGAINST DEPARTMENT OF TRANSPORTATION FOR AMOUNTS $10,000 OR LESS

LD-0274 (REV 05/2017)

PERSONAL INFORMATION NOTICE

Pursuant to the Federal Privacy Act (Section 552 et seq.) and the Information Practices Act of 1977 (IPA) (Civil Code Sections 1798 et seq.), notice is hereby given for the request of personal information by this form. The requested personal information is voluntary. The principal purpose of the voluntary information is to facilitate the processing of this form. The failure to provide all or any part of the requested information may delay processing of this form. No disclosure of personal information will be made unless permissible under Article 6, Section 1798.24 of the IPA of 1977. Each individual has the right upon request and proper identification, to inspect all personal information in any record maintained on the individual by an identifying particular.

Use this form to file a claim of $10,000 or less against the California Department of Transportation for death or personal injury, or for injury to

personal property or growing crops. (Government Code sections 911.2, 935.7)

WARNING: GOVERNMENT CODE § 911.2

PLEASE:

Complete electronically or print or use a typewriter when filling out this form.

PROVIDES SIX MONTHS FROM THE DATE OF

INCIDENT TO FILE A CLAIM FOR PERSONAL

 

Sign and date claim form.

 

 

 

INJURY OR PROPERTY DAMAGE.

 

(UNSIGNED AND UNDATED FORMS WILL NOT BE ACCEPTED)

 

 

 

 

 

 

 

 

 

STATE USE ONLY

 

 

 

 

 

1. NAME:

LAST

FIRST

MIDDLE

 

FILE NUMBER

 

 

 

 

HOME ADDRESS

 

CONTACT PHONE NUMBER

E-MAIL ADDRESS

 

 

 

 

 

 

CITY

 

 

STATE

 

ZIP CODE

 

 

 

 

2. IDENTIFY THE SPECIFIC TIME AND DATE FOR THE INCIDENT

TIME OF INCIDENT

AM

DATE OF INCIDENT

CAUSING YOUR DAMAGE

 

 

PM

 

 

 

 

 

 

3.STATE THE LOCATION OF THE INCIDENT (COUNTY, HIGHWAY, NEAREST OFF-RAMP, CROSS STREET, OR POSTMILE).

COUNTY

ROUTE

DIRECTION

POSTMILE

CROSS STREET

DESCRIBE THE INCIDENT LOCATION (FOR EXAMPLE: "JUST NORTH OF 1ST STREET, IN THE NUMBER 1 LANE")

4.EXPLAIN HOW THE INJURY OR DAMAGE OCCURRED

5.WHAT DO YOU CLAIM CALTRANS OR ITS CONTRACTOR DID TO CAUSE YOUR INJURY OR DAMAGE?

6.WHAT INJURY OR DAMAGE ARE YOU CLAIMING HAPPENED?

7. WHAT IS THE DOLLAR AMOUNT OF YOUR CLAIM? (SUBMIT TWO ESTIMATES OR ONE PAID RECEIPT)

$

 

 

 

 

 

 

 

 

 

 

 

 

 

8. INSURANCE INFORMATION

NAME OF INSURER

POLICY NUMBER

 

 

 

 

 

 

 

 

 

 

 

YES

NO

 

 

YES

NO

HOW MUCH DID INSURANCE PAY?

$

YES

NO

MAKE OF VEHICLE

MODEL

COLOR

YEAR

VEHICLE LICENSE NO.

10. SIGNATURE OF CLAIMANT

DATE

ADA Notice

For individuals with sensory disabilities, this document is available in alternate formats. For alternate format information, contact the Forms

 

Management Unit at (279) 234-2284, TTY 711, or write to Records and Forms Management, 1120 N Street, MS-89, Sacramento, CA 95814.

STATE OF CALIFORNIA • DEPARTMENT OF TRANSPORTATION

CLAIM AGAINST DEPARTMENT OF TRANSPORTATION FOR AMOUNTS $10,000 OR LESS

LD-0274 (REV 05/2017)

FOR STATE USE ONLY (BELOW)

DATE CLAIM RECEIVED

REVIEWED BY: DISTRICT CLAIMS OFFICER

 

AMOUNT APPROVED $

 

 

 

 

 

 

 

 

 

 

 

 

 

 

 

 

 

 

 

STATE

TORT FUND/

CONTRACTOR

DENIED

RESPONSIBILITY

CONTRACT CONTINGENCY

RESPONSIBILTY

DENIAL DATE

 

 

 

 

 

 

 

 

DISTRICT

LOCATION CODING

COUNTYROUTE

POSTMILE

COST CODING

DEPARTMENT

FUND

 

UNIT

OBJECT

PROJECT NUMBER

 

PHASE

 

 

 

 

 

 

 

 

 

 

 

 

 

 

 

 

 

 

 

ITEM

 

 

CHAPTER

STATUTES

 

FISCAL YEAR

SCHEDULE NUMBER

 

 

 

 

 

 

 

 

 

 

 

 

 

ACCOUNTING OFFICER SIGNATURE

 

DATE

 

 

 

 

 

 

 

 

 

 

FOR CLAIMS TEN THOUSAND DOLLARS ($10,000) OR LESS

Select District

Address

FOR CLAIMS OVER TEN THOUSAND DOLLARS ($10,000)

You must file a claim with the Government Claims Program in West Sacramento, California.

If you have any questions about claims of more than ten thousand dollars ($10,000), contact:

Government Claims Program

Office of Risk and Insurance Management

Department of General Services

P.O. Box 989052, MS 414

West Sacramento, CA 95798-9052

Phone: 1-800-955-0045

E-mail: [email protected]

Website: http://www.dgs.ca.gov/orim/Programs/GovernmentClaims.aspx

The fact that this brief statement of the initial procedure to be followed in submitting a claim against the State of California, or against any of the State of California's subdivisions, departments, divisions, agencies, officers, employees, agents, or directors, has been furnished to you or that an investigation of any claim is undertaken is not to be taken as an admission of liability in any respect on the part of the State of California, or by any of the State of California's subdivisions, departments, divisions, agencies, officers, employees, agents, or directors, nor is the fact that this informational statement has been furnished to you to be construed as a waiver of any requirements imposed by the law or of any defense which may be available to the State of California or to any of the State of California's subdivisions, departments, divisions, agencies, officers, employees, agents, or directors, in connection with any claim that may be filed.

ADA Notice

For individuals with sensory disabilities, this document is available in alternate formats. For alternate format information, contact the Forms

 

Management Unit at (279) 234-2284, TTY 711, or write to Records and Forms Management, 1120 N Street, MS-89, Sacramento, CA 95814.

STATE OF CALIFORNIA • DEPARTMENT OF TRANSPORTATION

CLAIM AGAINST DEPARTMENT OF TRANSPORTATION FOR AMOUNTS $10,000 OR LESS

LD-0274 (REV 05/2017)

INSTRUCTIONS FOR FORM LD-0274

Please note that failure to complete all sections of the claim form may delay the processing of your claim or result in the return of your claim.

1.Claimant's Name and Contact Information: State the full name, mailing address, e-mail address, and contact telephone number(s) of the person or entity claiming property damage, personal injury, or other loss.

2.Date and Time When the Injury/Damage First Occurred: State the exact month, day, year, and time of the incident giving rise to the claim.

3.Location of Incident: Specify the county, highway number, direction of travel, post mile, nearest exit(s), cross-streets, and any additional information indicating where the incident giving rise to the claim occurred. Providing a map is optional, but advised. The more information you provide, the easier it is for us to assist you. You should also attach a copy of the police report (if one exists) of the incident.

4.How Your Injury/Damage Occurred: Provide complete details about what happened to cause your injury/damages. If you need more space, you may attach additional pages.

5.What Do You Claim Caltrans or Its Contractor Did to Cause Your Injury or Damage? State in detail all facts in support of your claim. Identify all persons or entities involved and why you believe Caltrans or its contractor is liable. If applicable, provide the name of the Caltrans employee or contractor, and the State of California vehicle license plate/ID number. If you need more space, you may attach additional pages.

6.What Injury or Damage Are You Claiming Happened? Specify the exact injury or damage for which you are claiming, including all alleged injuries, property damage, and/or loss. If you need more space, you may attach additional pages. You can attach photographs and any additional supporting documents. If you do, be sure the photographs show the damage and its size relative to the vehicle. More than one photograph provides more information to assist the evaluation of your claim.

7.What Is the Dollar Amount of Your Claim? State the total dollar amount for which you are claiming. Leaving the dollar amount blank will result in your claim being deemed incomplete, and your claim will be returned without further action. Please submit two (2) written estimates and/or one (1) paid receipt for all damages claimed. If you are submitting proof of payment, copies of credit card statements or copies of the front and back of cancelled checks are required. Invoices will not be accepted as actual proof of payment. All invoices must list the claimant's name and vehicle license plate number, vendor's letterhead, and an itemized list of repairs. Caltrans will not accept quotes retrieved from the internet.

8.Insurance Information: State the name of your insurer and policy number. If you have been reimbursed by your insurance company, you may not be eligible for compensation.

9.Are You the Registered Owner of the Vehicle/Damaged Property? Only the registered owner may file a claim for damage to a vehicle or property. Be sure to provide all vehicle information, including a copy of the vehicle's registration.

10.Signature of Claimant: Please sign and date the claim form. Caltrans does not accept claim forms without an original signature. Faxed or photocopied claim forms will not be accepted.

Mailing Completed Form: The completed form must be mailed to the District Claims Office assigned to the county in which your injury/ damages occurred. To determine the proper District Claims Office to which you should mail your completed form, you can use the map on the website and click on the county. The website map will show the District Claims Office responsible for that county, including its address and telephone number. You can then use the drop down menu on page 2 of this form to automatically fill in the address for the appropriate District Claims Office. If you have any questions about the location where your injury/damages occurred, you can contact any District Claims Office.

If your claim is over ten thousand dollars ($10,000.00), you must file a different form with the Government Claims Program WITHIN 6 MONTHS OF THE DATE OF INCIDENT. A claim form may be obtained by contacting the Government Claims Program at:

Government Claims Program

Office of Risk and Insurance Management Department of General Services

P.O. Box 989052, MS 414

West Sacramento, CA 95798-9052 Phone: 1-800-955-0045

E-mail: [email protected]

The claim form may also be downloaded from the Government Claims Program website at:

http://www.dgs.ca.gov/orim/Programs/GovernmentClaims.aspx

The fact that this brief statement of the initial procedure to be followed in submitting a claim against the State of California, or against any of the State of California's subdivisions, departments, divisions, agencies, officers, employees, agents, or directors, has been furnished to you or that an investigation of any claim is undertaken is not to be taken as an admission of liability in any respect on the part of the State of California, or by any of the State of California's subdivisions, departments, divisions, agencies, officers, employees, agents, or directors, nor is the fact that this informational statement has been furnished to you to be construed as a waiver of any requirements imposed by the law or of any defense which may be available to the State of California or to any of the State of California's subdivisions, departments, divisions, agencies, officers, employees, agents, or directors, in connection with any claim that may be filed.

ADA Notice

For individuals with sensory disabilities, this document is available in alternate formats. For alternate format information, contact the Forms

 

Management Unit at (279) 234-2284, TTY 711, or write to Records and Forms Management, 1120 N Street, MS-89, Sacramento, CA 95814.

File Breakdown

Fact Name Description
Form Purpose This form is used to file a claim against the California Department of Transportation for amounts of $10,000 or less related to personal injury, property damage, or growing crops.
Governing Laws The claims must comply with Government Code sections 911.2 and 935.7, which outline the legal framework for filing such claims in California.
Privacy Notice The form includes a privacy notice in accordance with the Federal Privacy Act and the Information Practices Act of 1977, ensuring the voluntary nature of personal information requested.
Submission Requirements Claims must be signed and dated. Unsigned or undated forms will not be accepted, which could delay the processing of the claim.
Filing Deadline According to Government Code § 911.2, claims for personal injury or property damage must be filed within six months from the date of the incident.

Guide to Using Ld 0274

Filling out the LD-0274 form is an essential step in filing a claim against the California Department of Transportation for amounts of $10,000 or less. Make sure to provide accurate information to avoid any delays in processing your claim. Here’s a simple guide to help you complete the form effectively.

  1. Claimant's Information: Enter your full name, mailing address, email address, and contact phone number.
  2. Date and Time of Incident: Specify the exact date and time when the incident occurred.
  3. Location of Incident: Provide details such as the county, highway number, direction of travel, nearest exit, cross-streets, and any additional relevant information.
  4. Description of Incident: Explain how the injury or damage occurred. Include as much detail as necessary.
  5. Caltrans or Contractor's Actions: Describe what you believe Caltrans or its contractor did to cause your injury or damage.
  6. Details of Injury or Damage: Specify the exact injury or damage you are claiming, including any property damage or personal injuries.
  7. Claim Amount: State the total dollar amount you are claiming. Remember to submit two estimates or one paid receipt.
  8. Insurance Information: If applicable, provide the name of your insurance company, policy number, and how much insurance paid.
  9. Signature and Date: Don’t forget to sign and date the form. Unsigned or undated forms will not be accepted.

Get Answers on Ld 0274

  1. What is the purpose of the LD 0274 form?

    The LD 0274 form is used to file a claim against the California Department of Transportation for amounts of $10,000 or less. This includes claims for personal injury, property damage, or damage to growing crops. The form facilitates the processing of claims and ensures that individuals have a structured way to present their case.

  2. How do I complete the LD 0274 form?

    To complete the LD 0274 form, you should follow these steps:

    • Provide your full name, address, and contact information.
    • State the exact date and time of the incident.
    • Describe the location of the incident in detail.
    • Explain how the injury or damage occurred.
    • Specify what you believe Caltrans or its contractor did to cause the injury or damage.
    • Detail the specific injury or damage you are claiming.
    • Indicate the dollar amount of your claim and attach any necessary documentation, such as estimates or receipts.
  3. What happens if I do not complete all sections of the form?

    Failure to complete all sections of the LD 0274 form may lead to delays in processing your claim. Incomplete forms can be returned without further action, which may hinder your ability to seek compensation for your injury or damage.

  4. Is there a time limit for filing a claim using the LD 0274 form?

    Yes, there is a strict time limit. According to Government Code § 911.2, you must file your claim within six months from the date of the incident that caused your injury or damage. It is essential to adhere to this timeline to ensure your claim is considered.

  5. What should I do if I have additional evidence to support my claim?

    If you have additional evidence, such as photographs, police reports, or witness statements, you should include these with your claim. Providing comprehensive documentation can strengthen your case and assist in the evaluation of your claim.

  6. Can I submit the LD 0274 form electronically?

    The form can be completed electronically or printed out for manual submission. If you choose to fill it out by hand, using a typewriter or legible handwriting is recommended. Ensure that you sign and date the form, as unsigned or undated forms will not be accepted.

  7. What should I do if my claim is denied?

    If your claim is denied, you will receive a notification outlining the reasons for the denial. You may have the option to appeal the decision or seek further legal advice. It is advisable to carefully review the denial notice and consider your next steps based on the guidance provided.

Common mistakes

Filing a claim using the LD-0274 form can be a straightforward process, but many people stumble along the way. One common mistake is failing to provide complete personal information. This includes not only your name and address but also your email and phone number. Missing any of this information can lead to delays in processing your claim. It’s essential to ensure that every field is filled out accurately. Double-checking your details can save you time and frustration.

Another frequent error is neglecting to specify the exact date and time of the incident. This detail is crucial. If you don’t provide a precise date and time, it can complicate the review process. Claims need to be filed within six months of the incident, so missing this information could jeopardize your claim. Always take the time to confirm the specifics before submitting.

Many claimants also overlook the importance of describing the incident location thoroughly. Simply stating a highway or county isn’t enough. Instead, include as many details as possible, such as nearby landmarks or cross streets. The clearer your description, the easier it will be for the claims department to understand the context of your claim. Remember, a well-detailed location can make a significant difference.

When it comes to explaining how the injury or damage occurred, some individuals provide vague descriptions. This lack of detail can hinder your claim. Instead, be as specific as possible about the circumstances surrounding the incident. If you need more space, don’t hesitate to attach additional pages. The more information you provide, the stronger your claim will be.

Another common pitfall is not stating the dollar amount of your claim. Leaving this section blank can result in your claim being returned. It’s important to be clear about the amount you are requesting and to back it up with estimates or receipts. Submitting two estimates or one paid receipt is a requirement, so ensure you have this documentation ready.

Finally, many people forget to sign and date the form. An unsigned or undated claim will not be accepted. This is a simple yet critical step. Before you submit your form, take a moment to check that you’ve signed and dated it. A small oversight can lead to significant delays in getting your claim processed.

Documents used along the form

When filing a claim using the LD 0274 form, it is often necessary to submit additional documents to support your case. These documents help clarify the details of your claim and provide the necessary evidence for a thorough review. Below are some common forms and documents that are frequently used alongside the LD 0274 form.

  • Police Report: If law enforcement was involved in the incident, a police report serves as an official record of the event. It includes critical details such as the time, date, location, and parties involved, which can substantiate your claim.
  • Estimates for Damages: To validate your financial claim, you should submit two written estimates or one paid receipt for the damages incurred. These documents provide a clear picture of the costs associated with the injury or damage you are claiming.
  • Photographs: Visual evidence can significantly strengthen your claim. Photographs of the scene, damages, or injuries help illustrate the extent of the incident and can be persuasive during the review process.
  • Insurance Documentation: If applicable, including your insurance information can clarify any coverage that may relate to your claim. This documentation shows how much your insurance has paid or will pay regarding the incident.

Providing these additional documents not only supports your claim but can also expedite the review process. Ensuring that all necessary information is included will help facilitate a smoother experience as you seek resolution for your claim against the California Department of Transportation.

Similar forms

The LD 0274 form is a specific document used to file a claim against the California Department of Transportation for amounts of $10,000 or less. It shares similarities with several other documents that also serve as claim forms or notices of injury. Here are six such documents, along with a brief explanation of how each is similar to the LD 0274 form:

  • Standard Claim Form (SCF): This form is commonly used to file claims against various government entities. Like the LD 0274, it requires personal information, details of the incident, and a description of the damages or injuries claimed.
  • Notice of Claim (NOC): A Notice of Claim is often required before pursuing legal action against a government agency. Similar to the LD 0274, it must be filed within a specific time frame and includes details about the incident and the claimant's information.
  • Personal Injury Claim Form: This document is used to report personal injury claims to insurance companies. It mirrors the LD 0274 in that it asks for personal details, incident specifics, and the nature of the injuries sustained.
  • Property Damage Claim Form: Used for claims related to property damage, this form is akin to the LD 0274 as it requires the claimant to provide detailed information about the incident and the damage incurred.
  • Workers' Compensation Claim Form: Employees injured on the job use this form to claim benefits. Like the LD 0274, it necessitates personal information and a detailed account of how the injury occurred.
  • Vehicle Accident Report: This report is typically filed with law enforcement after a vehicle accident. It is similar to the LD 0274 because it documents the details of the incident, including the parties involved and the circumstances surrounding the accident.

Dos and Don'ts

When filling out the LD 0274 form, it is essential to follow certain guidelines to ensure your claim is processed smoothly. Below is a list of dos and don'ts to keep in mind.

  • Do complete the form electronically or use a typewriter.
  • Do sign and date the claim form. Unsigned and undated forms will not be accepted.
  • Do provide accurate personal information, including your full name, address, and contact details.
  • Do specify the exact date and time of the incident.
  • Do describe the location of the incident in detail, including landmarks.
  • Don't leave any sections of the form blank. Incomplete forms may delay processing.
  • Don't forget to attach supporting documents, such as police reports or photographs of the damage.
  • Don't claim an amount without providing estimates or receipts. This will render your claim incomplete.
  • Don't submit the form after the six-month deadline from the date of the incident.
  • Don't include unnecessary personal information that is not relevant to your claim.

Following these guidelines can significantly enhance the likelihood of a successful claim submission. Take your time to ensure all information is accurate and complete.

Misconceptions

Misconceptions about the LD 0274 form can lead to confusion and hinder the claims process. Here are eight common misconceptions, along with clarifications to help you understand this important document.

  • Only serious injuries qualify for a claim. Many believe that only severe injuries or significant damages can be claimed. However, the form is designed for claims of $10,000 or less, which can include minor injuries and property damage.
  • Claims must be filed immediately after an incident. Some individuals think they need to file a claim within days of an incident. In reality, you have six months from the date of the incident to submit your claim.
  • The form can be submitted without a signature. It is a common misconception that unsigned forms will be accepted. Unsigned and undated forms will not be processed, so ensure you sign and date your claim.
  • Providing personal information is mandatory. While the form requests personal information, it's important to note that providing this information is voluntary. However, not providing it may delay the processing of your claim.
  • You cannot submit additional documentation. Many believe that only the completed form is necessary. In fact, attaching supporting documents, such as photographs or police reports, can strengthen your claim.
  • Claims can be filed for any amount over $10,000. Some individuals think they can use this form for claims exceeding $10,000. However, this form is specifically for claims of $10,000 or less. Claims above this amount must be filed through a different process.
  • Claims are automatically approved. A common misunderstanding is that submitting a claim guarantees approval. Each claim is reviewed, and approval is based on the merits of the case and adherence to legal requirements.
  • Filing a claim is an admission of guilt. Many fear that filing a claim implies they are admitting fault. In reality, submitting a claim does not equate to an admission of liability on the part of the claimant or the state.

Understanding these misconceptions can help you navigate the claims process more effectively. Always ensure that you complete the form accurately and provide any necessary documentation to support your claim.

Key takeaways

Here are some key takeaways about filling out and using the LD 0274 form:

  • The form is used to file a claim against the California Department of Transportation for amounts of $10,000 or less.
  • Personal information requested on the form is voluntary but necessary for processing.
  • Claims must be filed within six months of the incident date.
  • Be sure to sign and date the form; unsigned or undated forms will not be accepted.
  • Provide detailed information about the incident, including time, date, and location.
  • Clearly explain how the injury or damage occurred and what you believe caused it.
  • Specify the exact injury or damage you are claiming, including supporting documents if possible.
  • Include the total dollar amount of your claim and submit two estimates or one paid receipt.
  • Attach any relevant documentation, such as police reports or photographs of the damage.
  • For claims over $10,000, contact the Government Claims Program in West Sacramento.