Content Navigation

The Lic2 License form serves as a critical document for individuals seeking to obtain or renew various professional licenses in New York City. It covers a wide range of application types, including new applications, renewals, and changes due to lost or stolen licenses. Applicants must provide detailed personal information, such as their name, address, and contact details, alongside specific business information if applicable. The form also allows for the designation of license use, whether for an individual, corporation, or partnership. Additionally, it requires a comprehensive history of prior licenses and certifications, as well as disclosures related to any legal convictions or fines. Importantly, applicants must affirm their compliance with relevant regulations and understand the serious implications of providing false information. This form is essential for maintaining the integrity of licensing in various trades, from plumbing to safety management, ensuring that all practitioners meet the necessary standards to operate legally and safely within the city.

Lic2 License Example

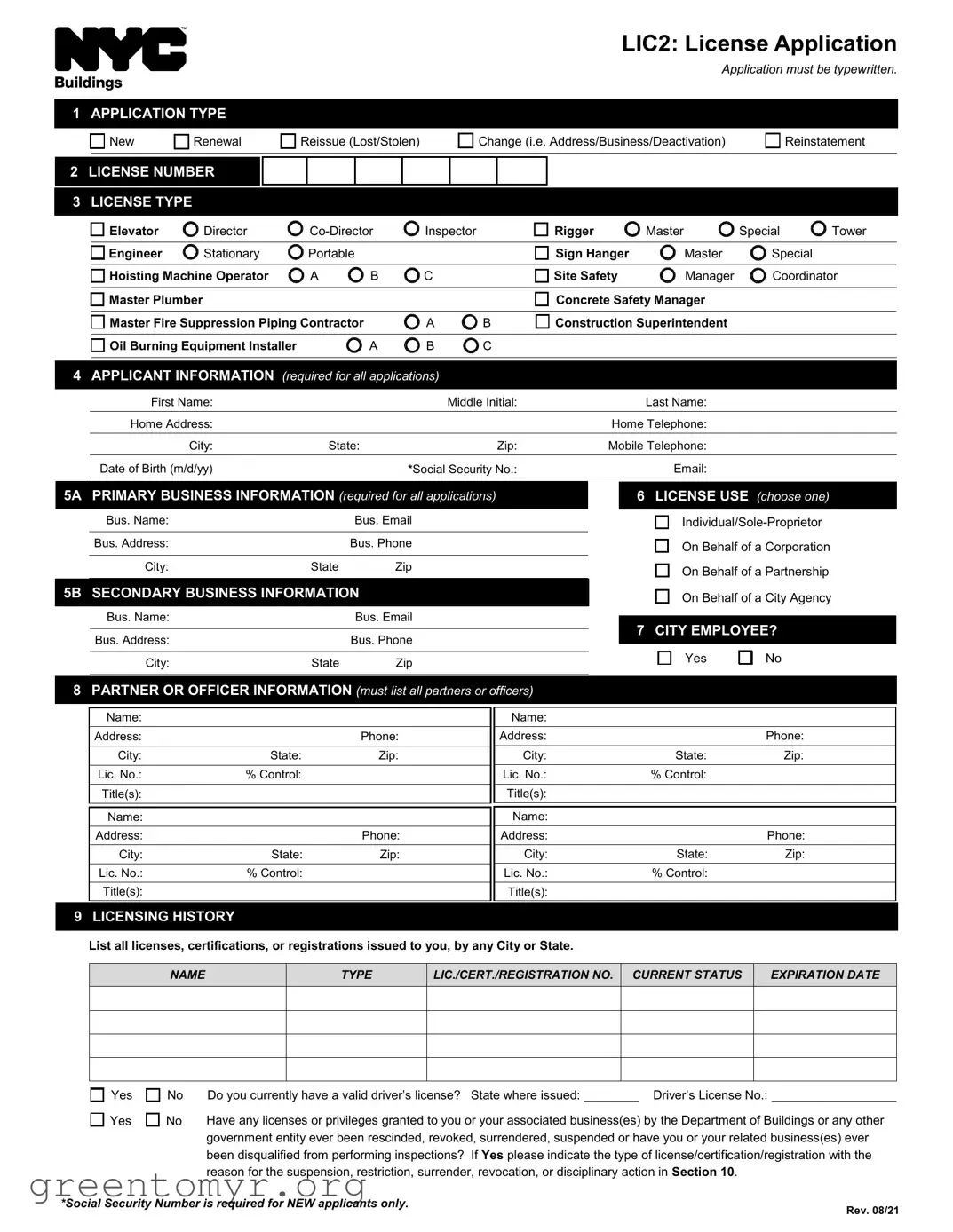
LIC2: License Application

Application must be typewritten.

1 APPLICATION TYPE

New

Renewal

Reissue (Lost/Stolen)

Change (i.e. Address/Business/Deactivation)

Reinstatement

2

LICENSE NUMBER

 

 

 

 

 

 

 

 

3

LICENSE TYPE

 

 

 

 

 

 

 

 

 

 

Elevator

Director

Co-Director

Inspector

 

Rigger

Master

Special

Tower

 

Engineer

Stationary

Portable

 

 

 

Sign Hanger

Master

Special

 

 

Hoisting Machine Operator

A

B

C

 

Site Safety

Manager

Coordinator

 

Master Plumber

 

 

 

 

 

Concrete Safety Manager

 

 

 

Master Fire Suppression Piping Contractor

 

A

B

Construction Superintendent

 

 

 

Oil Burning Equipment Installer

 

A

B

C

 

 

 

 

4APPLICANT INFORMATION (required for all applications)

First Name:

 

Middle Initial:

Last Name:

 

 

 

 

Home Address:

 

 

Home Telephone:

 

 

 

 

City:

State:

Zip:

Mobile Telephone:

 

 

 

 

Date of Birth (m/d/yy)

 

*Social Security No.:

Email:

5A PRIMARY BUSINESS INFORMATION (required for all applications)

Bus. Name:

 

Bus. Email

 

 

 

Bus. Address:

 

Bus. Phone

 

 

 

City:

State

Zip

 

 

 

5B SECONDARY BUSINESS INFORMATION

Bus. Name:

 

Bus. Email

 

 

 

Bus. Address:

 

Bus. Phone

 

 

 

City:

State

Zip

 

 

 

6 LICENSE USE (choose one)

Individual/Sole-Proprietor

On Behalf of a Corporation

On Behalf of a Partnership

On Behalf of a City Agency

7 CITY EMPLOYEE?

Yes

No

8PARTNER OR OFFICER INFORMATION (must list all partners or officers)

Name:

 

 

 

Name:

 

 

 

 

 

 

 

 

 

Address:

 

Phone:

 

Address:

 

Phone:

 

 

 

 

 

 

 

City:

State:

Zip:

 

City:

State:

Zip:

 

 

 

 

 

 

 

Lic. No.:

% Control:

 

 

Lic. No.:

% Control:

 

 

 

 

 

 

 

 

Title(s):

 

 

 

Title(s):

 

 

 

 

 

 

 

 

 

 

 

 

 

 

 

 

Name:

 

 

 

Name:

 

 

 

 

 

 

 

 

 

Address:

 

Phone:

 

Address:

 

Phone:

 

 

 

 

 

 

 

City:

State:

Zip:

 

City:

State:

Zip:

 

 

 

 

 

 

 

Lic. No.:

% Control:

 

 

Lic. No.:

% Control:

 

 

 

 

 

 

 

 

Title(s):

 

 

 

Title(s):

 

 

 

 

 

 

 

 

 

9

LICENSING HISTORY

List all licenses, certifications, or registrations issued to you, by any City or State.

NAME

TYPE

LIC./CERT./REGISTRATION NO. CURRENT STATUS

EXPIRATION DATE

Yes

Yes

No

Do you currently have a valid driver’s license? State where issued: ________ Driver’s License No.: __________________

No

Have any licenses or privileges granted to you or your associated business(es) by the Department of Buildings or any other

 

government entity ever been rescinded, revoked, surrendered, suspended or have you or your related business(es) ever

 

been disqualified from performing inspections? If Yes please indicate the type of license/certification/registration with the

reason for the suspension, restriction, surrender, revocation, or disciplinary action in Section 10.

*Social Security Number is required for NEW applicants only.

Rev. 08/21

 

LIC2: License Application

page 2

10 COMMENTS

11

CONVICTIONS & FINES

If you answer Yes to either of these questions, you must complete and attach form LIC34.

Yes

Yes

Yes

No

Have you ever been convicted or pled guilty to an offense anywhere (an offense is defined as a violation, misdemeanor or felony)?

No

Do you owe any penalties to the City of New York?

No

Does any company or business you have been associated with under your Department-issued license owe any fines, penalties

 

or fees to the City of New York that were incurred during your association with that company or business?

12

STATEMENTS & SIGNATURES

As a condition of being granted a license, I attest that I comply with all New York City Administrative Code and Department rules, regulations, and directives governing how licensees conduct their specific trade. I understand it is unlawful to make a false statement to the Department; or to give to a city employee, or for a city employee to accept, any benefit, monetary or otherwise, either as a gratuity for properly performing the job or in exchange for special consideration. Such actions are punishable by imprisonment, fine and/or loss of license. In the event of an accident that involves my actions undertaken in connection with my license, I understand that the Administrative Code requires that I cooperate with any investigation and that failure to do so may result in immediate suspension, revocation or other disciplinary action.

Name (print)

Signature

Date

Notarization

State of New York, County of:

Sworn to or affirmed under penalty of perjury

day of

20

Notary Signature

Notary Seal

INTERNAL USE ONLY

Fee Paid:

Transaction Type:

 

 

 

 

Expiration Date:

Clerk’s Signature:

Date:

Rev. 08/21

File Breakdown

Fact Name Description
Application Format The LIC2 License form must be typewritten for clarity and accuracy.
Application Types Applicants can choose from several types: New, Renewal, Reissue (Lost/Stolen), Change, or Reinstatement.
License Types The form covers various license types, including Elevator Director, Inspector, and Master Plumber, among others.
Applicant Information All applications require detailed personal information, including name, address, and contact numbers.
Business Information Applicants must provide primary and, if applicable, secondary business information, including business name and address.
Licensing History Applicants must list all licenses and certifications previously issued, along with their current status and expiration dates.
Governing Law This form is governed by the New York City Administrative Code and relevant Department regulations.

Guide to Using Lic2 License

Completing the Lic2 License form is a straightforward process. This form is essential for individuals seeking to apply for, renew, or change their license status. To ensure accuracy and compliance, follow the steps outlined below carefully.

  1. Begin by selecting the Application Type at the top of the form. Choose from options like New, Renewal, Reissue, Change, or Reinstatement.
  2. If applicable, enter your License Number in the designated space.
  3. Select the appropriate License Type from the list provided, such as Elevator Director or Master Plumber.
  4. Fill out the Applicant Information section. Provide your first name, middle initial, last name, home address, home telephone number, city, state, zip code, mobile telephone number, date of birth, social security number, and email address.
  5. Complete the Primary Business Information section. Include the business name, business email, business address, business phone number, city, state, and zip code.
  6. If applicable, fill out the Secondary Business Information section with the same details as above.
  7. Indicate your License Use by selecting one of the options provided, such as Individual/Sole-Proprietor or On Behalf of a Corporation.
  8. Answer whether you are a City Employee by selecting Yes or No.
  9. List all partners or officers in the Partner or Officer Information section. Include their names, addresses, phone numbers, city, state, zip code, license numbers, percentage of control, and titles.
  10. In the Licensing History section, provide details of all licenses, certifications, or registrations issued to you. Include the name, type, license/certification/registration number, current status, and expiration date.
  11. Answer the questions in the Convictions & Fines section. If you answer Yes to any question, complete and attach form LIC34.
  12. Read and sign the Statements & Signatures section. Print your name, sign, and date the form. Ensure notarization is completed if required.

After you have filled out the form, review it for completeness and accuracy. Once confirmed, submit the form according to the instructions provided. This may involve mailing it to a specific address or submitting it online, depending on the requirements of your local jurisdiction.

Get Answers on Lic2 License

What is the purpose of the LIC2 License form?

The LIC2 License form is used to apply for various types of licenses related to construction and safety professions in New York City. This includes licenses for elevator directors, inspectors, and various types of contractors. The form is essential for individuals seeking to obtain, renew, or change their licensing status.

Who needs to fill out the LIC2 License form?

Any individual or entity wishing to apply for a new license, renew an existing license, or make changes to their current license must complete the LIC2 License form. This includes sole proprietors, corporations, partnerships, and city agencies. Additionally, applicants must provide personal and business information as required by the form.

What information is required on the LIC2 License form?

The form requires several key pieces of information:

  1. Applicant's personal details, including name, address, and contact information.
  2. Business information, if applicable, such as business name and address.
  3. License type and number, if renewing or reissuing.
  4. Licensing history, including any previous licenses or certifications.
  5. Details regarding any convictions or fines, if applicable.

Completing the form accurately is crucial for processing the application efficiently.

What should I do if I have a criminal conviction?

If you have ever been convicted or pled guilty to an offense, it is mandatory to complete and attach form LIC34 along with your LIC2 License form. This applies to any violation, misdemeanor, or felony. Providing this information is essential for transparency and compliance with licensing regulations.

Is there a fee associated with submitting the LIC2 License form?

Yes, there is a fee that must be paid when submitting the LIC2 License form. The exact amount varies depending on the type of license being applied for or renewed. It is important to check the current fee schedule to ensure that the correct amount is submitted with the application.

What happens after I submit the LIC2 License form?

After submission, the application will be reviewed by the appropriate department. You will be notified of any additional information required or if your application has been approved or denied. Processing times may vary, so it is advisable to check the status of your application if you do not receive timely feedback.

Common mistakes

Completing the LIC2 License form requires careful attention to detail. Many applicants make common mistakes that can delay the processing of their application. Here are ten frequent errors to avoid.

First, applicants often fail to type the application. The instructions clearly state that the application must be typewritten. Handwritten forms are typically not accepted, leading to immediate rejection.

Another common mistake is neglecting to select the correct application type. Whether it’s a new application, renewal, or reissue, applicants must ensure they check the appropriate box. Failing to do so can cause confusion and delays.

In section 4, applicants frequently provide incomplete information. All fields, including first name, last name, and social security number, must be filled out accurately. Missing information can lead to processing delays.

Many people also overlook the requirement for primary and secondary business information. If applicable, both sections must be completed with accurate business names, addresses, and contact details. Incomplete business information can lead to complications in verifying the application.

Another issue arises in the licensing history section. Applicants sometimes omit previous licenses or certifications. It is essential to list all relevant licenses and their current status to ensure transparency.

Section 11 regarding convictions and fines is often misunderstood. Applicants must answer truthfully. If there are any convictions or outstanding penalties, they must complete and attach form LIC34. Failing to do so can result in serious consequences.

In addition, applicants sometimes forget to sign and date the application. This step is crucial as the signature serves as an affirmation of compliance with the necessary regulations.

Some applicants do not provide notarization, which is required in New York. Notarization must be completed correctly to validate the application. Without it, the application may be deemed incomplete.

Additionally, individuals often neglect to double-check their contact information. Providing incorrect phone numbers or email addresses can hinder communication with the Department, leading to further delays.

Lastly, applicants sometimes misinterpret the instructions regarding social security numbers. New applicants must include this information, while others may mistakenly believe it is optional. Clarity in this section is essential for processing.

By being mindful of these common mistakes, applicants can ensure a smoother process when submitting the LIC2 License form. Attention to detail is key in avoiding unnecessary delays.

Documents used along the form

When applying for a license, several forms and documents may be required alongside the Lic2 License form. Each document serves a specific purpose in ensuring compliance with regulations and verifying the applicant's qualifications. Below is a list of commonly used documents that you may encounter during the licensing process.

  • LIC34: Conviction and Fines Disclosure Form - This form is essential for disclosing any past convictions or fines. If you answer "yes" to any related questions on the Lic2 form, you must complete this document and attach it to your application.
  • Proof of Identity - Typically required to confirm the applicant's identity, this may include a government-issued photo ID, such as a driver's license or passport. This document helps verify that the information provided in the application is accurate.
  • Proof of Business Registration - If you are applying on behalf of a business, documentation proving that your business is legally registered is often necessary. This could include a certificate of incorporation or a business license.
  • Certificate of Insurance - Many licensing authorities require proof of insurance coverage relevant to the trade. This document demonstrates that you have the necessary liability coverage to operate safely and legally.
  • Continuing Education Certificates - Depending on the license type, you may need to provide certificates showing completion of relevant training or continuing education courses. These documents validate your qualifications and adherence to industry standards.
  • Letters of Recommendation - Some applications may benefit from letters of recommendation from industry professionals or previous employers. These letters can provide insight into your experience and reliability.
  • Application Fee Payment Receipt - Proof of payment for the application fee is often required. This receipt confirms that you have completed the financial obligation associated with your license application.

Gathering these documents ahead of time can streamline the application process and help ensure that your Lic2 License application is processed without delays. Be proactive in checking each requirement to avoid complications and expedite your licensing journey.

Similar forms

  • Business License Application: Similar to the Lic2 License form, a business license application requires detailed information about the business owner and the nature of the business. Both forms aim to ensure compliance with local regulations.
  • Professional License Application: This document is used by individuals seeking to obtain a professional license, such as for healthcare or engineering. Like the Lic2 form, it collects personal information and licensing history.
  • Driver’s License Application: The driver’s license application gathers personal details and requires proof of identity. Both forms necessitate a declaration of prior legal issues and compliance with regulations.
  • Building Permit Application: This document is required for construction projects. It shares similarities with the Lic2 form in that it requires information about the project and the applicant's qualifications.
  • Certificate of Occupancy Application: This application is needed to confirm that a building complies with zoning laws and building codes. It parallels the Lic2 form by ensuring that all necessary approvals are in place before operation.
  • Employment Application: This document collects personal and employment history from job applicants. Both the employment application and the Lic2 form require detailed background information and verification of qualifications.
  • Vendor Registration Form: Used by businesses wishing to sell goods or services to a government entity, this form is similar to the Lic2 in that it requires detailed business information and compliance statements.
  • Nonprofit Organization Registration: This document requires information about the organization and its officers. Like the Lic2 form, it ensures that all parties involved are compliant with regulations.
  • Permit for Special Events: This application is necessary for hosting public events. It parallels the Lic2 form in that it gathers information about the event and the individuals responsible for its organization.
  • Food Service License Application: This document is required for businesses that prepare and serve food. It shares similarities with the Lic2 form, as both require detailed applicant information and compliance with health and safety regulations.

Dos and Don'ts

When completing the Lic2 License form, attention to detail is crucial. Below is a list of recommendations and cautions to consider.

  • Do type your application. Handwritten forms may be rejected.
  • Do ensure that all required fields are filled out completely. Missing information can delay processing.
  • Do provide accurate contact information. This includes your home address, phone numbers, and email address.
  • Do double-check the application type you are selecting. Ensure it reflects your current situation.
  • Don't leave out the Social Security Number if you are a new applicant. It is mandatory.
  • Don't provide false information. Misrepresentation can lead to severe penalties.
  • Don't forget to sign and date the application. An unsigned form will not be processed.

Misconceptions

Here are seven common misconceptions about the Lic2 License form:

  • Only new applicants need to fill out the form completely. All applicants, including those renewing or reissuing licenses, must provide complete information.
  • Social Security numbers are required for all applicants. This is only necessary for new applicants, not for renewals or reissues.
  • You can submit the form handwritten. The application must be typewritten to ensure clarity and accuracy.
  • All business information is optional. Primary business information is required for all applications, including the business name and address.
  • Previous convictions do not need to be disclosed. Any past convictions must be reported, as they can affect licensing eligibility.
  • You can submit the form without notarization. Notarization is required to validate the application and affirm the information provided.
  • Only individuals can apply for a license. Applications can also be submitted on behalf of corporations, partnerships, or city agencies.

Key takeaways

When filling out the Lic2 License form, it is essential to follow specific guidelines to ensure a smooth application process. Here are key takeaways to keep in mind:

  • Typewritten Applications: All applications must be completed using a typewriter or a computer. Handwritten submissions are not accepted.
  • Application Types: Clearly indicate the type of application you are submitting: new, renewal, reissue, change, or reinstatement.
  • Applicant Information: Provide complete and accurate personal information, including your name, address, and contact details. This section is mandatory for all applications.
  • Business Information: If applicable, include primary and secondary business details, such as the business name, address, and contact information.
  • License Use: Specify whether you are applying as an individual, on behalf of a corporation, partnership, or city agency.
  • Partner or Officer Information: List all partners or officers associated with your application. Include their names, addresses, and contact details.
  • Licensing History: Document all licenses, certifications, or registrations you have received from any city or state, including their current status and expiration dates.
  • Convictions and Fines: Answer all questions honestly regarding any past convictions or fines. If applicable, complete and attach form LIC34.
  • Signatures and Notarization: Ensure that you sign the application and have it notarized. This step confirms your compliance with all relevant rules and regulations.

By adhering to these guidelines, applicants can avoid common pitfalls and expedite the processing of their Lic2 License application.