Content Navigation

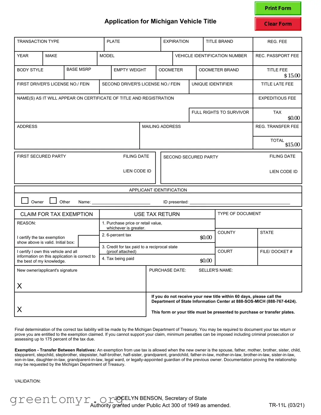
When it comes to registering a vehicle in Michigan, the Mi Tr 11L Application Title form plays a pivotal role in the process. This essential document collects vital information about the vehicle, including its year, make, model, and vehicle identification number (VIN). It also outlines the transaction type and any applicable fees, such as title fees and late fees. If you're transferring ownership, the form requires details about the previous owner and the purchase date, ensuring that all parties are properly documented. Additionally, it addresses tax exemptions, allowing for certain transfers between relatives without the burden of use tax. The form also includes a section for lien information, which is crucial for anyone financing their vehicle. With clear instructions and a straightforward layout, the Mi Tr 11L form is designed to make the title application process as seamless as possible, ensuring that you can hit the road with peace of mind knowing that your vehicle is properly registered.

Mi Tr 11L Application Title Example

Application for Michigan Vehicle Title

Print Form

Clear Form

TRANSACTION TYPE

 

 

PLATE

 

EXPIRATION

 

 

TITLE BRAND

REG. FEE

 

 

 

 

 

 

 

 

 

 

 

 

 

 

 

 

YEAR

 

MAKE

 

MODEL

 

 

VEHICLE IDENTIFICATION NUMBER

REC. PASSPORT FEE

 

 

 

 

 

 

 

 

 

 

 

 

 

 

 

BODY STYLE

 

BASE MSRP

 

 

 

EMPTY WEIGHT

ODOMETER

 

ODOMETER BRAND

TITLE FEE

 

 

 

 

 

 

 

 

 

 

 

 

 

 

 

$ 15.00

FIRST DRIVER'S LICENSE NO./ FEIN

 

SECOND DRIVER'S LICENSE NO./ FEIN

UNIQUE IDENTIFIER

TITLE LATE FEE

 

 

 

 

 

 

 

 

 

 

NAME(S) AS IT WILL APPEAR ON CERTIFICATE OF TITLE AND REGISTRATION

 

 

 

EXPEDITIOUS FEE

 

 

 

 

 

 

 

 

 

 

 

 

 

 

 

 

 

 

 

 

 

 

 

 

 

 

 

 

FULL RIGHTS TO SURVIVOR

TAX

 

 

 

 

 

 

 

 

 

 

 

 

 

 

 

$0.00

ADDRESS

 

 

 

 

 

 

MAILING ADDRESS

 

 

 

REG. TRANSFER FEE

 

 

 

 

 

 

 

 

 

 

 

 

 

 

 

 

 

 

 

 

 

 

 

 

 

 

 

 

 

 

 

TOTAL $15.00

 

 

 

 

 

 

 

 

 

 

 

 

 

 

 

 

FIRST SECURED PARTY

FILING DATE

 

LIEN CODE ID

SECOND SECURED PARTY

FILING DATE

 

LIEN CODE ID

APPLICANT IDENTIFICATION

Owner

 

Other

Name: _________________________

ID presented: ___________________________________________

CLAIM FOR TAX EXEMPTION

 

USE TAX RETURN

 

TYPE OF DOCUMENT

 

 

 

 

 

 

 

REASON:

1.

Purchase price or retail value,

 

 

 

 

 

 

whichever is greater.

 

 

 

 

 

 

 

COUNTY

STATE

I certify the tax exemption

 

2.

6-percent tax

$0.00

 

 

 

 

 

 

 

 

show above is valid. Initial box:

 

 

 

 

 

 

3.

Credit for tax paid to a reciprocal state

 

 

 

 

 

 

 

 

I certify I own this vehicle and all

 

COURT

FILE/ DOCKET #

 

(proof attached)

 

information on this application is correct to

4.

Tax being paid

$0.00

 

 

the best of my knowledge.

 

 

 

 

 

 

 

 

 

 

 

 

 

New owner/applicant's signature

 

PURCHASE DATE:

SELLER'S NAME:

 

X

 

 

If you do not receive your new title within 60 days, please call the

 

Department of State Information Center at 888-SOS-MICH (888-767-6424).

X

This form or your title must be presented to purchase or transfer plates.

Final determination of the correct tax liability will be made by the Michigan Department of Treasury. You may be required to document your tax return or

prove you are entitled to the exemption claimed. If you cannot support your claim, minimum penalties can be imposed including criminal prosecution or assessing up to 175 percent of the tax due.

Exemption - Transfer Between Relatives: An exemption from use tax is allowed when the new owner is the spouse, father, mother, brother, sister, child, stepparent, stepchild, stepbrother, stepsister, half-brother, half-sister, grandparent, grandchild, father-in-law, mother-in-law, brother-in-law, sister-in-law, son-in-law, daughter-in-law, grandparent-in-law, legal ward, or legally-appointed guardian of the previous owner. Documentation proving the relationship may be requested by the Michigan Department of Treasury.

VALIDATION:

JOCELYN BENSON, Secretary of State

TR-11L (03/21)

Authority granted under Public Act 300 of 1949 as amended.

File Breakdown

Fact Name Details
Form Purpose This form is used to apply for a vehicle title in Michigan.
Filing Fee The title fee is $15.00.
Governing Law This form is governed by Public Act 300 of 1949 as amended.
Tax Exemption Exemptions are available for transfers between relatives.
Submission Timeframe If you do not receive your title within 60 days, contact the Department of State.

Guide to Using Mi Tr 11L Application Title

Completing the Mi Tr 11L Application Title form is essential for obtaining a vehicle title in Michigan. This form requires specific information about the vehicle and the owner, ensuring that all necessary details are accurately recorded. Follow the steps below to fill out the form correctly.

  1. Begin by selecting the transaction type from the options provided.
  2. Fill in the plate expiration date.
  3. Indicate the title brand if applicable.
  4. Provide the registration fee amount.
  5. Enter the year, make, and model of the vehicle.
  6. Input the vehicle identification number (VIN).
  7. List the record passport fee if applicable.
  8. Complete the body style section.
  9. Fill in the base MSRP and empty weight of the vehicle.
  10. Record the odometer reading and any odometer brand information.
  11. Pay the title fee of $15.00.
  12. Enter the first driver's license number or FEIN.
  13. If applicable, provide the second driver's license number or FEIN.
  14. Fill in the unique identifier if required.
  15. Indicate if there is a title late fee.
  16. List the name(s) as it will appear on the certificate of title and registration.
  17. Include the expeditious fee if applicable.
  18. Document the full rights to survivor tax amount, which is $0.00.
  19. Provide the address and mailing address.
  20. Complete the registration transfer fee section.
  21. List the first secured party and the corresponding filing date and lien code ID.
  22. If applicable, provide the second secured party details.
  23. Fill in the applicant identification section.
  24. Indicate the claim for tax exemption and provide the use tax return details.
  25. Document the purchase date and seller's name.
  26. Sign the application to certify the information is correct.

Once the form is completed, it should be submitted to the appropriate department. If the title is not received within 60 days, it is advisable to contact the Department of State Information Center for assistance.

Get Answers on Mi Tr 11L Application Title

What is the purpose of the Mi Tr 11L Application Title form?

The Mi Tr 11L Application Title form is used to apply for a vehicle title in Michigan. This form is essential for individuals who have purchased a vehicle or are transferring ownership. It collects important information about the vehicle, the owner, and any lien holders. Completing this form accurately helps ensure that the title is issued correctly and in a timely manner.

What information do I need to provide on the form?

When filling out the Mi Tr 11L form, you will need to provide several key pieces of information, including:

  • The vehicle's year, make, model, and Vehicle Identification Number (VIN).
  • Your name and address, as well as the name and address of the previous owner if applicable.
  • Any lien holder information, if there are loans against the vehicle.
  • Details about the transaction, such as the purchase date and price.
  • Signature to certify that the information provided is accurate.

Be sure to double-check all entries for accuracy to avoid delays.

What should I do if I do not receive my title within 60 days?

If you have not received your new title within 60 days after submitting the Mi Tr 11L form, it is important to take action. You should contact the Department of State Information Center at 888-SOS-MICH (888-767-6424). They can provide assistance and help you understand the status of your application. Keeping a record of your submission can be helpful during this process.

Are there any exemptions from the use tax when transferring a vehicle title?

Yes, there are exemptions from the use tax when transferring a vehicle title, particularly when the new owner is a relative. The Michigan Department of Treasury allows exemptions for transfers between certain family members, including spouses, parents, siblings, and children, among others. To claim this exemption, you may need to provide documentation proving your relationship to the previous owner. It is crucial to ensure that you meet the criteria for the exemption to avoid penalties.

Common mistakes

Filling out the Mi Tr 11L Application Title form can be straightforward, but many applicants make common mistakes that can delay the process. Understanding these pitfalls can help ensure a smoother experience.

One frequent error is leaving out the vehicle identification number (VIN). This number is crucial for identifying the vehicle. Without it, the application may be deemed incomplete, leading to potential delays in obtaining the title.

Another mistake involves not providing accurate personal information. Applicants often forget to double-check their names, addresses, and driver's license numbers. Errors in these areas can cause confusion and may require additional verification, prolonging the title issuance.

Many applicants also overlook the importance of the purchase date. This date is essential for determining tax obligations and can affect the overall processing of the application. Failing to include or incorrectly stating the purchase date can lead to complications.

Additionally, some people fail to sign the application. An unsigned form is not valid and will be rejected. It is vital to ensure that all required signatures are present before submission.

Another common mistake is miscalculating the fees. The total amount due must be accurate, including any applicable taxes or late fees. Misunderstanding the fee structure can lead to underpayment or overpayment, both of which can complicate the application process.

Applicants sometimes neglect to check the exemption claims section. If claiming a tax exemption, proper documentation must be provided. Incomplete or incorrect claims may result in penalties or delays.

Furthermore, failing to provide proof of identity can be a significant issue. Applicants must present valid identification when submitting the form. Without it, the application cannot be processed.

Lastly, many individuals do not keep a copy of their submitted application. This can create problems if there are follow-up questions or if the application is lost in processing. Retaining a copy ensures that applicants have a record of what was submitted.

By being aware of these common mistakes, applicants can take steps to avoid them, facilitating a smoother application process for their vehicle title.

Documents used along the form

The Mi Tr 11L Application Title form is an essential document for obtaining a vehicle title in Michigan. However, several other forms and documents may accompany it to ensure a smooth transaction. Below is a list of commonly used forms that often go hand-in-hand with the Mi Tr 11L Application Title form.

  • Form TR-11: This is the standard application for a Michigan vehicle title, typically used for vehicles that are not subject to the Mi Tr 11L form. It includes similar information but may cater to different types of transactions.
  • Form TR-7: This form is used for the transfer of ownership of a vehicle. It includes details about the seller, buyer, and vehicle information, which are crucial for the title transfer process.
  • Form TR-17: The Affidavit of Ownership is often required when the owner cannot provide a title or when the vehicle is purchased from a private seller without a title. This form helps establish ownership legally.
  • Form TR-60: This is a Request for Title Correction form. It is used when there are errors in the title that need to be corrected, such as misspellings or incorrect vehicle identification numbers (VIN).
  • Form 5733: The Vehicle Registration Application is necessary for registering the vehicle after obtaining the title. It includes information about the vehicle and the owner and is required for obtaining license plates.
  • Form 5080: This is the Michigan Use Tax Exemption Certificate. It is used when claiming an exemption from use tax during the purchase of the vehicle, especially in transactions between family members.
  • Form 2268: The Lien Release form is essential when a vehicle has an existing lien. It serves as proof that the lien has been satisfied and allows the title to be transferred to a new owner without encumbrances.
  • Proof of Insurance: While not a formal state form, proof of insurance is often required to register the vehicle. This document demonstrates that the vehicle is insured as per Michigan's legal requirements.

Having these documents ready can streamline the process of obtaining a vehicle title and ensure compliance with Michigan's regulations. Each form serves a specific purpose, helping to clarify ownership, correct errors, and facilitate the transfer of titles and registrations. Understanding these documents will aid in navigating the vehicle title process more effectively.

Similar forms

  • Form TR-11: This form is used for the application of a vehicle title in Michigan. Like the Mi Tr 11L, it requires similar information such as the vehicle identification number, owner's details, and transaction type.
  • Form TR-12: The TR-12 form is utilized for the transfer of vehicle ownership. It shares similarities with the Mi Tr 11L in terms of needing the seller's and buyer's information, as well as vehicle details for the transfer process.
  • Form TR-13: This form applies to the application for a duplicate title. It requires information about the vehicle and the owner, mirroring the Mi Tr 11L in its purpose of establishing ownership.
  • Form TR-14: Used for the application of a salvage title, the TR-14 requires details similar to those on the Mi Tr 11L, including vehicle specifications and ownership information.
  • Form TR-15: This form is for the application of a title for a vehicle purchased from a dealer. Like the Mi Tr 11L, it collects necessary details about the transaction and the vehicle to ensure proper registration.
  • Form TR-16: The TR-16 is for requesting a title for a vehicle that has been previously registered out of state. It parallels the Mi Tr 11L in gathering ownership and vehicle information to facilitate the title application process.

Dos and Don'ts

When filling out the Mi Tr 11L Application Title form, keep these tips in mind:

  • Do double-check your information. Ensure all names, addresses, and vehicle details are accurate.
  • Don't leave any required fields blank. Incomplete forms can delay processing.
  • Do sign the application. Your signature is essential for processing your request.
  • Don't forget to include the correct fees. Ensure payment is included to avoid any delays.
  • Do provide documentation for tax exemptions. If claiming an exemption, be ready to support your claim.
  • Don't use incorrect or outdated forms. Always use the latest version of the form to ensure compliance.

Following these guidelines will help streamline the process and get your title without unnecessary delays.

Misconceptions

Here are four common misconceptions about the Mi Tr 11L Application Title form:

  • Misconception 1: The form is only for new vehicle purchases.
  • This form is not limited to new vehicle purchases. It is used for various transactions, including transfers of ownership for used vehicles and title updates.

  • Misconception 2: You don't need to provide proof of tax exemption.
  • Even if you claim a tax exemption, you may need to provide documentation to support your claim. The Michigan Department of Treasury may request proof of your eligibility.

  • Misconception 3: The title will be issued automatically after submission.
  • Submitting the form does not guarantee that you will receive your title within a specific timeframe. If you do not receive it within 60 days, you should contact the Department of State Information Center.

  • Misconception 4: All vehicle transfers are exempt from taxes.
  • Not all vehicle transfers qualify for tax exemptions. The exemption only applies in specific situations, such as transfers between certain family members. Documentation may be required to prove the relationship.

Key takeaways

  • Ensure you fill out the Mi Tr 11L Application Title form completely and accurately. Missing or incorrect information can delay the processing of your title.

  • Keep in mind that the title fee is $15.00, and additional fees may apply depending on your specific circumstances, such as late fees or expeditious processing fees.

  • Be aware that if you do not receive your new title within 60 days, you should contact the Department of State Information Center for assistance.

  • If you are claiming a tax exemption, be prepared to provide documentation that supports your claim. The Michigan Department of Treasury may require proof of your relationship if the transfer is between relatives.

  • Sign the application to certify that all information provided is correct. Your signature indicates that you acknowledge the potential penalties for providing false information, which can include significant financial consequences.