Content Navigation

The Michigan Property Transfer Affidavit 2766 form plays a crucial role in the real estate transaction process within the state of Michigan. This document is essential for both buyers and sellers, as it provides necessary information regarding property transfers to local assessing officials. It helps ensure accurate property tax assessments by detailing the sale price, property characteristics, and any exemptions that may apply. When a property changes hands, the form must be completed and submitted to the appropriate local government office, typically within 45 days of the transfer. This requirement aids in maintaining up-to-date property records, which are vital for tax purposes and community planning. Furthermore, the form includes sections for the identification of the parties involved in the transaction, as well as any relevant details about the property itself, such as its location and size. Understanding the significance of this affidavit can facilitate a smoother transaction process and help avoid potential legal complications down the line.

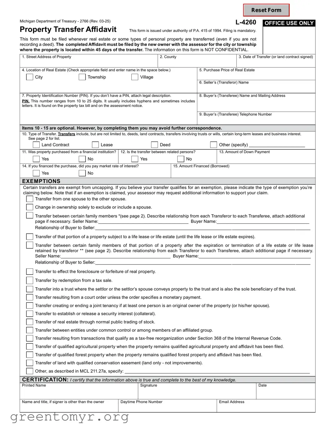
Michigan Property Transfer Affidavit 2766 Example

 

 

 

 

 

 

 

 

 

 

 

 

Reset Form

 

 

 

 

 

 

 

 

 

 

 

 

 

 

 

Michigan Department of Treasury - 2766 (Rev. 03-25)

 

 

 

 

 

L-4260

OFFICE USE ONLY

 

 

 

 

 

 

 

 

 

 

Property Transfer Affidavit

This form is issued under authority of P.A. 415 of 1994. Filing is mandatory.

 

 

 

 

This form must be filed whenever real estate or some types of personal property are transferred (even if you are not

 

 

recording a deed). The completed Affidavit must be filed by the new owner with the assessor for the city or township

 

 

where the property is located within 45 days of the transfer. The information on this form is NOT CONFIDENTIAL.

 

 

 

 

 

 

 

 

 

 

 

 

 

 

 

 

 

1. Street Address of Property

 

 

 

 

 

2. County

 

 

3. Date of Transfer (or land contract signed)

 

 

 

 

 

 

 

 

 

 

 

 

 

 

4. Location of Real Estate (Check appropriate field and enter name in the space

below.)

5.

Purchase Price of

Real Estate

 

 

 

 

City

 

Township

 

 

Village

 

 

 

 

 

 

 

 

 

 

 

 

 

 

 

 

 

 

 

 

 

 

 

 

 

 

6.

Seller’s (Transferor) Name

 

 

 

 

 

 

 

 

 

 

 

 

 

 

 

 

7. Property Identification Number (PIN). If you don’t have a PIN, attach legal description.

8.

Buyer’s (Transferee) Name and Mailing Address

PIN. This number ranges from 10 to 25 digits. It usually includes hyphens and sometimes includes

 

 

 

 

 

 

letters. It is found on the property tax bill and on the assessment notice.

 

 

 

 

 

 

 

 

 

 

 

 

 

 

 

 

 

 

 

 

 

 

 

 

 

 

 

 

 

 

9.

Buyer’s (Transferee) Telephone Number

 

 

 

 

 

 

 

 

 

 

 

 

 

 

 

Items 10 - 15 are optional. However, by completing them you may avoid further correspondence.

10.Type of Transfer. Transfers include, but are not limited to, deeds, land contracts, transfers involving trusts or wills, certain long-term leases and business interest.

See page 2 for list.

Land Contract

Lease

Deed

Other (specify) _______________________

11. Was property purchased from a financial institution?

12. Is the transfer between related persons?

13. Amount of Down Payment

 

 

Yes

 

No

 

 

Yes

 

 

No

 

 

 

 

 

 

 

 

 

 

 

 

 

14. If you financed the purchase, did you pay market rate

of interest?

15. Amount Financed (Borrowed)

 

 

Yes

 

No

 

 

 

 

 

 

 

 

 

 

 

 

 

 

 

 

 

EXEMPTIONS

Certain transfers are exempt from uncapping. If you believe your transfer qualifies for an exemption, please indicate the type of exemption you’re claiming below. Note that if an exemption is claimed, your assessor may request additional information to support your claim.

Transfer from one spouse to the other spouse.

Change in ownership solely to exclude or include a spouse.

Transfer between certain family members *(see page 2). Describe relationship from each Transferor to each Transferee, attach additional page if necessary. Seller Name:_____________________________________ Buyer Name:______________________________________

Relationship of Buyer to Seller:________________________________________________________________________________________

Transfer of that portion of a property subject to a life lease or life estate (until the life lease or life estate expires).

Transfer between certain family members of that portion of a property after the expiration or termination of a life estate or life lease retained by transferor ** (see page 2). Describe relationship from each Transferor to each Transferee, attach additional page if necessary. Seller Name:_____________________________________________ Buyer Name:______________________________________________

Relationship of Buyer to Seller:________________________________________________________________________________________

Transfer to effect the foreclosure or forfeiture of real property.

Transfer by redemption from a tax sale.

Transfer into a trust where the settlor or the settlor’s spouse conveys property to the trust and is also the sole beneficiary of the trust.

Transfer resulting from a court order unless the order specifies a monetary payment.

Transfer creating or ending a joint tenancy if at least one person is an original owner of the property (or his/her spouse).

Transfer to establish or release a security interest (collateral).

Transfer of real estate through normal public trading of stock.

Transfer between entities under common control or among members of an affiliated group.

Transfer resulting from transactions that qualify as a tax-free reorganization under Section 368 of the Internal Revenue Code.

Transfer of qualified agricultural property when the property remains qualified agricultural property and affidavit has been filed. Transfer of qualified forest property when the property remains qualified forest property and affidavit has been filed.

Transfer of land with qualified conservation easement (land only - not improvements).

Other, as described in MCL 211.27a, specify: ____________________________________________________________________________

CERTIFICATION: I certify that the information above is true and complete to the best of my knowledge.

Printed Name

Signature

Date

Name and title, if signer is other than the owner

Daytime Phone Number

Email Address

2766, Page 2

Instructions:

This form must be filed when there is a transfer of real property or one of the following types of personal property:

Buildings on leased land.

Leasehold improvements, as defined in MCL Section 211.8(h).

Leasehold estates, as defined in MCL Section 211.8(i) and (j).

Transfer of ownership means the conveyance of title to or a present interest in property, including the beneficial use of the property. For complete descriptions of qualifying transfers, please refer to MCL Section 211.27a(6)(a-j).

Excerpts from Michigan Compiled Laws (MCL), Chapter 211

**Section 211.27a(7)(d): Beginning December 31, 2014, a transfer of that portion of residential real property that had been subject to a life estate or life lease retained by the transferor resulting from expiration or termination of that life estate or life lease, if the transferee is the transferor’s or transferor’s spouse’s mother, father, brother, sister, son, daughter, adopted son, adopted daughter, grandson, or granddaughter and the residential real property is not used for any commercial purpose following the transfer. Upon request by the department of treasury or the assessor, the transferee shall furnish proof within 30 days that the transferee meets the requirements of this subdivision. If a transferee fails to comply with a request by the department of treasury or assessor under this subdivision, that transferee is subject to a fine of $200.00.

*Section 211.27a(7)(u): Beginning December 31, 2014, a transfer of residential real property if the transferee is the transferor’s or the transferor’s spouse’s mother, father, brother, sister, son, daughter, adopted son, adopted daughter, grandson, or granddaughter and the residential real property is not used for any commercial purpose following the conveyance. Upon request by the department of treasury or the assessor, the transferee shall furnish proof within 30 days that the transferee meets the requirements of this subparagraph. If a transferee fails to comply with a request by the department of treasury or assessor under this subparagraph, that transferee is subject to a fine of $200.00.

Section 211.27a(10): “... the buyer, grantee, or other transferee of the property shall notify the appropriate assessing office in the local unit of government in which the property is located of the transfer of ownership of the property within 45 days of the transfer of ownership, on a form prescribed by the state tax commission that states the parties to the transfer, the date of the transfer, the actual consideration for the transfer, and the property’s parcel identification number or legal description.”

Section 211.27(6): “Except as otherwise provided in subsection (7), the purchase price paid in a transfer of property is not the presumptive true cash value of the property transferred. In determining the true cash value of transferred property, an assessing officer shall assess that property using the same valuation method used to value all other property of that same classification in the assessing jurisdiction.”

Penalties:

Section 211.27b(1): “If the buyer, grantee, or other transferee in the immediately preceding transfer of ownership of property does not notify the appropriate assessing office as required by section 27a(10), the property’s taxable value shall be adjusted under section 27a(3) and, subject to subsection (9), all of the following must be levied:

(a)Any additional taxes that would have been levied if the transfer of ownership had been recorded as required under this act from the date of transfer.

(b)Interest and penalty from the date the tax would have been originally levied.

(c)For property classified under section 34c as either industrial real property or commercial real property, a penalty in the following amount:

(i)Except as otherwise provided in subparagraph (ii), if the sale price of the property transferred is $100,000,000.00 or less, $20.00 per day for each separate failure beginning after the 45 days have elapsed, up to a maximum of $1,000.00.

(ii)If the sale price of the property transferred is more than $100,000,000.00, $20,000.00 after the 45 days have elapsed.

(d)For real property other than real property classified under section 34c as industrial real property or commercial real property, a penalty of $5.00 per day for each separate failure beginning after the 45 days have elapsed, up to a maximum of one of the following, as applicable:

(i)For property owned and occupied as a principal residence, $200.00. As used in subparagraph, “principal residence” means that term as defined in section 7dd.

(ii)For all other property, $4000.00

File Breakdown

Fact Name Description
Purpose The Michigan Property Transfer Affidavit 2766 form is used to report the transfer of property ownership to the local tax assessor.
Filing Requirement Property owners must file this affidavit within 45 days of the transfer of ownership to ensure accurate property tax assessments.
Governing Law This form is governed by the Michigan Compiled Laws, specifically MCL 211.27a.
Who Files The seller or the buyer of the property is responsible for completing and submitting the affidavit.
Information Required The form requires details such as the property address, the names of the parties involved, and the sale price.
Consequences of Non-Compliance Failure to file the affidavit may result in penalties or inaccurate property tax assessments, affecting future tax bills.

Guide to Using Michigan Property Transfer Affidavit 2766

Completing the Michigan Property Transfer Affidavit 2766 form is an important step in the property transfer process. Once you have filled out the form, you will need to submit it to the appropriate local government office, ensuring that all necessary information is accurate and complete. This will help facilitate the transfer of ownership and ensure compliance with local regulations.

  1. Begin by downloading the Michigan Property Transfer Affidavit 2766 form from the Michigan Department of Treasury website or obtain a physical copy from your local government office.
  2. At the top of the form, enter the property address, including the city, state, and zip code.
  3. Provide the name of the seller and the buyer in the designated sections. Ensure that names are spelled correctly and match official identification.
  4. Fill in the date of the transfer. This is typically the date when the deed is signed or recorded.
  5. Indicate the type of transfer by checking the appropriate box. Options may include a sale, gift, or inheritance.
  6. Complete the section regarding the purchase price or value of the property. If the transfer is a gift or inheritance, indicate that accordingly.
  7. In the next section, provide details about any existing mortgages or liens on the property. This information is crucial for accurate record-keeping.
  8. Sign and date the affidavit at the bottom of the form. Both the seller and buyer may need to sign, depending on the circumstances of the transfer.
  9. Review the completed form for accuracy. Ensure that all fields are filled out and that there are no errors.
  10. Submit the completed form to your local government office. Keep a copy for your records.

Get Answers on Michigan Property Transfer Affidavit 2766

What is the Michigan Property Transfer Affidavit 2766 form?

The Michigan Property Transfer Affidavit 2766 form is a document used to report the transfer of property ownership in Michigan. It provides local assessors with information about the property, including its sale price, the names of the buyer and seller, and any changes in property use. This form is essential for ensuring accurate property tax assessments.

Who is required to file the Property Transfer Affidavit?

Typically, the seller or the buyer of the property is responsible for filing the Property Transfer Affidavit. The form must be submitted to the local assessor’s office within 45 days of the property transfer. Failure to file on time may result in penalties or complications in the property tax assessment process.

What information is needed to complete the form?

To complete the Michigan Property Transfer Affidavit 2766, you will need the following information:

  1. The names and addresses of the buyer and seller.
  2. The property address and legal description.
  3. The sale price of the property.
  4. The date of the transfer.
  5. Any changes in the property use or ownership structure.

Where do I submit the completed form?

The completed Property Transfer Affidavit should be submitted to the local assessor’s office in the municipality where the property is located. It is advisable to check with the specific local office for any additional requirements or submission methods, such as electronic filing options.

What happens if I do not file the affidavit?

If the Property Transfer Affidavit is not filed within the required 45-day period, the local assessor may not have the necessary information to update property records accurately. This can lead to incorrect property tax assessments, potential penalties, and complications in future property transactions.

Is there a fee associated with filing the Property Transfer Affidavit?

Can I file the affidavit electronically?

Some local assessors in Michigan may offer electronic filing options for the Property Transfer Affidavit. It is recommended to visit the website of your local assessor’s office or contact them directly to determine if electronic submission is available and to obtain any specific instructions.

Common mistakes

Filling out the Michigan Property Transfer Affidavit 2766 form can be straightforward, but many people make common mistakes that can lead to complications. One frequent error is not providing complete information. The form requires specific details about the property and the parties involved. Omitting even a small piece of information can delay processing.

Another mistake is failing to sign the affidavit. A signature is essential for validating the document. Without it, the form is considered incomplete. Additionally, some individuals forget to date the affidavit, which is another critical requirement. A missing date can raise questions about the timing of the property transfer.

Many people also misinterpret the instructions regarding property descriptions. The affidavit requires a clear and accurate description of the property. Using vague terms or generalizations can create confusion and may lead to issues with property records.

Incorrectly calculating the property transfer tax is another common pitfall. The affidavit includes a section for tax calculation based on the property's sale price. Miscalculating this amount can result in underpayment or overpayment, both of which can complicate the transaction.

Some individuals neglect to include any applicable exemptions. If a property qualifies for certain exemptions, failing to mention them can lead to higher taxes than necessary. It's important to review eligibility for exemptions before submitting the form.

Another mistake is not submitting the affidavit within the required timeframe. Michigan law mandates that the affidavit be filed within a specific period after the property transfer. Delays can lead to penalties or complications in the property transfer process.

People often overlook the need for supporting documentation. In some cases, additional documents must accompany the affidavit. Not including these can slow down processing or lead to rejection of the form.

Lastly, not keeping a copy of the completed affidavit for personal records is a common oversight. Having a copy can be useful for future reference, especially if questions arise regarding the property transfer.

Documents used along the form

The Michigan Property Transfer Affidavit 2766 form is an important document used during real estate transactions in Michigan. When completing a property transfer, there are several other forms and documents that may also be necessary. Below is a list of some commonly used documents that accompany the Property Transfer Affidavit.

  • Deed: This legal document transfers ownership of the property from the seller to the buyer. It includes details about the property and the parties involved in the transaction.
  • Closing Statement: Also known as a settlement statement, this document outlines all financial aspects of the transaction, including the purchase price, closing costs, and any adjustments made.
  • Title Insurance Policy: This policy protects the buyer and lender from any issues that may arise regarding the property’s title, such as liens or ownership disputes.
  • Property Disclosure Statement: This form provides information about the condition of the property. Sellers are required to disclose known issues that could affect the property’s value or desirability.
  • Mortgage Documents: If the buyer is financing the purchase, various mortgage documents will be needed. These include the loan application, promissory note, and mortgage agreement.

These documents work together to ensure a smooth property transfer process. It is important to review each one carefully and ensure all necessary forms are completed accurately.

Similar forms

The Michigan Property Transfer Affidavit 2766 form is an important document in real estate transactions. Several other documents serve similar purposes in property transfers or related processes. Here are ten documents that share similarities with the Michigan Property Transfer Affidavit:

  • Quit Claim Deed: This document transfers ownership of property without any warranties. It is often used to clear up title issues, similar to how the affidavit clarifies property details.
  • Warranty Deed: Unlike a quit claim deed, this document guarantees that the seller holds clear title to the property. It provides assurances about ownership, much like the affidavit provides information about the property transfer.
  • Real Estate Purchase Agreement: This contract outlines the terms of a property sale. It sets the stage for the transfer, similar to how the affidavit confirms the details post-sale.
  • Title Insurance Policy: This document protects buyers against future claims on the property. It complements the affidavit by ensuring that the property title is clear.
  • Property Deed: The deed is the legal document that officially transfers property ownership. The affidavit provides additional information that may be required for tax purposes.
  • Affidavit of Title: This sworn statement confirms the seller’s ownership and the absence of liens. It serves a similar purpose in establishing ownership, like the Michigan affidavit.
  • Transfer Tax Affidavit: This form is used to report the sale of real estate for tax purposes. It is often submitted alongside the property transfer affidavit.
  • Closing Statement: This document summarizes the financial aspects of a real estate transaction. It includes details that may also be reflected in the property transfer affidavit.
  • Declaration of Value: This form provides information about the value of the property being transferred. It is often required in conjunction with the affidavit for tax assessment purposes.
  • Lease Agreement: While primarily for rental properties, this document outlines terms similar to those found in property transfer agreements, detailing rights and obligations.

Dos and Don'ts

When filling out the Michigan Property Transfer Affidavit 2766 form, it is crucial to follow specific guidelines to ensure accuracy and compliance. Here are six essential dos and don'ts to consider:

  • Do provide accurate and complete information about the property.
  • Do sign and date the form in the appropriate sections.
  • Do keep a copy of the completed form for your records.
  • Don't leave any required fields blank; this may delay processing.
  • Don't submit the form without verifying all details for correctness.
  • Don't forget to check local regulations that may affect the submission process.

Misconceptions

The Michigan Property Transfer Affidavit 2766 form is an important document used during property transactions in Michigan. However, several misconceptions surround this form, leading to confusion among buyers, sellers, and real estate professionals. Here are eight common misconceptions:

  • It is only required for sales over a certain amount. Many people believe that the affidavit is only necessary for high-value transactions. In reality, it is required for all property transfers, regardless of the sale price.
  • Only the seller needs to complete the form. Some think that only the seller is responsible for filling out the affidavit. However, both the buyer and seller must ensure that the form is completed accurately to reflect the transaction.
  • The form is optional. There is a misconception that submitting the affidavit is optional. In fact, it is a mandatory document that must be filed with the local assessor’s office to properly record the transfer of property.
  • It can be submitted anytime after the sale. Many believe they can submit the affidavit at their convenience. However, it should be filed within 45 days of the property transfer to avoid penalties or complications.
  • It only applies to residential properties. Some people think the affidavit is only relevant for residential real estate transactions. In truth, it applies to all types of property transfers, including commercial and industrial properties.
  • Filing the affidavit guarantees a change in property taxes. There is a belief that submitting the affidavit will automatically change the property tax assessment. While it does provide information to the assessor, any changes in taxes depend on the local assessment practices.
  • It is the same as a deed. Some individuals confuse the affidavit with a property deed. While both documents are related to property transfer, the affidavit serves a different purpose, primarily for tax assessment purposes.
  • Once filed, the affidavit cannot be amended. Many think that once the affidavit is submitted, it cannot be changed. In reality, if errors are found after submission, it is possible to amend the affidavit by following the proper procedures.

Understanding these misconceptions can help ensure a smoother property transfer process in Michigan. Always consult with a knowledgeable real estate professional or legal advisor for the most accurate guidance.

Key takeaways

When dealing with property transfers in Michigan, understanding the Property Transfer Affidavit 2766 form is essential. Here are some key takeaways to keep in mind:

  • Purpose of the Form: This form is used to report changes in property ownership and to ensure accurate assessment of property taxes.
  • Who Needs to File: The affidavit must be filed by the new owner or the seller within 45 days of the property transfer.
  • Information Required: You will need to provide details such as the property address, the names of the buyer and seller, and the sale price.
  • Filing Location: Submit the completed form to your local assessor's office. Check their specific requirements for submission.
  • Impact on Taxes: Filing the affidavit can affect property tax assessments, so it’s important to complete it accurately.
  • Keep a Copy: Always retain a copy of the filed affidavit for your records. This can be useful for future reference.
  • Seek Help if Needed: If you have questions or need assistance, consider reaching out to a local real estate professional or legal advisor.

By following these guidelines, you can navigate the property transfer process more smoothly and ensure compliance with Michigan regulations.