Content Navigation

The MV-426B form serves as a crucial document for individuals seeking to register various types of vehicles that have undergone significant modifications or have been salvaged. This form is specifically designed for reconstructed, specially constructed, collectible, modified, flood, recovered theft vehicles, and street rods. Applicants must provide comprehensive information, including personal details, vehicle type, and a detailed explanation of the modifications or repairs made. The form also requires documentation such as certificates of title or salvage, receipts for parts, and inspection details to ensure compliance with Pennsylvania's vehicle regulations. Additionally, the MV-426B includes sections for weight certification and components replaced or repaired, which must be filled out accurately to facilitate the registration process. Understanding the requirements and properly completing this form is essential for a smooth transition to legal ownership and operation of these specialized vehicles.

Mv 426B Pa Example

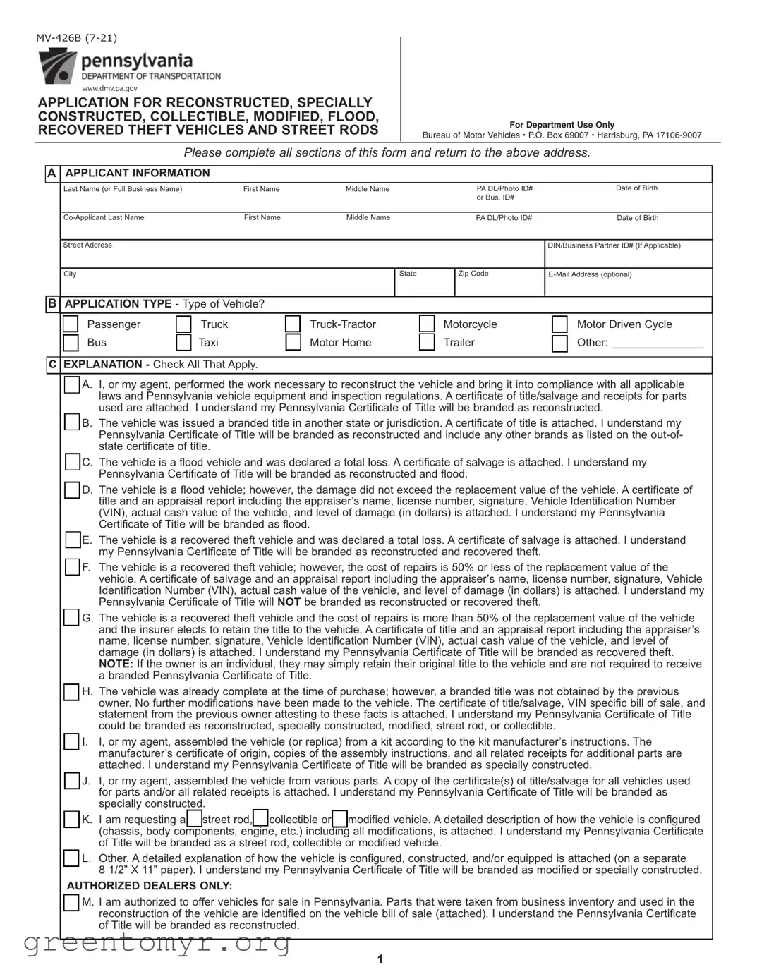
MV-426B (7-21)

www.dmv.pa.gov

APPLICATION FOR RECONSTRUCTED, SPECIALLY CONSTRUCTED, COLLECTIBLE, MODIFIED, FLOOD, RECOVERED THEFT VEHICLES AND STREET RODS

For Department Use Only

Bureau of Motor Vehicles • P.O. Box 69007 • Harrisburg, PA 17106-9007

Please complete all sections of this form and return to the above address.

A

APPLICANT INFORMATION

 

 

 

 

 

 

 

 

 

 

 

 

 

 

 

 

 

 

Last Name (or Full Business Name)

First Name

 

Middle Name

 

 

PA DL/Photo ID#

 

Date of Birth

 

 

 

 

 

 

 

 

 

or Bus. ID#

 

 

 

 

 

 

 

 

 

 

 

 

 

 

Co-Applicant Last Name

 

First Name

 

Middle Name

 

 

PA DL/Photo ID#

 

Date of Birth

 

 

 

 

 

 

 

 

 

 

 

Street Address

 

 

 

 

 

 

 

DIN/Business Partner ID# (If Applicable)

 

 

 

 

 

 

 

 

 

 

 

 

City

 

 

 

 

 

State

 

Zip Code

E-Mail Address (optional)

 

 

 

 

 

 

 

 

 

B

APPLICATION TYPE - Type of Vehicle?

 

 

 

 

 

 

 

 

 

 

 

 

 

 

 

 

 

 

 

 

r

Passenger

r

Truck

r

Truck-Tractor

r

Motorcycle

r

Motor Driven Cycle

 

r

Bus

r

Taxi

r

Motor Home

r

Trailer

r

Other: _______________

CEXPLANATION - Check All That Apply.

rA. I, or my agent, performed the work necessary to reconstruct the vehicle and bring it into compliance with all applicable laws and Pennsylvania vehicle equipment and inspection regulations. A certificate of title/salvage and receipts for parts used are attached. I understand my Pennsylvania Certificate of Title will be branded as reconstructed.

rB. The vehicle was issued a branded title in another state or jurisdiction. A certificate of title is attached. I understand my Pennsylvania Certificate of Title will be branded as reconstructed and include any other brands as listed on the out-of- state certificate of title.

rC. The vehicle is a flood vehicle and was declared a total loss. A certificate of salvage is attached. I understand my Pennsylvania Certificate of Title will be branded as reconstructed and flood.

rD. The vehicle is a flood vehicle; however, the damage did not exceed the replacement value of the vehicle. A certificate of

title and an appraisal report including the appraiser’s name, license number, signature, Vehicle Identification Number (VIN), actual cash value of the vehicle, and level of damage (in dollars) is attached. I understand my Pennsylvania Certificate of Title will be branded as flood.

rE. The vehicle is a recovered theft vehicle and was declared a total loss. A certificate of salvage is attached. I understand my Pennsylvania Certificate of Title will be branded as reconstructed and recovered theft.

rF. The vehicle is a recovered theft vehicle; however, the cost of repairs is 50% or less of the replacement value of the vehicle. A certificate of salvage and an appraisal report including the appraiser’s name, license number, signature, Vehicle Identification Number (VIN), actual cash value of the vehicle, and level of damage (in dollars) is attached. I understand my Pennsylvania Certificate of Title will NOT be branded as reconstructed or recovered theft.

rG. The vehicle is a recovered theft vehicle and the cost of repairs is more than 50% of the replacement value of the vehicle and the insurer elects to retain the title to the vehicle. A certificate of title and an appraisal report including the appraiser’s name, license number, signature, Vehicle Identification Number (VIN), actual cash value of the vehicle, and level of damage (in dollars) is attached. I understand my Pennsylvania Certificate of Title will be branded as recovered theft. NOTE: If the owner is an individual, they may simply retain their original title to the vehicle and are not required to receive a branded Pennsylvania Certificate of Title.

rH. The vehicle was already complete at the time of purchase; however, a branded title was not obtained by the previous owner. No further modifications have been made to the vehicle. The certificate of title/salvage, VIN specific bill of sale, and statement from the previous owner attesting to these facts is attached. I understand my Pennsylvania Certificate of Title could be branded as reconstructed, specially constructed, modified, street rod, or collectible.

rI. I, or my agent, assembled the vehicle (or replica) from a kit according to the kit manufacturer’s instructions. The manufacturer’s certificate of origin, copies of the assembly instructions, and all related receipts for additional parts are attached. I understand my Pennsylvania Certificate of Title will be branded as specially constructed.

rJ. I, or my agent, assembled the vehicle from various parts. A copy of the certificate(s) of title/salvage for all vehicles used for parts and/or all related receipts is attached. I understand my Pennsylvania Certificate of Title will be branded as specially constructed.

rK. I am requesting a r street rod, r collectible or r modified vehicle. A detailed description of how the vehicle is configured (chassis, body components, engine, etc.) including all modifications, is attached. I understand my Pennsylvania Certificate of Title will be branded as a street rod, collectible or modified vehicle.

rL. Other. A detailed explanation of how the vehicle is configured, constructed, and/or equipped is attached (on a separate

8 1/2” X 11” paper). I understand my Pennsylvania Certificate of Title will be branded as modified or specially constructed.

AUTHORIZED DEALERS ONLY:

rM. I am authorized to offer vehicles for sale in Pennsylvania. Parts that were taken from business inventory and used in the reconstruction of the vehicle are identified on the vehicle bill of sale (attached). I understand the Pennsylvania Certificate of Title will be branded as reconstructed.

1

D VEHICLE INSPECTION and VIN VERIFICATION

 

 

 

 

 

 

 

 

 

 

 

 

 

 

 

 

 

 

 

 

 

 

 

AFFIX STICKER USING CLEAR TAPE (TOP & BOTTOM ONLY)

 

r VIN to be issued by PennDOT -

r Out-of-State Title/Salvage

 

 

 

 

STATION NUMBER, VIN AND MECHANIC’S SIGNATURE MUST

 

Application must be sent to PennDOT for

Certificate Attached - Application must

 

 

 

 

APPEAR ON THE BACK OF THE STICKER.

 

processing.

be sent to PennDOT for processing.

 

 

 

 

 

 

 

 

 

 

 

 

PRIOR TO AFFIXING STICKER FACE DOWN TO THIS FORM,

 

 

 

 

 

 

 

 

 

 

 

Date of Inspection

Vehicle Identification Number

 

 

 

 

COVER THE ENTIRE REVERSE SIDE OF THE STICKER WITH

 

 

 

 

 

CLEAR ADHESIVE TAPE .

 

 

 

 

 

 

 

 

 

ON FORM MV-431 OR FORM MV-480, IN THE ‘OLD ODOMETER’

 

 

 

 

 

 

 

 

 

Station Number

Printed Name of Inspector

 

 

 

 

BLOCK, LIST “RECON”

 

 

 

 

 

 

 

 

 

 

 

 

 

 

 

 

Inspector Signature

 

 

 

 

 

 

 

 

 

 

 

 

 

 

 

 

 

 

 

 

 

 

 

 

 

 

 

Station Phone Number

Inspector (Mechanic) Number

 

 

 

 

 

 

 

 

 

 

 

 

 

 

 

 

 

 

 

 

 

 

 

 

Inspection Sticker Serial Number

 

 

Odometer Reading (If the odometer has been

 

 

r Mileage has been reset to zero.

 

 

 

 

 

 

 

 

 

 

 

 

 

 

 

 

 

 

 

 

 

 

 

 

 

 

 

 

 

repaired or replaced, see instructions)

 

 

 

 

 

 

 

 

 

 

 

 

 

 

 

 

EWEIGHT CERTIFICATION - To be completed by a certified enhanced inspector if all applicable weights are not listed on the title or salvage certificate.

NOTE: Previously titled vehicles that have been altered to raise the Gross Vehicle Weight Rating (GVWR) must be certified by the vehicle manufacturer. A new VIN-specific weight certification decal must be issued for the vehicle by the manufacturer. This label must be affixed to the left (driver's side) door jamb or door latch post. These applications must be forwarded to PennDOT for processing regardless of the application type.

Gross Vehicle Weight Rating

Gross Combination Weight Rating

___________ (for Trucks, Motor Homes and Trailers only)

____________ (for Trucks and Truck-Tractors only)

rWeight Slip Attached - Required for all trucks, truck-tractors and trailers if the correct unladen (empty) weight is not listed on the current Certificate of Title, Certificate of Salvage or Manufacturer's Certificate of Origin.

Signature of Certified Inspector: ______________________________________________ Date: ________________________

FCOMPONENTS REPLACED/REPAIRED

Please check all major components replaced or repaired. A copy of a receipt, invoice or salvage certificate for each component replaced must be attached to the application.

REPLACED

REPAIRED

DESCRIPTION

 

REPLACED

REPAIRED

DESCRIPTION

 

 

 

 

 

 

 

r

r

Entire Front Clip Assembly

 

r

r

Entire Rear Clip Assembly

 

 

 

 

 

 

 

r

r

Front Bumper

 

r

r

Left Rear Quarter Panel

 

 

 

 

 

 

 

r

r

Grill

 

r

r

Right Rear Quarter Panel

 

 

 

 

 

 

 

r

r

Hood

 

r

r

Rear Bumper

 

 

 

 

 

 

 

r

r

Left Fender

 

r

r

Floor Pan

 

 

 

 

 

 

 

r

r

Right Fender

 

r

r

Trunk/Deck Lid

 

 

 

 

 

 

 

r

r

Radiator Support

 

r

r

Rear Body Panel

 

 

 

 

 

 

 

r

r

Headlight(s)/Header Panel

 

r

r

Back Cab Panel

 

 

 

 

 

 

 

r

r

Left Front Door or Skin

 

r

r

Rear Door or Skin (S/W or Van)

 

 

 

 

 

 

 

r

r

Right Front Door or Skin

 

r

r

Frame

 

 

 

 

 

 

 

r

r

Left Rear Door or Skin

 

r

r

Front Suspension

 

 

 

 

 

 

 

r

r

Right Rear Door or Skin

 

r

r

Rear Suspension

 

 

 

 

 

 

 

r

r

Roof Skin or Assembly

 

r

r

Seats

 

 

 

 

 

 

 

r

r

Engine

 

r

r

Interior

 

 

 

 

 

 

 

r

r

Transmission

 

r

r

Wheels/Tires

 

 

 

 

 

 

 

r

r

Truck Cab (See Instructions.)

 

r

r

Dash/Odometer (See Instructions.)

 

 

 

 

 

 

 

r

r

Truck Bed

 

r

r

Air Bag/Air Bag Module

 

 

 

 

 

 

 

2

GFEE CALCULATIONS

NOTE: Vehicle purchases, including vehicle buy-backs from insurers, are taxable; motor vehicle repair services (including labor), accessories, parts, supplies and equipment are taxable.

 

 

A. Purchase/Buy-back Price (if applicable)

$

r Plate to be Issued by PennDOT

 

 

 

 

 

 

 

B. Sales Tax Paid on Purchase/Buy-back Price Listed in A

$

r Transfer Previous Issued Plate #: ____________

 

 

or Sales Tax Exemption Code

 

 

 

 

 

 

 

C. Purchase/Buy-back and/or Price of Parts for which

$

r Transferred From Title #: ___________________

 

 

Sales Tax has NOT been Paid (if applicable)

 

 

 

 

 

 

 

 

 

 

 

 

 

 

 

D. Total Taxable Amount from Line C

 

$

Transfer and Renewal of Plate #: _______________

 

 

E.Sales Tax Due

Sales Tax Due 6% (7% for Allegheny County residents and 8% for City

$

Transferred From Title #: ______________________

 

 

of Philadelphia residents) of Line D

 

 

 

 

 

 

 

 

 

F. Title Fee ($58)

 

 

$

r Proof of Insurance Attached

 

 

 

 

 

 

 

 

G.Registration Fee

(Refer to Form MV-70S located on our website at

$

 

 

 

www.dmv.pa.gov)

 

 

 

 

 

 

 

 

 

 

 

H. Registration Renewal Fee

(Refer to Form MV-70S located on our

$

Unladen Weight: _____________________________

 

 

website at www.dmv.pa.gov)

 

 

 

 

 

 

 

(For a listing of participating counties, refer to "Fee for Local Use - Participating

$

 

 

 

I. County Fee Counties" Fact Sheet found on our website at www.dmv.pa.gov.)

 

 

 

J. Number of Duplicate Registration Cards

$

Registered Gross Weight (if applicable): __________

 

 

(at $2 each)

 

_______

 

 

 

 

 

 

 

K. Registration Plate Transfer Fee ($9)

$

 

 

 

 

 

 

 

Registered Gross Comb. Weight (if applicable):

 

 

L. Lien Recording Fee ($28)

 

$

 

 

 

 

 

 

 

 

 

 

___________

 

 

M. TOTAL FEES DUE Add Lines E through K

$

 

 

 

 

 

 

 

 

H

AUTHORIZED SIGNATURES - NOTE: All applicable signatures must appear below.

 

 

 

 

 

 

 

APPLICANT - VEHICLE COMPLIANCE CERTIFICATION: I/We hereby state that this vehicle has been returned to road-worthy condition, by me or my agent, in accordance with all applicable laws and regulations. Further, I/we hereby verify that the information set forth herein is TRUE and CORRECT to the best of my knowledge, information, and belief. This verification is made subject to the penalties of 18 Pa.C.S. §4904, relating to unsworn falsification to authorities.

Signature of Applicant: _________________________________________________________ Date: ______________________

Signature of Co-Applicant: ______________________________________________________ Date: ______________________

Name of Applicant and Co-Applicant (Printed): __________________________ Daytime Phone #: _________________________

ENHANCED VEHICLE SAFETY INSPECTOR: I hereby state that I have examined this vehicle and found it to be in road-worthy condition in accordance with all applicable laws and regulations. Further, I state the information set forth herein is TRUE and CORRECT to the best of my knowledge, information and belief. This verification is made subject to the penalties of 18 Pa.C.S. §4904, relating to unsworn falsification to authorities.

Signature of Enhanced

Vehicle Safety Inspector: _________________________________________ Date: _______________ Station #: ____________

Name of Inspector (Printed): ______________________________________________ Inspector #: _______________________

CERTIFIED DOCUMENT REVIEWER: I hereby state that I have examined the title application and all related supporting documentation and found it to qualify for the title brand(s) indicated by my signature in the appropriate block(s) below. Further, I state the information set forth herein is TRUE and CORRECT to the best of my knowledge, information, and belief. This verification is made subject to the penalties of 18 Pa.C.S. §4904, relating to unsworn falsification to authorities.

r

Reconstructed

r

Specially Constructed

 

 

 

 

r

Flood

r

Recovered Theft

 

 

 

 

r

Reconstructed/Flood

r

Reconstructed/Recovered Theft

 

 

 

r

Street Rod

r Specially Constructed Street Rod

 

 

 

 

r

Collectible

r

Modified

 

 

 

 

Signature must appear in all applicable blocks below.

rONLINE PROCESSING REQUIRED: If Certified Document Reviewer's signature does not appear in this block, forward application to PennDOT for processing.

Signature of Certified Document Reviewer: ____________________________________________ Date: ___________________

Printed Name of Certified

Document Reviewer: ________________________________________ Reviewer ID #: _____________

3

Form MV-426B Completion Instructions

NOTE: An individual who has not been paid the replacement value for the recovered theft vehicle and has not received a certificate of salvage, may use their existing certificate of title without applying for a new certificate of title.

Only those safety inspection stations appointed and under contract with PennDOT as an Enhanced Vehicle Safety Inspection Station, may perform inspections for compliance with all applicable equipment and inspection regulations for the purpose of titling the vehicle in Pennsylvania on the following vehicles: reconstructed, flood, specially constructed, recovered theft, collectible, modified vehicles and street rods.

Applications for reconstructed and flood branded titles must be processed through an Online Business Partner. NOTE: An Online Business Partner may be found on our website at www.dmv.pa.gov by clicking on the Business Partner link underneath the Information Centers heading. Then select the Online Registration Program tab and the " Online Registration Program (OLRP) Location Guide (PDF)" link within that tab.

Additional processing fees may be charged. All other applications must be mailed to:

Commonwealth of Pennsylvania

Department of Transportation

Bureau of Motor Vehicles

Special Services Unit

P.O. Box 69007

Harrisburg, PA 17106-9007

Applicant Information - All applicant information must be entered exactly as it is to appear on the certificate of title. A Pennsylvania Certificate of Title will only be issued to a physical address; you may not use a post office box address alone or an out-of-state address. If the certificate of title or salvage certificate was previously issued to co-owners, both owners must sign Form MV-426B or Form MV-1 must be completed to change the ownership on the new title. All out-of-state proof of ownership documents must be accompanied by a completed Form MV-1. NOTE: Individuals should list their PA Driver’s License (PA DL) or Photo ID# in the space provided. Businesses should list their Business ID# (Bus. ID), where indicated (i.e. E.I.N.).

Vehicle Type - If the vehicle type is a mobile home, "mobile home" should be specified in the "Other" block. Mobile homes do not need to be inspected by an enhanced vehicle safety inspector, and an inspection sticker does not need to be affixed to Form MV-426B. A detailed description of how the mobile home was reconstructed must be attached to your application along with interior and exterior photographs. Your application must be signed by a certified document reviewer and forwarded to PennDOT for processing.

Previously abandoned vehicles and vehicles that were impounded and subsequently sold are considered reconstructed vehicles. Check "Other" in the Vehicle Type block, provide an explanation of how the vehicle was acquired and the level of damage, if any.

Weight Certification - The weight certification for trucks, truck-tractors and trailers must be completed by a certified enhanced vehicle safety inspector if the correct weight(s) do not appear on the vehicle's certificate of title or salvage certificate (such as unladen weight, gross vehicle weight rating or gross combination weight rating). A weight slip for the unladen (empty) weight must be attached if the correct unladen weight does not appear on the certificate of title or salvage certificate. It is not necessary to complete the weight certification in order to change the registered gross weight of a vehicle. Previously titled vehicles that have been altered to raise or lower the gross vehicle weight rating (GVWR) must be certified by the vehicle manufacturer. A new VIN-specific weight certification decal must be issued for the vehicle by the manufacturer. This label must be affixed to the left (driver's side) door jamb or door latch post.

Components Repaired/Replaced - With the exception of out-of-state vehicles described below, all major components that have been replaced or repaired should be indicated on the application. For all items replaced, you must provide a copy of a receipt or invoice or a copy of the Pennsylvania Certificate of Title or Salvage Certificate for another vehicle (which you own) from which parts were taken. It is not necessary to attach receipts for repaired components (such as labor for body work). Repair estimates may be used as receipts if they are marked "Paid" and signed and dated by someone authorized by the repair facility to do so. Repair estimates that are not marked "Paid" or those that are not signed and dated are not acceptable for use as receipts.

If the vehicle is coming to Pennsylvania on an out-of-state title that has already been branded (e.g., rebuilt salvage, reconstructed, previously salvaged, etc.), you are not required to document components repaired/replaced, nor provide receipts for parts replaced. Vehicles coming to Pennsylvania on a branded out-of-state title are permitted to obtain a temporary Pennsylvania registration and the vehicle may be operated while Form MV-426B is being processed. If the vehicle is coming to Pennsylvania on an out-of-state salvage certificate, you must present receipts and comply with all requirements under the Form MV-426B process. NOTE: These vehicles may not be operated while Form MV-426B is being processed.

4

If a truck cab is replaced, Form MV-41, "Application for Correction of Vehicle Record or Verification of Vehicle Identification Number," must be attached to Form MV-426B to request a state replacement VIN Plate. Under Section C (Application for State Replacement VIN Plate), check "Other" and indicate the cab was replaced. The VIN specified on Form MV-41 should be the VIN that appears on the frame of the vehicle (not the VIN displayed on the replacement cab). NOTE: Form MV-41 and the corresponding Form MV-426B must be submitted to PennDOT for processing.

When an odometer is repaired or replaced, the mileage indicated must remain the same as before the repair or replacement. If the odometer is incapable of registering the same mileage as before the repair or replacement, the odometer must be adjusted to read zero (0) and a notice in writing must be attached to the left door frame of the vehicle specifying the mileage prior to repair or replacement of the odometer and the date on which it was repaired or replaced.

Fee calculations should be completed and signed by the certified document reviewer. For a listing of current registration fees, please refer to Form MV-70S, “Bureau of Motor Vehicles Schedule of Fees,” found on our website at www.dmv.pa.gov. All checks or money orders should be made payable to the Commonwealth of Pennsylvania.

Authorized Signatures - Signatures must be present for the applicant, enhanced vehicle safety inspector (not required for mobile homes) and certified document reviewer. If the vehicle is to be titled in the name of a business, the application must be signed by an owner or corporate officer of the business.

Should you choose to personalize your registration plate, please complete and attach Form MV-904, "Application for Personalized, Amateur Radio Operator, or Press Photographer Registration Plate," to this application. There is an additional fee required with personalization requests. NOTE: If requesting your Street Rod registration plate to be personalized, complete and attach Form MV-904SR, "Application for Personalized Street Rod Registration Plate," to this application.

Application Attachment Checklist

rProof of ownership: Pennsylvania Certificate of Title; Pennsylvania Certificate of Salvage, certificate of salvage issued by another state or jurisdiction; certificate of title issued by another state or jurisdiction and indicating the vehicle was reconstructed in another state or jurisdiction; Manufacturer's Certificate of Origin or Statement of Origin (MCO/MSO) issued by a recognized manufacturer of vehicles. (NOTE: A MCO/MSO that indicates the vehicle is not intended for highway use (or similar designation) cannot be titled in Pennsylvania.) Specially constructed vehicles may have a bill of sale as acceptable proof of ownership (if no other ownership document exists).

rUnacceptable forms of proof of ownership include Form 907A issued by the state of New York, or any title, certificate of origin, statement of origin or certificate of salvage that indicates the vehicle is to be used for parts only; is not suitable to be rebuilt or titled or is not designed, constructed or intended for use on a public roadway. This includes statements of origin for all terrain vehicles (ATVs).

rForm MV-1, "Application for Certificate of Title," if the applicant's name does not currently appear on the face of the certificate of title or salvage certificate or if a co-owner is to be removed from the new title record.

rAppraisal report for flood or recovered theft vehicles where the damage does not exceed the replacement value of the vehicle. An acceptable appraisal report must contain the name and signature of the licensed appraiser; the appraiser's license number; the VIN of the vehicle appraised; the level of damage (in dollars); and the actual cash value of the vehicle (prior to flood or theft). NOTE: If the owner is a self-insurer, the assessment of damage must be completed by a licensed physical damage appraiser who is not affiliated with or employed by the self-insurer.

rA bill of sale if the applicant's name is not displayed on the face of the certificate of title or salvage certificate (not required for dealers who are sales tax exempt). If a salvaged vehicle was reassigned free of charge, Form MV-13ST, "Affidavit of Gift," may be submitted in lieu of a bill of sale. An acceptable bill of sale includes: the seller's name; seller's signature; buyer's name; Vehicle Identification Number (VIN); date of sale; purchase price; and if applicable, a statement from the seller indicating the vehicle was already completed at the time of purchase and no branded title was obtained by the seller. If this information does not appear on the bill of sale, a separate statement must be signed by the seller, notarized and contain the VIN of the vehicle.

rA power of attorney for any person signing on behalf of a purchaser or seller, if applicable. NOTE: An "agent" signing on behalf of an employer is not required to attach a power of attorney.

rRetention (buy-back) letter from insurance company if vehicle was totaled and retained by the applicant for the purpose of retitling it. This letter (on the insurance company or insurance agent's letterhead) should indicate the amount deducted from the insurance pay-off (settlement) to allow the insured to retain the vehicle.

rCopies of all receipts for all components replaced as indicated on Form MV-426B (if required). If you indicate a component was taken from another vehicle, a copy of the salvage certificate or title (in your name) for the parts vehicle must be attached in lieu of a receipt. NOTE: Only business entities (dealers, rebuilders, etc.) titling the vehicle in the business name may claim parts used in the reconstruction were taken from existing inventory, and therefore, no receipts are needed. If a dealer or rebuilder reconstructed a vehicle for the applicant, the parts used to complete the vehicle may be listed on the bill of sale.

r A weight slip if the correct unladen weight of a truck, trailer or truck-tractor is not listed on the certificate of title or salvage.

5

rA detailed description on separate 8 ½" X 11" paper for specially constructed, collectible, modified vehicles and street rods indicating how the vehicle was configured and assembled.

rPhotographs of the vehicle showing the front, rear, left and right sides. Photographs must be signed/dated by the enhanced vehicle safety inspector. Additional photographs may be required for mobile homes, motor homes and collectible vehicles. Mobile home photographs do not have to be signed by an enhanced vehicle safety inspector.

rAll applicable fees. Checks and/or money orders should be made payable to Commonwealth of Pennsylvania.

rAny unpaid sales tax for vehicle purchase, insurance buy-back (retention) or any items purchased without tax collected such as online purchases.

If the vehicle was purchased outside Pennsylvania within the previous six (6) months, the applicant must show proof of sales tax paid in the form of a sales tax receipt, notarized bill of sale or notarized letter from the seller indicating the amount of sales tax paid. Refer to Form REV-227, "Pennsylvania Sales and Use Tax Credit Chart," to determine if you may claim a tax credit for sales tax paid in another state. This chart can be found on the Department of Revenue website at www.revenue.pa.gov. NOTE: Applicants exempt from Pennsylvania sales tax will list the appropriate Sales Tax Exemption reason code in Sections 1A and/or 1B. (See exemption codes listed on the reverse side of Form MV-1.)

Sales tax is not required to be paid to PennDOT in connection with the sale of a used mobile home, regardless of whether it is permanently affixed or relocated.

rForm MV-41, "Application for Correction of Vehicle Record or Verification of Vehicle Identification Number," if a Pennsylvania replacement Vehicle Identification Number (VIN) plate is required. NOTE: Form MV-41 and the corresponding Form MV-426B must be submitted to PennDOT for processing.

Visit us at www.dmv.pa.gov or call us at 717-412-5300. TTY callers — please dial 711 to reach us.

6

File Breakdown

Fact Name Fact Description
Form Purpose The MV-426B form is used to apply for titles for reconstructed, specially constructed, collectible, modified, flood, recovered theft vehicles, and street rods in Pennsylvania.
Governing Laws This form is governed by Pennsylvania vehicle laws, including Title 75 of the Pennsylvania Consolidated Statutes.
Applicant Information Applicants must provide personal details, including their name, address, and identification numbers, as required on the form.
Application Types Various vehicle types can be specified, such as passenger vehicles, trucks, motorcycles, and more, ensuring proper categorization.
Inspection Requirement An enhanced vehicle safety inspection is required for compliance before submitting the application to PennDOT.
Fee Structure Fees include a title fee of $58, registration fees, and sales tax, which varies by county.
Signature Requirements Signatures from the applicant, co-applicant, enhanced vehicle safety inspector, and certified document reviewer are mandatory for the application to be valid.
Documentation Applicants must attach various documents, such as proof of ownership, receipts for parts, and weight certifications, as applicable.
Submission Process Completed applications must be mailed to the Bureau of Motor Vehicles in Harrisburg, PA, for processing.

Guide to Using Mv 426B Pa

Filling out the MV-426B form is essential for those seeking to title a reconstructed or specially constructed vehicle in Pennsylvania. This process involves providing accurate information and necessary documentation to ensure compliance with state regulations.

  1. Gather Required Documents: Collect all necessary documents, including proof of ownership, receipts for parts, and any required inspection certificates.
  2. Complete Applicant Information: Fill in your last name, first name, middle name, and Pennsylvania driver’s license or photo ID number. Include your date of birth and street address. If applicable, provide the same information for a co-applicant.
  3. Select Application Type: Indicate the type of vehicle you are applying for by checking the appropriate box (e.g., passenger, truck, motorcycle).
  4. Provide Vehicle Explanation: Check all applicable boxes that explain the vehicle's condition and any titles or certificates attached. Ensure to attach supporting documents as needed.
  5. VIN Verification: Have the vehicle inspected by a certified enhanced vehicle safety inspector. They will fill out the VIN verification section and affix a sticker to the form.
  6. Weight Certification: If applicable, have a certified inspector complete the weight certification section. Attach any required weight slips.
  7. List Components Replaced/Repaired: Check all major components that have been replaced or repaired. Attach receipts for each replaced component.
  8. Calculate Fees: Fill in the fee calculation section, including sales tax, title fees, and any other applicable fees. Add the total amount due.
  9. Signatures: Ensure that all required signatures are present, including those of the applicant, co-applicant, enhanced vehicle safety inspector, and certified document reviewer.
  10. Mail the Application: Send the completed form and all supporting documents to the Pennsylvania Department of Transportation at the specified address.

Get Answers on Mv 426B Pa

What is the MV-426B form used for?

The MV-426B form is an application used in Pennsylvania for various types of vehicles, including reconstructed, specially constructed, collectible, modified, flood, recovered theft vehicles, and street rods. This form helps to document the vehicle's condition and any modifications made, allowing for proper titling and registration with the Pennsylvania Department of Transportation (PennDOT).

Who needs to complete the MV-426B form?

Anyone who has a vehicle that falls into one of the specified categories—such as reconstructed or modified vehicles—needs to complete the MV-426B form. This includes individuals and businesses. Additionally, if the vehicle has been salvaged or has a branded title from another state, the form must be filled out to obtain a new Pennsylvania title.

What information is required on the MV-426B form?

The form requires detailed information about the applicant, including:

  • Full name and contact information
  • Type of vehicle
  • Details about the vehicle's condition and any modifications made
  • Inspection and VIN verification details
  • Components that have been replaced or repaired
  • Fee calculations and signatures from authorized individuals

Completing all sections accurately is crucial for processing the application smoothly.

What documents should be attached to the MV-426B form?

Several documents must accompany the MV-426B form, including:

  1. Proof of ownership, such as a Pennsylvania Certificate of Title or a Manufacturer's Certificate of Origin.
  2. Receipts for any components replaced or repaired.
  3. Appraisal reports for flood or recovered theft vehicles, if applicable.
  4. A weight slip if the correct unladen weight is not listed on the title.

Ensure all required documents are included to avoid delays in processing.

How is the MV-426B form submitted?

The completed MV-426B form, along with all necessary attachments, should be mailed to the following address:

Commonwealth of Pennsylvania
Department of Transportation
Bureau of Motor Vehicles
Special Services Unit
P.O. Box 69007
Harrisburg, PA 17106-9007

Some applications may also be processed online through authorized business partners. Check the PennDOT website for more information.

What happens after submitting the MV-426B form?

Once the MV-426B form is submitted, PennDOT will review the application and supporting documents. If everything is in order, they will issue a new Pennsylvania Certificate of Title reflecting the vehicle's status. If there are any issues or missing information, PennDOT may contact the applicant for clarification or additional documentation.

Common mistakes

Filling out the MV-426B form can be a straightforward process, but many people make common mistakes that can delay their application. One frequent error is not providing complete applicant information. All fields, including names, addresses, and identification numbers, must be filled out accurately. Leaving any section blank can lead to unnecessary delays or even a rejection of the application. It's essential to double-check that all information matches official documents.

Another mistake often seen is failing to select the correct application type for the vehicle. The form requires applicants to specify the type of vehicle they are applying for, such as passenger, truck, or motorcycle. If the wrong type is checked, it can complicate the processing of the application. Applicants should take their time to ensure they choose the correct category that accurately reflects their vehicle.

Many applicants overlook the requirement to attach necessary documentation. For instance, if the vehicle has been reconstructed, receipts for parts used must be included. Without these documents, the application may be deemed incomplete. Always refer to the checklist provided in the form to ensure all required documents are submitted. Missing paperwork can lead to significant delays in receiving the title.

Lastly, signatures are often a point of contention. All required signatures must be present on the form, including those of the applicant, co-applicant, and any certified inspectors. Incomplete signatures can result in processing issues. It's crucial to ensure that every section requiring a signature is properly signed before submitting the form.

Documents used along the form

The MV-426B form is a critical document for those seeking to register reconstructed, specially constructed, collectible, modified, flood, recovered theft vehicles, and street rods in Pennsylvania. Alongside this form, several other documents are often required to ensure compliance with state regulations. Below is a list of related forms and documents that may be needed during this process.

  • Form MV-1: This form is used to apply for a certificate of title. It is necessary when the applicant's name does not appear on the existing title or when a co-owner needs to be removed from the title record.
  • Form MV-41: Known as the Application for Correction of Vehicle Record or Verification of Vehicle Identification Number, this form is required when requesting a state replacement VIN plate, particularly if a truck cab has been replaced.
  • Form MV-70S: This document outlines the Bureau of Motor Vehicles Schedule of Fees. It provides detailed information about registration fees, which are essential for calculating costs associated with titling and registration.
  • Form MV-13ST: This Affidavit of Gift is used when a salvaged vehicle is reassigned free of charge. It serves as an alternative to a bill of sale if the vehicle was gifted rather than sold.
  • Form MV-904: This application is for personalized registration plates. If the applicant wishes to personalize their registration plate, this form must be completed and submitted with the MV-426B.
  • Appraisal Report: Required for flood or recovered theft vehicles, this report must include the appraiser's details, the vehicle's VIN, and the level of damage. It is essential when the damage does not exceed the vehicle's replacement value.
  • Weight Slip: This document is necessary for trucks, truck-tractors, and trailers if the correct unladen weight is not listed on the title or salvage certificate. It certifies the weight of the vehicle for registration purposes.

Gathering these documents can streamline the application process for vehicle registration in Pennsylvania. Ensuring all forms are correctly filled out and submitted can help avoid delays and complications with the Department of Transportation.

Similar forms

  • Form MV-1: Application for Certificate of Title - This document is essential for anyone looking to apply for a new title in Pennsylvania. Like the MV-426B, it requires detailed information about the vehicle and the applicant. Both forms necessitate proof of ownership and compliance with state regulations, ensuring that the title process is thorough and transparent.
  • Form MV-431: Vehicle Identification Number (VIN) Verification - This form is used to verify the VIN of a vehicle. Similar to the MV-426B, it requires the vehicle to be inspected by a certified inspector. Both forms focus on ensuring that the vehicle's identification is accurate and that it complies with state laws.
  • Form MV-480: Application for a Replacement Title - This document is used when a title is lost or damaged. Like the MV-426B, it requires personal information and vehicle details. Both forms aim to maintain accurate records and ownership verification in Pennsylvania.
  • Form MV-70S: Bureau of Motor Vehicles Schedule of Fees - While this form details the fees associated with vehicle transactions, it is similar to the MV-426B in that it is an integral part of the title application process. Both documents ensure that applicants are aware of the costs involved in titling and registering a vehicle.
  • Form MV-904: Application for Personalized Registration Plate - This form is used to request a personalized license plate. Like the MV-426B, it requires the applicant to provide specific vehicle information and comply with state guidelines. Both forms reflect the personal touch that vehicle owners can add to their registrations.
  • Form MV-13ST: Affidavit of Gift - This document is used when a vehicle is given as a gift. Similar to the MV-426B, it requires proof of ownership and details about the vehicle. Both forms help ensure that ownership transfers are documented properly and comply with state regulations.

Dos and Don'ts

  • Do: Fill out all sections of the MV-426B form completely and accurately.
  • Do: Attach all required documents, such as certificates of title, receipts, and inspection reports.
  • Do: Sign the application where indicated, ensuring all signatures are present.
  • Do: Double-check that your contact information is correct, especially your address and phone number.
  • Don't: Leave any sections blank; incomplete forms can delay processing.
  • Don't: Use a post office box as your address; a physical address is required.
  • Don't: Forget to include proof of ownership; this is essential for processing your application.
  • Don't: Submit the form without ensuring all necessary attachments are included.

Misconceptions

  • Misconception 1: The MV-426B form is only for cars.
  • This form is applicable to various types of vehicles, including trucks, motorcycles, buses, and trailers. It's not limited to just passenger cars.

  • Misconception 2: You can submit the form without any documentation.
  • All applications must include supporting documents, such as proof of ownership, receipts for parts, and inspection reports. Failing to provide these can delay processing.

  • Misconception 3: Once a vehicle is branded, it cannot be unbranded.
  • While a vehicle's title can be branded as reconstructed or flood, there are processes in place to address certain situations. However, it often requires additional steps and documentation.

  • Misconception 4: You can complete the form without a certified inspector.
  • An enhanced vehicle safety inspector must verify the vehicle's road-worthy condition. This inspection is crucial for the application to be accepted.

  • Misconception 5: The form can be submitted online for all vehicle types.
  • Only certain applications can be processed online. Most applications need to be mailed to the appropriate PennDOT office for processing.

  • Misconception 6: You don't need to provide receipts for repaired components.
  • Receipts are required for all major components that have been replaced. However, receipts for repaired components are not necessary unless specified.

Key takeaways

  • Complete all sections of the MV-426B form accurately. This ensures that your application is processed without delays.

  • Attach all required documentation, such as certificates of title, salvage certificates, and receipts for parts. Missing documents can result in rejection of your application.

  • Understand the implications of branding on your vehicle's title. Depending on the vehicle's history, it may be branded as reconstructed, flood, or recovered theft, which can affect its resale value.

  • Weight certification is necessary for certain vehicles. If your vehicle's weight information is not accurate on the title, a certified enhanced inspector must complete the weight certification.

  • Signatures from the applicant, enhanced vehicle safety inspector, and certified document reviewer are mandatory. Ensure all signatures are present to avoid processing delays.

  • Submit the application to the correct address. For most cases, it should be mailed to the Department of Transportation in Harrisburg, PA, ensuring it reaches the right department for processing.