Content Navigation

The MV-426B form serves as a crucial document for individuals looking to title vehicles that have undergone significant alterations or have been deemed salvage. This application is specifically designed for various categories of vehicles, including reconstructed, specially constructed, collectible, modified, flood, recovered theft vehicles, and street rods. When filling out the form, applicants must provide detailed information about themselves and the vehicle in question, including the type of vehicle and any modifications made. It's essential to check all applicable boxes that describe the vehicle's condition and history, as this will determine how the title is branded. Additionally, supporting documents such as proof of ownership, inspection reports, and receipts for parts used in reconstruction must be attached to ensure a smooth processing experience. The form also includes sections for fee calculations and authorized signatures, which are vital for compliance with Pennsylvania's vehicle regulations. Understanding the nuances of the MV-426B form can significantly ease the process of re-titling a vehicle, making it roadworthy once again.

Mv426B Example

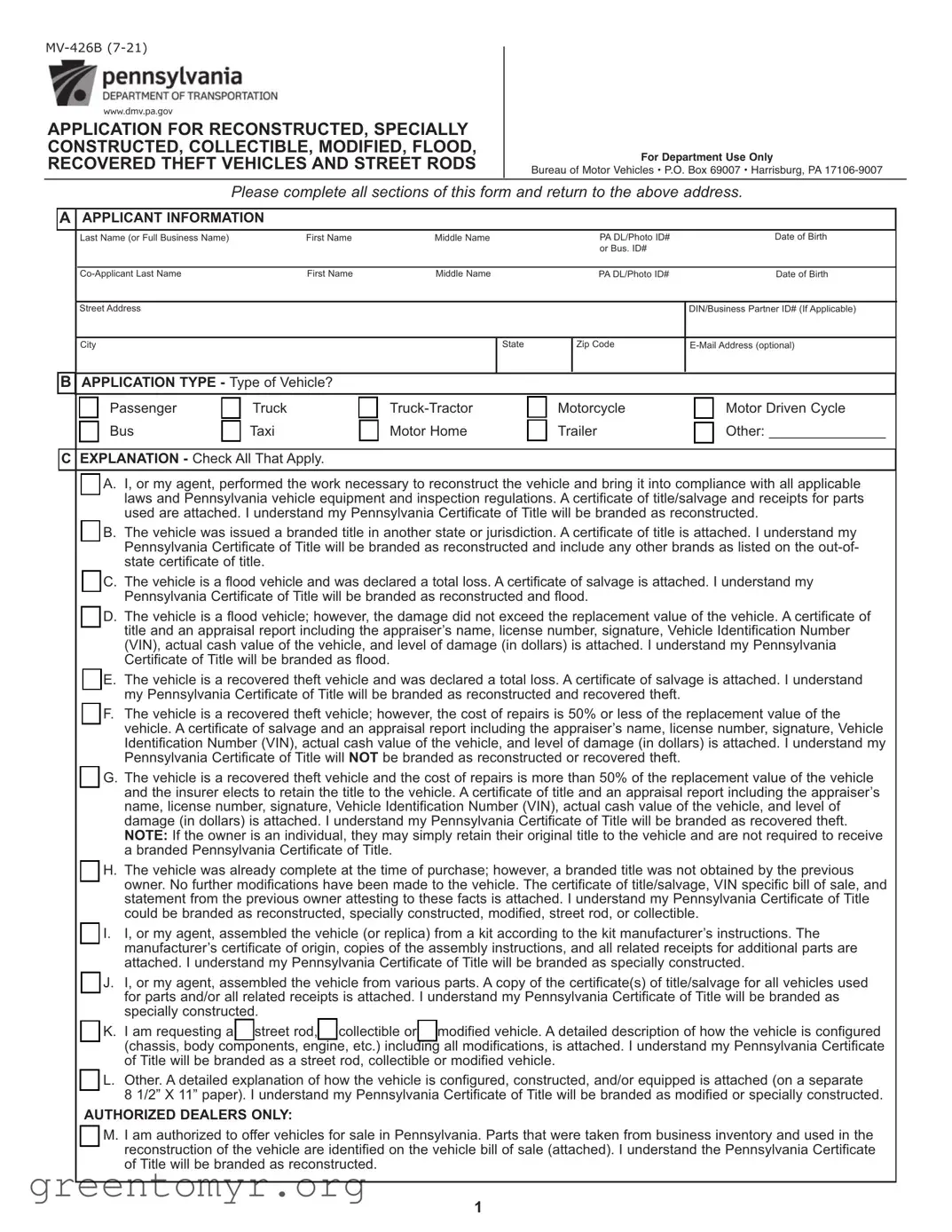
MV-426B (7-21)

www.dmv.pa.gov

APPLICATION FOR RECONSTRUCTED, SPECIALLY CONSTRUCTED, COLLECTIBLE, MODIFIED, FLOOD, RECOVERED THEFT VEHICLES AND STREET RODS

For Department Use Only

Bureau of Motor Vehicles • P.O. Box 69007 • Harrisburg, PA 17106-9007

Please complete all sections of this form and return to the above address.

A

APPLICANT INFORMATION

 

 

 

 

 

 

 

 

 

 

 

 

 

 

 

 

 

 

Last Name (or Full Business Name)

First Name

 

Middle Name

 

 

PA DL/Photo ID#

 

Date of Birth

 

 

 

 

 

 

 

 

 

or Bus. ID#

 

 

 

 

 

 

 

 

 

 

 

 

 

 

Co-Applicant Last Name

 

First Name

 

Middle Name

 

 

PA DL/Photo ID#

 

Date of Birth

 

 

 

 

 

 

 

 

 

 

 

Street Address

 

 

 

 

 

 

 

DIN/Business Partner ID# (If Applicable)

 

 

 

 

 

 

 

 

 

 

 

 

City

 

 

 

 

 

State

 

Zip Code

E-Mail Address (optional)

 

 

 

 

 

 

 

 

 

B

APPLICATION TYPE - Type of Vehicle?

 

 

 

 

 

 

 

 

 

 

 

 

 

 

 

 

 

 

 

 

r

Passenger

r

Truck

r

Truck-Tractor

r

Motorcycle

r

Motor Driven Cycle

 

r

Bus

r

Taxi

r

Motor Home

r

Trailer

r

Other: _______________

CEXPLANATION - Check All That Apply.

rA. I, or my agent, performed the work necessary to reconstruct the vehicle and bring it into compliance with all applicable laws and Pennsylvania vehicle equipment and inspection regulations. A certificate of title/salvage and receipts for parts used are attached. I understand my Pennsylvania Certificate of Title will be branded as reconstructed.

rB. The vehicle was issued a branded title in another state or jurisdiction. A certificate of title is attached. I understand my Pennsylvania Certificate of Title will be branded as reconstructed and include any other brands as listed on the out-of- state certificate of title.

rC. The vehicle is a flood vehicle and was declared a total loss. A certificate of salvage is attached. I understand my Pennsylvania Certificate of Title will be branded as reconstructed and flood.

rD. The vehicle is a flood vehicle; however, the damage did not exceed the replacement value of the vehicle. A certificate of

title and an appraisal report including the appraiser’s name, license number, signature, Vehicle Identification Number (VIN), actual cash value of the vehicle, and level of damage (in dollars) is attached. I understand my Pennsylvania Certificate of Title will be branded as flood.

rE. The vehicle is a recovered theft vehicle and was declared a total loss. A certificate of salvage is attached. I understand my Pennsylvania Certificate of Title will be branded as reconstructed and recovered theft.

rF. The vehicle is a recovered theft vehicle; however, the cost of repairs is 50% or less of the replacement value of the vehicle. A certificate of salvage and an appraisal report including the appraiser’s name, license number, signature, Vehicle Identification Number (VIN), actual cash value of the vehicle, and level of damage (in dollars) is attached. I understand my Pennsylvania Certificate of Title will NOT be branded as reconstructed or recovered theft.

rG. The vehicle is a recovered theft vehicle and the cost of repairs is more than 50% of the replacement value of the vehicle and the insurer elects to retain the title to the vehicle. A certificate of title and an appraisal report including the appraiser’s name, license number, signature, Vehicle Identification Number (VIN), actual cash value of the vehicle, and level of damage (in dollars) is attached. I understand my Pennsylvania Certificate of Title will be branded as recovered theft. NOTE: If the owner is an individual, they may simply retain their original title to the vehicle and are not required to receive a branded Pennsylvania Certificate of Title.

rH. The vehicle was already complete at the time of purchase; however, a branded title was not obtained by the previous owner. No further modifications have been made to the vehicle. The certificate of title/salvage, VIN specific bill of sale, and statement from the previous owner attesting to these facts is attached. I understand my Pennsylvania Certificate of Title could be branded as reconstructed, specially constructed, modified, street rod, or collectible.

rI. I, or my agent, assembled the vehicle (or replica) from a kit according to the kit manufacturer’s instructions. The manufacturer’s certificate of origin, copies of the assembly instructions, and all related receipts for additional parts are attached. I understand my Pennsylvania Certificate of Title will be branded as specially constructed.

rJ. I, or my agent, assembled the vehicle from various parts. A copy of the certificate(s) of title/salvage for all vehicles used for parts and/or all related receipts is attached. I understand my Pennsylvania Certificate of Title will be branded as specially constructed.

rK. I am requesting a r street rod, r collectible or r modified vehicle. A detailed description of how the vehicle is configured (chassis, body components, engine, etc.) including all modifications, is attached. I understand my Pennsylvania Certificate of Title will be branded as a street rod, collectible or modified vehicle.

rL. Other. A detailed explanation of how the vehicle is configured, constructed, and/or equipped is attached (on a separate

8 1/2” X 11” paper). I understand my Pennsylvania Certificate of Title will be branded as modified or specially constructed.

AUTHORIZED DEALERS ONLY:

rM. I am authorized to offer vehicles for sale in Pennsylvania. Parts that were taken from business inventory and used in the reconstruction of the vehicle are identified on the vehicle bill of sale (attached). I understand the Pennsylvania Certificate of Title will be branded as reconstructed.

1

D VEHICLE INSPECTION and VIN VERIFICATION

 

 

 

 

 

 

 

 

 

 

 

 

 

 

 

 

 

 

 

 

 

 

 

AFFIX STICKER USING CLEAR TAPE (TOP & BOTTOM ONLY)

 

r VIN to be issued by PennDOT -

r Out-of-State Title/Salvage

 

 

 

 

STATION NUMBER, VIN AND MECHANIC’S SIGNATURE MUST

 

Application must be sent to PennDOT for

Certificate Attached - Application must

 

 

 

 

APPEAR ON THE BACK OF THE STICKER.

 

processing.

be sent to PennDOT for processing.

 

 

 

 

 

 

 

 

 

 

 

 

PRIOR TO AFFIXING STICKER FACE DOWN TO THIS FORM,

 

 

 

 

 

 

 

 

 

 

 

Date of Inspection

Vehicle Identification Number

 

 

 

 

COVER THE ENTIRE REVERSE SIDE OF THE STICKER WITH

 

 

 

 

 

CLEAR ADHESIVE TAPE .

 

 

 

 

 

 

 

 

 

ON FORM MV-431 OR FORM MV-480, IN THE ‘OLD ODOMETER’

 

 

 

 

 

 

 

 

 

Station Number

Printed Name of Inspector

 

 

 

 

BLOCK, LIST “RECON”

 

 

 

 

 

 

 

 

 

 

 

 

 

 

 

 

Inspector Signature

 

 

 

 

 

 

 

 

 

 

 

 

 

 

 

 

 

 

 

 

 

 

 

 

 

 

 

Station Phone Number

Inspector (Mechanic) Number

 

 

 

 

 

 

 

 

 

 

 

 

 

 

 

 

 

 

 

 

 

 

 

 

Inspection Sticker Serial Number

 

 

Odometer Reading (If the odometer has been

 

 

r Mileage has been reset to zero.

 

 

 

 

 

 

 

 

 

 

 

 

 

 

 

 

 

 

 

 

 

 

 

 

 

 

 

 

 

repaired or replaced, see instructions)

 

 

 

 

 

 

 

 

 

 

 

 

 

 

 

 

EWEIGHT CERTIFICATION - To be completed by a certified enhanced inspector if all applicable weights are not listed on the title or salvage certificate.

NOTE: Previously titled vehicles that have been altered to raise the Gross Vehicle Weight Rating (GVWR) must be certified by the vehicle manufacturer. A new VIN-specific weight certification decal must be issued for the vehicle by the manufacturer. This label must be affixed to the left (driver's side) door jamb or door latch post. These applications must be forwarded to PennDOT for processing regardless of the application type.

Gross Vehicle Weight Rating

Gross Combination Weight Rating

___________ (for Trucks, Motor Homes and Trailers only)

____________ (for Trucks and Truck-Tractors only)

rWeight Slip Attached - Required for all trucks, truck-tractors and trailers if the correct unladen (empty) weight is not listed on the current Certificate of Title, Certificate of Salvage or Manufacturer's Certificate of Origin.

Signature of Certified Inspector: ______________________________________________ Date: ________________________

FCOMPONENTS REPLACED/REPAIRED

Please check all major components replaced or repaired. A copy of a receipt, invoice or salvage certificate for each component replaced must be attached to the application.

REPLACED

REPAIRED

DESCRIPTION

 

REPLACED

REPAIRED

DESCRIPTION

 

 

 

 

 

 

 

r

r

Entire Front Clip Assembly

 

r

r

Entire Rear Clip Assembly

 

 

 

 

 

 

 

r

r

Front Bumper

 

r

r

Left Rear Quarter Panel

 

 

 

 

 

 

 

r

r

Grill

 

r

r

Right Rear Quarter Panel

 

 

 

 

 

 

 

r

r

Hood

 

r

r

Rear Bumper

 

 

 

 

 

 

 

r

r

Left Fender

 

r

r

Floor Pan

 

 

 

 

 

 

 

r

r

Right Fender

 

r

r

Trunk/Deck Lid

 

 

 

 

 

 

 

r

r

Radiator Support

 

r

r

Rear Body Panel

 

 

 

 

 

 

 

r

r

Headlight(s)/Header Panel

 

r

r

Back Cab Panel

 

 

 

 

 

 

 

r

r

Left Front Door or Skin

 

r

r

Rear Door or Skin (S/W or Van)

 

 

 

 

 

 

 

r

r

Right Front Door or Skin

 

r

r

Frame

 

 

 

 

 

 

 

r

r

Left Rear Door or Skin

 

r

r

Front Suspension

 

 

 

 

 

 

 

r

r

Right Rear Door or Skin

 

r

r

Rear Suspension

 

 

 

 

 

 

 

r

r

Roof Skin or Assembly

 

r

r

Seats

 

 

 

 

 

 

 

r

r

Engine

 

r

r

Interior

 

 

 

 

 

 

 

r

r

Transmission

 

r

r

Wheels/Tires

 

 

 

 

 

 

 

r

r

Truck Cab (See Instructions.)

 

r

r

Dash/Odometer (See Instructions.)

 

 

 

 

 

 

 

r

r

Truck Bed

 

r

r

Air Bag/Air Bag Module

 

 

 

 

 

 

 

2

GFEE CALCULATIONS

NOTE: Vehicle purchases, including vehicle buy-backs from insurers, are taxable; motor vehicle repair services (including labor), accessories, parts, supplies and equipment are taxable.

 

 

A. Purchase/Buy-back Price (if applicable)

$

r Plate to be Issued by PennDOT

 

 

 

 

 

 

 

B. Sales Tax Paid on Purchase/Buy-back Price Listed in A

$

r Transfer Previous Issued Plate #: ____________

 

 

or Sales Tax Exemption Code

 

 

 

 

 

 

 

C. Purchase/Buy-back and/or Price of Parts for which

$

r Transferred From Title #: ___________________

 

 

Sales Tax has NOT been Paid (if applicable)

 

 

 

 

 

 

 

 

 

 

 

 

 

 

 

D. Total Taxable Amount from Line C

 

$

Transfer and Renewal of Plate #: _______________

 

 

E.Sales Tax Due

Sales Tax Due 6% (7% for Allegheny County residents and 8% for City

$

Transferred From Title #: ______________________

 

 

of Philadelphia residents) of Line D

 

 

 

 

 

 

 

 

 

F. Title Fee ($58)

 

 

$

r Proof of Insurance Attached

 

 

 

 

 

 

 

 

G.Registration Fee

(Refer to Form MV-70S located on our website at

$

 

 

 

www.dmv.pa.gov)

 

 

 

 

 

 

 

 

 

 

 

H. Registration Renewal Fee

(Refer to Form MV-70S located on our

$

Unladen Weight: _____________________________

 

 

website at www.dmv.pa.gov)

 

 

 

 

 

 

 

(For a listing of participating counties, refer to "Fee for Local Use - Participating

$

 

 

 

I. County Fee Counties" Fact Sheet found on our website at www.dmv.pa.gov.)

 

 

 

J. Number of Duplicate Registration Cards

$

Registered Gross Weight (if applicable): __________

 

 

(at $2 each)

 

_______

 

 

 

 

 

 

 

K. Registration Plate Transfer Fee ($9)

$

 

 

 

 

 

 

 

Registered Gross Comb. Weight (if applicable):

 

 

L. Lien Recording Fee ($28)

 

$

 

 

 

 

 

 

 

 

 

 

___________

 

 

M. TOTAL FEES DUE Add Lines E through K

$

 

 

 

 

 

 

 

 

H

AUTHORIZED SIGNATURES - NOTE: All applicable signatures must appear below.

 

 

 

 

 

 

 

APPLICANT - VEHICLE COMPLIANCE CERTIFICATION: I/We hereby state that this vehicle has been returned to road-worthy condition, by me or my agent, in accordance with all applicable laws and regulations. Further, I/we hereby verify that the information set forth herein is TRUE and CORRECT to the best of my knowledge, information, and belief. This verification is made subject to the penalties of 18 Pa.C.S. §4904, relating to unsworn falsification to authorities.

Signature of Applicant: _________________________________________________________ Date: ______________________

Signature of Co-Applicant: ______________________________________________________ Date: ______________________

Name of Applicant and Co-Applicant (Printed): __________________________ Daytime Phone #: _________________________

ENHANCED VEHICLE SAFETY INSPECTOR: I hereby state that I have examined this vehicle and found it to be in road-worthy condition in accordance with all applicable laws and regulations. Further, I state the information set forth herein is TRUE and CORRECT to the best of my knowledge, information and belief. This verification is made subject to the penalties of 18 Pa.C.S. §4904, relating to unsworn falsification to authorities.

Signature of Enhanced

Vehicle Safety Inspector: _________________________________________ Date: _______________ Station #: ____________

Name of Inspector (Printed): ______________________________________________ Inspector #: _______________________

CERTIFIED DOCUMENT REVIEWER: I hereby state that I have examined the title application and all related supporting documentation and found it to qualify for the title brand(s) indicated by my signature in the appropriate block(s) below. Further, I state the information set forth herein is TRUE and CORRECT to the best of my knowledge, information, and belief. This verification is made subject to the penalties of 18 Pa.C.S. §4904, relating to unsworn falsification to authorities.

r

Reconstructed

r

Specially Constructed

 

 

 

 

r

Flood

r

Recovered Theft

 

 

 

 

r

Reconstructed/Flood

r

Reconstructed/Recovered Theft

 

 

 

r

Street Rod

r Specially Constructed Street Rod

 

 

 

 

r

Collectible

r

Modified

 

 

 

 

Signature must appear in all applicable blocks below.

rONLINE PROCESSING REQUIRED: If Certified Document Reviewer's signature does not appear in this block, forward application to PennDOT for processing.

Signature of Certified Document Reviewer: ____________________________________________ Date: ___________________

Printed Name of Certified

Document Reviewer: ________________________________________ Reviewer ID #: _____________

3

Form MV-426B Completion Instructions

NOTE: An individual who has not been paid the replacement value for the recovered theft vehicle and has not received a certificate of salvage, may use their existing certificate of title without applying for a new certificate of title.

Only those safety inspection stations appointed and under contract with PennDOT as an Enhanced Vehicle Safety Inspection Station, may perform inspections for compliance with all applicable equipment and inspection regulations for the purpose of titling the vehicle in Pennsylvania on the following vehicles: reconstructed, flood, specially constructed, recovered theft, collectible, modified vehicles and street rods.

Applications for reconstructed and flood branded titles must be processed through an Online Business Partner. NOTE: An Online Business Partner may be found on our website at www.dmv.pa.gov by clicking on the Business Partner link underneath the Information Centers heading. Then select the Online Registration Program tab and the " Online Registration Program (OLRP) Location Guide (PDF)" link within that tab.

Additional processing fees may be charged. All other applications must be mailed to:

Commonwealth of Pennsylvania

Department of Transportation

Bureau of Motor Vehicles

Special Services Unit

P.O. Box 69007

Harrisburg, PA 17106-9007

Applicant Information - All applicant information must be entered exactly as it is to appear on the certificate of title. A Pennsylvania Certificate of Title will only be issued to a physical address; you may not use a post office box address alone or an out-of-state address. If the certificate of title or salvage certificate was previously issued to co-owners, both owners must sign Form MV-426B or Form MV-1 must be completed to change the ownership on the new title. All out-of-state proof of ownership documents must be accompanied by a completed Form MV-1. NOTE: Individuals should list their PA Driver’s License (PA DL) or Photo ID# in the space provided. Businesses should list their Business ID# (Bus. ID), where indicated (i.e. E.I.N.).

Vehicle Type - If the vehicle type is a mobile home, "mobile home" should be specified in the "Other" block. Mobile homes do not need to be inspected by an enhanced vehicle safety inspector, and an inspection sticker does not need to be affixed to Form MV-426B. A detailed description of how the mobile home was reconstructed must be attached to your application along with interior and exterior photographs. Your application must be signed by a certified document reviewer and forwarded to PennDOT for processing.

Previously abandoned vehicles and vehicles that were impounded and subsequently sold are considered reconstructed vehicles. Check "Other" in the Vehicle Type block, provide an explanation of how the vehicle was acquired and the level of damage, if any.

Weight Certification - The weight certification for trucks, truck-tractors and trailers must be completed by a certified enhanced vehicle safety inspector if the correct weight(s) do not appear on the vehicle's certificate of title or salvage certificate (such as unladen weight, gross vehicle weight rating or gross combination weight rating). A weight slip for the unladen (empty) weight must be attached if the correct unladen weight does not appear on the certificate of title or salvage certificate. It is not necessary to complete the weight certification in order to change the registered gross weight of a vehicle. Previously titled vehicles that have been altered to raise or lower the gross vehicle weight rating (GVWR) must be certified by the vehicle manufacturer. A new VIN-specific weight certification decal must be issued for the vehicle by the manufacturer. This label must be affixed to the left (driver's side) door jamb or door latch post.

Components Repaired/Replaced - With the exception of out-of-state vehicles described below, all major components that have been replaced or repaired should be indicated on the application. For all items replaced, you must provide a copy of a receipt or invoice or a copy of the Pennsylvania Certificate of Title or Salvage Certificate for another vehicle (which you own) from which parts were taken. It is not necessary to attach receipts for repaired components (such as labor for body work). Repair estimates may be used as receipts if they are marked "Paid" and signed and dated by someone authorized by the repair facility to do so. Repair estimates that are not marked "Paid" or those that are not signed and dated are not acceptable for use as receipts.

If the vehicle is coming to Pennsylvania on an out-of-state title that has already been branded (e.g., rebuilt salvage, reconstructed, previously salvaged, etc.), you are not required to document components repaired/replaced, nor provide receipts for parts replaced. Vehicles coming to Pennsylvania on a branded out-of-state title are permitted to obtain a temporary Pennsylvania registration and the vehicle may be operated while Form MV-426B is being processed. If the vehicle is coming to Pennsylvania on an out-of-state salvage certificate, you must present receipts and comply with all requirements under the Form MV-426B process. NOTE: These vehicles may not be operated while Form MV-426B is being processed.

4

If a truck cab is replaced, Form MV-41, "Application for Correction of Vehicle Record or Verification of Vehicle Identification Number," must be attached to Form MV-426B to request a state replacement VIN Plate. Under Section C (Application for State Replacement VIN Plate), check "Other" and indicate the cab was replaced. The VIN specified on Form MV-41 should be the VIN that appears on the frame of the vehicle (not the VIN displayed on the replacement cab). NOTE: Form MV-41 and the corresponding Form MV-426B must be submitted to PennDOT for processing.

When an odometer is repaired or replaced, the mileage indicated must remain the same as before the repair or replacement. If the odometer is incapable of registering the same mileage as before the repair or replacement, the odometer must be adjusted to read zero (0) and a notice in writing must be attached to the left door frame of the vehicle specifying the mileage prior to repair or replacement of the odometer and the date on which it was repaired or replaced.

Fee calculations should be completed and signed by the certified document reviewer. For a listing of current registration fees, please refer to Form MV-70S, “Bureau of Motor Vehicles Schedule of Fees,” found on our website at www.dmv.pa.gov. All checks or money orders should be made payable to the Commonwealth of Pennsylvania.

Authorized Signatures - Signatures must be present for the applicant, enhanced vehicle safety inspector (not required for mobile homes) and certified document reviewer. If the vehicle is to be titled in the name of a business, the application must be signed by an owner or corporate officer of the business.

Should you choose to personalize your registration plate, please complete and attach Form MV-904, "Application for Personalized, Amateur Radio Operator, or Press Photographer Registration Plate," to this application. There is an additional fee required with personalization requests. NOTE: If requesting your Street Rod registration plate to be personalized, complete and attach Form MV-904SR, "Application for Personalized Street Rod Registration Plate," to this application.

Application Attachment Checklist

rProof of ownership: Pennsylvania Certificate of Title; Pennsylvania Certificate of Salvage, certificate of salvage issued by another state or jurisdiction; certificate of title issued by another state or jurisdiction and indicating the vehicle was reconstructed in another state or jurisdiction; Manufacturer's Certificate of Origin or Statement of Origin (MCO/MSO) issued by a recognized manufacturer of vehicles. (NOTE: A MCO/MSO that indicates the vehicle is not intended for highway use (or similar designation) cannot be titled in Pennsylvania.) Specially constructed vehicles may have a bill of sale as acceptable proof of ownership (if no other ownership document exists).

rUnacceptable forms of proof of ownership include Form 907A issued by the state of New York, or any title, certificate of origin, statement of origin or certificate of salvage that indicates the vehicle is to be used for parts only; is not suitable to be rebuilt or titled or is not designed, constructed or intended for use on a public roadway. This includes statements of origin for all terrain vehicles (ATVs).

rForm MV-1, "Application for Certificate of Title," if the applicant's name does not currently appear on the face of the certificate of title or salvage certificate or if a co-owner is to be removed from the new title record.

rAppraisal report for flood or recovered theft vehicles where the damage does not exceed the replacement value of the vehicle. An acceptable appraisal report must contain the name and signature of the licensed appraiser; the appraiser's license number; the VIN of the vehicle appraised; the level of damage (in dollars); and the actual cash value of the vehicle (prior to flood or theft). NOTE: If the owner is a self-insurer, the assessment of damage must be completed by a licensed physical damage appraiser who is not affiliated with or employed by the self-insurer.

rA bill of sale if the applicant's name is not displayed on the face of the certificate of title or salvage certificate (not required for dealers who are sales tax exempt). If a salvaged vehicle was reassigned free of charge, Form MV-13ST, "Affidavit of Gift," may be submitted in lieu of a bill of sale. An acceptable bill of sale includes: the seller's name; seller's signature; buyer's name; Vehicle Identification Number (VIN); date of sale; purchase price; and if applicable, a statement from the seller indicating the vehicle was already completed at the time of purchase and no branded title was obtained by the seller. If this information does not appear on the bill of sale, a separate statement must be signed by the seller, notarized and contain the VIN of the vehicle.

rA power of attorney for any person signing on behalf of a purchaser or seller, if applicable. NOTE: An "agent" signing on behalf of an employer is not required to attach a power of attorney.

rRetention (buy-back) letter from insurance company if vehicle was totaled and retained by the applicant for the purpose of retitling it. This letter (on the insurance company or insurance agent's letterhead) should indicate the amount deducted from the insurance pay-off (settlement) to allow the insured to retain the vehicle.

rCopies of all receipts for all components replaced as indicated on Form MV-426B (if required). If you indicate a component was taken from another vehicle, a copy of the salvage certificate or title (in your name) for the parts vehicle must be attached in lieu of a receipt. NOTE: Only business entities (dealers, rebuilders, etc.) titling the vehicle in the business name may claim parts used in the reconstruction were taken from existing inventory, and therefore, no receipts are needed. If a dealer or rebuilder reconstructed a vehicle for the applicant, the parts used to complete the vehicle may be listed on the bill of sale.

r A weight slip if the correct unladen weight of a truck, trailer or truck-tractor is not listed on the certificate of title or salvage.

5

rA detailed description on separate 8 ½" X 11" paper for specially constructed, collectible, modified vehicles and street rods indicating how the vehicle was configured and assembled.

rPhotographs of the vehicle showing the front, rear, left and right sides. Photographs must be signed/dated by the enhanced vehicle safety inspector. Additional photographs may be required for mobile homes, motor homes and collectible vehicles. Mobile home photographs do not have to be signed by an enhanced vehicle safety inspector.

rAll applicable fees. Checks and/or money orders should be made payable to Commonwealth of Pennsylvania.

rAny unpaid sales tax for vehicle purchase, insurance buy-back (retention) or any items purchased without tax collected such as online purchases.

If the vehicle was purchased outside Pennsylvania within the previous six (6) months, the applicant must show proof of sales tax paid in the form of a sales tax receipt, notarized bill of sale or notarized letter from the seller indicating the amount of sales tax paid. Refer to Form REV-227, "Pennsylvania Sales and Use Tax Credit Chart," to determine if you may claim a tax credit for sales tax paid in another state. This chart can be found on the Department of Revenue website at www.revenue.pa.gov. NOTE: Applicants exempt from Pennsylvania sales tax will list the appropriate Sales Tax Exemption reason code in Sections 1A and/or 1B. (See exemption codes listed on the reverse side of Form MV-1.)

Sales tax is not required to be paid to PennDOT in connection with the sale of a used mobile home, regardless of whether it is permanently affixed or relocated.

rForm MV-41, "Application for Correction of Vehicle Record or Verification of Vehicle Identification Number," if a Pennsylvania replacement Vehicle Identification Number (VIN) plate is required. NOTE: Form MV-41 and the corresponding Form MV-426B must be submitted to PennDOT for processing.

Visit us at www.dmv.pa.gov or call us at 717-412-5300. TTY callers — please dial 711 to reach us.

6

File Breakdown

Fact Name Details
Form Title Application for Reconstructed, Specially Constructed, Collectible, Modified, Flood, Recovered Theft Vehicles and Street Rods
Governing Authority Pennsylvania Department of Transportation (PennDOT)
Form Version MV-426B (7-21)
Submission Address Bureau of Motor Vehicles, P.O. Box 69007, Harrisburg, PA 17106-9007
Application Types Includes passenger vehicles, trucks, motorcycles, buses, trailers, and more.
Inspection Requirement Vehicles must be inspected by a certified enhanced vehicle safety inspector.
Weight Certification Required for trucks, truck-tractors, and trailers if weight is not listed on the title.
Signature Requirement Must include signatures from the applicant, inspector, and certified document reviewer.

Guide to Using Mv426B

Completing the MV-426B form is essential for anyone seeking to register a reconstructed, specially constructed, collectible, modified, flood, recovered theft vehicle, or street rod in Pennsylvania. Following the steps below will ensure that all necessary information is accurately provided, facilitating a smoother processing experience.

  1. Fill out Applicant Information: Enter the last name, first name, middle name, and PA DL/Photo ID number for both the applicant and co-applicant (if applicable). Include the date of birth or business ID number, street address, city, state, zip code, and an optional email address.
  2. Select Application Type: Check the box that corresponds to the type of vehicle you are applying for, such as passenger, truck, motorcycle, etc.
  3. Provide Explanation: Indicate which statements apply to your situation by checking all relevant boxes. Ensure you attach the necessary documents, such as a certificate of title or salvage and receipts for parts used.
  4. Vehicle Inspection and VIN Verification: Affix the inspection sticker using clear tape, covering the entire reverse side. Fill in the date of inspection, VIN, station number, inspector's name, signature, and other relevant details.
  5. Weight Certification: If applicable, have a certified enhanced inspector complete this section. Attach the weight slip if the correct weights are not listed on the title or salvage certificate.
  6. Components Replaced/Repaired: Check all major components that have been replaced or repaired. Attach copies of receipts, invoices, or salvage certificates for each component replaced.
  7. Fee Calculations: Complete the fee calculation section, including purchase price, sales tax, title fee, registration fee, and any other applicable fees. Calculate the total fees due.
  8. Authorized Signatures: Ensure that the applicant, co-applicant, enhanced vehicle safety inspector, and certified document reviewer sign the form where required. If the vehicle is owned by a business, ensure it is signed by an authorized representative.

Once the form is completed, gather all required attachments and submit them to the appropriate address. This will initiate the processing of your application, allowing you to proceed with titling your vehicle in Pennsylvania.

Get Answers on Mv426B

  1. What is the MV-426B form used for?

    The MV-426B form is an application for titling vehicles that have been reconstructed, specially constructed, collectible, modified, flood-damaged, recovered theft vehicles, or street rods in Pennsylvania. This form must be completed and submitted to the Pennsylvania Department of Transportation (PennDOT) for processing.

  2. Who needs to complete the MV-426B form?

    Individuals or businesses that own vehicles that fall under the categories mentioned above must complete the MV-426B form. This includes anyone who has reconstructed a vehicle, purchased a vehicle with a branded title from another state, or has a vehicle that has been declared a total loss due to flood or theft.

  3. What information is required on the MV-426B form?

    The form requires detailed applicant information, including names, addresses, and identification numbers. Additionally, the type of vehicle and an explanation of the vehicle's condition must be provided. Information about any major components that have been replaced or repaired is also necessary, along with proof of ownership documentation.

  4. What types of vehicles can be titled using the MV-426B form?

    The MV-426B form can be used for various types of vehicles, including:

    • Passenger vehicles
    • Trucks
    • Motorcycles
    • Buses
    • Modified vehicles
    • Street rods
    • Flood vehicles
    • Recovered theft vehicles
  5. What documents must accompany the MV-426B form?

    Applicants must include several documents with the MV-426B form, such as:

    • Proof of ownership (title, salvage certificate, etc.)
    • Receipts for parts used in reconstruction
    • Inspection and VIN verification documentation
    • Weight certification if applicable
    • Appraisal reports for flood or recovered theft vehicles
  6. How is the vehicle inspection process conducted?

    The vehicle must be inspected by a certified enhanced vehicle safety inspector. This inspection verifies that the vehicle meets all applicable laws and regulations. The inspector will complete the necessary sections on the MV-426B form, including affixing an inspection sticker.

  7. What fees are associated with the MV-426B application?

    Several fees may be applicable when submitting the MV-426B form, including:

    • Title fee
    • Registration fee
    • Sales tax on the purchase price
    • Transfer fees for plates

    The total fees will depend on the specifics of the application and must be calculated and submitted with the form.

  8. How long does the processing of the MV-426B form take?

    The processing time for the MV-426B form can vary. Generally, applicants can expect a few weeks for the application to be processed by PennDOT. However, delays may occur depending on the volume of applications or if additional documentation is required.

  9. Can I operate my vehicle while the MV-426B application is being processed?

    If the vehicle is coming to Pennsylvania with an out-of-state branded title, it may be operated while the MV-426B application is processed. However, vehicles coming in on a salvage certificate cannot be operated until the application is approved.

  10. Where do I send the completed MV-426B form?

    The completed MV-426B form should be mailed to the following address:

    Commonwealth of Pennsylvania
    Department of Transportation
    Bureau of Motor Vehicles
    Special Services Unit
    P.O. Box 69007
    Harrisburg, PA 17106-9007

Common mistakes

Filling out the MV-426B form can be a daunting task for many individuals. Mistakes can lead to delays in processing and even potential legal issues. Here are nine common errors people often make when completing this important application.

One frequent mistake is incomplete applicant information. Applicants sometimes forget to provide all required details, such as their full name, address, and Pennsylvania driver's license or business ID number. Each section must be filled out accurately to ensure that the application can be processed without unnecessary delays.

Another common error involves the selection of the vehicle type. Some applicants fail to check the appropriate box that corresponds to their vehicle's classification. This can lead to confusion and complications later in the process, particularly if the vehicle type affects the required documentation.

Many individuals also neglect to attach necessary documentation. For instance, if the vehicle has been reconstructed, applicants must include a certificate of title or salvage and receipts for parts used. Omitting these documents can result in rejection of the application.

Furthermore, errors in component replacement documentation are prevalent. Applicants often forget to provide receipts for major components that have been replaced or repaired. Each component listed must be supported by appropriate documentation to validate the claims made on the form.

Another mistake is failing to obtain the required signatures. The application must be signed by both the applicant and the enhanced vehicle safety inspector, as well as a certified document reviewer. Without these signatures, the application cannot be processed.

People also frequently miscalculate the fees due. It is essential to accurately complete the fee calculations section, including sales tax and registration fees. Errors here can lead to delays in processing, as the application may be returned for corrections.

Moreover, applicants sometimes overlook the VIN verification requirement. The VIN sticker must be affixed to the application, and it should be done correctly. If this step is neglected, it can result in significant delays and complications.

Another common oversight is the weight certification. If the vehicle's weight is not listed on the title or salvage certificate, applicants must ensure that a certified enhanced inspector completes the weight certification section. Failing to do so can lead to additional processing time.

Lastly, individuals often do not keep copies of their submitted documents. It is advisable to retain copies of the completed MV-426B form and all accompanying documents for personal records. This can be invaluable in case any issues arise during the processing of the application.

By being aware of these common mistakes, applicants can navigate the MV-426B form with greater confidence and accuracy, ensuring a smoother process in obtaining their vehicle title.

Documents used along the form

When applying for a vehicle title using the MV-426B form, several other documents may be necessary to support your application. These documents help clarify the vehicle's history and ensure compliance with state regulations. Below is a list of commonly used forms and documents that often accompany the MV-426B form.

  • Form MV-1: This is the "Application for Certificate of Title." It is required when the applicant's name does not appear on the current title or when a co-owner needs to be removed from the title record.
  • Form MV-41: Known as the "Application for Correction of Vehicle Record or Verification of Vehicle Identification Number," this form is needed if a truck cab has been replaced and a state replacement VIN plate is requested.
  • Form MV-13ST: This is the "Affidavit of Gift." It can be used in lieu of a bill of sale when a salvaged vehicle is reassigned without charge.
  • Appraisal Report: Required for flood or recovered theft vehicles, this report must detail the level of damage and actual cash value of the vehicle. It should include the appraiser's signature and license number.
  • Proof of Ownership: Acceptable forms include a Pennsylvania Certificate of Title, a salvage certificate, or a Manufacturer's Certificate of Origin. These documents establish legal ownership of the vehicle.
  • Weight Slip: This document is necessary if the correct unladen weight is not listed on the title or salvage certificate for trucks, truck-tractors, or trailers.
  • Bill of Sale: If the applicant's name is not on the title, a bill of sale is needed. It should contain essential details like the seller's and buyer's names, the Vehicle Identification Number (VIN), and the purchase price.
  • Power of Attorney: This document is needed when someone is signing on behalf of the purchaser or seller, allowing them to act in that capacity legally.

These documents play a crucial role in ensuring that the application process is smooth and compliant with state laws. It is important to gather all necessary paperwork before submitting your application to avoid delays. By being thorough and organized, you can navigate the complexities of vehicle titling with confidence.

Similar forms

The MV-426B form is essential for individuals looking to register vehicles that have been reconstructed, specially constructed, or have unique histories, such as being flood-damaged or recovered thefts. Similar forms exist that serve comparable purposes in vehicle registration and titling. Here are six documents that share similarities with the MV-426B form:

  • Form MV-1: Application for Certificate of Title - This form is used to apply for a new title when ownership of a vehicle changes. Like the MV-426B, it requires detailed information about the vehicle and the applicant, ensuring proper registration.
  • Form MV-41: Application for Correction of Vehicle Record - This document is utilized to correct errors in vehicle records, such as incorrect VINs. Similar to the MV-426B, it ensures that the vehicle's details are accurate for legal and registration purposes.
  • Form MV-13ST: Affidavit of Gift - Used when a vehicle is transferred as a gift, this form requires proof of ownership and a statement from the seller. Like the MV-426B, it emphasizes the need for accurate documentation in the transfer process.
  • Form MV-480: Application for Title or Registration - This form is for individuals looking to obtain a title or register a vehicle. It shares the MV-426B's focus on gathering necessary information to facilitate the titling process.
  • Form MV-70S: Bureau of Motor Vehicles Schedule of Fees - While not a title application, this form outlines the fees associated with vehicle registrations and titles, similar to the MV-426B, which also includes fee calculations for various services.
  • Form MV-904: Application for Personalized, Amateur Radio Operator, or Press Photographer Registration Plate - This form allows individuals to request personalized plates. Like the MV-426B, it requires specific information about the vehicle and its owner, ensuring that all details are accurately recorded.

Understanding these forms and their similarities can streamline the process of vehicle registration and ensure compliance with state regulations. Each form plays a crucial role in maintaining accurate records and facilitating legal vehicle ownership.

Dos and Don'ts

When filling out the MV-426B form, it’s essential to be careful and thorough. Here’s a list of things you should and shouldn’t do to ensure a smooth application process.

  • Do complete all sections of the form accurately.
  • Do provide your Pennsylvania Driver’s License or Business ID number.
  • Do attach all required documents, such as proof of ownership and receipts for parts.
  • Do ensure that all signatures are present where required.
  • Do check the vehicle type and application type boxes carefully.
  • Don’t use a post office box as your address; a physical address is required.
  • Don’t submit incomplete forms; all sections must be filled out.
  • Don’t forget to include a weight slip if applicable.
  • Don’t delay in sending your application to the correct address for processing.

Following these guidelines will help you navigate the application process more effectively. Take your time, double-check your work, and you'll be on your way to successfully submitting your form.

Misconceptions

When it comes to the MV-426B form, there are several misconceptions that can lead to confusion for applicants. Understanding these misconceptions can help ensure a smoother application process.

  • Misconception 1: The MV-426B form is only for vehicles that have been completely rebuilt.
  • This is not true. The form applies to a variety of vehicles, including those that have been modified, collectible vehicles, and even those that have been declared total losses due to flood or theft. Each situation has its own requirements, but the form is versatile.

  • Misconception 2: You must have a new title issued for every vehicle type.
  • While many vehicles do require a new title, some situations allow individuals to retain their original title. For example, if the owner has not received payment for a recovered theft vehicle, they can use their existing title without applying for a new one.

  • Misconception 3: All vehicles need to be inspected by an enhanced vehicle safety inspector.
  • This is only necessary for specific types of vehicles, such as reconstructed, flood, or specially constructed vehicles. Mobile homes, for instance, do not require this inspection.

  • Misconception 4: You can use any form of proof of ownership.
  • Not all documents are acceptable. For example, titles that indicate a vehicle is for parts only or not suitable for rebuilding cannot be used. It is essential to provide the correct documentation as specified in the form instructions.

  • Misconception 5: You do not need to provide receipts for all repairs or replacements.
  • While receipts are necessary for major components that have been replaced, it is not required for repairs. This can lead to some confusion, as applicants may not realize they only need to provide receipts for certain items.

  • Misconception 6: The application process is the same for all counties in Pennsylvania.
  • This is misleading. Different counties may have varying requirements or fees associated with the application process. It is wise to check with local authorities or the Pennsylvania DMV for specific guidelines relevant to your area.

Key takeaways

Filling out the MV426B form is a crucial step for anyone looking to register a reconstructed, specially constructed, collectible, modified, flood, recovered theft vehicle, or street rod in Pennsylvania. Here are some key takeaways to ensure a smooth application process:

  • Complete All Sections: Ensure every section of the form is filled out accurately. Missing information can lead to delays in processing.
  • Provide Proof of Ownership: Attach the necessary documents such as a Pennsylvania Certificate of Title or a certificate of salvage. This is essential for establishing your claim to the vehicle.
  • Understand Vehicle Types: Clearly indicate the type of vehicle you are registering. Different types may have specific requirements, especially mobile homes.
  • Weight Certification: If applicable, obtain a weight certification from a certified inspector. This is particularly important for trucks and trailers, where weight specifications are crucial.
  • Document Repairs and Replacements: List all major components that have been replaced or repaired. Include receipts or invoices for these components to support your application.
  • Authorized Signatures: Ensure that all required signatures are present on the form, including those of the applicant, the enhanced vehicle safety inspector, and the certified document reviewer.
  • Fees and Taxes: Be aware of the fees associated with the application, including sales tax and registration fees. These must be calculated and submitted with your application.
  • Submission Guidelines: Follow the correct submission process. Some applications may need to be sent to PennDOT for processing, while others can be handled online through authorized partners.

By adhering to these guidelines, applicants can navigate the complexities of the MV426B form more effectively, ensuring a better chance of successful registration.