Content Navigation

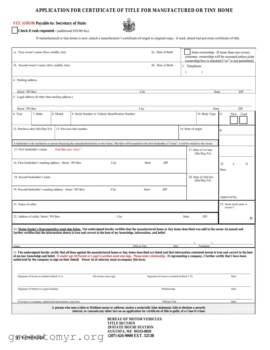
When it comes to obtaining a certificate of title for a manufactured or tiny home, the Mvt 2 Mh form plays a crucial role in the process. This application is essential for anyone looking to establish legal ownership of their home, whether it’s newly built or pre-owned. For a fee of $100, which is payable to the Secretary of State, you can initiate the title transfer process. If you need it expedited, a rush option is available for an additional $10. The form requires detailed information about the owners, including names, dates of birth, and contact information. It also asks for specifics about the home itself, such as its make, model, and serial number. If there are any liens associated with the home, the form ensures that lienholders are properly documented, as the title will be mailed to them unless otherwise specified. Additionally, signatures from all owners are mandatory, and if the owner is under 18, a parent or legal guardian must also sign. This form not only simplifies the title transfer process but also ensures that all necessary legalities are followed, protecting the interests of both the buyer and seller.

Mvt 2 Mh Example

APPLICATION FOR CERTIFICATE OF TITLE FOR MANUFACTURED OR TINY HOME

FEE $100.00 Payable to: Secretary of State

Check if rush requested - (additional $10.00 fee)

If manufactured or tiny home is new, attach a manufacturer’s certificate of origin to original copy; if used, attach last previous certificate of title.

1a.

First owner’s name (first, middle, last)

2a.

Date of Birth

 

 

 

 

1b.

Second owner’s name (first, middle, last)

2b.

Date of Birth

 

 

 

 

Joint ownership - If more than one owner, common ownership will be assumed unless joint ownership box is checked (“or” is not permitted)

3.Telephone

()

4.

Mailing address

 

 

 

 

 

 

 

 

 

 

 

 

 

 

 

 

 

 

 

 

 

 

 

 

 

 

Street / PO Box

 

 

 

City

 

 

State

ZIP

5.

Legal address (If other than mailing address.)

 

 

 

 

 

 

 

 

 

 

 

 

 

 

 

 

 

 

 

 

 

 

 

 

 

 

Street / PO Box

 

 

 

City

 

 

State

ZIP

 

6. Year

7. Make

 

8. Model

9. Serial Number or Vehicle Identification Number

 

 

10. Body Type 11.

New Used

 

 

 

 

 

 

 

 

 

 

 

 

 

 

 

 

 

 

 

 

 

 

 

 

 

 

 

 

 

 

 

 

12. Purchase date (Mo/Day/Yr)

 

13. Previous title number

 

14. State of origin

 

R

 

 

 

 

 

 

 

 

 

 

 

 

 

 

 

 

 

 

 

 

 

 

 

 

 

 

 

 

 

 

 

 

 

 

 

 

 

 

 

 

 

 

 

 

 

 

 

 

 

 

 

 

 

 

 

 

 

A lienholder is the institution or person financing the manufactured home or tiny home. The title will be mailed to the first lienholder; if “none”, it will be mailed to the owner.

15. First lienholder’s name

If no lien, state “none”

 

 

 

17. Date of 1st lien

 

 

 

 

 

 

 

 

 

 

 

(Mo/Day/Yr)

 

 

 

 

 

 

 

 

 

 

 

 

 

 

 

 

 

 

 

 

 

 

 

 

 

 

 

 

16. First lienholder’s mailing address: Street / PO Box

City

State

ZIP

 

 

 

D

L

O

 

 

 

 

 

 

 

 

 

 

 

 

 

 

 

 

Date:

 

 

 

 

 

 

 

 

 

 

 

 

 

18. Second lienholder’s name

 

 

 

 

20. Date of 2nd lien

 

 

 

 

 

 

 

 

 

 

 

(Mo/Day/Yr)

 

 

 

 

 

 

 

 

 

 

 

 

 

 

 

 

19. Second lienholder’s mailing address: Street / PO Box

City

State

ZIP

 

 

 

 

 

 

 

 

 

 

 

 

 

 

 

Approved by:

 

 

 

 

 

 

 

 

 

 

 

 

21. Name of seller

 

 

 

 

 

 

 

23. Maine dealer plate or

 

 

 

 

 

 

 

 

 

license #

 

 

 

 

 

 

 

 

 

 

 

 

22. Address of seller: Street / PO Box

City

 

State

ZIP

 

 

 

H

 

 

 

 

 

 

 

 

 

 

 

 

 

 

 

 

 

 

 

 

 

 

 

 

 

 

 

 

 

 

 

 

 

 

24.Maine Dealer’s Representative must sign below. The undersigned hereby certifies that the manufactured home or tiny home described was sold to the owner (s) named and further certifies that the information shown is true and correct to the best of my knowledge, information, and belief.

 

 

(

)

Name

Official Title

Date

 

 

 

Telephone

 

 

25. The undersigned hereby certify that all liens against the manufactured home or tiny home described are listed and that information contained herein is true and correct to the best of my/our knowledge and belief. If under age 18 Parent or Legal Guardian must also sign. Please state relationship. If representing a company, I further certify that I have been authorized by the company to sign on their behalf. Power (s) of attorney must accompany this form.

Signature of owner as named in block # 1a.

All owners must sign.

Signature of owner as named in block # 1b.

Date

 

 

 

 

 

 

 

 

Signature of Parent or Legal Guardian

 

Relationship

Date

 

 

 

 

 

 

 

 

If owner is a company, authorized representative sign here.

 

Official Title

Date

 

A person who uses a false or fictitious name or address, makes a materially false statement, fails to disclose a security interest, or conceals any other fact on an application for certificate of title is guilty of a Class D crime.

 

BUREAU OF MOTOR VEHICLES

 

TITLE SECTION

 

29 STATE HOUSE STATION

 

AUGUSTA, ME 04333-0029

MVT-2 MH 0-2020

(207) 624-9000 EXT. 52138

 

File Breakdown

Fact Name Description
Form Purpose This form is used to apply for a certificate of title for a manufactured home or tiny home in the state of Maine.
Application Fee The standard fee for filing this application is $100. An additional $10 is required for expedited processing.
Ownership Details Applicants must provide the names and dates of birth for all owners. Joint ownership can be indicated by checking the appropriate box.
Documentation Requirement If the home is new, a manufacturer’s certificate of origin must be attached. For used homes, the last previous certificate of title is required.
Lienholder Information Details about any lienholders must be provided. The title will be mailed to the first lienholder unless stated otherwise.
Legal Consequences Providing false information on this application may result in criminal charges, specifically a Class D crime.
Governing Law This form is governed by Maine state law regarding the titling of manufactured homes and tiny homes.

Guide to Using Mvt 2 Mh

Completing the Mvt 2 Mh form is a crucial step in obtaining a certificate of title for your manufactured or tiny home. Ensure you have all necessary documents ready, including any previous titles or manufacturer’s certificates, before you begin. Follow these steps carefully to avoid delays in processing your application.

  1. Begin by filling out the first owner's full name in the designated space (first, middle, last).
  2. Enter the date of birth for the first owner.
  3. If there is a second owner, fill in their full name as well.
  4. Provide the date of birth for the second owner.
  5. If applicable, check the box for joint ownership.
  6. Input a contact telephone number.
  7. Complete the mailing address section with your street address or PO Box, city, state, and ZIP code.
  8. If the legal address differs from the mailing address, fill in that information as well.
  9. Specify the year of the manufactured or tiny home.
  10. Indicate the make of the home.
  11. Provide the model of the home.
  12. Enter the serial number or Vehicle Identification Number (VIN).
  13. Choose the body type of the home.
  14. Indicate whether the home is new or used by checking the appropriate box.
  15. Fill in the purchase date in the format Mo/Day/Yr.
  16. Provide the previous title number if applicable.
  17. Indicate the state of origin for the home.
  18. If there is a lienholder, provide their name and mailing address. If none, state "none."
  19. Record the date of the first lien.
  20. If there is a second lienholder, fill in their name and mailing address, along with the date of the second lien.
  21. Enter the name of the seller and their address.
  22. Ensure the Maine Dealer’s Representative signs the form where indicated.
  23. All owners must sign the form, including a parent or legal guardian if under age 18.
  24. If applicable, include the signature of an authorized representative if the owner is a company.

Once you have completed the form, review it thoroughly for accuracy. Submit the form along with the required fee to the Bureau of Motor Vehicles Title Section. Remember, any errors or omissions can lead to processing delays, so take your time to ensure everything is correct. Your timely submission can help expedite the issuance of your certificate of title.

Get Answers on Mvt 2 Mh

What is the Mvt 2 Mh form used for?

The Mvt 2 Mh form is an application for obtaining a certificate of title for manufactured or tiny homes. This document is essential for establishing legal ownership and is required when transferring ownership or registering a manufactured or tiny home in the state of Maine.

What fees are associated with the Mvt 2 Mh form?

The standard fee for processing the Mvt 2 Mh form is $100. If you need expedited processing, you can request a rush service for an additional fee of $10. Payment should be made to the Secretary of State.

What documents must be attached to the Mvt 2 Mh form?

When submitting the Mvt 2 Mh form, you must attach specific documents depending on whether the manufactured or tiny home is new or used:

  • If the home is new, include a manufacturer's certificate of origin.
  • If the home is used, attach the last previous certificate of title.

How do I fill out the owner information on the form?

The form requires you to provide information for up to two owners. For each owner, you must include their full name and date of birth. If there are multiple owners, joint ownership will be assumed unless you check the joint ownership box. Remember that “or” is not permitted in this section.

What should I do if there are liens on the manufactured or tiny home?

If there are liens on the home, you must provide the name and mailing address of the first lienholder. The title will be mailed to this lienholder. If there is a second lienholder, their information must also be included. If there are no liens, simply state “none” in the appropriate section.

What are the consequences of providing false information on the Mvt 2 Mh form?

Providing false or misleading information on the Mvt 2 Mh form can lead to serious legal consequences. A person who uses a false name, makes materially false statements, or fails to disclose relevant information may be charged with a Class D crime. It is crucial to ensure that all information provided is accurate and truthful.

Common mistakes

Filling out the Mvt 2 Mh form can be straightforward, but many people make common mistakes that can delay the process. One frequent error is not providing complete names for all owners. The form requires the full name, including first, middle, and last names. Missing any part can lead to complications.

Another mistake is failing to check the joint ownership box when applicable. If there are multiple owners and this box is not checked, the state will assume common ownership. This can create issues if the owners have different intentions regarding the property.

People often overlook the importance of accurate contact information. Providing a wrong telephone number or mailing address can result in missed communications from the Secretary of State. Always double-check this information before submitting the form.

Additionally, many applicants forget to include the necessary documentation. If the manufactured or tiny home is new, a manufacturer’s certificate of origin must be attached. For used homes, the last previous certificate of title is required. Missing these documents can lead to a rejection of the application.

Another common error involves the purchase date. It’s essential to fill in the purchase date in the correct format (Mo/Day/Yr). Incorrect formatting can cause confusion and delays in processing.

Some applicants neglect to provide information about lienholders. If there is a lienholder, their name and mailing address must be included. If there is no lien, stating “none” is necessary. Omitting this information can complicate the title issuance.

People also sometimes fail to sign the form. All owners must sign in the designated areas. If the owner is under 18, a parent or legal guardian must also sign. Missing signatures can lead to the application being deemed incomplete.

Lastly, applicants may not realize the significance of providing accurate vehicle details. Year, make, model, and serial number must all be correct. Any inaccuracies can result in delays or rejection of the application.

By avoiding these common mistakes, applicants can streamline the process of obtaining a certificate of title for their manufactured or tiny home.

Documents used along the form

The Mvt 2 Mh form is an essential document for obtaining a certificate of title for a manufactured or tiny home. However, several other forms and documents are often required or recommended to accompany this application. Understanding these additional documents can help streamline the process and ensure compliance with all necessary regulations.

  • Manufacturer’s Certificate of Origin: This document is crucial when the manufactured or tiny home is new. It serves as proof of the home's origin and is typically issued by the manufacturer. It must be attached to the Mvt 2 Mh form to validate the title application.
  • Previous Certificate of Title: If the home is used, the last previous certificate of title must be included. This document provides a history of ownership and is necessary to establish the current owner's rights to the property.
  • Power of Attorney: In cases where an authorized representative is signing on behalf of the owner, a power of attorney document must accompany the Mvt 2 Mh form. This document grants the representative the legal authority to act on the owner's behalf in this matter.
  • Liens Documentation: If there are any liens on the manufactured home or tiny home, documentation detailing these liens must be provided. This ensures that all financial obligations are disclosed and considered during the title transfer process.
  • Identification Documents: Owners may need to provide identification, such as a driver's license or state ID, to verify their identity. This helps prevent fraud and ensures that the application is being submitted by the rightful owner.
  • Seller's Disclosure Statement: This document outlines any known issues with the home that the seller is obligated to disclose. It protects the buyer by ensuring they are informed about the condition of the home before completing the sale.

By gathering these documents and understanding their purposes, individuals can navigate the process of obtaining a title for a manufactured or tiny home more effectively. Each document plays a vital role in ensuring that ownership is properly established and that all legal requirements are met.

Similar forms

  • Certificate of Title Application: Similar to the Mvt 2 Mh form, this document is used to apply for the official title of a vehicle, ensuring that ownership is properly recorded.
  • Bill of Sale: This document serves as proof of transaction between buyer and seller. It often includes details about the vehicle, including identification numbers and purchase price, similar to the information required on the Mvt 2 Mh form.
  • Manufacturer’s Certificate of Origin: This document is necessary for new manufactured homes or tiny homes. It verifies the origin of the home, akin to the requirement of attaching it when applying for a title.
  • Vehicle Registration Form: This form is used to register a vehicle with the state. Like the Mvt 2 Mh form, it collects owner information and vehicle details for official records.
  • Application for Duplicate Title: When a title is lost, this application allows the owner to request a replacement. The information required parallels that of the Mvt 2 Mh form.
  • Lien Release Form: This document is used to officially release a lien on a vehicle. It shares similarities with the Mvt 2 Mh form in terms of documenting lienholder information.
  • Power of Attorney: If someone else is signing on behalf of the owner, this document grants them the authority to do so. It is referenced in the Mvt 2 Mh form for situations involving company representatives.
  • Affidavit of Ownership: This document may be required when the owner cannot provide a title. It serves to affirm ownership, much like the declaration of truthfulness in the Mvt 2 Mh form.
  • Transfer of Ownership Form: Used when ownership of a vehicle changes hands, this form collects similar information about the new owner and the vehicle itself, reflecting the purpose of the Mvt 2 Mh form.

Dos and Don'ts

When filling out the Mvt 2 Mh form for a certificate of title for a manufactured or tiny home, it is essential to be thorough and accurate. Here are some important dos and don’ts to keep in mind:

  • Do double-check all personal information for accuracy, including names and dates of birth.
  • Do ensure that you attach the necessary documents, such as the manufacturer’s certificate of origin or previous title certificate.
  • Do indicate whether the home is new or used by checking the appropriate box.
  • Do provide complete mailing and legal addresses to avoid delays in processing.
  • Don't leave any sections blank; incomplete forms can lead to rejection.
  • Don't use a false name or address; this can result in serious legal consequences.
  • Don't forget to sign the form; all owners must provide their signatures.
  • Don't forget to include the lienholder information if applicable, as this is crucial for title processing.

By following these guidelines, you can help ensure a smoother process when applying for your certificate of title.

Misconceptions

Understanding the Mvt 2 Mh form can be challenging, and several misconceptions may lead to confusion. Here are eight common misunderstandings regarding this application for a certificate of title for manufactured or tiny homes:

  • Only new homes require a manufacturer's certificate of origin. Many believe that only new manufactured homes need this document. However, if the home is used, the last previous certificate of title must be attached instead.
  • Joint ownership means that all owners have equal rights. This is not always the case. If the joint ownership box is not checked, common ownership will be assumed, which may lead to complications in ownership rights.
  • The application fee is the only cost involved. Some applicants think that the $100 fee is the only expense. In fact, if a rush request is made, an additional $10 fee applies.
  • Only the first owner needs to provide information. This is misleading. Both owners, if applicable, must provide their names and dates of birth to ensure proper registration.
  • Titles are mailed directly to the owner. This is a common misconception. If there is a lienholder, the title will be mailed to them instead of the owner.
  • It is acceptable to leave sections blank. Omitting information can lead to delays or rejections. Every section of the form must be completed accurately to avoid complications.
  • Signing the form is a mere formality. In reality, signing the application certifies that all information is true and correct. Providing false information can result in serious legal consequences.
  • Only individuals can apply for a title. This is not true. Companies can also apply, but an authorized representative must sign the application on behalf of the company.

Being aware of these misconceptions can help streamline the application process and ensure compliance with all requirements. It is essential to read the form carefully and provide accurate information to avoid any potential issues.

Key takeaways

Filling out the Mvt 2 Mh form accurately is crucial for obtaining a certificate of title for manufactured or tiny homes. Here are key takeaways to ensure the process runs smoothly:

  • Application Fee: A fee of $100.00 is required, payable to the Secretary of State. An additional $10.00 applies for rush requests.
  • Documentation: Attach a manufacturer’s certificate of origin for new homes. For used homes, include the last previous certificate of title.
  • Owner Information: Provide complete names and dates of birth for all owners. Ensure that all owners sign the form.
  • Joint Ownership: If applicable, check the joint ownership box. Common ownership is assumed if not specified.
  • Contact Details: Include a valid telephone number and mailing address. Provide a legal address if different from the mailing address.
  • Vehicle Information: Fill in the year, make, model, serial number, and body type of the home accurately.
  • Lienholder Information: If there is a lien, include the lienholder’s name and mailing address. If there are no liens, state “none.”
  • Signatures Required: All owners must sign the form. If under 18, a parent or legal guardian must also sign.
  • False Information: Providing false information can lead to serious legal consequences. Ensure all statements are truthful and complete.

Completing the Mvt 2 Mh form with attention to detail will facilitate a smoother title application process. Be diligent and thorough in every section.