Content Navigation

In the realm of real estate transactions, clarity and transparency are paramount, particularly when it comes to the financial aspects involved in property transfers. The New Jersey Affidavit of Consideration RTF-1 form plays a crucial role in this process, serving as a formal declaration that outlines the consideration—the amount paid or exchanged—for a property. This form not only helps to establish the legitimacy of the transaction but also ensures compliance with state regulations. By detailing the nature of the consideration, whether it be cash, a mortgage, or other forms of compensation, the RTF-1 form provides essential information to both the buyer and seller. It is often required by county clerks during the recording of deeds, making it a vital document in the closing process. Understanding the nuances of this affidavit can significantly impact the smooth execution of a real estate deal, as it addresses potential tax implications and serves as a safeguard against disputes. As you navigate the complexities of property transfers in New Jersey, familiarity with the RTF-1 form will empower you to make informed decisions and facilitate a seamless transaction.

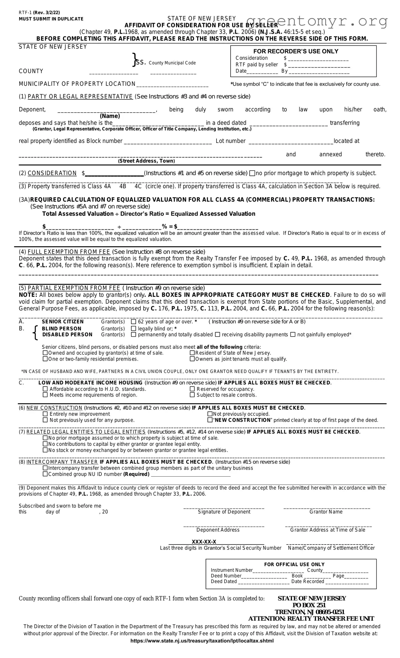
New Jersey Affidavit of Consideration RTF-1 Example

RTF-1 (Rev. 3/2/22)

 

MUST SUBMIT IN DUPLICATE

STATE OF NEW JERSEY

 

AFFIDAVIT OF CONSIDERATION FOR USE BY SELLER

(Chapter 49, P.L.1968, as amended through Chapter 33, P.L. 2006) (N.J.S.A. 46:15-5 et seq.)

BEFORE COMPLETING THIS AFFIDAVIT, PLEASE READ THE INSTRUCTIONS ON THE REVERSE SIDE OF THIS FORM.

STATE OF NEW JERSEY

 

 

 

 

}ss. County Municipal Code

FOR RECORDER’S USE ONLY

 

 

 

 

Consideration

$ _____________________

 

 

RTF paid by seller

$ ___________________

 

COUNTY

_________________ ________________

Date___________ By _____________________

 

MUNICIPALITY OF PROPERTY LOCATION _________________________

 

 

*Use symbol “C” to indicate that fee is exclusively for county use.

(1)PARTY OR LEGAL REPRESENTATIVE (See Instructions #3 and #4 on reverse side)

Deponent, ______________________________, being duly sworn according to law upon his/her oath,

(Name)

deposes and says that he/she is the____________________________ in a deed dated ________________________ transferring

(Grantor, Legal Representative, Corporate Officer, Officer of Title Company, Lending Institution, etc.)

real property identified as Block number ___________________________ Lot number

__________________________located at

 

 

_______________________________________________________________________________

and

annexed

thereto.

(Street Address, Town)

 

 

 

 

 

(2) CONSIDERATION $__________________(Instructions #1 and #5 on reverse side)

no prior mortgage to which property is subject.

_________________________________________________________________________________________________________

(3) Property transferred is Class 4A 4B 4C (circle one). If property transferred is Class 4A, calculation in Section 3A below is required.

(3A)REQUIRED CALCULATION OF EQUALIZED VALUATION FOR ALL CLASS 4A (COMMERCIAL) PROPERTY TRANSACTIONS: (See Instructions #5A and #7 on reverse side)

Total Assessed Valuation  Director’s Ratio = Equalized Assessed Valuation

$_____________________  ____________% = $_________________________

If Director’s Ratio is less than 100%, the equalized valuation will be an amount greater than the assessed value. If Director’s Ratio is equal to or in excess of 100%, the assessed value will be equal to the equalized valuation.

(4)FULL EXEMPTION FROM FEE (See Instruction #8 on reverse side)

Deponent states that this deed transaction is fully exempt from the Realty Transfer Fee imposed by C. 49, P.L. 1968, as amended through C. 66, P.L. 2004, for the following reason(s). Mere reference to exemption symbol is insufficient. Explain in detail.

______________________________________________________________________________________________________________

(5)PARTIAL EXEMPTION FROM FEE ( Instruction #9 on reverse side)

NOTE: All boxes below apply to grantor(s) only. ALL BOXES IN APPROPRIATE CATEGORY MUST BE CHECKED. Failure to do so will void claim for partial exemption. Deponent claims that this deed transaction is exempt from State portions of the Basic, Supplemental, and General Purpose Fees, as applicable, imposed by C. 176, P.L. 1975, C. 113, P.L. 2004, and C. 66, P.L. 2004 for the following reason(s):

__________________________________________________________________________________________________________ ____________

A.

SENIOR CITIZEN

Grantor(s)

62 years of age or over. *

( Instruction #9 on reverse side for A or B)

B.

BLIND PERSON

Grantor(s)

legally blind or; *

 

 

DISABLED PERSON

Grantor(s)

permanently and totally disabled receiving disability payments not gainfully employed*

Senior citizens, blind persons, or disabled persons must also meet all of the following criteria:

Owned and occupied by grantor(s) at time of sale.

Resident of State of New Jersey.

One or two-family residential premises.

Owners as joint tenants must all qualify.

*IN CASE OF HUSBAND AND WIFE, PARTNERS IN A CIVIL UNION COUPLE, ONLY ONE GRANTOR NEED QUALIFY IF TENANTS BY THE ENTIRETY.

________________________________________________________________________________________________________________________________________________

C.LOW AND MODERATE INCOME HOUSING (Instruction #9 on reverse side) IF APPLIES ALL BOXES MUST BE CHECKED.

Affordable according to H.U.D. standards.

Reserved for occupancy.

Meets income requirements of region.

Subject to resale controls.

(6)NEW CONSTRUCTION (Instructions #2, #10 and #12 on reverse side) IF APPLIES ALL BOXES MUST BE CHECKED.

Entirely new improvement

Not previously occupied.

Not previously used for any purpose.

NEW CONSTRUCTION” printed clearly at top of first page of the deed.

________________________________________________________________________________________________________________________________________________

(7)RELATED LEGAL ENTITIES TO LEGAL ENTITIES (Instructions #5, #12, #14 on reverse side) IF APPLIES ALL BOXES MUST BE CHECKED.

No prior mortgage assumed or to which property is subject at time of sale.

No contributions to capital by either grantor or grantee legal entity.

No stock or money exchanged by or between grantor or grantee legal entities.

________________________________________________________________________________________________________________________________________________

(8)INTERCOMPANY TRANSFER IF APPLIES ALL BOXES MUST BE CHECKED. (Instruction #15 on reverse side)

Intercompany transfer between combined group members as part of the unitary business

Combined group NU ID number (Required)

(9)Deponent makes this Affidavit to induce county clerk or register of deeds to record the deed and accept the fee submitted her ewith in accordance with the provisions of Chapter 49, P.L. 1968, as amended through Chapter 33, P.L. 2006.

Subscribed and sworn to before me

____________________________

______________________________

this

day of

, 20

 

Signature of Deponent

 

Grantor Name

 

 

 

____________________________

______________________________

 

 

 

 

Deponent Address

 

Grantor Address at Time of Sale

 

 

 

 

_______ XXX-XX-X___________ _

 

______________________________

 

 

 

Last three digits in Grantor’s Social Security Number

Name/Company of Settlement Officer

 

 

 

 

 

 

 

 

 

 

 

 

 

FOR OFFICIAL USE ONLY

 

 

 

 

 

Instrument Number___________________ County_________________

 

 

 

 

 

Deed Number_________________

Book __________ Page_________

 

 

 

 

 

Deed Dated ___________________ Date Recorded ________________

 

 

 

County recording officers shall forward one copy of each RTF-1 form when Section 3A is completed to:

STATE OF NEW JERSEY

 

 

 

 

 

 

 

 

PO BOX 251

 

 

 

 

 

 

 

TRENTON, NJ 08695-0251

 

 

 

 

 

ATTENTION: REALTY TRANSFER FEE UNIT

The Director of the Division of Taxation in the Department of the Treasury has prescribed this form as required by law, and may not be altered or amended without prior approval of the Director. For information on the Realty Transfer Fee or to print a copy of this Affidavit, visit the Division of Taxation website at: https://www.state.nj.us/treasury/taxation/lpt/localtax.shtml

INSTRUCTIONS FOR FILING FORM RTF-1, AFFIDAVIT OF CONSIDERATION FOR USE BY SELLER

1.STATEMENT OF CONSIDERATION AND REALTY TRANSFER FEE PAYMENT ARE PREREQUISITES FOR DEED RECORDING

No county recording officer shall record any deed evidencing transfer of title to real property unless (a) the consideration is recited in the deed, or (b) an Affidavit by

one or more of the parties named in the deed or by their legal representatives declaring the consideration is annexed for rec ording with the deed, and (c) for conveyances and transfers of property for which the total consideration recited in the deed is not in excess of $350,000, a f ee is remitted at the rate of $2.00/$500 of consideration or fractional part thereof not in excess of $150,000; $3.35/$500 of consideration or fractional part thereof in excess of $150,000 but not in excess of $200,000; and $3.90/$500 of consideration or fractional part thereof in excess of $200,000. For transfers of property for which the total consideration recited in the deed is in excess of $350,000, a fee is remitted at the rate of $2.90/$500 of consideration or fractional part not in excess of $150,000; $4.25/$500 of consideration or fractional part thereof in excess of $150,000 but not in excess of $200,000; $4.80/$500 of consideration or fractional part thereof in excess of $200,000; $5.30/$500 of consideration or fractional part thereof in excess of $550,000 but not in excess of $850,000; $5.80/$500 of consideration or fractional part thereof in excess of $850,00 but not in $1,000,000; and $6.05/$500 of consideration or fractional part thereof in excess of $1,000,000, which fee shall be paid in addition to the recording fees imposed by Chapter 123, P.L. 1965, Section 2 (C. 22A:4-4.1) as amended by Chapter 370, P.L. 2001, through Chapter 66, P.L. 2004, which fee shall be paid to the county recording officer at the time the deed is offered for recording/transfer. Of these fees, $.75/$500 of consideration or fractional part in excess of $150,000 paid to the State Treasurer is credited to the New Jersey Affordable Housing Trust Fund.

2.WHEN AFFIDAVIT MUST BE ANNEXED TO DEED

This Affidavit must be annexed to and recorded with all deeds when entire consideration is not recited in deed or the acknowledgement or proof of the execution, when the grantor claims a total or partial exemption from the fee, Class 4 property that includes commercial, industrial, or apartment property, and for transfers of “new construction.” (See Instructions #10 and #12 below.)

3.LEGAL REPRESENTATIVE

“Legal representative” is to be interpreted broadly to include any person actively and responsibly participating in the transaction, such as, but not limited to: an attorney representing one of the parties; a closing officer of a title company or lending institution participating in the transaction; a holder of power of attorney from grantor or grantee.

4.OFFICER OF CORPORATE GRANTOR/OFFICER OF TITLE COMPANY OR LENDING INSTITUTION

Where a deponent is an officer of corporate grantor, state the name of corporation and officer’s title or where a deponent is a closing officer of a title company or

lending institution participating in the transaction, state the name of the company or institution and officer’s title.

5.CONSIDERATION

“Consideration” means in the case of any deed, the actual amount of money and the monetary value of any other thing of value constituting the entire

compensation paid or to be paid for the transfer of title to the lands, tenements or other realty, including the remaining amount of any prior mortgage to which the transfer is subject or which is assumed and agreed to be paid by the grantee and any other lien or encumbrance not paid, satisfied or removed in connection with the transfer of title. (C. 49, P.L. 1968, Section 1, as amended.)

5A. CLASS 4A “COMMERCIAL PROPERTIES” DEFINED

Class 4A “Commercial properties” as defined in N.J.A.C. 18:12-2.2 means “any other type of income-producing property other than property in classes 1, 2, 3A, 3B, and those properties included in classes 4B and 4C.” A quarterly audit of all Class 4A sales submitted by the municipal assessor through the SR-1A/equalization process will determine whether a Class 4A transaction was recorded without proper documentation and the required Affidavits of Consideration.

6.DIRECTOR'S RATIO

“Director’s Ratio” means the average ratio of assessed to true value of real property for each taxing district as determined by the Director, Division of Taxation, in the Table of Equalized Valuations promulgated annually on or before October 1 in each year pursuant to N.J.S.A. 54:1-35.1. The Table is used in the calculation and apportionment of distributions pursuant to the State School Aid Act of 1954.

7.EQUALIZED VALUE

“Equalized Value” means the assessed value of the property in the year that the transfer is made, divided by the Director’s Ratio. The Table of Equalized

Valuations is promulgated annually on or before October 1 in each year pursuant to N.J.S.A. 54:1-35.1.

(Example: Assessed Value = $1,000,000; Director’s Ratio = 80%. $1,000,000  .80 = $1,250,000)

8.FULL EXEMPTION FROM THE REALTY TRANSFER FEE (GRANTOR/GRANTEE)

The fee imposed by this Act shall not apply to a deed:

(a)For consideration of less than $100; (b) By or to the United States of America, this State, or any instrumentality, agency or subdivision; (c) Solely in order to provide or release security for a debt or obligation; (d) Which confirms or corrects a deed previously recorded; (e) On a sale for delinquent taxes or assessments; (f) On partition;

(g)By a receiver, trustee in bankruptcy or liquidation, or assignee for the benefit of creditors; (h) Eligible to be recorded as an “ancient deed” pursuant to R.S. 46:16-7; (i) Acknowledged or proved on or before July 3, 1968; (j) Between husband and wife/civil union partners, or parent and child; (k) Conveying a cemetery lot or plot; (l) In specific performance of a final judgment; (m) Releasing a right of reversion; (n) Previously recorded in another county and full Realty Transfer Fee paid or accounted for as evidenced by written instrument, attested to by the grantee and acknowledged by the county recording officer of the county of such prior recording, specifying the county, book, page, date of prior recording, and amount of Realty Transfer Fee previously paid; (o) By an executor or administrator of a decedent to a devisee or heir to effect distribution of the decedent’s estate in accordance with the provisions of the decedent’s will or the intestate laws of this State; (p) Recorded within 90 days following the entry of a divorce/dissolution decree which dissolves the marriage/civil union partnership between grantor and grantee; (q) Issued by a cooperative corporation, as part of a conversion of all of the assets of the cooperative corporation into a condominium, to a shareholder upon the surrender by the shareholder of all of the shareholder’s stock in the cooperative corporation and the proprietary lease entitling the shareholder to exclusive oc cupancy of a portion of the property owned by the corporation.

9.PARTIAL EXEMPTION FROM THE REALTY TRANSFER FEE (C. 176, P.L. 1975; C. 113, P.L. 2003; C. 66 P.L. 2004)

The following transfers of title to real property shall be exempt from State portions of the Basic Fee, Supplemental Fee, and General Purpose Fee, as applicable: 1.

The sale of any one or two-family residential premises which are owned and occupied by a senior citizen, blind person, or disabled person who is the sel ler in such transaction; provided, however, that except in the instance of a husband and wife/partners in a civil union couple, no exemption shall be allowed if the property being sold is owned as joint tenants and one or more of the owners is not a senior citizen, blind person, or disabled person; 2. Th e sale of Low and Moderate Income Housing conforming to the requirements as established by this Act.

For the purposes of this Act, the following definitions shall apply:

“Blind person” means a person whose vision in his better eye with proper correction does not exceed 20/200 as measured by the Snellen chart or a person who has a field defect in his better eye with proper correction in which the peripheral field has contracted to such an extent th at the widest diameter of visual field subtends an angular distance no greater than 20º.

“Disabled person” means any resident of this State who is permanently and totally disabled, unable to engage in gainful employment, and receiving disability benefits or any other compensation under any federal or State law.

“Senior citizen” means any resident of this State of the age of 62 or over.

“Low and Moderate Income Housing” means any residential premises, or part thereof, affordable according to Federal Department of Housing and Urban Development or other recognized standards for home ownership and rental costs occupied or reserved for occupancy by households with a gross income equal to 80% or less of the median gross household income for households of the same size within the housing region in which the housing i s located, but shall include only those residential premises subject to resale controls pursuant to contractual guarantees.

“Resident of the State of New Jersey” means any claimant who is legally domiciled in this State when the transfer of the subject property is made. Domicile is what the claimant regards as the permanent home to which he intends to return after a period of absence. Proofs of domicile includ e a New Jersey voter registration, motor vehicle registration and driver’s license, and resident tax return filing.

10.TRANSFERS OF NEW CONSTRUCTION

New construction” means any conveyance or transfer of property upon which there is an entirely new improvement not previously occupied or used for any purpose. On transfers of new construction, the words “NEW CONSTRUCTION” shall be printed clearly at the top of the first page of the deed, and an Affidavit by the grantor stating that the transfer is of property upon which there is new construction shall be appended to the deed.

11.REALTY TRANSFER FEE IS A FEE IN ADDITION TO OTHER RECORDING FEES

The county recording officer is required to collect the Realty Transfer Fee at the time the deed is offered for recording/transfer.

12.PENALTY FOR WILLFUL FALSIFICATION OF CONSIDERATION AND TRANSFERS OF NEW CONSTRUCTION

Any person who knowingly falsifies the consideration recited in a deed or in the proof or acknowledgement of the execution of a deed or i n an affidavit annexed to a

deed declaring the consideration therefor or a declaration in an affidavit that a transfer is exempt from recording fee is guilty of a crime of the fourth degree (Chapter 308, P.L. 1991, effective June 1, 1992). Grantors conveying title of new construction who fail to subscribe and append to the deed an affidavit to that effect in accordance with the provisions of subsection c. of section 2 of Chapter 49, P.L. 1968 (C.46:15-6) is guilty of a disorderly persons offense. The Division of Taxation is entitled to review the Fees collected pursuant to the State Uniform Procedure Law. The Director of the Division of Taxation is authorized to make deficiency assessments to taxpayers who have, intentionally or mistakenly, underestimated the consideration or sales price of properties on the Affidavit of Consider ation attached to deeds and upon which the Realty Transfer Fee is based.

13.COUNTY/MUNICIPAL CODES

County/Municipal codes may be found at https://www.state.nj.us/treasury/taxation/pdf/lpt/cntycode.pdf.

14.LEGAL ENTITIES TRANSFERRING NEW JERSEY REAL ESTATE TO RELATED LEGAL ENTITIES

Legal entities transferring New Jersey real estate to related legal entities are not exempt from the Realty Transfer Fee if the consideration, as defined in the law, is $100 or more. Such consideration includes the actual amount of money and/or the monetary value of any other thing of value constituting the entire compensation paid, such as the dollar value of stock included in the transaction or any enhancement to or contribution to the capital or either legal entity resulting from the transfer, or remaining balances of any prior mortgage to which the property is subject or which is assumed and agreed to be paid by the grantee and any other lien or encumbrance not paid, satisfied or removed in connection with the transfer of title.

15. INTERCOMPANY TRANSFER BETWEEN COMBINED GROUP MEMBERS THAT FILE A NEW JERSEY COMBINED RETURN

Transfers of real property that are intercompany transfers between combined group members filing a New Jersey combined return as part of the unitary business of the combined group are exempt from the grantor and grantee fees. Transfers must indicate the combined group NU identification number assigned by the Division of Taxation. If the NU number has not been assigned for any reason then the RTF must be paid and a refund may be applied for.

File Breakdown

Fact Name Description
Purpose The New Jersey Affidavit of Consideration RTF-1 form is used to disclose the consideration paid for a property during a real estate transaction.
Governing Law This form is governed by the New Jersey Division of Taxation regulations, specifically under the New Jersey Statutes Annotated (N.J.S.A.) 54:4-1 et seq.
Filing Requirement It must be filed with the county clerk or register of deeds when a property deed is recorded in New Jersey.
Information Required The form requires details such as the names of the buyer and seller, the property description, and the total consideration amount.
Signature Requirement Both the buyer and seller must sign the affidavit to verify the accuracy of the information provided.
Impact on Taxes Accurate completion of the form is essential, as it affects the calculation of the realty transfer fee and potential property taxes.
Availability The RTF-1 form is available online through the New Jersey Division of Taxation’s website and can be downloaded for use.

Guide to Using New Jersey Affidavit of Consideration RTF-1

Completing the New Jersey Affidavit of Consideration RTF-1 form is an important step in your real estate transaction. After filling out the form, it will need to be submitted to the appropriate authorities as part of the closing process. Ensure that all information is accurate and complete to avoid any delays.

  1. Begin by obtaining the New Jersey Affidavit of Consideration RTF-1 form. This can usually be found online or at your local county clerk's office.
  2. At the top of the form, fill in the date of the transaction. Make sure to use the correct format.
  3. Provide the name and address of the seller. This information should be accurate and match the details in the property deed.
  4. Next, enter the name and address of the buyer. Again, ensure that this matches the information in the property deed.
  5. In the section regarding the property, include the full address of the property being transferred. Make sure this is precise.
  6. Indicate the type of consideration being exchanged for the property. This could be a purchase price, a gift, or other forms of consideration.
  7. If applicable, include any additional details regarding the transaction. This may include special conditions or terms agreed upon by both parties.
  8. Both the seller and buyer must sign the form. Ensure that signatures are dated and printed names are included below each signature.
  9. After completing the form, make a copy for your records. This is important for future reference.
  10. Finally, submit the completed form to the appropriate local government office as required. Check if there are any fees associated with the submission.

Get Answers on New Jersey Affidavit of Consideration RTF-1

What is the New Jersey Affidavit of Consideration RTF-1 form?

The New Jersey Affidavit of Consideration RTF-1 form is a legal document used in real estate transactions. It provides information about the consideration, or the value exchanged, during the sale of a property. This form is typically required when a property is sold or transferred to ensure that the correct transfer tax is assessed and paid. It helps establish the legitimacy of the transaction and provides transparency in property transfers.

Who needs to file the RTF-1 form?

Anyone involved in a real estate transaction in New Jersey may need to file the RTF-1 form. This includes:

  • Buyers and sellers of residential or commercial properties
  • Real estate agents or brokers facilitating the transaction
  • Title companies handling the closing process

Essentially, if you are transferring ownership of a property in New Jersey, you will likely need to complete this form as part of the closing process.

What information is required on the RTF-1 form?

The RTF-1 form requires several key pieces of information, including:

  1. The names and addresses of the buyer and seller
  2. A description of the property being transferred, including its address
  3. The total consideration amount, which is the price paid for the property
  4. Any applicable exemptions or deductions that may affect the transfer tax

Providing accurate and complete information on this form is crucial to avoid delays in the transaction process.

How is the consideration amount determined?

The consideration amount is typically the sale price agreed upon by the buyer and seller. However, it can also include other forms of compensation, such as:

  • Assumption of a mortgage
  • Transfer of personal property included in the sale
  • Any additional agreements made between the parties

It’s important to ensure that the consideration amount accurately reflects the total value exchanged to comply with state regulations.

What happens if the RTF-1 form is not filed?

Failing to file the RTF-1 form can lead to several complications. The most immediate consequence is the potential for delays in the closing process. Additionally, the New Jersey Division of Taxation may impose penalties or fines for non-compliance. Without the form, the transfer tax may not be properly assessed, which could lead to future legal issues or disputes over property ownership.

Where can I obtain the RTF-1 form?

The RTF-1 form can be obtained from several sources:

  • The New Jersey Division of Taxation website
  • Your local county clerk's office
  • Real estate professionals, such as agents or title companies

Make sure to use the most current version of the form to ensure compliance with state regulations.

Common mistakes

Filling out the New Jersey Affidavit of Consideration RTF-1 form can seem straightforward, but many individuals stumble over common pitfalls that can lead to delays or complications. One frequent mistake is neglecting to provide accurate information about the property. Buyers may overlook details such as the correct address or block and lot numbers. This information is crucial for ensuring that the transaction is recorded correctly and can prevent issues down the line.

Another common error involves miscalculating the consideration amount. This refers to the total value exchanged in the transaction, which may include not just the purchase price but also any additional costs or credits. Understating this amount can lead to penalties or additional fees, while overstating it might raise red flags with tax authorities. It's essential to double-check the figures and ensure they reflect the true value of the transaction.

Additionally, many people forget to sign the form or fail to have it notarized. A signature is a critical component that verifies the authenticity of the document. Without it, the affidavit may be deemed invalid. Similarly, notarization adds an extra layer of credibility. Skipping this step can result in the form being rejected by the county clerk’s office, causing unnecessary delays.

Lastly, individuals often overlook the importance of submitting the form in a timely manner. Each county in New Jersey has its own deadlines for filing the RTF-1 form, and missing these deadlines can result in fines or complications with the property transfer. Staying organized and setting reminders can help ensure that the form is submitted on time, keeping the transaction on track.

Documents used along the form

The New Jersey Affidavit of Consideration RTF-1 form is often used in real estate transactions to disclose the consideration paid for a property. However, several other forms and documents may accompany this affidavit to ensure a smooth and legally compliant transaction. Below is a list of commonly used documents that can be essential in conjunction with the RTF-1 form.

  • Deed: This legal document transfers ownership of the property from the seller to the buyer. It includes details such as the names of the parties involved, a description of the property, and the signature of the seller.
  • Contract of Sale: This agreement outlines the terms and conditions of the sale, including the purchase price, contingencies, and closing date. It serves as a binding agreement between the buyer and seller.
  • Title Search Report: This report provides information about the legal ownership of the property and any liens or encumbrances that may affect it. It ensures that the buyer is aware of any potential issues before completing the purchase.
  • Property Disclosure Statement: Sellers are often required to provide this document, which discloses known issues or defects with the property. It helps protect buyers by ensuring they have all relevant information before making a purchase.
  • Mortgage Documents: If the buyer is financing the purchase, various mortgage documents will be necessary. These include the loan application, promissory note, and mortgage agreement, detailing the terms of the loan.
  • Closing Statement (HUD-1 or Closing Disclosure): This document outlines all financial transactions involved in the closing process, including fees, taxes, and the final amount due from the buyer. It provides transparency for both parties.
  • Homeowners' Association (HOA) Documents: If the property is part of an HOA, documents such as the bylaws, rules, and regulations may be required. These inform the buyer of any obligations or restrictions associated with the property.
  • Tax Certification: This document verifies that property taxes have been paid up to the date of closing. It protects the buyer from inheriting any outstanding tax liabilities.
  • Power of Attorney: In some cases, a seller may not be able to attend the closing in person. A power of attorney allows another person to sign documents on their behalf, ensuring the transaction can proceed smoothly.

Each of these documents plays a crucial role in real estate transactions in New Jersey. By understanding their purposes, buyers and sellers can navigate the process more effectively and ensure that all necessary legal requirements are met.

Similar forms

The New Jersey Affidavit of Consideration RTF-1 form serves a specific purpose in real estate transactions. Several other documents share similarities in function or intent. Below is a list of six documents that are comparable to the RTF-1 form:

  • New Jersey Deed: Like the RTF-1, a deed transfers ownership of real property. It includes details about the buyer and seller and the property being transferred.
  • New Jersey Real Estate Sales Agreement: This document outlines the terms of a property sale, including the price and conditions, similar to how the RTF-1 addresses the consideration involved in the transaction.
  • New Jersey Title Insurance Policy: Both the title insurance policy and the RTF-1 deal with property ownership. The title insurance protects the buyer against defects in the title, while the RTF-1 confirms the consideration paid for the property.
  • New Jersey Property Transfer Tax Declaration: This document is required when transferring property and serves to declare the value of the transaction, much like the consideration stated in the RTF-1.
  • New Jersey Settlement Statement (HUD-1): This statement summarizes the financial aspects of a real estate transaction, including fees and payments, paralleling the financial disclosures made in the RTF-1.
  • New Jersey Affidavit of Title: This affidavit asserts that the seller has clear title to the property. It complements the RTF-1 by affirming the legitimacy of the transaction's consideration.

Dos and Don'ts

When filling out the New Jersey Affidavit of Consideration RTF-1 form, there are important steps to follow to ensure accuracy and compliance. Here are nine things to keep in mind:

  • Do read the instructions carefully before starting the form.
  • Don't leave any required fields blank; ensure all information is provided.
  • Do double-check all numbers and figures for accuracy.
  • Don't use abbreviations or shorthand; write everything out in full.
  • Do sign and date the form where indicated.
  • Don't submit the form without reviewing it for errors.
  • Do provide any additional documentation that may be required.
  • Don't forget to keep a copy of the completed form for your records.
  • Do consult a legal expert if you have questions about the form.

By following these guidelines, you can help ensure a smooth process when submitting the RTF-1 form in New Jersey.

Misconceptions

The New Jersey Affidavit of Consideration RTF-1 form is often misunderstood. Here are six common misconceptions about this form:

  • It is only for real estate transactions. Many believe this form is exclusively for real estate. In reality, it can apply to various transactions where consideration is involved.
  • Only buyers need to sign the form. Some think that only the buyer's signature is necessary. However, both parties typically need to sign to validate the affidavit.
  • The form is optional. A misconception exists that this form is optional in all cases. In certain transactions, it is required to ensure proper reporting to the state.
  • It is the same as a bill of sale. Many confuse the affidavit with a bill of sale. The affidavit serves a different purpose, primarily focusing on the consideration involved in the transaction.
  • Filing the form is the seller's responsibility only. Some assume that only the seller must file the affidavit. In fact, both parties may have responsibilities depending on the specifics of the transaction.
  • It can be completed after the transaction. There is a belief that the affidavit can be completed post-transaction. However, it is best practice to complete it at the time of the transaction for accuracy.

Key takeaways

When filling out and using the New Jersey Affidavit of Consideration RTF-1 form, it is essential to keep several key points in mind. This form is vital for documenting the consideration involved in a real estate transaction. Here are the key takeaways:

  • The RTF-1 form must be completed accurately to avoid delays in the recording process.
  • All parties involved in the transaction should review the form before submission to ensure all information is correct.
  • The form requires detailed information about the property, including its location and the type of consideration exchanged.
  • It is important to provide the correct names and addresses of all parties involved to prevent legal complications.
  • Submitting the RTF-1 form is often a prerequisite for recording the deed with the county clerk.
  • Failure to submit the form may result in penalties or additional fees, making timely completion crucial.