Content Navigation

The NPMA-33 form is a crucial document for anyone involved in real estate transactions, particularly when it comes to understanding the condition of a property regarding wood-destroying insects. This form serves as an inspection report that outlines the findings of a visual inspection conducted by a licensed pest control company. It includes essential details such as the date of inspection, the inspector's credentials, and the specific property being examined. The report categorizes findings into various sections, highlighting whether any visible evidence of wood-destroying insects, such as termites or carpenter ants, was observed. It’s important to note that while the report provides a snapshot of the property’s condition at the time of inspection, it does not guarantee that future infestations won't occur. Additionally, the NPMA-33 form addresses any obstructions that may have limited the inspection and offers recommendations for treatment if necessary. This form also emphasizes the importance of consumer awareness, urging buyers to consider potential hidden damages and to consult with professionals for further evaluations if needed. Understanding this form can empower homeowners and buyers alike, ensuring they make informed decisions about their properties.

Npma33 Example

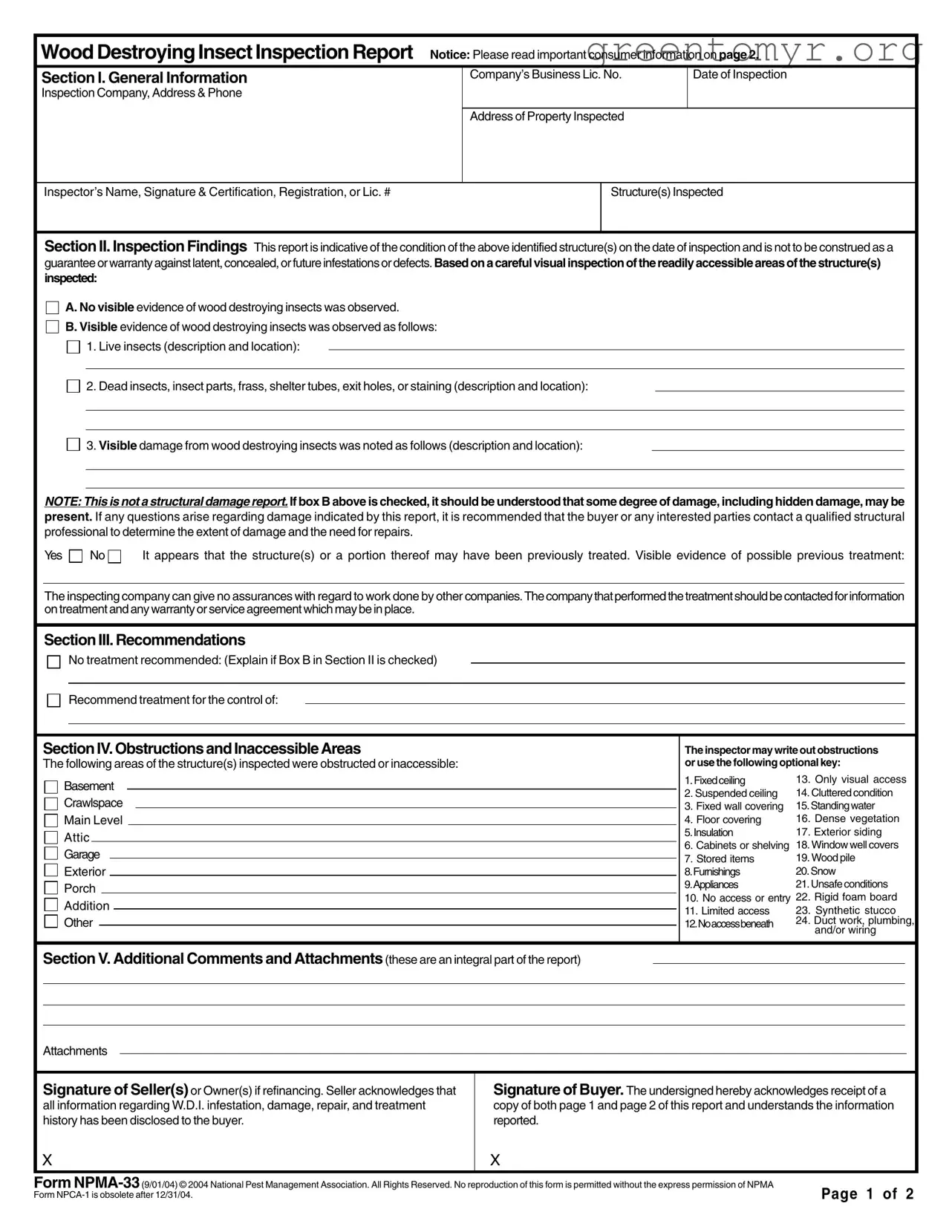
Wood Destroying Insect Inspection Report

Notice: Please read important consumer information on page 2.

Section I. General Information

 

Company’s Business Lic. No.

Date of Inspection

Inspection Company, Address & Phone

 

 

 

 

 

 

 

 

 

 

 

Address of Property Inspected

 

 

 

 

 

 

Inspector’s Name, Signature & Certification, Registration, or Lic. #

 

 

Structure(s) Inspected

 

 

 

 

 

Section II. Inspection Findings This report is indicative of the condition of the above identified structure(s) on the date of inspection and is not to be construed as a guarantee or warranty against latent, concealed, or future infestations or defects. Based on a careful visual inspection of the readily accessible areas of the structure(s) inspected:

A. No visible evidence of wood destroying insects was observed.

B. Visible evidence of wood destroying insects was observed as follows:

1. Live insects (description and location):

2. Dead insects, insect parts, frass, shelter tubes, exit holes, or staining (description and location):

3. Visible damage from wood destroying insects was noted as follows (description and location):

NOTE: This is not a structural damage report. If box B above is checked, it should be understood that some degree of damage, including hidden damage, may be present. If any questions arise regarding damage indicated by this report, it is recommended that the buyer or any interested parties contact a qualified structural professional to determine the extent of damage and the need for repairs.

Yes

 

No

 

It appears that the structure(s) or a portion thereof may have been previously treated. Visible evidence of possible previous treatment:

The inspecting company can give no assurances with regard to work done by other companies. The company that performed the treatment should be contacted for information on treatment and any warranty or service agreement which may be in place.

Section III. Recommendations

No treatment recommended: (Explain if Box B in Section II is checked)

Recommend treatment for the control of:

 

Section IV. Obstructions and Inaccessible Areas

 

 

 

The inspector may write out obstructions

 

The following areas of the structure(s) inspected were obstructed or inaccessible:

 

 

 

or use the following optional key:

 

 

 

Basement

 

 

 

 

 

1.Fixedceiling

13. Only visual access

 

 

 

 

 

 

 

 

 

 

 

 

 

2. Suspended ceiling

14. Cluttered condition

 

 

 

 

 

 

 

 

 

 

 

Crawlspace

 

 

 

 

 

 

 

 

 

 

 

 

 

 

 

3. Fixed wall covering

15. Standing water

 

 

 

 

 

 

 

 

 

 

 

 

 

 

 

 

 

 

 

 

 

Main Level

 

 

 

 

4. Floor covering

16. Dense vegetation

 

 

 

 

 

 

Attic

 

 

 

 

 

 

 

 

 

 

 

5.Insulation

17. Exterior siding

 

 

 

 

 

 

 

 

 

 

 

 

 

 

 

 

 

 

 

 

 

 

 

 

 

 

 

 

 

 

 

 

 

6. Cabinets or shelving

18. Window well covers

 

 

 

Garage

 

 

 

 

 

 

 

 

 

 

 

 

 

 

 

 

 

 

 

 

 

 

 

 

 

 

 

 

 

 

 

 

7. Stored items

19. Wood pile

 

 

 

 

 

 

 

 

 

 

 

 

 

Exterior

 

 

 

 

 

8.Furnishings

20.Snow

 

 

 

Porch

 

 

 

 

 

 

 

 

 

9.Appliances

21. Unsafe conditions

 

 

 

 

 

 

 

 

 

 

 

 

Addition

 

 

 

 

 

 

 

10. No access or entry 22. Rigid foam board

 

 

 

 

 

 

 

 

 

 

 

 

 

 

 

 

 

 

 

 

 

11. Limited access

23. Synthetic stucco

 

 

 

 

 

 

 

 

 

 

 

 

 

 

 

 

 

 

 

 

 

 

 

 

 

 

 

 

 

 

 

 

 

 

 

 

 

Other

 

 

 

 

12.Noaccessbeneath

24. Duct work, plumbing,

 

 

 

 

 

 

 

 

 

and/or wiring

 

 

 

 

 

 

 

 

 

 

 

 

 

 

 

 

 

Section V. Additional Comments and Attachments (these are an integral part of the report)

 

 

 

 

 

 

 

 

 

 

 

 

 

 

 

 

 

 

 

 

 

 

 

 

 

 

 

 

 

 

 

 

 

 

 

 

 

 

 

 

 

 

 

 

 

 

 

 

 

 

 

 

 

 

 

 

 

Attachments

 

 

 

 

 

 

 

 

 

 

 

 

 

 

 

 

 

 

 

 

 

 

 

 

Signature of Seller(s) or Owner(s) if refinancing. Seller acknowledges that

Signature of Buyer. The undersigned hereby acknowledges receipt of a

 

all information regarding W.D.I. infestation, damage, repair, and treatment

copy of both page 1 and page 2 of this report and understands the information

 

history has been disclosed to the buyer.

reported.

 

 

 

X

X

 

 

 

Form NPMA-33(9/01/04) © 2004 National Pest Management Association. All Rights Reserved. No reproduction of this form is permitted without the express permission of NPMA

Page 1 of 2

Form NPCA-1 is obsolete after 12/31/04.

Important Consumer Information Regarding

the Scope and Limitations of the Inspection

Please read this entire page as it is part of this report. This report is not a guarantee or warranty as to the absence of wood destroying insects nor is it a structural integrity report. The inspector’s training and experience do not qualify the inspector in damage evaluation or any other building construction technology and/or repair.

1.About the Inspection: A visual inspection was conducted in the readily accessible areas of the structure(s) indicated (see Page 1) including attics and crawlspaces which permitted entry during the inspection. The inspection included probing and/or sounding of unobstructed and accessible areas to determine the presence or absence of visual evidence of wood destroying insects. The WDI inspection firm is not responsible to repair any damage or treat any infestation at the structure(s) inspected, except as may be provided by separate contract. Also, wood destroying insect infestation and/or damage may exist in concealed or inaccessible areas. The inspection firm cannot guarantee that any wood destroying insect infestation and/or damage disclosed by this inspection represents all of the wood destroying insect infestation and/or damage which may exist as of the date of the inspection.Forpurposesofthisinspection,wooddestroyinginsectsinclude:termites,carpenterants,carpenterbees,and reinfestingwoodboringbeetles.Thisinspectiondoesnotincludemold,mildewornoninsectwooddestroyingorganisms. This report shall be considered invalid for purposes of securing a mortgage and/or settlement of property transfer if not used within ninety (90) days from the date of inspection. This shall not be construed as a 90-day warranty. There is no warranty, express or implied, related to this report unless disclosed as required by state regulations or a written warranty or service agreement is attached.

2.Treatment Recommendation Guidelines Regarding Subterranean Termites: FHA and VA require treatment when any active infestation of subterranean termites is found. If signs of subterranean termites — but no activity — are found in a structure that shows no evidence of having been treated for subterranean termites in the past, then a treatment should be recommended. A treatment may also be recommended for a previously treated structure showing evidence of subterranean termites — but no activity — if there is no documentation of a liquid treatment by a licensed pest control company within the previous five years unless the structure is presently under warranty or covered by a service agreement with a licensed pest control company.

3.Obstructions and Inaccessible Areas: No inspection was made in areas which required the breaking apart or into, dismantling,

removal of any object, including but not limited to: moldings, floor coverings, wall coverings, siding, fixed ceilings, insulation, furniture, appliances, and/or personal possessions; nor were areas inspected which were obstructed or inaccessible for physical access on the date of inspection. Your inspector may write out inaccessible areas or use the key in Section IV. Crawl spaces, attics, and/or other areas may be deemed inaccessible if the opening to the area is not large enough to provide physical access for the inspector or if a ladder was required for access. Crawl spaces (or portions thereof) may also be deemed inaccessible if there is less than 24 inches of clearance from the bottom of the floor joists to the surface below. If any area which has been reported as inaccessible is made accessible, the inspection company may be contacted for another inspection. An additional fee may apply.

4.Consumer Maintenance Advisory Regarding Integrated Pest Management for Prevention of Wood Destroying Insects. Any structure can be attacked by wood destroying insects. Homeowners should be aware of and try to eliminate conditions which promote insect infestation in and around their structure(s). Factors which may lead to wood destroying insect infestation include: earth to wood contact, foam insulation at foundation in contact with soil, faulty grade, improper drainage, firewood against structure(s), insufficient ventilation, moisture, wood debris in crawlspace, wood mulch or ground cover in contact with the structure, tree branches touching structure(s), landscape timbers and wood decay. Should these or other conditions exist, corrective measures should be taken in order to reduce the chances of infestation of wood destroying insects and the need for treatment.

5.Neither the inspecting company nor the inspector has had, presently has, or contemplates having any interest in the property inspected.

Form NPMA-33(9/01/04) © 2004 National Pest Management Association. All Rights Reserved. No reproduction of this form is permitted without the express permission of NPMA

Page 2 of 2

Form NPCA-1 is obsolete after 12/31/04.

 

File Breakdown

Fact Name Description
Form Purpose The NPMA-33 form is used to report findings from a wood destroying insect inspection.
Inspection Type This inspection is a visual assessment of accessible areas, not a guarantee against future infestations.
Evidence of Infestation Section II of the form indicates whether visible evidence of wood destroying insects was found.
Limitations of Inspection The report does not cover structural integrity or guarantee the absence of wood destroying insects.
Obstructions The inspector may note areas that were obstructed or inaccessible during the inspection.
Consumer Advisory Homeowners are advised to maintain conditions that prevent wood destroying insect infestations.
Previous Treatments The form states that no assurances can be made regarding previous treatments by other companies.
State Regulations In some states, specific laws govern the use and disclosure of this form. Check local regulations.
Validity Period This report is valid for 90 days from the date of inspection unless otherwise stated.
Signature Requirement Signatures from both the seller and buyer are required to acknowledge receipt of the report.

Guide to Using Npma33

After obtaining the NPMA-33 form, follow these steps to fill it out completely. Ensure all required information is accurate and clear. This will help facilitate the inspection process and ensure proper documentation.

  1. Enter the company’s business license number in the designated field.
  2. Fill in the date of the inspection.
  3. Provide the inspection company's name, address, and phone number.
  4. Input the address of the property being inspected.
  5. Write the inspector’s name, signature, and certification or registration number.
  6. Indicate the structure(s) that were inspected.
  7. In Section II, check the appropriate box to indicate whether there was visible evidence of wood destroying insects. If there is evidence, provide detailed descriptions and locations for live insects, dead insects, insect parts, frass, shelter tubes, exit holes, or staining.
  8. Note any visible damage from wood destroying insects in the designated area, including descriptions and locations.
  9. Check "Yes" or "No" to indicate if the structure may have been previously treated. If applicable, describe any visible evidence of previous treatment.
  10. In Section III, indicate whether treatment is recommended. If treatment is not recommended, explain why.
  11. List any obstructions or inaccessible areas in Section IV. Use the provided key for reference if necessary.
  12. Provide any additional comments or attach relevant documents in Section V.
  13. Obtain the signatures of the seller(s) or owner(s) if refinancing and the buyer.

Once the form is completed, it should be reviewed for accuracy before submission. Ensure that all parties involved receive a copy of the report for their records.

Get Answers on Npma33

What is the NPMA-33 form?

The NPMA-33 form is a Wood Destroying Insect Inspection Report. It documents the findings of a visual inspection for wood destroying insects, such as termites and carpenter ants, in a specified structure. This report is essential for buyers and sellers during real estate transactions to assess the condition of the property regarding potential insect infestations.

Who performs the inspection for the NPMA-33 form?

A licensed pest control professional conducts the inspection. They are trained to identify signs of wood destroying insects and assess the condition of the property. The inspector must provide their name, signature, and license number on the form.

What areas are inspected using the NPMA-33 form?

The inspection includes readily accessible areas of the structure, such as:

  • Attics
  • Crawlspaces
  • Basements
  • Main levels
  • Garages
  • Exteriors

Obstructions or inaccessible areas may limit the inspection scope.

What findings can be reported on the NPMA-33 form?

The form allows for several findings:

  1. No visible evidence of wood destroying insects.
  2. Visible evidence of wood destroying insects, including live insects, dead insects, or damage.
  3. Previous treatments may have been performed on the property.

Each finding is documented with descriptions and locations.

What does the NPMA-33 form not guarantee?

The NPMA-33 form does not guarantee the absence of wood destroying insects or structural integrity. It is a visual inspection report and cannot account for hidden infestations or damage in inaccessible areas.

How long is the NPMA-33 form valid?

The report is valid for 90 days from the date of inspection. After this period, it may not be accepted for mortgage or property transfer purposes. This does not imply a warranty.

What should I do if the inspection reveals evidence of infestation?

If the report indicates evidence of wood destroying insects, it is recommended to consult a qualified pest control professional for treatment options. The report may suggest specific treatments based on the findings.

Are there any recommendations for preventing infestations?

Yes, the NPMA-33 form includes consumer maintenance advisories. Homeowners should eliminate conditions that promote infestations, such as:

  • Earth to wood contact
  • Moisture accumulation
  • Improper drainage
  • Wood debris near the structure

Taking these preventive measures can help reduce the risk of infestations.

What should I do if I have further questions about the report?

If you have questions regarding the findings or recommendations in the NPMA-33 report, it is advisable to contact the inspection company for clarification. They can provide further insights into the inspection results and any necessary follow-up actions.

Common mistakes

Filling out the NPMA-33 form can be straightforward, but there are common mistakes that individuals often make. One significant error is failing to provide complete general information. Essential details such as the company’s business license number, date of inspection, and the inspector's name must be filled out accurately. Omitting any of this information can lead to delays or complications in processing the report.

Another frequent mistake is neglecting to check the appropriate boxes in Section II regarding inspection findings. It is crucial to indicate whether there was visible evidence of wood-destroying insects. Inaccurately reporting these findings can mislead buyers and lead to potential liabilities. If evidence of infestation is present, detailed descriptions should be included. This includes specifying the location and type of insects observed.

Additionally, many people overlook the importance of Section IV, which addresses obstructions and inaccessible areas. Failing to note areas that were obstructed or inaccessible during the inspection can result in an incomplete report. This section is vital because it informs all parties involved about any limitations that may affect the inspection's thoroughness.

In Section III, some individuals mistakenly skip providing treatment recommendations. If evidence of wood-destroying insects is found, it is essential to recommend appropriate treatment options. Omitting this information can leave buyers without guidance on necessary next steps, potentially exacerbating the issue.

Another common oversight involves signatures. The report requires signatures from both the seller and the buyer. Neglecting to obtain these signatures can invalidate the report. It is important to ensure that all necessary parties acknowledge receipt of the report and understand its contents.

People also often misinterpret the limitations of the inspection as outlined in the consumer information section. This report is not a warranty against future infestations or structural damage. Misunderstanding this can lead to unrealistic expectations about the inspection's scope and the property’s condition.

Lastly, individuals sometimes fail to read the entire document, including the important consumer information on page two. This section contains critical details about the inspection's limitations and the responsibilities of the inspector. Ignoring this information can lead to misunderstandings and dissatisfaction with the inspection process.

Documents used along the form

The NPMA-33 form is a crucial document in the process of inspecting properties for wood-destroying insects. Alongside this form, several other documents may be relevant to property buyers, sellers, or real estate professionals. Below is a list of commonly used forms and documents that often accompany the NPMA-33 form, along with brief descriptions of each.

  • WDI Treatment Report: This document outlines any treatments performed on the property for wood-destroying insects. It includes details on the type of treatment, date of service, and any warranties associated with the work.
  • Seller's Disclosure Statement: Sellers provide this document to disclose known issues with the property, including past infestations or treatments for wood-destroying insects. It helps buyers make informed decisions.
  • Home Inspection Report: A comprehensive evaluation of the property's overall condition, this report often includes findings related to pest infestations, structural integrity, and necessary repairs.
  • Pest Control Service Agreement: This agreement outlines the terms of service between a pest control company and the property owner, detailing the services provided, treatment schedules, and any guarantees.
  • Property Condition Disclosure: Similar to the Seller's Disclosure Statement, this document provides a detailed account of the property's condition, including any previous pest issues or treatments.
  • Termite Warranty: If a treatment has been performed, this warranty guarantees protection against future infestations for a specified period. It often includes terms for renewal and conditions for coverage.
  • Inspection Agreement: This document outlines the terms and conditions of the inspection service, including the scope of the inspection and the responsibilities of both the inspector and the property owner.
  • Repair Estimates: If damage from wood-destroying insects is found, repair estimates provide a cost assessment for necessary repairs, helping buyers and sellers understand potential expenses.
  • Environmental Assessment Report: In some cases, this report evaluates environmental factors that may affect pest control, including moisture levels and structural vulnerabilities.

Understanding these documents can help all parties involved in a property transaction navigate the complexities of pest inspections and treatments. Each document serves a specific purpose, contributing to a clearer picture of the property's condition and any necessary actions to ensure its integrity.

Similar forms

The NPMA-33 form, which serves as a Wood Destroying Insect Inspection Report, shares similarities with several other important documents in the realm of property inspections and pest management. Each of these documents plays a crucial role in ensuring the safety and integrity of structures. Below is a list of six similar documents, along with a brief explanation of how they relate to the NPMA-33 form.

  • NPMA-1 Form: This is a general pest inspection report that outlines the presence of pests other than wood-destroying insects. Like the NPMA-33, it provides a visual inspection summary but focuses on a broader range of pests.
  • Home Inspection Report: This document details the overall condition of a property, including structural integrity and potential pest issues. Both reports highlight findings from a visual inspection, but the home inspection report encompasses more than just pest concerns.
  • Termite Treatment Report: This report outlines any treatments performed for termite infestations. Similar to the NPMA-33, it discusses previous treatments and may recommend future actions based on findings during inspections.
  • Radon Testing Report: This document assesses radon levels in a property. Both reports are essential for understanding environmental risks, though the NPMA-33 focuses specifically on wood-destroying insects.
  • Mold Inspection Report: This report evaluates the presence of mold within a structure. Like the NPMA-33, it is based on a visual inspection, but it addresses a different type of potential damage to property.
  • Structural Damage Report: This document provides details on any structural issues identified during an inspection. While the NPMA-33 notes visible damage from wood-destroying insects, the structural damage report focuses on broader concerns affecting the building's integrity.

Understanding the similarities and differences among these documents is essential for homeowners and buyers. Each report provides valuable insights into the condition of a property, guiding informed decisions and ensuring safety.

Dos and Don'ts

When filling out the NPMA-33 form, it is essential to follow certain guidelines to ensure accuracy and compliance. Below is a list of things you should and shouldn't do.

  • Do provide accurate information regarding the property inspected.
  • Do include the date of inspection clearly on the form.
  • Do ensure that all signatures are obtained from the seller(s) or owner(s).
  • Do read the important consumer information on page 2 before completing the form.
  • Don't skip any sections, especially those related to visible evidence of wood destroying insects.
  • Don't assume that the inspection guarantees the absence of wood destroying insects.
  • Don't forget to note any obstructions or inaccessible areas during the inspection.
  • Don't provide vague descriptions; be specific about any findings related to wood destroying insects.

Misconceptions

Misconceptions about the NPMA-33 form can lead to misunderstandings regarding wood-destroying insect inspections. Below are six common misconceptions along with clarifications:

  • The NPMA-33 form guarantees the absence of wood-destroying insects. The form explicitly states that it is not a warranty against future infestations. It only reflects the condition of the structure at the time of inspection.
  • The inspection includes all areas of the property. The inspection is limited to readily accessible areas. If certain areas are obstructed or inaccessible, they will not be inspected.
  • Visible damage from wood-destroying insects is always reported. If there is no visible evidence, the report will indicate that. However, hidden damage may still exist, which the inspection cannot identify.
  • The NPMA-33 form provides a structural integrity assessment. The inspection does not evaluate structural integrity. It focuses solely on the presence of wood-destroying insects and any visible damage.
  • Previous treatments are guaranteed to be effective. The form notes that the inspecting company cannot provide assurances regarding work done by other companies. Documentation from the previous treatment provider should be sought for more information.
  • The report is valid indefinitely. The NPMA-33 form is only valid for 90 days from the date of inspection. After that, it cannot be used for securing a mortgage or property transfer.

Key takeaways

Understanding the NPMA-33 form is crucial for homeowners and buyers when it comes to wood-destroying insect inspections. Here are nine key takeaways that will help you navigate this important document:

  • Purpose of the Form: The NPMA-33 form serves as a Wood Destroying Insect Inspection Report, providing insights into the condition of a property regarding potential infestations.
  • Inspection Limitations: This report does not guarantee the absence of wood-destroying insects. It is a visual inspection and cannot account for hidden infestations or damage.
  • Inspection Areas: The inspector only examines readily accessible areas, including attics and crawlspaces. Areas that are obstructed or inaccessible are not inspected.
  • Findings Section: The form includes a section for inspection findings. If evidence of wood-destroying insects is found, it must be documented, including descriptions and locations.
  • Recommendations: The inspector may recommend treatment if evidence of infestation is found. If no treatment is recommended, explanations should be provided.
  • Obstructions: The form allows inspectors to note any obstructions that prevented access during the inspection. This is important for understanding the scope of the inspection.
  • Consumer Responsibility: Homeowners should take preventive measures to reduce the risk of infestations, such as managing moisture and ensuring proper drainage around the property.
  • Validity of the Report: The NPMA-33 report is valid for 90 days from the date of inspection. After this period, it may not be used for mortgage or property transfer purposes.
  • Disclosure of Information: Sellers must acknowledge that they have disclosed all relevant information regarding any wood-destroying insect infestations or treatments to potential buyers.

By keeping these key points in mind, individuals can better understand the implications of the NPMA-33 form and make informed decisions regarding property inspections and pest management.