Content Navigation

The South Carolina PT-401 form is a crucial document for individuals and organizations seeking property tax exemptions in the state. This form must be filled out accurately by the legal owner or an authorized agent, and it requires detailed information to be considered complete. Key sections of the form include the legal owner's identification, property details such as acquisition dates and tax map numbers, and the specific exemption categories being requested. Applicants must specify whether the exemption pertains to real property or vehicles and provide supporting documentation, including deeds, financial statements, and IRS determination letters, as applicable. The PT-401 form also outlines various classifications of exempt property under South Carolina law, covering schools, libraries, and charitable organizations, among others. The instructions emphasize the importance of clarity and completeness, as any incomplete submissions will be returned, potentially delaying the exemption process. Properly navigating this form can significantly impact the financial responsibilities of property owners and organizations alike.

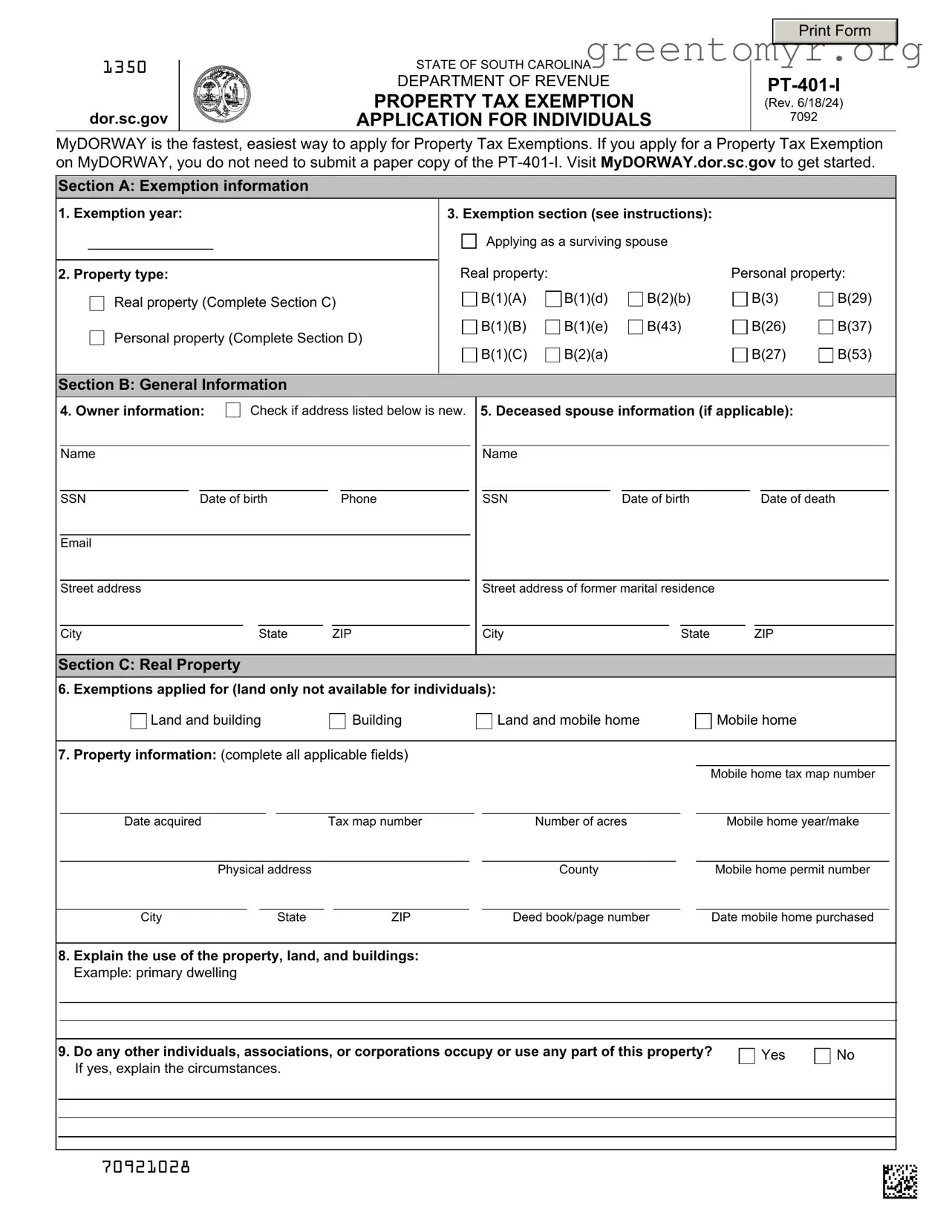
South Carolina Pt 401 Example

1350

dor.sc.gov

STATE OF SOUTH CAROLINA

DEPARTMENT OF REVENUE

PROPERTY TAX EXEMPTION

APPLICATION FOR INDIVIDUALS

Print Form

PT-401-I

(Rev. 6/18/24)

7092

MyDORWAY is the fastest, easiest way to apply for Property Tax Exemptions. If you apply for a Property Tax Exemption on MyDORWAY, you do not need to submit a paper copy of the PT-401-I. Visit MyDORWAY.dor.sc.gov to get started.

Section A: Exemption information

1. Exemption year:

 

 

 

 

 

 

 

 

 

 

 

3. Exemption section (see instructions):

 

 

 

 

 

 

 

 

 

 

 

 

 

 

 

 

 

 

 

 

 

 

 

 

 

 

 

 

 

 

 

 

 

 

Applying as a surviving spouse

 

 

 

 

 

 

 

 

 

 

 

 

 

 

 

 

 

 

 

 

 

 

 

 

 

 

 

 

 

 

 

 

 

 

 

 

 

 

 

 

 

 

 

 

 

 

 

 

 

 

 

 

 

 

 

 

 

 

 

Real property:

 

 

 

 

 

 

 

Personal property:

2. Property type:

 

 

 

 

 

 

 

 

 

 

 

 

 

 

 

 

 

 

 

 

 

 

 

Real property (Complete Section C)

 

 

 

B(1)(A)

 

 

 

B(1)(d)

 

 

 

B(2)(b)

 

 

 

 

B(3)

 

 

B(29)

 

 

 

 

 

 

 

 

 

 

 

 

 

 

 

 

 

 

 

 

 

 

 

 

 

 

 

 

 

 

 

 

 

 

 

 

 

 

 

 

 

 

 

 

 

 

 

 

 

 

 

 

 

 

 

Personal property (Complete Section D)

 

 

 

B(1)(B)

 

 

B(1)(e)

 

 

 

B(43)

 

 

 

 

B(26)

 

 

B(37)

 

 

 

 

 

 

 

 

 

 

 

 

 

 

 

 

 

 

 

 

 

 

 

 

 

 

 

 

 

 

 

 

 

 

 

 

 

 

 

 

 

 

 

 

 

B(1)(C)

 

 

B(2)(a)

 

 

 

 

 

 

 

 

 

 

B(27)

 

 

B(53)

 

 

 

 

 

 

 

 

 

 

 

 

 

 

 

 

 

 

 

 

 

 

 

 

 

 

 

 

 

 

 

 

 

 

 

 

 

 

 

 

 

 

 

 

 

 

 

 

 

 

 

 

 

 

 

 

 

 

 

 

 

 

 

 

 

 

 

 

 

 

 

 

 

 

 

 

 

 

 

 

 

 

 

 

 

 

 

 

 

 

 

 

 

 

 

 

 

 

 

 

 

 

 

 

 

 

 

 

 

 

 

 

 

 

 

 

 

 

 

 

 

 

 

 

 

 

 

 

 

 

 

 

 

 

Section B: General Information

 

 

 

 

 

 

 

 

 

 

 

 

 

 

 

 

 

 

 

 

 

 

 

 

 

 

 

 

 

 

 

 

4. Owner information:

 

 

 

Check if address listed below is new. 5. Deceased spouse information (if applicable):

 

 

 

 

 

 

 

 

 

 

 

 

 

 

 

 

 

 

 

 

 

 

 

 

 

 

 

 

 

 

 

 

 

 

 

 

 

 

 

 

 

 

 

 

 

 

 

 

 

 

Name

 

 

 

 

 

 

 

 

 

 

 

 

 

 

 

 

Name

 

 

 

 

 

 

 

 

 

 

 

 

 

 

 

 

 

 

 

 

 

 

 

 

 

 

 

 

 

 

 

 

 

 

 

 

 

 

 

 

 

 

 

 

 

 

 

 

 

 

 

 

SSN

Date of birth

Phone

 

 

 

 

SSN

 

Date of birth

 

 

 

 

Date of death

 

 

 

 

 

 

 

 

 

 

 

 

 

 

 

 

 

 

 

 

 

 

 

 

 

 

 

 

 

 

 

 

 

 

 

 

 

 

 

 

 

 

 

 

Email

 

 

 

 

 

 

 

 

 

 

 

 

 

 

 

 

 

 

 

 

 

 

 

 

 

 

 

 

 

 

 

 

 

 

 

 

 

 

 

 

 

 

 

 

 

 

 

 

 

 

 

 

 

 

 

 

 

 

 

 

 

 

 

 

 

 

 

 

 

 

 

 

 

Street address

 

 

 

 

 

 

 

 

 

 

 

 

 

 

Street address of former marital residence

 

 

 

 

 

 

 

 

 

 

 

 

 

 

 

 

 

 

 

 

 

 

 

 

 

 

 

 

 

 

 

 

 

 

 

 

 

 

 

 

 

 

 

 

 

 

City

 

 

 

 

 

State

ZIP

 

 

 

City

 

 

 

 

 

State

 

 

 

ZIP

 

 

Section C: Real Property

6. Exemptions applied for (land only not available for individuals):

 

 

 

 

Land and building

 

 

 

 

 

Building

 

 

Land and mobile home

 

 

Mobile home

 

 

 

 

 

 

 

 

 

 

 

 

 

 

 

 

 

 

 

 

 

 

 

 

 

 

 

 

 

 

 

 

 

 

 

 

 

 

 

 

 

 

 

 

 

 

 

 

 

 

7.

Property information: (complete all applicable fields)

 

 

 

 

 

 

 

 

 

 

 

 

 

 

 

 

 

 

 

 

 

 

 

 

 

 

 

 

 

 

 

 

 

 

 

 

Mobile home tax map number

 

 

 

 

 

 

 

 

 

 

 

 

 

 

 

 

 

 

 

 

 

 

 

 

 

 

 

 

Date acquired

 

 

Tax map number

 

 

Number of acres

 

 

Mobile home year/make

 

 

 

 

 

 

 

 

 

 

 

 

 

 

 

 

 

 

 

 

 

 

 

 

 

 

 

 

 

Physical address

 

 

 

 

 

 

 

 

County

 

 

Mobile home permit number

 

 

 

 

 

 

 

 

 

 

 

 

 

 

 

 

 

 

 

 

 

 

 

 

 

 

City

 

 

State

 

 

 

ZIP

 

 

Deed book/page number

 

Date mobile home purchased

 

 

 

 

 

 

 

 

 

 

 

 

 

 

 

 

 

 

 

 

 

 

 

 

 

 

 

 

8.

Explain the use of the property, land, and buildings:

 

 

 

 

 

 

 

 

 

 

 

 

 

 

 

 

 

Example: primary dwelling

 

 

 

 

 

 

 

 

 

 

 

 

 

 

 

 

 

 

 

 

 

 

 

 

 

 

 

 

 

 

 

 

 

 

 

 

 

 

 

 

 

 

 

 

 

 

 

 

 

 

 

 

 

 

 

 

 

 

 

 

 

 

 

 

 

 

 

 

 

 

 

 

 

 

 

 

 

 

 

 

 

 

 

 

 

 

 

 

 

 

 

 

 

 

 

 

 

 

 

 

 

 

 

 

 

 

 

 

 

 

9.

Do any other individuals, associations, or corporations occupy or use any part of this property?

 

 

Yes

 

No

 

 

 

 

 

If yes, explain the circumstances.

 

 

 

 

 

 

 

 

 

 

 

 

 

 

 

 

 

 

 

 

 

 

 

 

 

 

 

 

 

 

 

 

 

 

 

 

 

 

 

 

 

 

 

 

70921028

Section C: Real Property (cont'd)

10.

Do you receive any rent for this property?

 

 

 

 

 

 

 

 

Yes

 

No

If yes, from whom?

 

 

 

 

 

 

 

 

 

 

 

 

 

 

 

 

 

 

 

 

 

 

 

 

 

 

 

 

 

 

 

 

 

 

11.

Do you lease or rent this property?

 

 

 

 

 

 

 

 

 

 

Yes

 

 

No

If yes, from whom?

 

 

 

 

 

 

 

 

 

 

 

 

 

 

 

 

 

 

 

 

 

 

 

 

 

 

 

 

 

 

 

 

 

 

 

 

 

 

 

Section D: Personal Property

 

 

 

 

 

 

 

 

12.

Complete the chart below to apply for vehicle exemption:

 

 

 

 

 

Vehicle Identification Number

Type

 

Make

Year

Registered Owner

County of

 

 

 

Registration

 

 

 

 

 

 

 

 

 

 

 

 

 

 

 

 

 

 

 

 

 

 

 

 

 

 

 

 

 

 

 

 

 

 

 

 

 

 

 

13.

List any vehicles to be removed:

 

 

 

 

 

 

 

 

 

 

 

 

 

 

 

 

 

 

 

 

 

 

 

Vehicle Identification Number

Type

 

Make

Year

Registered Owner

County of

 

 

 

Registration

 

 

 

 

 

 

 

 

 

 

 

 

 

 

 

 

 

 

 

 

 

 

 

 

 

 

 

 

 

 

 

 

 

 

 

 

 

 

 

 

 

 

 

 

 

Section E: Declaration of Owner or Owner's Agent

I understand that a misstatement or concealment of fact in an application is sufficient grounds for the denial of this application for exemption. Under penalties of perjury, I declare and affirm that I have read and understood this form, and the information I have provided is true, correct, and complete.

Signature

 

Date

Important Reminders

·If you leave the Exemption year requested blank, it will default to the current year.

·Claims for exemptions must be received within two years from the date taxes were paid.

·If you are requesting refunds for two years, you must include the paid tax receipts.

·You will need to reapply if there is

oa change in status, or

oa change in ownership of previously exempted property

INSTRUCTIONS

MyDORWAY is the fastest, easiest way to apply for Property Tax Exemptions. If you apply for a Property Tax Exemption on MyDORWAY, you do not need to submit a paper copy of the PT-401-I.

Choose from one of the following ways to apply:

·If you don't have a MyDORWAY account, visit MyDORWAY.dor.sc.gov. Under Applications & Searches, click Exempt Property Application. On the next screen, select Request Individual Property Exemption.

·If you are able to create a MyDORWAY account, get started at dor.sc.gov/MyDORWAY-signup. You will need your SSN along with line 1 from your last Individual Income Tax return, your last refund amount, or a Letter ID.

·If you are not using MyDORWAY, mail your application to this address: SCDOR, Government Services Division, PO Box 125, Columbia, SC 29214-0720

·We also accept applications in person at any of our service centers. Visit dor.sc.gov/contact/in-person for location information and hours.

Questions? We're here to help. Email us at [email protected].

70922026

EXEMPTION SECTIONS:

Required documentation is listed for each exemption.

For more information, SC Code Sections are available at dor.sc.gov/policy.

Real Property (Land and Home) Exemptions for Individuals

B(1)(A) - Dwelling home of a veteran who is permanently and totally disabled as a result of a service-connected disability

A veteran who is totally and permanently disabled from a service-connected disability may apply for a Property Tax exemption for a dwelling home they own solely, in fee or for life, or jointly with a spouse. VA Rating decision letters do not meet requirements of law. Provide copies of the following:

·Certificate from VA or Local County Service Officer certifying total and permanent service-connected disability, with the effective date

·Recorded deed

·Documentation that the 4% special assessment ratio for an owner-occupied dwelling from the county assessor's office has been granted, either solely to the applicant or jointly with a spouse

·Your marriage certificate if the home is jointly titled with a spouse

·Title, bond for title, or bill of sale if the property is a mobile home

A surviving spouse may apply for this exemption for the dwelling home they solely own or acquired from the deceased spouse, as long as the spouse remains unmarried, resides in the house, and owns the house in fee or for life.

If you are applying as a surviving spouse, provide copies of the following:

·Documentation from the VA showing that you are the survivor of the veteran

·Form DD 1300, Report of Casualty, if you are applying as the surviving spouse of a soldier killed in action

·Veteran's death certificate

·Recorded deed of distribution, or last will and testament. If the home was solely owned by the surviving spouse prior to the deceased veteran's death, then a copy of the recorded deed is necessary.

·Documentation that the 4% special assessment ratio for an owner-occupied dwelling from the county assessor's office has been granted, solely to the applicant

·Title, bond for title, or bill of sale if the property is a mobile home

B(1)(B) - Dwelling home of a former law enforcement officer, who is permanently and totally disabled as a result of a law enforcement service-connected disability in South Carolina

A former law enforcement officer who is totally and permanently disabled as a result of their law enforcement service- connected disability may apply for a Property Tax exemption for a dwelling home they own solely, in fee or for life, or jointly with a spouse. Provide copies of the following:

·Documentation from commanding officer certifying that the applicant was totally and permanently disabled in the line of duty in South Carolina, with the effective date

·Final order issued by Workers’ Compensation Commission of total and permanent service-connected disability in South Carolina, with the effective date

·Recorded deed

·Documentation that the 4% special assessment ratio for an owner-occupied dwelling from the county assessor's office has been granted, either solely to the applicant or jointly with a spouse

·Your marriage certificate if the home is jointly titled with a spouse

·Title, bond for title, or bill of sale if the property is a mobile home

A surviving spouse may apply for this exemption for the dwelling home they solely own or acquired from the deceased spouse, as long as the spouse remains unmarried, resides in the house, and owns the house in fee or for life.

If you are applying as a surviving spouse, provide copies of the following:

·Documentation from commanding officer certifying that the South Carolina law enforcement officer was killed in the line of duty in South Carolina

·Officer's death certificate

·Recorded deed of distribution, or last will and testament. If the home was solely owned by the surviving spouse prior to the deceased veteran's death, then a copy of the recorded deed is necessary.

·Documentation that the 4% special assessment ratio for an owner-occupied dwelling from the county assessor's office has been granted, solely to the applicant

·Title, bond for title, or bill of sale if the property is a mobile home

B(1)(C) - Dwelling home of a former firefighter, including volunteer firefighter, who is permanently and totally disabled as a result of a firefighting service-connected disability in South Carolina

A former firefighter or volunteer firefighter who is totally and permanently disabled as a result of their firefighting service- connected disability may apply for a Property Tax exemption for a dwelling home they own in fee or for life, or jointly with a spouse. Provide copies of the following:

·Documentation from the fire department chief certifying the applicant was totally and permanently disabled in the line of duty in South Carolina, with the effective date

·Final order issued by Workers’ Compensation Commission of total and permanent service-connected disability in South Carolina, with the effective date

·Recorded deed

·Documentation that the 4% special assessment ratio for an owner-occupied dwelling from the county assessor's office has been granted, either solely to the applicant or jointly with a spouse

·Your marriage certificate if the home is jointly titled with a spouse

·Title, bond for title, or bill of sale if the property is a mobile home

A surviving spouse may apply for this exemption for the dwelling home they solely own or acquired from the deceased spouse, as long as the spouse remains unmarried, resides in the house, and owns the house in fee or for life.

If you are applying as a surviving spouse, provide copies of the following:

·Documentation from the fire department chief certifying that the South Carolina firefighter was killed in the line of duty in South Carolina

·Firefighter's death certificate

·Recorded deed of distribution, or last will and testament. If the home was solely owned by the surviving spouse prior to the deceased veteran's death, then a copy of the recorded deed is necessary.

·Documentation that the 4% special assessment ratio for an owner-occupied dwelling from the county assessor's office has been granted, solely to the applicant

·Title, bond for title, or bill of sale if the property is a mobile home

B(1)(d) - For the above B(1)(A), B(1)(B), and B(1)(C) Property held in trust

When a trustee holds the legal title to a dwelling for a beneficiary and the beneficiary qualifies for the exemption and uses the dwelling as their primary residence, the dwelling is exempt from property taxation. Provide copies of the following:

·The same documentation listed above for B(1)(A), B(1)(B), and B(1)(C)

·A copy of the signed trust agreement verifying the applicant is the income beneficiary

·Documentation that the beneficiary has been granted the 4% special assessment ratio for an owner-occupied dwelling from the county assessor's office

B(1)(e) - For the above B(1)(A), B(1)(B), and B(1)(C) Eligible ownership requirements

A person who owns an interest in a house and meets all other requirements of this item and is otherwise an eligible owner but for the ownership requirement is deemed to be an eligible owner so long as the county assessor certifies to the South Carolina Department of Revenue that the house is located on heirs' property and the person is the owner-occupied resident of the house. For purposes of this item, heirs' property has the same meaning as provided in Section 15-61-320. Provide copies of the following:

·The same documentation listed above for B(1)(A), B(1)(B), and B(1)(C)

·Certification from the county assessor's office that the house is located on heirs' property

·Documentation that the beneficiary has been granted the 4% special assessment ratio for an owner-occupied dwelling from the county assessor's office

B(2)(a) - Dwelling home of a paraplegic or hemiplegic person

A paraplegic or hemiplegic person may apply for a Property Tax exemption for a dwelling home and a lot up to one acre that they own solely or jointly with a spouse. For purposes of this exemption, "paraplegic" or "hemiplegic" includes a person with Parkinson's disease, Multiple Sclerosis, or Amyotrophic Lateral Sclerosis, which has caused the same ambulatory difficulties as a person with paraparesis or hemiparesis. Provide copies of the following:

·Signed physician’s statement on the physician’s letterhead certifying the paraplegic or hemiplegic condition OR certifying that the Parkinson's disease, Multiple Sclerosis, or Amyotrophic Lateral Sclerosis has caused the same ambulatory difficulties as mentioned above, including the effective date of ambulatory difficulties

·Recorded deed

·Documentation that the 4% special assessment ratio for an owner-occupied dwelling from the county assessor's office has been granted, either solely to the applicant or jointly with a spouse

·Your marriage certificate if the home is jointly titled with a spouse

·Title, bond for title, or bill of sale if the property is a mobile home

A surviving spouse may apply for this exemption for the dwelling home they acquired from the deceased spouse, as long as the spouse remains unmarried, resides in the house, and owns the house in fee or for life.

If you are applying as a surviving spouse, provide copies of the following:

·Former applicant's death certificate

·Recorded deed of distribution, or last will and testament

·Documentation that the 4% special assessment ratio for an owner-occupied dwelling from the county assessor's office has been granted, solely to the applicant

·Title, bond for title, or bill of sale if the property is a mobile home

B(2)(b) - For the above B(2)(a) Property held in trust

When a trustee holds the legal title to a dwelling for a beneficiary and the beneficiary qualifies for the exemption and uses the dwelling as their primary residence, the dwelling is exempt from property taxation. Provide copies of the following:

·The same documentation listed above for B(2)(a)

·A copy of the signed trust agreement verifying the applicant is the income beneficiary

·Documentation that the beneficiary has been granted the 4% special assessment ratio for an owner-occupied dwelling from the county assessor's office

B(43) - Dwelling home of a Medal of Honor or Prisoner of War recipient

A Medal of Honor recipient or Prisoner of War in World War I, World War II, the Korean Conflict, or the Vietnam Conflict may apply for a Property Tax exemption for a dwelling home and a lot up to one acre that they own solely or jointly with a spouse. Provide copies of the following:

·Certificate from VA or Local County Service Officer certifying you are a recipient of the Medal of Honor or that you were a Prisoner of War

·Recorded deed

·Documentation that the 4% special assessment ratio for an owner-occupied dwelling from the county assessor's office has been granted, either solely to the applicant or jointly with a spouse

·Your marriage certificate if the home is jointly titled with a spouse

·Title, bond for title, or bill of sale if the property is a mobile home

A surviving spouse may apply for this exemption for the dwelling home they solely own or acquired from the deceased spouse, as long as the spouse remains unmarried, resides in the house, and owns the house in fee or for life.

If you are applying as a surviving spouse, provide copies of the following:

·Documentation from the VA showing that you are the survivor

·Former POW or Medal of Honor recipient's death certificate

·Recorded deed of distribution, or last will and testament. If the home was solely owned by the surviving spouse prior to the deceased spouse's death, then a copy of the recorded deed is necessary.

·Documentation that the 4% special assessment ratio for an owner-occupied dwelling from the county assessor's office has been granted, solely to the applicant

·Title, bond for title, or bill of sale if the property is a mobile home

Personal Property (Vehicle) Exemptions for Individuals

Vehicles must be registered with the South Carolina Department of Motor Vehicles (SCDMV) before you apply for exemptions. If the vehicle is registered or purchased out of state, you must pay vehicle taxes up front. If the exemption is granted, the applicant may seek reimbursement from the county where the taxes were paid.

If you have previously been approved for an exemption and are adding or removing a vehicle, Veterans Administration (VA) documentation is not necessary.

If you are applying for a vehicle exemption, provide copies as defined for your specific exemption.

A marriage certificate must be provided for jointly titled vehicles. Prior to November 2018, this was not a requirement.

B(3) - Vehicle exemption for Disabled Veterans/Spouses

A veteran who is totally and permanently disabled from a service-connected disability may apply for a Property Tax exemption for two private passenger vehicles they own or lease. To qualify for the exemption, the vehicle must be registered solely in the name of the veteran, or jointly with a spouse. Provide copies of the following:

·Certificate from VA or Local County Service Officer certifying total and permanent service-connected disability, with the effective date

·South Carolina vehicle registration card; or South Carolina bill of sale; or South Carolina issued title

·Your marriage certificate if the vehicle is jointly titled with a spouse, or if the vehicle is solely in the spouse's name

·Vehicles titled solely in the spouse's name do not qualify until tax year 2024

B(3) - For the above B(3) Property held in trust

Effective tax year 2024, a trustee that holds the legal title to a vehicle for a beneficiary and the beneficiary qualifies for the exemption and uses this vehicle, the vehicle is exempt from property taxation. Provide copies of the following:

·The same documentation listed above for B(3)

·A copy of the fully executed trust agreement verifying the applicant is the income beneficiary

A surviving spouse may apply for this exemption for one vehicle they own or lease, for their lifetime or until their remarriage. Surviving spouses are allowed an exemption for only one vehicle.

If you are applying as a surviving spouse, provide copies of the following:

·Veteran's death certificate

·Documentation from the VA showing that you are the survivor of the veteran

·South Carolina vehicle registration card; or South Carolina bill of sale; or South Carolina issued title showing that you are the sole owner of the vehicle

B(26) - Vehicle exemption for Medal of Honor recipients

Medal of Honor recipients may apply for a Property Tax exemption for two private passenger vehicles that they own or lease. Provide copies of the following:

·Certificate from VA or Local County Service Officer certifying receipt of Medal of Honor

·South Carolina vehicle registration card; or South Carolina bill of sale; or South Carolina issued title

If you have previously been approved for this exemption and are adding or removing a vehicle, provide a copy of the South Carolina vehicle registration card; or South Carolina bill of sale; or South Carolina issued title.

B(27) - Vehicle exemption for persons required to use wheelchairs

Persons required to use a wheelchair may apply for a Property Tax exemption for two personal motor vehicles that they own or lease, either solely or jointly. Provide copies of the following:

·Signed physician’s statement on the physician’s letterhead certifying the required use of a wheelchair on a permanent basis, with effective date of permanent wheelchair use (must be from a South Carolina licensed physician)

·South Carolina vehicle registration card; or South Carolina bill of sale; or South Carolina issued title

B(29) - Vehicle exemption for Prisoner of War

A Prisoner of War (POW) in World War I, World War II, the Korean Conflict, or the Vietnam Conflict may apply for a Property Tax exemption for two private passenger vehicles (not exceeding three-quarters of a ton) that they own or lease. To qualify for the exemption, the vehicle must be registered solely in the name of the veteran, or jointly with a spouse. Provide copies of the following:

·Certificate from VA or Local County Service Officer certifying you were a Prisoner of War

·South Carolina vehicle registration card; or South Carolina bill of sale; or South Carolina issued title

·Your marriage certificate if the vehicle is jointly titled with a spouse

A surviving spouse may apply for this exemption for one vehicle they own or lease, for their lifetime or until their remarriage. Surviving spouses are allowed an exemption for only one vehicle.

If you are applying as a surviving spouse, provide copies of the following:

·Former POW's death certificate

·Documentation from the VA showing that you are the survivor of the qualified former POW

·South Carolina vehicle registration card; or South Carolina bill of sale; or South Carolina issued title showing that you are the sole owner of the vehicle

If you have previously been approved for this exemption and are adding or removing a vehicle, VA documentation is not necessary.

B(37) - Vehicle exemption for parent or legal guardian of a minor child who is blind or requires the use of a wheelchair

A parent or legal guardian of a minor who is blind or requires the use of a wheelchair may apply for a Property Tax exemption for one personal motor vehicle that they own or lease, provided the vehicle is used to transport the minor. Provide copies of the following:

·Signed physician’s statement on the physician’s letterhead certifying the minor is blind or required to use a wheelchair, with effective date (must be from a South Carolina licensed physician)

·The minor's original birth certificate showing parents' names, or court documentation of legal guardianship

·South Carolina vehicle registration card; or South Carolina bill of sale; or South Carolina issued title

If you have previously been approved for this exemption and are adding or removing a vehicle, documentation of legal guardianship and certification of the minor's disability is not necessary.

B(53) - Renewable energy resource exemption for solar panels

A property tax exemption for solar panels placed on the rooftops of residential homes. In order to qualify for the exemption, the solar panels system must be installed and running and cannot exceed 20 kilowatts.

Provide copies of the following:

·A table for assets owned as of December 31 of the preceding year

·Identify the items you are seeking the exemption for with the dates of acquisition, cost at acquisition, accumulated depreciation, and net values

File Breakdown

Fact Name Description
Form Purpose The PT-401 form is used to apply for property tax exemptions in South Carolina.
Eligibility Eligible applicants include property owners, agents, and specific organizations as outlined in the form.
Submission Requirements Applications must be fully completed and submitted to the South Carolina Department of Revenue.
Governing Law The application process is governed by South Carolina Code Section 12-37-220.
Documentation Supporting documents such as deeds, IRS letters, and financial statements may be required.
Application Deadline Applications must be submitted by the deadline set by the South Carolina Department of Revenue for timely consideration.

Guide to Using South Carolina Pt 401

Completing the South Carolina PT 401 form requires careful attention to detail. Each section must be filled out accurately to avoid delays in processing. After submitting the form, it will be reviewed by the South Carolina Department of Revenue, Property Division. If any information is missing or incorrect, the application may be returned, which can prolong the exemption process.

  1. Provide Legal Owner Information: Fill in the legal owner's name, address, and either the Social Security number or Federal Identification number.
  2. Indicate Tax Year: Specify the year(s) for which you are applying for the exemption.
  3. Acquisition Date: If applying for real property exemption, state the date the property was acquired.
  4. County Information: List the county where the property is located or registered.
  5. Property Location: If different from the mailing address, provide the location of the property.
  6. Tax Map Number: Enter the tax map number, which can be obtained from your county assessor.
  7. Exemption Checkboxes: For real estate exemption, check all applicable boxes.
  8. Deed Book and Page Number: Fill in the deed book and page number, also available from your county assessor.
  9. Vehicle Information: If applying for vehicle exemption, list all requested vehicle information, including the Vehicle Identification Number (VIN), make, and year.
  10. Furniture and Fixtures: For organizations applying for furniture and fixtures exemption, attach a separate sheet detailing items, acquisition dates, costs, accumulated depreciation, and net value.

Get Answers on South Carolina Pt 401

What is the purpose of the South Carolina PT 401 form?

The South Carolina PT 401 form is used to apply for property tax exemptions in the state. This form must be completed by the property owner or an authorized agent. It allows individuals and organizations to request exemptions for various types of properties, including real estate, vehicles, and certain personal property. To ensure a smooth application process, all sections of the form must be filled out completely. Incomplete applications will be returned, which can lead to delays in processing.

Who is eligible to apply for exemptions using the PT 401 form?

Eligibility for exemptions varies depending on the type of property and the applicant's status. Generally, the following groups may qualify:

  • Veterans with permanent and total service-connected disabilities.
  • Former law enforcement officers and firefighters who are permanently disabled due to service-related injuries.
  • Nonprofit organizations, including schools, churches, and charitable institutions.
  • Public libraries and certain community organizations.

Each category has specific documentation requirements that must be submitted alongside the application. For instance, veterans must provide a certificate of disability from the appropriate authorities.

What documentation is required to accompany the PT 401 form?

Applicants must submit various documents depending on the type of exemption sought. Commonly required documents include:

  1. Deed or title to real property.
  2. Vehicle registration cards for vehicles being claimed.
  3. IRS Determination Letters for nonprofit organizations.
  4. Articles of Incorporation and Bylaws for organizations.
  5. Audited financial statements for the last three years.

It is essential to review the specific requirements for the exemption type being applied for, as additional documentation may be necessary.

How should the PT 401 form be submitted, and what is the timeline for processing?

The completed PT 401 form, along with all required documentation, should be mailed to the South Carolina Department of Revenue, Property Division, in Columbia. The address is provided on the form itself. Once submitted, the processing time may vary. However, applicants should expect some delays if their application is incomplete or if additional information is requested. It is advisable to submit applications as early as possible to ensure timely consideration for the exemption.

Common mistakes

Filling out the South Carolina PT 401 form can be a straightforward process, but many people make common mistakes that can delay their application. One frequent error is failing to provide complete information. Each section of the form requires specific details, such as the legal owner's name, address, and identification numbers. Omitting any of these can lead to the application being returned. It is crucial to double-check that all fields are filled out accurately before submission.

Another mistake involves incorrect identification of the property type. Applicants often misclassify their property or fail to check the appropriate boxes indicating the type of exemption they are requesting. This can cause confusion and may result in a denial of the exemption. Understanding the classifications and ensuring that the correct ones are marked is essential for a successful application.

Additionally, many applicants neglect to include necessary supporting documents. The PT 401 form requires various attachments, such as deeds, financial statements, and IRS letters. Failing to provide these documents can result in delays or rejections. It is advisable to gather all required paperwork before starting the application to ensure everything is in order.

People also frequently overlook the importance of signing the application. An unsigned form is considered incomplete and will be returned. This simple oversight can lead to unnecessary delays in processing the exemption request. Always remember to review the form for a signature before mailing it.

Lastly, applicants often misinterpret the instructions regarding vehicle information. Some may confuse the Vehicle Identification Number (VIN) with the license tag number. Providing the wrong number can lead to complications. Ensuring that the correct VIN is listed is crucial for vehicles included in the exemption request. Taking the time to carefully read and follow the instructions can prevent these common pitfalls.

Documents used along the form

When applying for property tax exemptions in South Carolina, various forms and documents may accompany the PT-401 form to ensure a comprehensive application. Here’s a list of related documents that are commonly used in conjunction with the PT-401.

  • PT-401A: This is the "Application for Exemption for Real Property." It details the specific real estate for which the exemption is being requested, including property location and ownership details.
  • IRS Determination Letter: This letter verifies the tax-exempt status of an organization. It is often required for nonprofit entities seeking property tax exemptions.
  • Articles of Incorporation: This document outlines the formation of a corporation, detailing its purpose and structure. It is crucial for nonprofits applying for exemptions.
  • Bylaws: Bylaws govern the internal management of an organization. They are necessary to demonstrate compliance with operational standards for tax exemption eligibility.
  • Financial Statements: Recent audited financial statements provide a snapshot of an organization’s financial health. These are typically required to assess eligibility for exemptions.
  • Deed or Title: Proof of ownership of the property in question is essential. This document shows that the applicant has legal claim to the property for which they seek an exemption.
  • Vehicle Registration Card: For vehicle exemptions, this card serves as proof of ownership and registration of the vehicle being claimed for tax exemption.
  • Bill of Sale: This document confirms the purchase of a vehicle or property. It may be necessary for applicants seeking exemptions on recently acquired items.
  • Lease Agreement: If the property is leased, this document outlines the terms of the lease and is needed to establish the nature of use for exemption purposes.
  • Medical Certification: For disability-related exemptions, a medical certification from a physician may be required to confirm the applicant's eligibility based on their health condition.

Gathering the appropriate documents along with the PT-401 form can streamline the exemption application process. Ensure all materials are complete and accurate to avoid delays in approval.

Similar forms

The South Carolina PT-401 form is a specific application for tax exemptions. Several other documents share similarities with it in terms of purpose and required information. Below is a list of seven documents that are comparable to the PT-401 form, along with explanations of how they are similar:

  • Form 990: This is an annual reporting return that tax-exempt organizations must file with the IRS. Like the PT-401, it requires detailed financial information, including income and expenses, to maintain tax-exempt status.
  • IRS Determination Letter: This letter confirms an organization's tax-exempt status. Similar to the PT-401, it provides proof of eligibility for tax benefits and often requires supporting documentation about the organization's purpose and activities.
  • Application for Nonprofit Status (Form 1023): Organizations seeking tax-exempt status must complete this form. It is akin to the PT-401 as it demands comprehensive details about the organization’s structure, governance, and financials to determine eligibility for exemptions.
  • Property Tax Exemption Application: Many states have their own forms for property tax exemptions. These applications, like the PT-401, ask for specific information about the property, its use, and the organization applying for the exemption.
  • Form 990-EZ: This is a shorter version of Form 990 for smaller tax-exempt organizations. It shares similarities with the PT-401 in that it requires financial information and details about the organization’s activities to ensure compliance with tax regulations.
  • State Charitable Organization Registration Form: Many states require nonprofits to register before soliciting donations. This form, like the PT-401, collects information about the organization’s mission, governance, and financials to verify its legitimacy.
  • Business License Application: Local governments often require businesses to apply for a license. This application, similar to the PT-401, requires information about the business's operations, ownership, and compliance with local regulations.

Dos and Don'ts

When filling out the South Carolina PT 401 form, it is important to follow specific guidelines to ensure your application is processed efficiently. Below is a list of things you should and shouldn't do:

  • Do complete all applicable areas of the form.
  • Do provide your legal name, address, and Social Security or Federal Identification number.
  • Do indicate the year(s) for which you are applying for exemption.
  • Do include all necessary documentation as specified in the instructions.
  • Do ensure that the property location matches the mailing address, if different.
  • Do check the applicable boxes for real estate exemptions.
  • Do mail the completed application to the correct address.
  • Don't leave any sections of the application blank.
  • Don't submit incomplete applications, as they will be returned.
  • Don't use abbreviations or unclear information in your responses.
  • Don't forget to sign and date the application before submission.
  • Don't submit documents that are not specifically requested.
  • Don't rely solely on verbal instructions; always refer to the written guidelines.
  • Don't delay in submitting your application, as it may affect your exemption status.

Misconceptions

  • Misconception 1: The PT-401 form can be submitted without all required information.
  • This is not true. The form must be fully completed with all necessary details. Incomplete applications will be returned, which can delay the exemption process.

  • Misconception 2: Only property owners can apply for exemptions using the PT-401 form.
  • In reality, an agent can also complete the application on behalf of the owner. However, the owner must still be involved in the process.

  • Misconception 3: The PT-401 form is only for real estate exemptions.
  • The form is applicable for various types of property, including vehicles and personal property, provided the applicant meets the specific criteria outlined in the instructions.

  • Misconception 4: Submitting the PT-401 form guarantees an exemption.
  • This is misleading. While the form is necessary for consideration, the actual approval of the exemption depends on meeting all eligibility criteria established by the state.

  • Misconception 5: There are no deadlines for submitting the PT-401 form.
  • There are indeed deadlines for applications, which vary depending on the type of exemption being sought. Missing these deadlines can result in the denial of the exemption.

  • Misconception 6: Documentation requirements are the same for all types of exemptions.
  • This is incorrect. Different exemptions require different supporting documents. It is crucial to review the specific requirements listed in the instructions to ensure compliance.

Key takeaways

  • The PT-401 form must be filled out by the property owner or an authorized agent.
  • All required fields must be completed; incomplete applications will be returned, leading to delays.
  • Applicants should provide the legal owner’s details, including address and identification numbers.
  • Specific information about the property, such as location, county, and tax map number, is necessary for the application.
  • Supporting documents, such as deeds, financial statements, and IRS letters, are required based on the type of exemption being requested.
  • The completed form and all documents must be mailed to the South Carolina Department of Revenue, Property Division.