Content Navigation

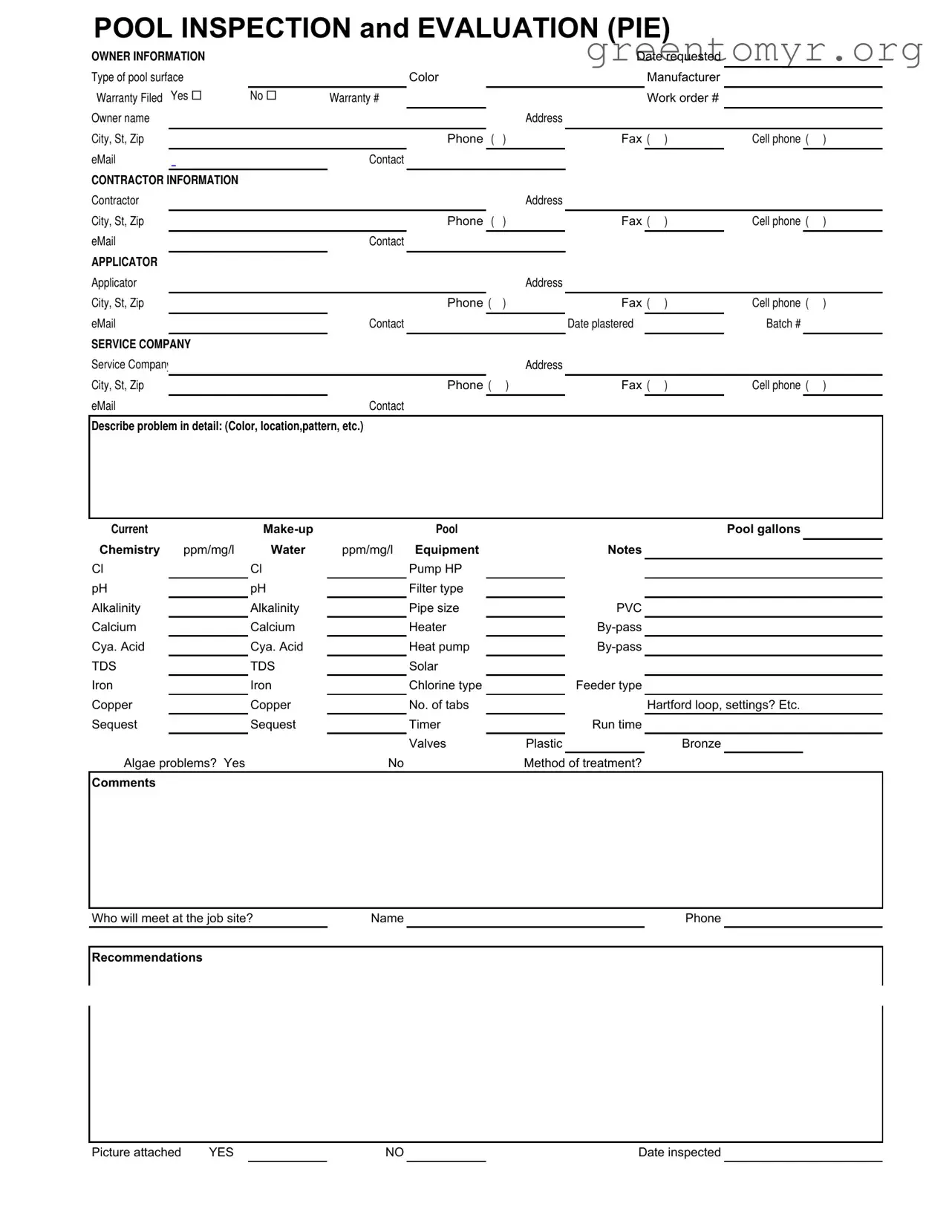
The Swimming Pool Inspection form is a vital tool for ensuring the safety and functionality of your pool. It captures essential information about the pool, including the owner’s details, contractor information, and specific characteristics of the pool itself. Each section of the form is designed to gather comprehensive data, such as the type of pool surface, manufacturer details, and warranty status. The form also includes a detailed description of any existing problems, which can range from color discrepancies to equipment malfunctions. Additionally, it records critical chemistry levels, equipment specifications, and maintenance history, providing a complete picture of the pool’s condition. The inspector will note recommendations and any necessary follow-up actions, ensuring that all aspects are covered. With this thorough approach, the form serves as both a checklist and a guide for maintaining a safe swimming environment.

Swimming Pool Inspection Example

POOL INSPECTION and EVALUATION (PIE)

OWNER INFORMATION

 

 

 

 

 

 

 

 

 

Date requested

 

 

 

Type of pool surface

 

 

 

 

 

 

 

 

 

 

 

 

 

 

 

 

 

Color

 

 

 

 

 

Manufacturer

 

 

 

 

 

 

 

 

 

 

 

 

 

 

 

 

 

 

 

 

 

Warranty Filed Yes

No

Warranty #

 

 

 

 

 

Work order #

 

 

 

Owner name

 

 

 

 

 

 

 

Address

 

 

 

 

 

 

 

 

 

 

 

 

 

 

 

 

 

 

 

 

 

 

City, St, Zip

 

 

 

Phone (

)

 

 

Fax (

)

 

Cell phone (

)

 

 

 

 

 

 

 

 

 

 

 

 

 

 

 

 

 

eMail

 

Contact

 

 

 

 

 

 

 

 

 

 

 

 

 

 

 

 

 

 

 

 

 

 

 

 

 

 

 

 

 

 

CONTRACTOR INFORMATION

 

 

 

 

 

 

 

 

 

 

 

 

 

 

 

 

 

Contractor

 

 

 

 

 

 

 

Address

 

 

 

 

 

 

 

 

 

 

 

 

 

 

 

 

 

 

 

 

 

City, St, Zip

 

 

 

Phone (

)

 

 

Fax (

)

 

Cell phone (

)

 

 

 

 

 

 

 

 

 

 

 

 

 

 

 

 

 

eMail

 

Contact

 

 

 

 

 

 

 

 

 

 

 

 

 

 

 

 

 

 

 

 

 

 

 

 

 

 

 

 

 

 

APPLICATOR

 

 

 

 

 

 

 

 

 

 

 

 

 

 

 

 

 

Applicator

 

 

 

 

 

 

 

Address

 

 

 

 

 

 

 

 

 

 

 

 

 

 

 

 

 

 

 

 

 

City, St, Zip

 

 

 

Phone (

)

 

 

Fax (

)

 

Cell phone (

)

 

 

 

 

 

 

 

 

 

 

 

 

 

 

 

eMail

 

Contact

 

 

 

Date plastered

 

 

Batch #

 

 

 

 

 

 

 

 

 

 

 

 

 

 

 

 

 

 

 

 

SERVICE COMPANY

 

 

 

 

 

 

 

 

 

 

 

 

 

 

 

 

 

Service Company

 

 

 

 

 

 

 

Address

 

 

 

 

 

 

 

 

 

 

 

 

 

 

 

 

 

 

 

 

 

City, St, Zip

 

 

 

Phone (

)

 

 

Fax (

)

 

Cell phone (

)

 

 

 

 

 

 

 

 

 

 

 

 

 

 

 

 

eMail

 

Contact

 

 

 

 

 

 

 

 

 

 

 

Describe problem in detail: (Color, location,pattern, etc.)

Current

 

Make-up

 

Pool

 

 

 

 

 

Pool gallons

Chemistry

ppm/mg/l

Water

ppm/mg/l Equipment

 

 

Notes

 

 

 

 

 

 

 

 

 

 

Cl

 

Cl

 

Pump HP

 

 

 

 

 

 

 

 

pH

 

pH

 

Filter type

 

 

 

 

 

 

 

 

Alkalinity

 

Alkalinity

 

Pipe size

 

 

PVC

 

 

 

 

 

Calcium

 

Calcium

 

Heater

 

 

By-pass

 

 

 

 

 

Cya. Acid

 

Cya. Acid

 

Heat pump

 

 

By-pass

 

 

 

 

TDS

 

TDS

 

Solar

 

 

 

 

 

 

 

 

Iron

 

Iron

 

Chlorine type

 

 

Feeder type

 

 

 

 

Copper

 

Copper

 

No. of tabs

 

 

 

 

Hartford loop, settings? Etc.

Sequest

 

Sequest

 

Timer

 

 

Run time

 

 

 

 

 

 

 

 

 

Valves

Plastic

 

Bronze

 

 

Algae problems? Yes

 

No

Method of treatment?

 

 

 

 

Comments

 

 

 

 

 

 

 

 

 

 

 

 

 

 

 

 

 

 

 

 

 

 

 

 

 

Who will meet at the job site?

Name

 

Phone

Recommendations

Picture attached

YES

 

NO

 

Date inspected

File Breakdown

Fact Name Description
Form Purpose The Swimming Pool Inspection and Evaluation (PIE) form is used to assess the condition and safety of swimming pools.
Owner Information The form requires detailed information about the pool owner, including name, address, and contact details.
Contractor Details Contractor information is also collected, which includes their name, address, and contact information.
Service Company A section for service company details ensures that the inspection can be verified and followed up as needed.
State-Specific Laws In many states, such as California, the inspection must comply with the California Health and Safety Code, Section 116025.
Inspection Outcomes The form allows inspectors to document findings, recommendations, and any immediate actions required to address issues.

Guide to Using Swimming Pool Inspection

Completing the Swimming Pool Inspection form requires careful attention to detail. Each section gathers important information about the pool, the owner, and any issues that may need addressing. Follow these steps to ensure that the form is filled out correctly.

  1. Owner Information: Fill in the date requested. Indicate the type of pool surface and its color. Provide the manufacturer's name and check whether the warranty has been filed (Yes or No). If yes, include the warranty number and work order number. Then, complete the owner's name, address, city, state, zip code, phone number, fax number, and cell phone number. Lastly, include the owner's email address.
  2. Contractor Information: Enter the contractor's name and address, including city, state, and zip code. Provide the contractor's phone number, fax number, cell phone number, and email address.
  3. Applicator Information: Fill in the applicator's name and address, along with city, state, and zip code. Include the applicator's phone number, fax number, cell phone number, and email address. Don’t forget to note the date plastered and the batch number.
  4. Service Company Information: Provide the service company's name and address, including city, state, and zip code. Fill in the service company's phone number, fax number, cell phone number, and email address.
  5. Problem Description: Describe the problem in detail, including color, location, and pattern.
  6. Current Pool Information: Enter the total gallons of the pool. List the chemistry levels in ppm/mg/l for chlorine, water, alkalinity, calcium, and TDS. Provide details about the equipment, including pump HP, filter type, pipe size, and heater information.
  7. Chlorine and Algae Information: Indicate the type of chlorine and feeder type. Note if there are any algae problems (Yes or No) and describe the method of treatment if applicable.
  8. Additional Comments: Include any additional comments or observations regarding the inspection.
  9. Job Site Meeting: Specify who will meet at the job site, including their name and phone number.
  10. Recommendations: Indicate if a picture is attached (Yes or No) and enter the date inspected.

Get Answers on Swimming Pool Inspection

What is the purpose of the Swimming Pool Inspection form?

The Swimming Pool Inspection form, also known as the Pool Inspection and Evaluation (PIE) form, is designed to assess the condition of a swimming pool. It gathers essential information about the pool, including the owner's details, contractor information, and specifics about the pool's surface and equipment. This form helps ensure that any issues with the pool can be identified and addressed properly, contributing to the safety and enjoyment of pool users.

What information do I need to provide on the form?

When filling out the Swimming Pool Inspection form, you will need to provide several key details:

  1. Owner Information: This includes your name, address, phone numbers, and email.
  2. Contractor Information: Provide the contact details of the contractor responsible for the pool.
  3. Applicator Information: Include details about the applicator who worked on the pool.
  4. Service Company Information: List the service company that maintains the pool.
  5. Pool Details: Describe the pool surface type, color, and any warranty information.
  6. Problem Description: Detail any issues with the pool, such as color changes or equipment problems.
  7. Chemistry and Equipment Information: Provide current water chemistry readings and equipment specifications.

Completing this information accurately will help facilitate a thorough inspection.

How will the inspection process work?

The inspection process typically involves a qualified inspector visiting the pool site to evaluate its condition. The inspector will review the information provided on the form and physically assess the pool. This may include checking the pool's surface, equipment, and water chemistry. After the inspection, the inspector will document their findings and may provide recommendations for any necessary repairs or maintenance. It is important to have a designated contact person available at the job site to discuss any immediate concerns.

What should I do if I notice problems with my pool?

If you notice any issues with your pool, such as discoloration, equipment malfunction, or water quality concerns, it is essential to address them promptly. Begin by documenting the problem in detail, including its location and any patterns you observe. Then, fill out the Swimming Pool Inspection form with this information and submit it to your contractor or service company. They can then schedule an inspection to evaluate the problem and recommend solutions. Regular maintenance and prompt attention to issues can help prolong the life of your pool and ensure a safe swimming environment.

Common mistakes

Completing the Swimming Pool Inspection form accurately is crucial for ensuring a thorough evaluation. However, many individuals make common mistakes that can lead to delays or misunderstandings. One frequent error is failing to provide complete owner information. Missing details such as the owner’s name, address, or contact numbers can hinder communication and the inspection process.

Another common mistake involves the contractor information section. Some individuals neglect to include the contractor’s address or phone number, which is essential for follow-up questions or clarifications. Incomplete information can complicate the coordination of services.

When detailing the applicator information, people sometimes overlook the need to provide a valid contact number. This omission can prevent timely communication regarding the inspection and any necessary follow-up actions. It is important to ensure that all contact fields are filled out completely.

Describing the problem in detail is a critical part of the inspection process. Many individuals make the mistake of providing vague descriptions. Specifics such as color, location, and pattern of the issue are necessary for a proper evaluation. Without these details, the inspector may not fully understand the problem.

Another area where errors frequently occur is in the current make-up pool section. Some people fail to accurately report the pool's gallon capacity, which can impact the assessment of chemical balance and treatment needs. Accurate measurements are essential for effective pool management.

In the chemistry section, it is common for individuals to misreport the levels of chlorine, pH, or alkalinity. These figures are crucial for determining the pool's health and safety. Providing incorrect values can lead to inappropriate treatment recommendations.

Individuals often neglect to attach relevant pictures of the pool or the specific issues being reported. Visual documentation can significantly aid inspectors in understanding the situation better. If pictures are not included, it may result in additional site visits or delays in the evaluation process.

Lastly, failing to indicate who will meet at the job site can cause confusion. Providing a name and phone number for the point of contact ensures that the inspection proceeds smoothly. Clear communication about who is responsible for meeting the inspector can prevent unnecessary complications.

Documents used along the form

When conducting a swimming pool inspection, several other forms and documents are often necessary to ensure a thorough evaluation and compliance with safety regulations. Here is a list of related documents that may be required:

  • Pool Maintenance Log: This document tracks regular maintenance activities, including cleaning schedules and chemical balance checks. It helps in identifying recurring issues and ensures proper upkeep of the pool.
  • Water Quality Test Results: These results provide detailed information about the pool's water chemistry. Regular testing helps maintain safe swimming conditions and prevents potential health risks.
  • Pool Safety Inspection Checklist: This checklist outlines safety features and requirements for the pool area, such as fencing, alarms, and signage. It ensures compliance with local safety regulations.
  • Repair Work Order: This form documents any repairs needed after the inspection. It includes details about the work to be done, costs, and timelines for completion.
  • Warranty Documentation: This includes information about warranties for pool equipment and surfaces. It provides coverage details and helps in making claims if issues arise.
  • Incident Report Form: If any accidents or safety incidents occur at the pool, this form records the details. It is important for liability purposes and for improving safety measures.
  • Pool Compliance Certificate: This certificate confirms that the pool meets all local health and safety regulations. It is often required for public pools and can be requested during inspections.

Having these documents readily available can significantly streamline the inspection process and ensure that all aspects of pool safety and maintenance are addressed effectively. Keeping organized records promotes a safer swimming environment for everyone.

Similar forms

The Swimming Pool Inspection form shares similarities with several other documents used in various inspection and evaluation contexts. Here are five such documents:

  • Home Inspection Report: Like the Swimming Pool Inspection form, a home inspection report assesses the condition of a property. It includes details about structural elements, systems, and potential issues, helping homeowners make informed decisions about repairs or purchases.
  • Vehicle Inspection Report: This document evaluates the condition of a vehicle, noting any issues related to safety, performance, and compliance with regulations. Similar to the pool inspection, it provides a comprehensive overview to ensure that the vehicle is safe for use.
  • Building Code Compliance Checklist: A checklist for ensuring that a building meets local codes and regulations is akin to the Swimming Pool Inspection form. Both documents aim to identify compliance issues and ensure safety standards are met.
  • Environmental Assessment Report: This report evaluates potential environmental impacts of a property or project. Like the pool inspection, it involves a thorough examination and documentation of findings to guide future actions and ensure safety.
  • Fire Safety Inspection Report: This document assesses a building’s fire safety measures, identifying potential hazards and compliance with fire codes. It mirrors the pool inspection in its goal of safeguarding individuals and property through detailed evaluations.

Dos and Don'ts

When filling out the Swimming Pool Inspection form, attention to detail is crucial. Here are some dos and don’ts to consider:

  • Do provide accurate owner information, including full name and contact details.
  • Do describe the problem in detail, noting specifics like color and location.
  • Don't leave any sections blank; incomplete information can delay the inspection process.
  • Don't forget to attach any relevant pictures that may assist in the evaluation.

Misconceptions

Misconceptions about the Swimming Pool Inspection form can lead to confusion and miscommunication. Here are seven common misunderstandings:

  1. The form is only for new pools. Many believe that the inspection form is only necessary for new installations. In reality, it is essential for all pools, regardless of age, to ensure safety and proper maintenance.
  2. Only contractors can fill it out. Some think that only licensed contractors can complete the form. However, pool owners can also provide necessary information, especially regarding their observations and experiences with the pool.
  3. It's not important to include detailed descriptions. Many underestimate the value of thorough descriptions of problems. Detailed notes help inspectors understand issues better and lead to more accurate assessments and recommendations.
  4. The inspection is just a formality. Some view the inspection as a mere formality. In truth, it plays a crucial role in identifying potential hazards and ensuring that the pool meets safety standards.
  5. All pools are inspected the same way. A misconception exists that every pool undergoes the same inspection process. Each pool is unique, and inspections can vary based on specific features and conditions.
  6. Once the form is submitted, no further action is needed. Some believe that submitting the form is the final step. In reality, follow-up actions may be necessary based on the inspection findings, including repairs or further evaluations.
  7. The inspection form is only for health department use. Many think the form is solely for health department records. While it is used for that purpose, it also serves as a valuable tool for pool owners and contractors to ensure proper maintenance and safety.

Understanding these misconceptions can help ensure that pool inspections are thorough and effective, ultimately leading to safer swimming environments.

Key takeaways

When filling out and using the Swimming Pool Inspection form, keep these key takeaways in mind:

  • Complete Owner Information: Fill in all sections related to the owner, including name, address, and contact details. This ensures clear communication.
  • Detail the Problem: Provide a thorough description of any issues with the pool. Include specifics like color, location, and pattern to help with accurate assessment.
  • Include Accurate Measurements: Record essential pool measurements such as gallons and chemical levels. This data is crucial for proper evaluation and treatment.
  • Document Equipment Information: Note the types of equipment used, including pumps and filters. This information helps in diagnosing potential issues.
  • Attach Relevant Pictures: If possible, include photos of the pool and any problems. Visuals can enhance understanding and facilitate quicker resolutions.

Remember, a well-filled form leads to better service and quicker solutions.