Content Navigation

The Verification Rent Mortgage form plays a crucial role in the loan application process by providing essential information regarding an applicant's rental or mortgage history. This form is typically initiated by a lender who requests verification from a landlord or creditor about the applicant's financial responsibilities. It includes specific sections that need to be filled out by both the lender and the landlord or creditor, ensuring that all pertinent details are accurately documented. Key components of the form encompass the identification of the lender and the landlord, the applicant's information, and various fields to verify the rental or mortgage account status. The form also inquires about the payment history, including any arrears, the current balance, and whether the account is considered satisfactory. Furthermore, it emphasizes the importance of confidentiality, stating that the information provided will remain protected unless disclosure is mandated by law. This structured approach not only facilitates the verification process but also aids in assessing the creditworthiness of the applicant.

Verification Rent Mortgage Example

GOLDENLOAN.COM, NMLS# 357267

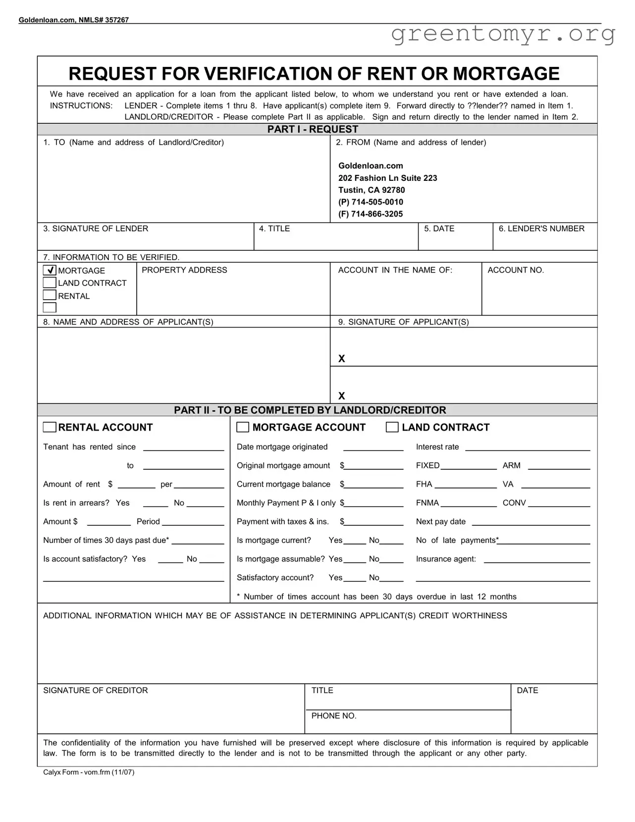
REQUEST FOR VERIFICATION OF RENT OR MORTGAGE

We have received an application for a loan from the applicant listed below, to whom we understand you rent or have extended a loan. INSTRUCTIONS: LENDER - Complete items 1 thru 8. Have applicant(s) complete item 9. Forward directly to ??lender?? named in Item 1.

LANDLORD/CREDITOR - Please complete Part II as applicable. Sign and return directly to the lender named in Item 2.

PART I - REQUEST

1. TO (Name and address of Landlord/Creditor)

2. FROM (Name and address of lender)

GOLDENLOAN.COM

202 FASHION LN SUITE 223 TUSTIN, CA 92780

(P)714-505-0010

(F)714-866-3205

3. SIGNATURE OF LENDER

4. TITLE

5. DATE

6. LENDER'S NUMBER

7. INFORMATION TO BE VERIFIED.

MORTGAGE

PROPERTY ADDRESS

ACCOUNT IN THE NAME OF:

ACCOUNT NO.

LAND CONTRACT

 

 

 

RENTAL

 

 

 

 

 

 

 

8. NAME AND ADDRESS OF APPLICANT(S)

9. SIGNATURE OF APPLICANT(S)

 

X

X

PART II - TO BE COMPLETED BY LANDLORD/CREDITOR

RENTAL ACCOUNT

Tenant has rented since

 

 

 

 

 

 

 

to

 

 

 

 

Amount of rent $

 

 

 

 

per

 

 

 

 

Is rent in arrears? Yes

 

 

 

 

 

 

 

No

 

Amount $

 

Period

 

 

 

 

 

Number of times 30 days past due*

 

 

 

 

 

Is account satisfactory?

Yes

 

 

 

No

 

MORTGAGE ACCOUNT

Date mortgage originated

 

 

 

 

Original mortgage amount

$

 

Current mortgage balance

$

 

Monthly Payment P & I only $

 

Payment with taxes & ins.

$

 

Is mortgage current?

Yes

 

No

Is mortgage assumable? Yes

 

No

Satisfactory account?

Yes

 

No

LAND CONTRACT

Interest rate

FIXEDARM

FHAVA

FNMACONV

Next pay date

No of late payments*

Insurance agent:

* Number of times account has been 30 days overdue in last 12 months

ADDITIONAL INFORMATION WHICH MAY BE OF ASSISTANCE IN DETERMINING APPLICANT(S) CREDIT WORTHINESS

SIGNATURE OF CREDITOR

TITLE

PHONE NO.

DATE

The confidentiality of the information you have furnished will be preserved except where disclosure of this information is required by applicable law. The form is to be transmitted directly to the lender and is not to be transmitted through the applicant or any other party.

Calyx Form - vom.frm (11/07)

File Breakdown

Fact Name Description
Purpose The Verification Rent Mortgage form is used to confirm an applicant's rental or mortgage payment history for loan applications.
Parties Involved The form involves three main parties: the lender, the landlord or creditor, and the applicant.
Instructions for Lender The lender must complete items 1 through 8 and ensure the applicant fills out item 9 before sending it to the designated lender.
Landlord/Creditor Responsibilities Landlords or creditors must fill out Part II and return the form directly to the lender without involving the applicant.
Confidentiality Clause The form states that the information provided will be kept confidential unless required by law to disclose it.
Governing Laws For California, relevant laws include the California Civil Code Section 1785.1 regarding consumer credit reporting.

Guide to Using Verification Rent Mortgage

Completing the Verification Rent Mortgage form is an essential step in the loan application process. Follow these steps carefully to ensure accurate and timely submission.

  1. Begin by entering the name and address of the landlord or creditor in item 1.
  2. In item 2, fill in the name and address of the lender, which is GOLDENLOAN.COM, 202 FASHION LN SUITE 223, TUSTIN, CA 92780.
  3. Sign the form in item 3 to confirm your identity as the lender.
  4. Provide your title in item 4 to indicate your position.
  5. Fill in the date in item 5 when you are completing the form.
  6. Enter your lender's number in item 6 for identification purposes.
  7. In item 7, specify the information to be verified, including the mortgage property address, account name, and account number.
  8. Complete item 8 with the name and address of the applicant(s).
  9. Have the applicant(s) sign in item 9 to authorize the verification process.

Once the lender completes their sections, the landlord or creditor must fill out Part II. This includes providing details about the rental or mortgage account, confirming payment status, and adding any additional information that may assist in evaluating the applicant's creditworthiness. After completing Part II, the landlord or creditor should sign and return the form directly to the lender.

Get Answers on Verification Rent Mortgage

What is the Verification Rent Mortgage form?

The Verification Rent Mortgage form is a document used to verify an applicant's rental or mortgage payment history. It is typically completed by landlords or creditors to provide lenders with the necessary information regarding an applicant’s financial obligations. This form is crucial in the loan approval process as it helps assess the applicant's creditworthiness.

Who needs to complete this form?

Two parties are involved in completing the Verification Rent Mortgage form:

  1. The lender, who fills out the first part of the form, including details about the applicant and the lender’s information.
  2. The landlord or creditor, who completes the second part of the form, providing details about the rental or mortgage account.

How is the form submitted?

Once completed, the form must be sent directly to the lender listed in the document. It should not be transmitted through the applicant or any other intermediary. This ensures that the information remains confidential and is received by the appropriate party.

What information does the lender need to provide?

The lender must complete items 1 through 8 on the form. This includes:

  • Name and address of the landlord or creditor
  • Name and address of the lender
  • Signature and title of the lender
  • Details about the mortgage or rental account, including property address and account number
  • Name and address of the applicant(s)

What details does the landlord or creditor need to provide?

In Part II, the landlord or creditor must provide information such as:

  • Duration of the tenancy or mortgage
  • Amount of rent or mortgage payment
  • Whether rent is in arrears
  • Current status of the mortgage
  • Any additional information that may assist in evaluating the applicant’s creditworthiness

What happens if the rent or mortgage is in arrears?

If the rent or mortgage is in arrears, the landlord or creditor must indicate this on the form. They should specify the amount overdue and how many times the account has been 30 days past due within the last 12 months. This information is critical for the lender to assess the risk associated with the applicant.

Is the information on the form confidential?

Yes, the information provided on the Verification Rent Mortgage form is confidential. It will be preserved unless disclosure is required by law. This confidentiality helps protect the privacy of the applicant and ensures that sensitive financial information is handled appropriately.

What if I have questions about completing the form?

If you have questions about completing the Verification Rent Mortgage form, it is advisable to reach out directly to the lender or consult with a legal or financial advisor. They can provide guidance on how to accurately fill out the form and ensure that all necessary information is included.

Common mistakes

Completing the Verification Rent Mortgage form accurately is crucial for a smooth loan application process. However, many applicants make common mistakes that can lead to delays or even denials. Here are ten frequent errors to avoid.

First, applicants often forget to fill out their personal information completely. Missing details such as the full name, current address, or contact number can cause confusion and delay the verification process. Ensure all information is accurate and up-to-date.

Second, the section where the landlord or creditor's information is provided is sometimes incomplete. This includes the name and address of the landlord or creditor. If this information is not correctly filled out, the lender may struggle to reach the right person for verification.

Third, applicants frequently neglect to sign the form. A signature is required to validate the request. Without it, the form may be considered invalid, halting the entire process.

Fourth, some individuals do not verify the accuracy of the rental or mortgage account details. Incorrect account numbers or addresses can lead to significant delays as lenders attempt to rectify the errors.

Fifth, applicants often overlook the importance of providing information about any late payments. If there have been late payments, it is essential to disclose this information. Failing to do so can create distrust and potentially jeopardize the loan application.

Sixth, many people fail to indicate whether the rent is in arrears. This section is crucial for the lender to assess the applicant's financial stability. Transparency in this area can enhance credibility.

Seventh, applicants sometimes forget to include additional information that could support their creditworthiness. Providing context or explanations for any financial difficulties can be beneficial.

Eighth, the date of the mortgage origination is often left blank. This date is vital for lenders to understand the history of the mortgage and its current status. Ensure this detail is filled in accurately.

Ninth, applicants might not check the box indicating whether the mortgage is current. This simple oversight can lead to misunderstandings regarding the applicant's financial obligations.

Lastly, many individuals do not follow the instruction to send the form directly to the lender. Instead, they may attempt to submit it through other parties. This can lead to confidentiality issues and further delays in processing.

By avoiding these common mistakes, applicants can ensure a smoother verification process and increase their chances of securing a loan. Attention to detail is essential when filling out the Verification Rent Mortgage form.

Documents used along the form

When applying for a loan, several documents work together to paint a complete picture of your financial situation. Alongside the Verification Rent Mortgage form, you may encounter the following important forms and documents. Each serves a unique purpose in the lending process.

  • Loan Application: This form collects essential personal and financial information from the applicant, including income, employment history, and debts. It’s the starting point for any loan request.
  • Credit Report Authorization: This document allows lenders to access your credit history. It helps them assess your creditworthiness and ability to repay the loan.
  • Proof of Income: Applicants often need to provide pay stubs, tax returns, or bank statements. This verifies your income and ensures you can afford the loan payments.
  • Debt-to-Income Ratio Calculation: This calculation compares your monthly debt payments to your gross monthly income. Lenders use it to evaluate your financial health and ability to manage new debt.
  • Property Appraisal Report: An appraisal determines the market value of the property being financed. It ensures the lender’s investment is secure and the property is worth the loan amount.
  • Title Report: This document confirms the legal ownership of the property and checks for any liens or claims against it. It’s crucial for ensuring a clear title before the loan is finalized.
  • Homeowners Insurance Policy: Lenders typically require proof of insurance to protect the property against potential risks. This document shows that the property is insured for its full value.
  • Loan Estimate: This form provides a detailed breakdown of the loan terms, including interest rates, monthly payments, and closing costs. It helps borrowers understand the financial implications of their loan.

Gathering these documents can feel overwhelming, but each one plays a vital role in the loan approval process. Being prepared with the necessary paperwork can make your experience smoother and increase your chances of securing the financing you need.

Similar forms

The Verification Rent Mortgage form serves an important role in the loan application process, providing essential information about an applicant's rental or mortgage history. There are several other documents that share similarities with this form, each designed to verify financial responsibilities and obligations. Below are four such documents:

  • Verification of Employment (VOE): This document confirms an applicant's employment status, salary, and job stability. Like the Verification Rent Mortgage form, it requires completion by an employer and is often sent directly to the lender. Both forms aim to verify the applicant's financial reliability.
  • Credit Report: A credit report provides a comprehensive overview of an individual's credit history, including outstanding debts, payment history, and credit scores. Similar to the Verification Rent Mortgage form, it is used by lenders to assess the creditworthiness of an applicant, helping them make informed lending decisions.
  • Asset Verification: This document outlines an applicant's assets, such as bank accounts, investments, and property ownership. Like the Verification Rent Mortgage form, it helps lenders gauge an applicant's financial stability and ability to repay the loan. Both documents serve as tools for evaluating financial health.
  • Debt-to-Income Ratio (DTI) Statement: This statement calculates the ratio of an applicant's monthly debt payments to their gross monthly income. It is similar to the Verification Rent Mortgage form in that it assesses the applicant's financial obligations and their ability to manage debt. Lenders use both to evaluate risk when considering loan applications.

Dos and Don'ts

When filling out the Verification Rent Mortgage form, attention to detail is essential. Here’s a list of things to do and avoid to ensure a smooth process.

  • Do read the instructions carefully before starting.
  • Do complete all required fields accurately.
  • Do verify the names and addresses of both the landlord and lender.
  • Do ensure that all signatures are provided where necessary.
  • Do check for any missing information before submitting the form.
  • Don't leave any sections blank unless instructed.
  • Don't provide false or misleading information.
  • Don't submit the form through the applicant or any third party.
  • Don't forget to keep a copy of the completed form for your records.
  • Don't overlook the importance of confidentiality when handling the information.

By following these guidelines, you can help ensure that the verification process goes smoothly and efficiently.

Misconceptions

Understanding the Verification Rent Mortgage form is crucial for both lenders and borrowers. Unfortunately, several misconceptions surround this important document. Here are five common misunderstandings:

  • It’s only for renters. Many believe this form is exclusively for those renting a property. In reality, it is also applicable to individuals with mortgages. The form verifies both rental and mortgage information, making it versatile for various housing situations.
  • Landlords must provide detailed financial information. Some landlords think they need to disclose extensive financial details about their properties. However, the form only requires basic information about the rental agreement or mortgage status, such as payment history and whether the account is satisfactory.
  • It can be submitted by the applicant. A common misconception is that applicants can submit this form themselves. The process requires that the form be sent directly from the landlord or creditor to the lender. This ensures confidentiality and accuracy in the verification process.
  • All information is public. Some individuals worry that the information shared on this form will be accessible to anyone. In truth, the confidentiality of the information is preserved, except where disclosure is mandated by law. This protects the privacy of both the applicant and the landlord or creditor.
  • It’s only necessary for large loans. Many people think that this verification is only needed for substantial mortgage amounts. In fact, it is a standard procedure for all loan applications, regardless of size. Lenders require this verification to assess the applicant's creditworthiness accurately.

Clearing up these misconceptions can help streamline the loan application process and ensure that all parties understand their responsibilities. Proper use of the Verification Rent Mortgage form is essential for a smooth transaction.

Key takeaways

When filling out and using the Verification Rent Mortgage form, consider the following key takeaways:

  1. Complete All Sections: Ensure that all items from 1 to 8 are filled out by the lender, while the applicant must complete item 9.
  2. Direct Submission: The completed form should be sent directly to the lender named in Item 1, avoiding any intermediary.
  3. Accurate Information: Verify that the details provided about the applicant, including name and address, are correct to avoid delays.
  4. Landlord/Creditor Role: Landlords or creditors must fill out Part II accurately, providing necessary details about the rental or mortgage account.
  5. Signature Requirement: Both the lender and the landlord/creditor must sign the form to validate the information provided.
  6. Confidentiality: The information shared is confidential and should only be disclosed as required by law.
  7. Payment History: Be prepared to provide information about any late payments or arrears, as this impacts the applicant’s creditworthiness.
  8. Current Status: Indicate whether the rent or mortgage is current, as this is crucial for the loan approval process.
  9. Additional Information: Include any extra details that may assist in assessing the applicant’s creditworthiness.

Following these guidelines will facilitate a smooth verification process and help ensure that all necessary information is accurately conveyed.